Двухэтажный дом 15x12 - 174.8 м2 за руб.

ID-123434

Стоимость дома 5939298 руб.
154 м2 Полезная
площадь
15 x 12 м Размеры
2 этажа Этажей
26 м2 Террасы
и балконы
1Без
гаража
4 Количество
спален
2 Количество
санузлов

Планировки

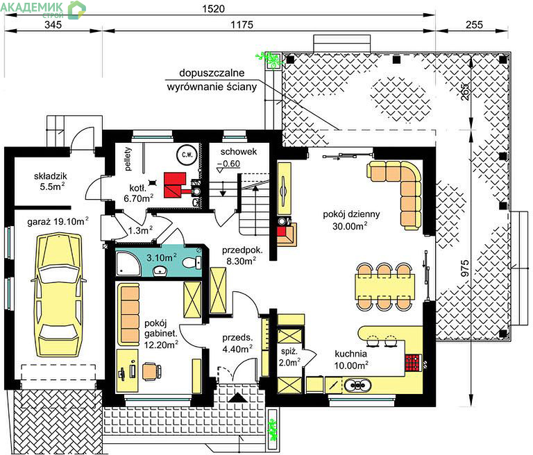
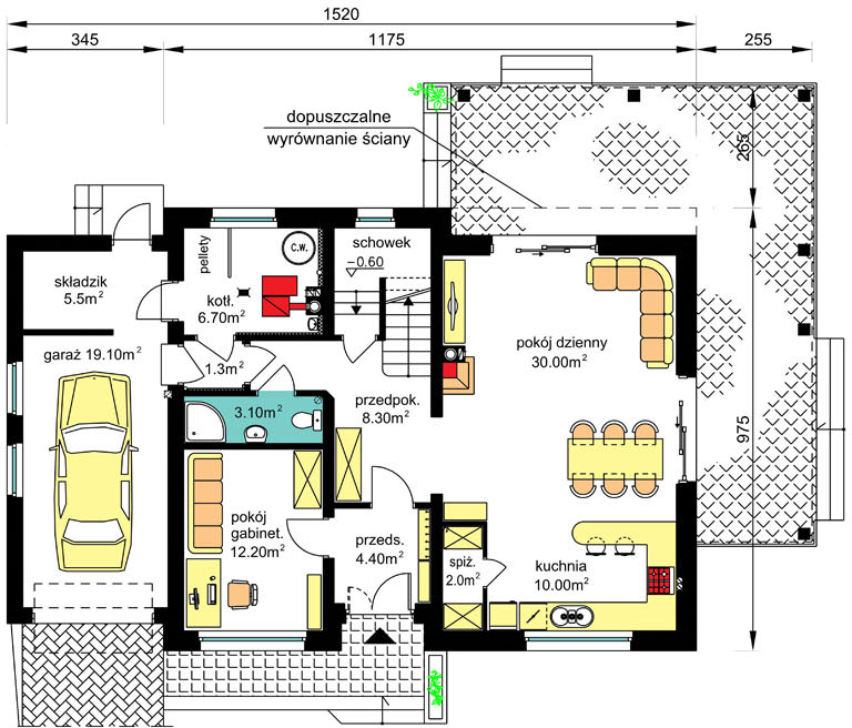
План первого этажа

floor image
  • 1. Прихожая 4,40 m²
  • 2. Кладовая 2 m²
  • 3. Кухня 10 m²
  • 4. Гостиная + столовая 30 m²
  • 5. Коридор 8,30 m²
  • 6. Котельная 6,70 m²
  • 7. Коридор 1,30 m²
  • 8. Ванная комната 3,10 m²
  • 9. Комната 12,20 m²
  • 10. Кладовая 5,50 m²
  • 11. Гараж на 1 машину 19,10 m²
  • План первого этажа 102,60 m²

План мансарды

floor image
  • 1. Коридор 9,40 m²
  • 2. Комната 14,90 m²
  • 3. Комната 15,10 m²
  • 4. Комната 11,70 m²
  • 5. Чердак 13,40 m²
  • 6. Ванная комната 7,70 m²
  • 7. Терраса (42,70 m²)
  • План мансарды 72,20 m²

Разрезы

Вертикальный разрез
Вертикальный разрез

Фасады

Передний
Задний
Левый
Правый
Передний
Задний
Левый
Правый

Подробная информация

Жилая площадь
128,80 m²
icon

Сумма площади всех жилых помещений, за вычетом пов. гараж, котельная, чердак, подвал. Учитывается в 100%, для помещений высотой более 2,2 м, в 50% для помещений с высотой 2,2-1,4 м и не включается для более низких помещений (меньше 1,4 м).

Площадь застройки
183,70 m²
icon

Площадь застройки здания определяется как площадь горизонтального сечения по внешнему обводу здания на уровне цоколя, включая выступающие части.

Объем брутто
856,80 m³
icon

Как правило, это сумма объема всех помещений в здании, подсчитанных по внешнему контуру стены (с утеплением).

Площадь крыши
228,30 m²
icon

Угол наклона крыши
42°
icon

Наклон ската крыши в градусах. Внимание! В некоторых проектах возникает более чем один наклон крыши.

Высота здания
8,60 m
icon

Высота измеряется от поверхности земли до самой высокой точки кровли (конька), за исключением дымоходов.

Мин. ширина участка
23,30 m
icon

Наименьшая возможная ширина участка, необходимая для строительства выбранного дома. Состоит из длины фасада дома плюс с обеих сторон три метра отступ.

Мин. длина участка
20 m
icon

Наименьшая возможная длина участка, необходимая для строительства выбранного дома. Состоит из длины фасада дома плюс с обеих сторон три метра отступ.

Материалы и опции
Общие
Количество спален
4
Ежемесячный платёж, руб
Гараж
1
Количество санузлов
2
Ширина
15
Глубина
12
Тип крыши

Площади дома

№ п/п Наименование Ед. из. Строительная площадь Полезная площадь
1 1 этаж м2 126.43 102.6
2 2 этаж м2 88.97 72.2
3 Итого м2 215.4 174.8

ПРИГЛАШАЕМ НА ДЕНЬ ОТКРЫТЫХ ДВЕРЕЙ СТРОЯЩЕГОСЯ ДОМА

ХОЧУ ПОЕХАТЬ
День открытых дверей

Калькулятор опций

0

В ипотеку от 19 651 ₽/мес.

Фундамент
stdClass Object ( [id] => 1 [attribute_id] => 1 [name] => Ленточный монолитный ж/б [material_modifier] => 1 [work_modifier] => 1 [options] => Array ( [0] => размер 200 х 700 мм [1] => размер 300 х 900 мм [2] => размер 400 х 1 000 мм [3] => размер 500 х 1 100 мм [4] => размер 600 х 1 200 мм ) [days] => [20,21,22,25,30] [material_price] => [2823,3630,4475,5210,12047] [work_price] => [2154,2826,3731,4577,5293] [image] => https://akademik-stroy.ru/wp-content/uploads/materials/lentochnyj-monolitnyj-zh-b.jpg [area_modifier] => 126.43 [parent_name] => Фундамент [parent_id] => 1 [material_sum] => 449709 [work_sum] => 285947 [total_sum] => 735656 [total_days] => 20 [display_material_sum] => 449 709 [display_work_sum] => 285 947 [display_total_sum] => 735 656 ) 1
735 656
Работа:285 947
Материалы:449 709
Дни:20
stdClass Object ( [id] => 2 [attribute_id] => 1 [name] => Забивные Ж/Б сваи [material_modifier] => 1 [work_modifier] => 1 [options] => Array ( [0] => 150х150х3000мм [1] => 150х150х4000мм [2] => 200х200х3000мм [3] => 200х200х4000мм [4] => 200х200х5000мм [5] => 200х200х6000мм ) [days] => [2,2,2,2,2,2] [material_price] => [1990,2850,3255,4360,5120,6837] [work_price] => [1002,1185,1336,1438,1574,1839] [image] => https://akademik-stroy.ru/wp-content/uploads/materials/zabivnye-zh-b-svai.png [area_modifier] => 126.43 [parent_name] => Фундамент [parent_id] => 1 [material_sum] => 317011 [work_sum] => 133017 [total_sum] => 450028 [total_days] => 2 [display_material_sum] => 317 011 [display_work_sum] => 133 017 [display_total_sum] => 450 028 ) 1
450 028
Работа:133 017
Материалы:317 011
Дни:2
stdClass Object ( [id] => 71 [attribute_id] => 1 [name] => Свайно-ростверковый ж/б [material_modifier] => 1 [work_modifier] => 1 [options] => Array ( [0] => ростверк 200х300 мм [1] => ростверк 300х600 мм [2] => ростверк 400х900 мм [3] => ростверк 500х1200 мм ) [days] => [20,23,25,27] [material_price] => [3018,3474,7109,9792] [work_price] => [2024,3012,5635,7022] [image] => https://akademik-stroy.ru/wp-content/uploads/materials/svajno-rostverkovyj-monolitnyj-zh-b-3.png [area_modifier] => 126.43 [parent_name] => Фундамент [parent_id] => 1 [material_sum] => 480773 [work_sum] => 268689 [total_sum] => 749462 [total_days] => 20 [display_material_sum] => 480 773 [display_work_sum] => 268 689 [display_total_sum] => 749 462 ) 1
749 462
Работа:268 689
Материалы:480 773
Дни:20
stdClass Object ( [id] => 72 [attribute_id] => 1 [name] => Монолитная ж/б плита [material_modifier] => 1 [work_modifier] => 1 [options] => Array ( [0] => 200 мм [1] => 300 мм [2] => 400 мм [3] => 500 мм [4] => 600 мм ) [days] => [30,33,35,37,40] [material_price] => [5348,8555,12788,14388,15189] [work_price] => [4314,4881,7037,8061,10230] [image] => https://akademik-stroy.ru/wp-content/uploads/materials/monolitnaya-zhb-plita.png [area_modifier] => 126.43 [parent_name] => Фундамент [parent_id] => 1 [material_sum] => 851946 [work_sum] => 572690 [total_sum] => 1424636 [total_days] => 30 [display_material_sum] => 851 946 [display_work_sum] => 572 690 [display_total_sum] => 1 424 636 ) 1
1 424 636
Работа:572 690
Материалы:851 946
Дни:30
stdClass Object ( [id] => 73 [attribute_id] => 1 [name] => Утепленная шведская плита [material_modifier] => 1 [work_modifier] => 1 [options] => Array ( [0] => 200 мм [1] => 300 мм [2] => 400 мм [3] => 500 мм [4] => 600 мм ) [days] => [32,37,39,42,45] [material_price] => [10249,12692,13760,14936,16230] [work_price] => [5960,7337,8072,8878,9765] [image] => https://akademik-stroy.ru/wp-content/uploads/materials/uteplennaya-shvedskaya-plita.jpg [area_modifier] => 126.43 [parent_name] => Фундамент [parent_id] => 1 [material_sum] => 1632684 [work_sum] => 791199 [total_sum] => 2423883 [total_days] => 32 [display_material_sum] => 1 632 684 [display_work_sum] => 791 199 [display_total_sum] => 2 423 883 ) 1
2 423 883
Работа:791 199
Материалы:1 632 684
Дни:32
stdClass Object ( [id] => 75 [attribute_id] => 1 [name] => Ленточный из ФБС [material_modifier] => 1 [work_modifier] => 1 [options] => Array ( [0] => толщ. 300 мм [1] => толщ. 400 мм [2] => толщ. 500 мм [3] => толщ. 600 мм ) [days] => [20,20,20,20] [material_price] => [3675,4902,6126,7350] [work_price] => [2451,3264,4083,4902] [image] => https://akademik-stroy.ru/wp-content/uploads/materials/lentochnyj-iz-fbs.png [area_modifier] => 126.43 [parent_name] => Фундамент [parent_id] => 1 [material_sum] => 585434 [work_sum] => 325374 [total_sum] => 910808 [total_days] => 20 [display_material_sum] => 585 434 [display_work_sum] => 325 374 [display_total_sum] => 910 808 ) 1
910 808
Работа:325 374
Материалы:585 434
Дни:20
stdClass Object ( [id] => 76 [attribute_id] => 1 [name] => Цокольный этаж из ФБС [material_modifier] => 1 [work_modifier] => 1 [options] => Array ( [0] => толщ. 300 мм [1] => толщ. 400 мм [2] => толщ. 500 мм [3] => толщ. 600 мм ) [days] => [30,32,34,36] [material_price] => [20916,23299,26680,29060] [work_price] => [17524,18700,19873,21046] [image] => https://akademik-stroy.ru/wp-content/uploads/materials/cokolnyj-ehtazh-iz-fbs.jpg [area_modifier] => 126.43 [parent_name] => Фундамент [parent_id] => 1 [material_sum] => 3331956 [work_sum] => 2326337 [total_sum] => 5658293 [total_days] => 30 [display_material_sum] => 3 331 956 [display_work_sum] => 2 326 337 [display_total_sum] => 5 658 293 ) 1
5 658 293
Работа:2 326 337
Материалы:3 331 956
Дни:30
stdClass Object ( [id] => 77 [attribute_id] => 1 [name] => Цокольный этаж монолитный ж/б [material_modifier] => 1 [work_modifier] => 1 [options] => Array ( [0] => толщ. 200 мм [1] => толщ. 300 мм [2] => толщ. 400 мм [3] => толщ. 500 мм [4] => толщ. 600 мм ) [days] => [40,42,44,46,48] [material_price] => [25421,29148,32275,35602,37326] [work_price] => [20441,21907,23375,24841,26306] [image] => https://akademik-stroy.ru/wp-content/uploads/materials/cokolnyj-etazh-zh-b.jpg [area_modifier] => 126.43 [parent_name] => Фундамент [parent_id] => 1 [material_sum] => 4049611 [work_sum] => 2713573 [total_sum] => 6763184 [total_days] => 40 [display_material_sum] => 4 049 611 [display_work_sum] => 2 713 573 [display_total_sum] => 6 763 184 ) 1
6 763 184
Работа:2 713 573
Материалы:4 049 611
Дни:40
stdClass Object ( [id] => 191 [attribute_id] => 1 [name] => Винтовые сваи [material_modifier] => 1 [work_modifier] => 1 [options] => Array ( [0] => 57х200мм [1] => 76х250мм [2] => 108х300мм [3] => 133х350мм ) [days] => [1,1,2,2] [material_price] => [1200,1300,1450,1600] [work_price] => [400,600,900,1100] [image] => https://akademik-stroy.ru/wp-content/uploads/materials/vintovye-svai.png [area_modifier] => 126.43 [parent_name] => Фундамент [parent_id] => 1 [material_sum] => 191162 [work_sum] => 53101 [total_sum] => 244263 [total_days] => 1 [display_material_sum] => 191 162 [display_work_sum] => 53 101 [display_total_sum] => 244 263 ) 1
244 263
Работа:53 101
Материалы:191 162
Дни:1
Перекрытие цоколя
stdClass Object ( [id] => 3 [attribute_id] => 2 [name] => Деревянные балки [material_modifier] => 1 [work_modifier] => 1 [options] => Array ( [0] => без утепления [1] => утепление 200 мм [2] => утепление 250 мм [3] => утепление 300 мм [4] => утепление 350 мм [5] => утепление 400 мм [6] => утепление 450 мм [7] => утепление 500 мм ) [days] => [8,9,9,9,11,12,13,14] [material_price] => [1634,2042,2344,2947,3149,3652,3354,3557] [work_price] => [1230,1339,1393,1426,1460,1513,1587,1620] [image] => https://akademik-stroy.ru/wp-content/uploads/materials/derevyannye-balki.png [area_modifier] => 126.43 [parent_name] => Перекрытие цоколя [parent_id] => 2 [material_sum] => 260299 [work_sum] => 163284 [total_sum] => 423583 [total_days] => 8 [display_material_sum] => 260 299 [display_work_sum] => 163 284 [display_total_sum] => 423 583 ) 1
423 583
Работа:163 284
Материалы:260 299
Дни:8
stdClass Object ( [id] => 4 [attribute_id] => 2 [name] => Сборные ж/б плиты [material_modifier] => 1 [work_modifier] => 1 [options] => Array ( [0] => без утепления [1] => утепление 150мм [2] => утепление 200мм [3] => утепление 250мм [4] => утепление 300мм [5] => утепление 350мм [6] => утепление 400мм [7] => утепление 450мм [8] => утепление 500мм ) [days] => [13,15,15,15,15,15,15,15,15] [material_price] => [3067,5577,5928,6679,7730,8782,9833,10884,11935] [work_price] => [1520,1956,2102,2247,2392,2537,2684,2829,2974] [image] => https://akademik-stroy.ru/wp-content/uploads/materials/sbornye-zh-b-plity-2.jpg [area_modifier] => 126.43 [parent_name] => Перекрытие цоколя [parent_id] => 2 [material_sum] => 488579 [work_sum] => 201782 [total_sum] => 690361 [total_days] => 13 [display_material_sum] => 488 579 [display_work_sum] => 201 782 [display_total_sum] => 690 361 ) 1
690 361
Работа:201 782
Материалы:488 579
Дни:13
stdClass Object ( [id] => 78 [attribute_id] => 2 [name] => Монолитная ж/б плита [material_modifier] => 1 [work_modifier] => 1 [options] => Array ( [0] => без утепления [1] => утепление 150 мм [2] => утепление 200 мм [3] => утепление 250 мм [4] => утепление 300 мм [5] => утепление 350 мм [6] => утепление 400 мм [7] => утепление 450 мм [8] => утепление 500 мм ) [days] => [18,20,20,20,20,20,20,20,20] [material_price] => [4837,6572,7224,7375,79426,8177,8728,9180,10031] [work_price] => [3348,3921,4112,4302,4493,4684,4875,5066,5256] [image] => https://akademik-stroy.ru/wp-content/uploads/materials/monolitnaya-zh-b-plita-2.jpg [area_modifier] => 126.43 [parent_name] => Перекрытие цоколя [parent_id] => 2 [material_sum] => 770543 [work_sum] => 444452 [total_sum] => 1214995 [total_days] => 18 [display_material_sum] => 770 543 [display_work_sum] => 444 452 [display_total_sum] => 1 214 995 ) 1
1 214 995
Работа:444 452
Материалы:770 543
Дни:18
Стены 1 этаж (несущие)
stdClass Object ( [id] => 6 [attribute_id] => 3 [name] => Пеноблок [material_modifier] => 1 [work_modifier] => 1 [options] => Array ( [0] => 300 мм [1] => 400 мм [2] => 500 мм [3] => 600 мм ) [days] => [29,31,34,39] [material_price] => [3000,4000,4500,4937] [work_price] => [5033,5805,6400,8710] [image] => https://akademik-stroy.ru/wp-content/uploads/materials/penoblok.jpg [area_modifier] => 126.43 [parent_name] => Стены 1 этаж (несущие) [parent_id] => 3 [material_sum] => 477905 [work_sum] => 668138 [total_sum] => 1146043 [total_days] => 29 [display_material_sum] => 477 905 [display_work_sum] => 668 138 [display_total_sum] => 1 146 043 ) 1
1 146 043
Работа:668 138
Материалы:477 905
Дни:29
stdClass Object ( [id] => 79 [attribute_id] => 3 [name] => Керамический блок [material_modifier] => 1 [work_modifier] => 1 [options] => Array ( [0] => 380 мм [1] => 380 мм Thermo [2] => 440 мм [3] => 510 мм ) [days] => [23,23,24,25] [material_price] => [4510,5098,6093,8013] [work_price] => [4737,4937,5903,6958] [image] => https://akademik-stroy.ru/wp-content/uploads/materials/keramicheskij-blok.jpg [area_modifier] => 126.43 [parent_name] => Стены 1 этаж (несущие) [parent_id] => 3 [material_sum] => 718451 [work_sum] => 628844 [total_sum] => 1347295 [total_days] => 23 [display_material_sum] => 718 451 [display_work_sum] => 628 844 [display_total_sum] => 1 347 295 ) 1
1 347 295
Работа:628 844
Материалы:718 451
Дни:23
stdClass Object ( [id] => 80 [attribute_id] => 3 [name] => Кирпич [material_modifier] => 1 [work_modifier] => 1 [options] => Array ( [0] => Кирпич 250 мм [1] => Кирпич 380 мм [2] => Кирпич 510 мм [3] => Кирпич 640 мм [4] => Кирпич 770 мм ) [days] => [30,30,31,33,36] [material_price] => [5500,7142,9206,10171,12235] [work_price] => [8736,10041,12018,15240,18462] [image] => https://akademik-stroy.ru/wp-content/uploads/materials/kirpich.jpg [area_modifier] => 126.43 [parent_name] => Стены 1 этаж (несущие) [parent_id] => 3 [material_sum] => 876160 [work_sum] => 1159717 [total_sum] => 2035877 [total_days] => 30 [display_material_sum] => 876 160 [display_work_sum] => 1 159 717 [display_total_sum] => 2 035 877 ) 1
2 035 877
Работа:1 159 717
Материалы:876 160
Дни:30
stdClass Object ( [id] => 81 [attribute_id] => 3 [name] => Монолитные [material_modifier] => 1 [work_modifier] => 1 [options] => Array ( [0] => 150 мм [1] => 200 мм [2] => 250 мм [3] => 300 мм [4] => 350 мм [5] => 400 мм ) [days] => [45,46,47,49,50,53] [material_price] => [6545,7876,10175,12011,13908,15204] [work_price] => [5106,6444,7698,8552,9807,11461] [image] => https://akademik-stroy.ru/wp-content/uploads/materials/monolitnye.jpg [area_modifier] => 126.43 [parent_name] => Стены 1 этаж (несущие) [parent_id] => 3 [material_sum] => 1042630 [work_sum] => 677829 [total_sum] => 1720459 [total_days] => 45 [display_material_sum] => 1 042 630 [display_work_sum] => 677 829 [display_total_sum] => 1 720 459 ) 1
1 720 459
Работа:677 829
Материалы:1 042 630
Дни:45
stdClass Object ( [id] => 82 [attribute_id] => 3 [name] => Клееный брус [material_modifier] => 1 [work_modifier] => 1 [options] => Array ( [0] => 160 мм [1] => 175 мм [2] => 200 мм [3] => 215 мм [4] => 240 мм [5] => 270 мм [6] => 282 мм ) [days] => [24,28,32,37,40,42,48] [material_price] => [16975,18773,19950,20545,21599,22159,23275] [work_price] => [4806,5287,5815,6397,7036,7740,8514] [image] => https://akademik-stroy.ru/wp-content/uploads/materials/kleenyj-brus.jpg [area_modifier] => 126.43 [parent_name] => Стены 1 этаж (несущие) [parent_id] => 3 [material_sum] => 2704148 [work_sum] => 638004 [total_sum] => 3342152 [total_days] => 24 [display_material_sum] => 2 704 148 [display_work_sum] => 638 004 [display_total_sum] => 3 342 152 ) 1
3 342 152
Работа:638 004
Материалы:2 704 148
Дни:24
stdClass Object ( [id] => 83 [attribute_id] => 3 [name] => Каркасные [material_modifier] => 1 [work_modifier] => 1 [options] => Array ( [0] => 150 мм [1] => 200 мм [2] => 250 мм [3] => 300 мм ) [days] => [15,16,17,18] [material_price] => [2379,2639,2898,3258] [work_price] => [2418,2686,2985,3716] [image] => https://akademik-stroy.ru/wp-content/uploads/materials/karkasnye.jpg [area_modifier] => 126.43 [parent_name] => Стены 1 этаж (несущие) [parent_id] => 3 [material_sum] => 378979 [work_sum] => 320993 [total_sum] => 699972 [total_days] => 15 [display_material_sum] => 378 979 [display_work_sum] => 320 993 [display_total_sum] => 699 972 ) 1
699 972
Работа:320 993
Материалы:378 979
Дни:15
stdClass Object ( [id] => 84 [attribute_id] => 3 [name] => СИП-панели [material_modifier] => 1 [work_modifier] => 1 [options] => Array ( [0] => 120 мм [1] => 170 мм [2] => 220 мм ) [days] => [7,7,7] [material_price] => [1210,1856,2292] [work_price] => [1410,1551,1706] [image] => https://akademik-stroy.ru/wp-content/uploads/materials/sip-paneli.jpg [area_modifier] => 126.43 [parent_name] => Стены 1 этаж (несущие) [parent_id] => 3 [material_sum] => 192755 [work_sum] => 187180 [total_sum] => 379935 [total_days] => 7 [display_material_sum] => 192 755 [display_work_sum] => 187 180 [display_total_sum] => 379 935 ) 1
379 935
Работа:187 180
Материалы:192 755
Дни:7
stdClass Object ( [id] => 85 [attribute_id] => 3 [name] => Сухой брус [material_modifier] => 1 [work_modifier] => 1 [options] => Array ( [0] => 150 мм [1] => 180 мм [2] => 200 мм ) [days] => [7,8,9] [material_price] => [6010,7190,8709] [work_price] => [3204,3845,4229] [image] => https://akademik-stroy.ru/wp-content/uploads/materials/suhoj-brus.jpg [area_modifier] => 126.43 [parent_name] => Стены 1 этаж (несущие) [parent_id] => 3 [material_sum] => 957404 [work_sum] => 425336 [total_sum] => 1382740 [total_days] => 7 [display_material_sum] => 957 404 [display_work_sum] => 425 336 [display_total_sum] => 1 382 740 ) 1
1 382 740
Работа:425 336
Материалы:957 404
Дни:7
stdClass Object ( [id] => 86 [attribute_id] => 3 [name] => Профилированный брус [material_modifier] => 1 [work_modifier] => 1 [options] => Array ( [0] => 150 мм [1] => 180 мм [2] => 200 мм ) [days] => [7,8,9] [material_price] => [8190,9228,10051] [work_price] => [3845,4614,5075] [image] => https://akademik-stroy.ru/wp-content/uploads/materials/profilirovannyj-brus.jpg [area_modifier] => 126.43 [parent_name] => Стены 1 этаж (несущие) [parent_id] => 3 [material_sum] => 1304682 [work_sum] => 510430 [total_sum] => 1815112 [total_days] => 7 [display_material_sum] => 1 304 682 [display_work_sum] => 510 430 [display_total_sum] => 1 815 112 ) 1
1 815 112
Работа:510 430
Материалы:1 304 682
Дни:7
stdClass Object ( [id] => 87 [attribute_id] => 3 [name] => Оцилиндрованное бревно [material_modifier] => 1 [work_modifier] => 1 [options] => Array ( [0] => 180 мм [1] => 220 мм [2] => 260 мм [3] => 320 мм ) [days] => [7,8,9,10] [material_price] => [75190,9532,10868,13116] [work_price] => [3845,4691,5535,6863] [image] => https://akademik-stroy.ru/wp-content/uploads/materials/ocilindrovannoe-brevno-1.jpg [area_modifier] => 126.43 [parent_name] => Стены 1 этаж (несущие) [parent_id] => 3 [material_sum] => 11977902 [work_sum] => 510430 [total_sum] => 12488332 [total_days] => 7 [display_material_sum] => 11 977 902 [display_work_sum] => 510 430 [display_total_sum] => 12 488 332 ) 1
12 488 332
Работа:510 430
Материалы:11 977 902
Дни:7
stdClass Object ( [id] => 88 [attribute_id] => 3 [name] => Срубы [material_modifier] => 1 [work_modifier] => 1 [options] => Array ( [0] => 260 мм [1] => 320 мм [2] => 360 мм [3] => 400 мм [4] => 500 мм ) [days] => [7,8,9,10,11] [material_price] => [37975,46709,52314,58069,73167] [work_price] => [4806,5911,6621,7349,9260] [image] => https://akademik-stroy.ru/wp-content/uploads/materials/sruby.jpg [area_modifier] => 126.43 [parent_name] => Стены 1 этаж (несущие) [parent_id] => 3 [material_sum] => 6049486 [work_sum] => 638004 [total_sum] => 6687490 [total_days] => 7 [display_material_sum] => 6 049 486 [display_work_sum] => 638 004 [display_total_sum] => 6 687 490 ) 1
6 687 490
Работа:638 004
Материалы:6 049 486
Дни:7
stdClass Object ( [id] => 174 [attribute_id] => 3 [name] => Брус [material_modifier] => 1 [work_modifier] => 1 [options] => Array ( [0] => 150 мм [1] => 180 мм [2] => 200 мм ) [days] => [7,8,9] [material_price] => [5127,6152,7367] [work_price] => [1602,1922,2115] [image] => https://akademik-stroy.ru/wp-content/uploads/materials/brus.jpg [area_modifier] => 126.43 [parent_name] => Стены 1 этаж (несущие) [parent_id] => 3 [material_sum] => 816740 [work_sum] => 212668 [total_sum] => 1029408 [total_days] => 7 [display_material_sum] => 816 740 [display_work_sum] => 212 668 [display_total_sum] => 1 029 408 ) 1
1 029 408
Работа:212 668
Материалы:816 740
Дни:7
stdClass Object ( [id] => 175 [attribute_id] => 3 [name] => Газобетон [material_modifier] => 1 [work_modifier] => 1 [options] => Array ( [0] => 300 мм [1] => 375 мм [2] => 400 мм [3] => 500 мм [4] => 600 мм ) [days] => [29,31,35,37,44] [material_price] => [4298,5573,6356,7288,9119] [work_price] => [4538,5251,5926,6733,7195] [image] => https://akademik-stroy.ru/wp-content/uploads/materials/gazobeton.jpg [area_modifier] => 126.43 [parent_name] => Стены 1 этаж (несущие) [parent_id] => 3 [material_sum] => 684679 [work_sum] => 602426 [total_sum] => 1287105 [total_days] => 29 [display_material_sum] => 684 679 [display_work_sum] => 602 426 [display_total_sum] => 1 287 105 ) 1
1 287 105
Работа:602 426
Материалы:684 679
Дни:29
stdClass Object ( [id] => 176 [attribute_id] => 3 [name] => Блок [material_modifier] => 1 [work_modifier] => 1 [options] => Array ( [0] => 300 мм [1] => 375 мм [2] => 400 мм [3] => 500 мм [4] => 600 мм ) [days] => [29,31,35,37,44] [material_price] => [2698,3973,4356,6588,7119] [work_price] => [5038,5851,6426,8733,9195] [image] => https://akademik-stroy.ru/wp-content/uploads/materials/blok.jpg [area_modifier] => 126.43 [parent_name] => Стены 1 этаж (несущие) [parent_id] => 3 [material_sum] => 429796 [work_sum] => 668802 [total_sum] => 1098598 [total_days] => 29 [display_material_sum] => 429 796 [display_work_sum] => 668 802 [display_total_sum] => 1 098 598 ) 1
1 098 598
Работа:668 802
Материалы:429 796
Дни:29
stdClass Object ( [id] => 177 [attribute_id] => 3 [name] => Газосиликатный блок [material_modifier] => 1 [work_modifier] => 1 [options] => Array ( [0] => 300 мм [1] => 375 мм [2] => 400 мм [3] => 500 мм [4] => 600 мм ) [days] => [29,31,35,37,44] [material_price] => [4298,5573,6356,7288,9119] [work_price] => [4538,5251,5926,6733,7195] [image] => https://akademik-stroy.ru/wp-content/uploads/materials/gazosilikatnyj-blok.jpg [area_modifier] => 126.43 [parent_name] => Стены 1 этаж (несущие) [parent_id] => 3 [material_sum] => 684679 [work_sum] => 602426 [total_sum] => 1287105 [total_days] => 29 [display_material_sum] => 684 679 [display_work_sum] => 602 426 [display_total_sum] => 1 287 105 ) 1
1 287 105
Работа:602 426
Материалы:684 679
Дни:29
stdClass Object ( [id] => 178 [attribute_id] => 3 [name] => Керамзитобетонный блок [material_modifier] => 1 [work_modifier] => 1 [options] => Array ( [0] => 300 мм [1] => 375 мм [2] => 400 мм [3] => 500 мм [4] => 600 мм ) [days] => [23,23,24,25,28] [material_price] => [3641,4298,5693,7613,9612] [work_price] => [5737,5737,6903,7958,8901] [image] => https://akademik-stroy.ru/wp-content/uploads/materials/keramzitobetonnyj-blok.jpg [area_modifier] => 126.43 [parent_name] => Стены 1 этаж (несущие) [parent_id] => 3 [material_sum] => 580018 [work_sum] => 761595 [total_sum] => 1341613 [total_days] => 23 [display_material_sum] => 580 018 [display_work_sum] => 761 595 [display_total_sum] => 1 341 613 ) 1
1 341 613
Работа:761 595
Материалы:580 018
Дни:23
stdClass Object ( [id] => 179 [attribute_id] => 3 [name] => Деревянные [material_modifier] => 1 [work_modifier] => 1 [options] => Array ( [0] => 180 мм [1] => 220 мм [2] => 260 мм [3] => 320 мм ) [days] => [7,8,9,10] [material_price] => [7950,9458,11961,14472] [work_price] => [4037,4925,5812,7207] [image] => https://akademik-stroy.ru/wp-content/uploads/materials/derevyannye.jpg [area_modifier] => 126.43 [parent_name] => Стены 1 этаж (несущие) [parent_id] => 3 [material_sum] => 1266449 [work_sum] => 535918 [total_sum] => 1802367 [total_days] => 7 [display_material_sum] => 1 266 449 [display_work_sum] => 535 918 [display_total_sum] => 1 802 367 ) 1
1 802 367
Работа:535 918
Материалы:1 266 449
Дни:7
stdClass Object ( [id] => 181 [attribute_id] => 3 [name] => Камень [material_modifier] => 1 [work_modifier] => 1 [options] => Array ( [0] => 300 мм [1] => 400 мм [2] => 500 мм [3] => 600 мм ) [days] => [25,27,31,34] [material_price] => [5262,6844,8330,9815] [work_price] => [8331,9135,10427,11069] [image] => https://akademik-stroy.ru/wp-content/uploads/materials/kamen.jpg [area_modifier] => 126.43 [parent_name] => Стены 1 этаж (несущие) [parent_id] => 3 [material_sum] => 838246 [work_sum] => 1105953 [total_sum] => 1944199 [total_days] => 25 [display_material_sum] => 838 246 [display_work_sum] => 1 105 953 [display_total_sum] => 1 944 199 ) 1
1 944 199
Работа:1 105 953
Материалы:838 246
Дни:25
stdClass Object ( [id] => 182 [attribute_id] => 3 [name] => Каркасно-щитовые [material_modifier] => 1 [work_modifier] => 1 [options] => Array ( [0] => 150 мм [1] => 200 мм [2] => 250 мм [3] => 300 мм [4] => 350 мм [5] => 400 мм ) [days] => [15,16,17,18,19,20] [material_price] => [2379,2639,2898,3458,3601,4175] [work_price] => [2538,2820,3134,3483,4062,5642] [image] => https://akademik-stroy.ru/wp-content/uploads/materials/karkasno-shchitovye.jpg [area_modifier] => 126.43 [parent_name] => Стены 1 этаж (несущие) [parent_id] => 3 [material_sum] => 378979 [work_sum] => 336923 [total_sum] => 715902 [total_days] => 15 [display_material_sum] => 378 979 [display_work_sum] => 336 923 [display_total_sum] => 715 902 ) 1
715 902
Работа:336 923
Материалы:378 979
Дни:15
stdClass Object ( [id] => 183 [attribute_id] => 3 [name] => Рубленные [material_modifier] => 1 [work_modifier] => 1 [options] => Array ( [0] => 150 мм [1] => 200 мм [2] => 250 мм [3] => 300 мм [4] => 350 мм [5] => 400 мм ) [days] => [15,16,17,18,17,18] [material_price] => [35950,50267,60583,75900,80217,100533] [work_price] => [9612,12816,16020,19224,22428,25632] [image] => https://akademik-stroy.ru/wp-content/uploads/materials/rublennye.jpg [area_modifier] => 126.43 [parent_name] => Стены 1 этаж (несущие) [parent_id] => 3 [material_sum] => 5726900 [work_sum] => 1276007 [total_sum] => 7002907 [total_days] => 15 [display_material_sum] => 5 726 900 [display_work_sum] => 1 276 007 [display_total_sum] => 7 002 907 ) 1
7 002 907
Работа:1 276 007
Материалы:5 726 900
Дни:15
stdClass Object ( [id] => 185 [attribute_id] => 3 [name] => Теплоблок [material_modifier] => 1 [work_modifier] => 1 [options] => Array ( [0] => 300 мм (с облицовкой, не покрашенный) [1] => 400 мм (с облицовкой, не покрашенный) [2] => 300 мм (с облицовкой, покрашенный) [3] => 400 мм (с облицовкой, покрашенный) ) [days] => [15,16,15,16] [material_price] => [2888,3729,3957,4258] [work_price] => [2564,3229,2949,3713] [image] => https://akademik-stroy.ru/wp-content/uploads/materials/teploblok.jpg [area_modifier] => 126.43 [parent_name] => Стены 1 этаж (несущие) [parent_id] => 3 [material_sum] => 460064 [work_sum] => 340375 [total_sum] => 800439 [total_days] => 15 [display_material_sum] => 460 064 [display_work_sum] => 340 375 [display_total_sum] => 800 439 ) 1
800 439
Работа:340 375
Материалы:460 064
Дни:15
stdClass Object ( [id] => 186 [attribute_id] => 3 [name] => Арболитовые блоки [material_modifier] => 1 [work_modifier] => 1 [options] => Array ( [0] => 300 мм [1] => 400 мм [2] => 600 мм ) [days] => [19,22,27] [material_price] => [3210,4475,5852] [work_price] => [4214,4788,5866] [image] => https://akademik-stroy.ru/wp-content/uploads/materials/arbolitovye-bloki.png [area_modifier] => 126.43 [parent_name] => Стены 1 этаж (несущие) [parent_id] => 3 [material_sum] => 511359 [work_sum] => 559415 [total_sum] => 1070774 [total_days] => 19 [display_material_sum] => 511 359 [display_work_sum] => 559 415 [display_total_sum] => 1 070 774 ) 1
1 070 774
Работа:559 415
Материалы:511 359
Дни:19
stdClass Object ( [id] => 187 [attribute_id] => 3 [name] => Полистиролбетон [material_modifier] => 1 [work_modifier] => 1 [options] => Array ( [0] => 300 мм [1] => 400 мм [2] => 600 мм ) [days] => [29,31,35] [material_price] => [2798,4573,5256] [work_price] => [5038,5851,6426] [image] => https://akademik-stroy.ru/wp-content/uploads/materials/polistirolbeton.jpg [area_modifier] => 126.43 [parent_name] => Стены 1 этаж (несущие) [parent_id] => 3 [material_sum] => 445726 [work_sum] => 668802 [total_sum] => 1114528 [total_days] => 29 [display_material_sum] => 445 726 [display_work_sum] => 668 802 [display_total_sum] => 1 114 528 ) 1
1 114 528
Работа:668 802
Материалы:445 726
Дни:29
stdClass Object ( [id] => 188 [attribute_id] => 3 [name] => Шлакоблок [material_modifier] => 1 [work_modifier] => 1 [options] => Array ( [0] => 400 мм [1] => 600 мм ) [days] => [15,16] [material_price] => [2391,3471] [work_price] => [2642,3662] [image] => https://akademik-stroy.ru/wp-content/uploads/materials/shlakoblok.jpg [area_modifier] => 126.43 [parent_name] => Стены 1 этаж (несущие) [parent_id] => 3 [material_sum] => 380891 [work_sum] => 350729 [total_sum] => 731620 [total_days] => 15 [display_material_sum] => 380 891 [display_work_sum] => 350 729 [display_total_sum] => 731 620 ) 1
731 620
Работа:350 729
Материалы:380 891
Дни:15
stdClass Object ( [id] => 189 [attribute_id] => 3 [name] => Теплая керамика [material_modifier] => 1 [work_modifier] => 1 [options] => Array ( [0] => 380 мм [1] => 380 мм Thermo [2] => 440 мм [3] => 510 мм ) [days] => [23,23,24,25] [material_price] => [4510,5098,6093,8013] [work_price] => [4737,4937,5903,6958] [image] => https://akademik-stroy.ru/wp-content/uploads/materials/teplaya-keramika.jpg [area_modifier] => 126.43 [parent_name] => Стены 1 этаж (несущие) [parent_id] => 3 [material_sum] => 718451 [work_sum] => 628844 [total_sum] => 1347295 [total_days] => 23 [display_material_sum] => 718 451 [display_work_sum] => 628 844 [display_total_sum] => 1 347 295 ) 1
1 347 295
Работа:628 844
Материалы:718 451
Дни:23
stdClass Object ( [id] => 190 [attribute_id] => 3 [name] => Несъемная опалубка [material_modifier] => 1 [work_modifier] => 1 [options] => Array ( [0] => 200 мм [1] => 250 мм [2] => 300 мм [3] => 350 мм ) [days] => [15,17,19,21] [material_price] => [3302,3902,4108,5008] [work_price] => [2100,2100,2300,2534] [image] => https://akademik-stroy.ru/wp-content/uploads/materials/nesemnaya-opalubka.jpg [area_modifier] => 126.43 [parent_name] => Стены 1 этаж (несущие) [parent_id] => 3 [material_sum] => 526015 [work_sum] => 278778 [total_sum] => 804793 [total_days] => 15 [display_material_sum] => 526 015 [display_work_sum] => 278 778 [display_total_sum] => 804 793 ) 1
804 793
Работа:278 778
Материалы:526 015
Дни:15
stdClass Object ( [id] => 251 [attribute_id] => 3 [name] => Бревно [material_modifier] => 1 [work_modifier] => 1 [options] => Array ( [0] => 260 мм [1] => 320 мм [2] => 360 мм [3] => 400 мм [4] => 500 мм ) [days] => [7,8,9,10,11] [material_price] => [1874,24045,26930,30972,38825] [work_price] => [5046,6207,6952,7716,9723] [image] => https://akademik-stroy.ru/wp-content/uploads/materials/sruby.jpg [area_modifier] => 126.43 [parent_name] => Стены 1 этаж (несущие) [parent_id] => 3 [material_sum] => 298532 [work_sum] => 669864 [total_sum] => 968396 [total_days] => 7 [display_material_sum] => 298 532 [display_work_sum] => 669 864 [display_total_sum] => 968 396 ) 1
968 396
Работа:669 864
Материалы:298 532
Дни:7
Перекрытие первого этажа
stdClass Object ( [id] => 7 [attribute_id] => 4 [name] => Деревянные балки [material_modifier] => 1 [work_modifier] => 1 [options] => Array ( [0] => без утепления [1] => утепление 200 мм [2] => утепление 250 мм [3] => утепление 300 мм [4] => утепление 350 мм [5] => утепление 400 мм [6] => утепление 450 мм [7] => утепление 500 мм ) [days] => [8,9,9,9,11,12,13,14] [material_price] => [1634,2042,2344,2947,3149,3652,3354,3557] [work_price] => [1230,1339,1393,1426,1460,1513,1587,1620] [image] => https://akademik-stroy.ru/wp-content/uploads/materials/derevyannye-balki.png [area_modifier] => 126.43 [parent_name] => Перекрытие первого этажа [parent_id] => 4 [material_sum] => 260299 [work_sum] => 163284 [total_sum] => 423583 [total_days] => 8 [display_material_sum] => 260 299 [display_work_sum] => 163 284 [display_total_sum] => 423 583 ) 1
423 583
Работа:163 284
Материалы:260 299
Дни:8
stdClass Object ( [id] => 8 [attribute_id] => 4 [name] => Сборные ж/б плиты [material_modifier] => 1 [work_modifier] => 1 [options] => Array ( [0] => без утепления [1] => утепление 150 мм [2] => утепление 200 мм [3] => утепление 250 мм [4] => утепление 300 мм [5] => утепление 350 мм [6] => утепление 400 мм [7] => утепление 450 мм [8] => утепление 500 мм ) [days] => [13,15,15,15,15,15,15,15,15] [material_price] => [3067,5577,5928,6679,7730,8782,9833,10884,11935] [work_price] => [1520,1956,2102,2247,2392,2537,2684,2829,2974] [image] => https://akademik-stroy.ru/wp-content/uploads/materials/sbornye-zh-b-plity-2.jpg [area_modifier] => 126.43 [parent_name] => Перекрытие первого этажа [parent_id] => 4 [material_sum] => 488579 [work_sum] => 201782 [total_sum] => 690361 [total_days] => 13 [display_material_sum] => 488 579 [display_work_sum] => 201 782 [display_total_sum] => 690 361 ) 1
690 361
Работа:201 782
Материалы:488 579
Дни:13
stdClass Object ( [id] => 89 [attribute_id] => 4 [name] => Монолитная ж/б плита [material_modifier] => 1 [work_modifier] => 1 [options] => Array ( [0] => без утепления [1] => утепление 150 мм [2] => утепление 200 мм [3] => утепление 250 мм [4] => утепление 300 мм [5] => утепление 350 мм [6] => утепление 400 мм [7] => утепление 450 мм [8] => утепление 500 мм ) [days] => [18,20,20,20,20,20,20,20,20] [material_price] => [4837,6572,7224,7375,79426,8177,8728,9180,10031] [work_price] => [3348,3921,4112,4302,4493,4684,4875,5066,5256] [image] => https://akademik-stroy.ru/wp-content/uploads/materials/monolitnaya-zh-b-plita-2.jpg [area_modifier] => 126.43 [parent_name] => Перекрытие первого этажа [parent_id] => 4 [material_sum] => 770543 [work_sum] => 444452 [total_sum] => 1214995 [total_days] => 18 [display_material_sum] => 770 543 [display_work_sum] => 444 452 [display_total_sum] => 1 214 995 ) 1
1 214 995
Работа:444 452
Материалы:770 543
Дни:18
Стены 2 этаж (несущие)
stdClass Object ( [id] => 10 [attribute_id] => 5 [name] => Пеноблок [material_modifier] => 1 [work_modifier] => 1 [options] => Array ( [0] => 300 мм [1] => 400 мм [2] => 500 мм [3] => 600 мм ) [days] => [29,31,34,39] [material_price] => [3000,4000,4500,4937] [work_price] => [5033,5805,6400,8710] [image] => https://akademik-stroy.ru/wp-content/uploads/materials/penoblok.jpg [area_modifier] => 88.97 [parent_name] => Стены 2 этаж (несущие) [parent_id] => 5 [material_sum] => 336307 [work_sum] => 470175 [total_sum] => 806482 [total_days] => 29 [display_material_sum] => 336 307 [display_work_sum] => 470 175 [display_total_sum] => 806 482 ) 1
806 482
Работа:470 175
Материалы:336 307
Дни:29
stdClass Object ( [id] => 90 [attribute_id] => 5 [name] => Керамический блок [material_modifier] => 1 [work_modifier] => 1 [options] => Array ( [0] => 380 мм [1] => 380 мм Thermo [2] => 440 мм [3] => 510 мм ) [days] => [23,23,24,25] [material_price] => [4510,5098,6093,8013] [work_price] => [4737,4937,5903,6958] [image] => https://akademik-stroy.ru/wp-content/uploads/materials/keramicheskij-blok.jpg [area_modifier] => 88.97 [parent_name] => Стены 2 этаж (несущие) [parent_id] => 5 [material_sum] => 505581 [work_sum] => 442523 [total_sum] => 948104 [total_days] => 23 [display_material_sum] => 505 581 [display_work_sum] => 442 523 [display_total_sum] => 948 104 ) 1
948 104
Работа:442 523
Материалы:505 581
Дни:23
stdClass Object ( [id] => 91 [attribute_id] => 5 [name] => Кирпич [material_modifier] => 1 [work_modifier] => 1 [options] => Array ( [0] => Кирпич 250 мм [1] => Кирпич 380 мм [2] => Кирпич 510 мм [3] => Кирпич 640 мм [4] => Кирпич 770 мм ) [days] => [30,30,31,33,36] [material_price] => [5500,7142,9206,10171,12235] [work_price] => [8736,10041,12018,15240,18462] [image] => https://akademik-stroy.ru/wp-content/uploads/materials/kirpich.jpg [area_modifier] => 88.97 [parent_name] => Стены 2 этаж (несущие) [parent_id] => 5 [material_sum] => 616562 [work_sum] => 816104 [total_sum] => 1432666 [total_days] => 30 [display_material_sum] => 616 562 [display_work_sum] => 816 104 [display_total_sum] => 1 432 666 ) 1
1 432 666
Работа:816 104
Материалы:616 562
Дни:30
stdClass Object ( [id] => 92 [attribute_id] => 5 [name] => Монолитные [material_modifier] => 1 [work_modifier] => 1 [options] => Array ( [0] => 150 мм [1] => 200 мм [2] => 250 мм [3] => 300 мм [4] => 350 мм [5] => 400 мм ) [days] => [45,46,47,49,50,53] [material_price] => [6545,7876,10175,12011,13908,15204] [work_price] => [5106,6444,7698,8552,9807,11461] [image] => https://akademik-stroy.ru/wp-content/uploads/materials/monolitnye.jpg [area_modifier] => 88.97 [parent_name] => Стены 2 этаж (несущие) [parent_id] => 5 [material_sum] => 733709 [work_sum] => 476995 [total_sum] => 1210704 [total_days] => 45 [display_material_sum] => 733 709 [display_work_sum] => 476 995 [display_total_sum] => 1 210 704 ) 1
1 210 704
Работа:476 995
Материалы:733 709
Дни:45
stdClass Object ( [id] => 93 [attribute_id] => 5 [name] => Клееный брус [material_modifier] => 1 [work_modifier] => 1 [options] => Array ( [0] => 160 мм [1] => 175 мм [2] => 200 мм [3] => 215 мм [4] => 240 мм [5] => 270 мм [6] => 282 мм ) [days] => [24,28,32,37,40,42,48] [material_price] => [16975,18773,19950,20545,21599,22159,23275] [work_price] => [4806,5287,5815,6397,7036,7740,8514] [image] => https://akademik-stroy.ru/wp-content/uploads/materials/kleenyj-brus.jpg [area_modifier] => 88.97 [parent_name] => Стены 2 этаж (несущие) [parent_id] => 5 [material_sum] => 1902935 [work_sum] => 448969 [total_sum] => 2351904 [total_days] => 24 [display_material_sum] => 1 902 935 [display_work_sum] => 448 969 [display_total_sum] => 2 351 904 ) 1
2 351 904
Работа:448 969
Материалы:1 902 935
Дни:24
stdClass Object ( [id] => 94 [attribute_id] => 5 [name] => Каркасные [material_modifier] => 1 [work_modifier] => 1 [options] => Array ( [0] => 150 мм [1] => 200 мм [2] => 250 мм [3] => 300 мм ) [days] => [15,16,17,18] [material_price] => [2379,2639,2898,3258] [work_price] => [2418,2686,2985,3716] [image] => https://akademik-stroy.ru/wp-content/uploads/materials/karkasnye.jpg [area_modifier] => 88.97 [parent_name] => Стены 2 этаж (несущие) [parent_id] => 5 [material_sum] => 266691 [work_sum] => 225886 [total_sum] => 492577 [total_days] => 15 [display_material_sum] => 266 691 [display_work_sum] => 225 886 [display_total_sum] => 492 577 ) 1
492 577
Работа:225 886
Материалы:266 691
Дни:15
stdClass Object ( [id] => 95 [attribute_id] => 5 [name] => СИП-панели [material_modifier] => 1 [work_modifier] => 1 [options] => Array ( [0] => 120 мм [1] => 170 мм [2] => 220 мм ) [days] => [7,7,7] [material_price] => [1210,1856,2292] [work_price] => [1410,1551,1706] [image] => https://akademik-stroy.ru/wp-content/uploads/materials/sip-paneli.jpg [area_modifier] => 88.97 [parent_name] => Стены 2 этаж (несущие) [parent_id] => 5 [material_sum] => 135644 [work_sum] => 131720 [total_sum] => 267364 [total_days] => 7 [display_material_sum] => 135 644 [display_work_sum] => 131 720 [display_total_sum] => 267 364 ) 1
267 364
Работа:131 720
Материалы:135 644
Дни:7
stdClass Object ( [id] => 96 [attribute_id] => 5 [name] => Сухой брус [material_modifier] => 1 [work_modifier] => 1 [options] => Array ( [0] => 150 мм [1] => 180 мм [2] => 200 мм ) [days] => [7,8,9] [material_price] => [6010,7190,8709] [work_price] => [3204,3845,4229] [image] => https://akademik-stroy.ru/wp-content/uploads/materials/suhoj-brus.jpg [area_modifier] => 88.97 [parent_name] => Стены 2 этаж (несущие) [parent_id] => 5 [material_sum] => 673734 [work_sum] => 299313 [total_sum] => 973047 [total_days] => 7 [display_material_sum] => 673 734 [display_work_sum] => 299 313 [display_total_sum] => 973 047 ) 1
973 047
Работа:299 313
Материалы:673 734
Дни:7
stdClass Object ( [id] => 97 [attribute_id] => 5 [name] => Профилированный брус [material_modifier] => 1 [work_modifier] => 1 [options] => Array ( [0] => 150 мм [1] => 180 мм [2] => 200 мм ) [days] => [7,8,9] [material_price] => [8190,9228,10051] [work_price] => [3845,4614,5075] [image] => https://akademik-stroy.ru/wp-content/uploads/materials/profilirovannyj-brus.jpg [area_modifier] => 88.97 [parent_name] => Стены 2 этаж (несущие) [parent_id] => 5 [material_sum] => 918117 [work_sum] => 359194 [total_sum] => 1277311 [total_days] => 7 [display_material_sum] => 918 117 [display_work_sum] => 359 194 [display_total_sum] => 1 277 311 ) 1
1 277 311
Работа:359 194
Материалы:918 117
Дни:7
stdClass Object ( [id] => 98 [attribute_id] => 5 [name] => Оцилиндрованное бревно [material_modifier] => 1 [work_modifier] => 1 [options] => Array ( [0] => 180 мм [1] => 220 мм [2] => 260 мм [3] => 320 мм ) [days] => [7,8,9,10] [material_price] => [75190,9532,10868,13116] [work_price] => [3845,4691,5535,6863] [image] => https://akademik-stroy.ru/wp-content/uploads/materials/ocilindrovannoe-brevno-1.jpg [area_modifier] => 88.97 [parent_name] => Стены 2 этаж (несущие) [parent_id] => 5 [material_sum] => 8428964 [work_sum] => 359194 [total_sum] => 8788158 [total_days] => 7 [display_material_sum] => 8 428 964 [display_work_sum] => 359 194 [display_total_sum] => 8 788 158 ) 1
8 788 158
Работа:359 194
Материалы:8 428 964
Дни:7
stdClass Object ( [id] => 99 [attribute_id] => 5 [name] => Срубы [material_modifier] => 1 [work_modifier] => 1 [options] => Array ( [0] => 260 мм [1] => 320 мм [2] => 360 мм [3] => 400 мм [4] => 500 мм ) [days] => [7,8,9,10,11] [material_price] => [16175,23709,26314,29069,32167] [work_price] => [4806,5911,6621,7349,9260] [image] => https://akademik-stroy.ru/wp-content/uploads/materials/suhoj-brus.jpg [area_modifier] => 88.97 [parent_name] => Стены 2 этаж (несущие) [parent_id] => 5 [material_sum] => 1813253 [work_sum] => 448969 [total_sum] => 2262222 [total_days] => 7 [display_material_sum] => 1 813 253 [display_work_sum] => 448 969 [display_total_sum] => 2 262 222 ) 1
2 262 222
Работа:448 969
Материалы:1 813 253
Дни:7
stdClass Object ( [id] => 194 [attribute_id] => 5 [name] => Брус [material_modifier] => 1 [work_modifier] => 1 [options] => Array ( [0] => 150 мм [1] => 180 мм [2] => 200 мм ) [days] => [10,13,15] [material_price] => [5127,6152,7367] [work_price] => [1602,1922,2115] [image] => https://akademik-stroy.ru/wp-content/uploads/materials/brus.jpg [area_modifier] => 88.97 [parent_name] => Стены 2 этаж (несущие) [parent_id] => 5 [material_sum] => 574748 [work_sum] => 149656 [total_sum] => 724404 [total_days] => 10 [display_material_sum] => 574 748 [display_work_sum] => 149 656 [display_total_sum] => 724 404 ) 1
724 404
Работа:149 656
Материалы:574 748
Дни:10
stdClass Object ( [id] => 195 [attribute_id] => 5 [name] => Газобетон [material_modifier] => 1 [work_modifier] => 1 [options] => Array ( [0] => 300 мм [1] => 375 мм [2] => 400 мм [3] => 500 мм [4] => 600 мм ) [days] => [29,31,35,37,44] [material_price] => [4298,5573,6356,7288,9119] [work_price] => [4538,5251,5926,6733,7195] [image] => https://akademik-stroy.ru/wp-content/uploads/materials/gazobeton.jpg [area_modifier] => 88.97 [parent_name] => Стены 2 этаж (несущие) [parent_id] => 5 [material_sum] => 481815 [work_sum] => 423933 [total_sum] => 905748 [total_days] => 29 [display_material_sum] => 481 815 [display_work_sum] => 423 933 [display_total_sum] => 905 748 ) 1
905 748
Работа:423 933
Материалы:481 815
Дни:29
stdClass Object ( [id] => 196 [attribute_id] => 5 [name] => Блок [material_modifier] => 1 [work_modifier] => 1 [options] => Array ( [0] => 300 мм [1] => 375 мм [2] => 400 мм [3] => 500 мм [4] => 600 мм ) [days] => [29,31,35,37,44] [material_price] => [2698,3973,4356,6588,7119] [work_price] => [5038,5851,6426,8733,9195] [image] => https://akademik-stroy.ru/wp-content/uploads/materials/blok.jpg [area_modifier] => 88.97 [parent_name] => Стены 2 этаж (несущие) [parent_id] => 5 [material_sum] => 302452 [work_sum] => 470642 [total_sum] => 773094 [total_days] => 29 [display_material_sum] => 302 452 [display_work_sum] => 470 642 [display_total_sum] => 773 094 ) 1
773 094
Работа:470 642
Материалы:302 452
Дни:29
stdClass Object ( [id] => 197 [attribute_id] => 5 [name] => Газосиликатный блок [material_modifier] => 1 [work_modifier] => 1 [options] => Array ( [0] => 300 мм [1] => 375 мм [2] => 400 мм [3] => 500 мм [4] => 600 мм ) [days] => [29,31,35,37,44] [material_price] => [4298,5573,6356,7288,9119] [work_price] => [4538,5251,5926,6733,7195] [image] => https://akademik-stroy.ru/wp-content/uploads/materials/gazosilikatnyj-blok.jpg [area_modifier] => 88.97 [parent_name] => Стены 2 этаж (несущие) [parent_id] => 5 [material_sum] => 481815 [work_sum] => 423933 [total_sum] => 905748 [total_days] => 29 [display_material_sum] => 481 815 [display_work_sum] => 423 933 [display_total_sum] => 905 748 ) 1
905 748
Работа:423 933
Материалы:481 815
Дни:29
stdClass Object ( [id] => 198 [attribute_id] => 5 [name] => Керамзитобетонный блок [material_modifier] => 1 [work_modifier] => 1 [options] => Array ( [0] => 300 мм [1] => 375 мм [2] => 400 мм [3] => 500 мм [4] => 600 мм ) [days] => [23,23,24,25,28] [material_price] => [3641,4298,5693,7613,9612] [work_price] => [5737,5737,6903,7958,8901] [image] => https://akademik-stroy.ru/wp-content/uploads/materials/keramzitobetonnyj-blok.jpg [area_modifier] => 88.97 [parent_name] => Стены 2 этаж (несущие) [parent_id] => 5 [material_sum] => 408164 [work_sum] => 535942 [total_sum] => 944106 [total_days] => 23 [display_material_sum] => 408 164 [display_work_sum] => 535 942 [display_total_sum] => 944 106 ) 1
944 106
Работа:535 942
Материалы:408 164
Дни:23
stdClass Object ( [id] => 199 [attribute_id] => 5 [name] => Деревянные [material_modifier] => 1 [work_modifier] => 1 [options] => Array ( [0] => 180 мм [1] => 220 мм [2] => 260 мм [3] => 320 мм ) [days] => [7,8,9,10] [material_price] => [7950,9458,11961,14472] [work_price] => [4037,4925,5812,7207] [image] => https://akademik-stroy.ru/wp-content/uploads/materials/derevyannye.jpg [area_modifier] => 88.97 [parent_name] => Стены 2 этаж (несущие) [parent_id] => 5 [material_sum] => 891212 [work_sum] => 377130 [total_sum] => 1268342 [total_days] => 7 [display_material_sum] => 891 212 [display_work_sum] => 377 130 [display_total_sum] => 1 268 342 ) 1
1 268 342
Работа:377 130
Материалы:891 212
Дни:7
stdClass Object ( [id] => 200 [attribute_id] => 5 [name] => Камень [material_modifier] => 1 [work_modifier] => 1 [options] => Array ( [0] => 300 мм [1] => 400 мм [2] => 500 мм [3] => 600 мм ) [days] => [25,27,31,34] [material_price] => [5262,6844,8330,9815] [work_price] => [8331,9135,10427,11069] [image] => https://akademik-stroy.ru/wp-content/uploads/materials/kamen.jpg [area_modifier] => 88.97 [parent_name] => Стены 2 этаж (несущие) [parent_id] => 5 [material_sum] => 589882 [work_sum] => 778270 [total_sum] => 1368152 [total_days] => 25 [display_material_sum] => 589 882 [display_work_sum] => 778 270 [display_total_sum] => 1 368 152 ) 1
1 368 152
Работа:778 270
Материалы:589 882
Дни:25
stdClass Object ( [id] => 201 [attribute_id] => 5 [name] => Каркасно-щитовые [material_modifier] => 1 [work_modifier] => 1 [options] => Array ( [0] => 150 мм [1] => 200 мм [2] => 250 мм [3] => 300 мм [4] => 350 мм [5] => 400 мм ) [days] => [15,16,17,18,19,20] [material_price] => [2379,2639,2898,3458,3601,4175] [work_price] => [2538,2820,3134,3483,4062,5642] [image] => https://akademik-stroy.ru/wp-content/uploads/materials/karkasno-shchitovye.jpg [area_modifier] => 88.97 [parent_name] => Стены 2 этаж (несущие) [parent_id] => 5 [material_sum] => 266691 [work_sum] => 237096 [total_sum] => 503787 [total_days] => 15 [display_material_sum] => 266 691 [display_work_sum] => 237 096 [display_total_sum] => 503 787 ) 1
503 787
Работа:237 096
Материалы:266 691
Дни:15
stdClass Object ( [id] => 202 [attribute_id] => 5 [name] => Рубленные [material_modifier] => 1 [work_modifier] => 1 [options] => Array ( [0] => 150 мм [1] => 200 мм [2] => 250 мм [3] => 300 мм [4] => 350 мм [5] => 400 мм ) [days] => [15,16,17,18,17,18] [material_price] => [35950,50267,60583,75900,80217,100533] [work_price] => [9612,12816,16020,19224,22428,25632] [image] => https://akademik-stroy.ru/wp-content/uploads/materials/rublennye.jpg [area_modifier] => 88.97 [parent_name] => Стены 2 этаж (несущие) [parent_id] => 5 [material_sum] => 4030074 [work_sum] => 897939 [total_sum] => 4928013 [total_days] => 15 [display_material_sum] => 4 030 074 [display_work_sum] => 897 939 [display_total_sum] => 4 928 013 ) 1
4 928 013
Работа:897 939
Материалы:4 030 074
Дни:15
stdClass Object ( [id] => 203 [attribute_id] => 5 [name] => Теплоблок [material_modifier] => 1 [work_modifier] => 1 [options] => Array ( [0] => 300 мм (с облицовкой, не покрашенный) [1] => 400 мм (с облицовкой, не покрашенный) [2] => 300 мм (с облицовкой, покрашенный) [3] => 400 мм (с облицовкой, покрашенный) ) [days] => [15,16,15,16] [material_price] => [2888,3729,3957,4258] [work_price] => [2564,3229,2949,3713] [image] => https://akademik-stroy.ru/wp-content/uploads/materials/teploblok.jpg [area_modifier] => 88.97 [parent_name] => Стены 2 этаж (несущие) [parent_id] => 5 [material_sum] => 323751 [work_sum] => 239525 [total_sum] => 563276 [total_days] => 15 [display_material_sum] => 323 751 [display_work_sum] => 239 525 [display_total_sum] => 563 276 ) 1
563 276
Работа:239 525
Материалы:323 751
Дни:15
stdClass Object ( [id] => 204 [attribute_id] => 5 [name] => Арболитовые блоки [material_modifier] => 1 [work_modifier] => 1 [options] => Array ( [0] => 300 мм [1] => 400 мм [2] => 600 мм ) [days] => [19,22,27] [material_price] => [3210,4475,5852] [work_price] => [4214,4788,5866] [image] => https://akademik-stroy.ru/wp-content/uploads/materials/arbolitovye-bloki.png [area_modifier] => 88.97 [parent_name] => Стены 2 этаж (несущие) [parent_id] => 5 [material_sum] => 359848 [work_sum] => 393666 [total_sum] => 753514 [total_days] => 19 [display_material_sum] => 359 848 [display_work_sum] => 393 666 [display_total_sum] => 753 514 ) 1
753 514
Работа:393 666
Материалы:359 848
Дни:19
stdClass Object ( [id] => 205 [attribute_id] => 5 [name] => Полистиролбетон [material_modifier] => 1 [work_modifier] => 1 [options] => Array ( [0] => 300 мм [1] => 400 мм [2] => 600 мм ) [days] => [29,31,35] [material_price] => [2798,4573,5256] [work_price] => [5038,5851,6426] [image] => https://akademik-stroy.ru/wp-content/uploads/materials/polistirolbeton.jpg [area_modifier] => 88.97 [parent_name] => Стены 2 этаж (несущие) [parent_id] => 5 [material_sum] => 313662 [work_sum] => 470642 [total_sum] => 784304 [total_days] => 29 [display_material_sum] => 313 662 [display_work_sum] => 470 642 [display_total_sum] => 784 304 ) 1
784 304
Работа:470 642
Материалы:313 662
Дни:29
stdClass Object ( [id] => 206 [attribute_id] => 5 [name] => Шлакоблок [material_modifier] => 1 [work_modifier] => 1 [options] => Array ( [0] => 400 мм [1] => 600 мм ) [days] => [15,16] [material_price] => [2391,3471] [work_price] => [2642,3662] [image] => https://akademik-stroy.ru/wp-content/uploads/materials/shlakoblok.jpg [area_modifier] => 88.97 [parent_name] => Стены 2 этаж (несущие) [parent_id] => 5 [material_sum] => 268036 [work_sum] => 246812 [total_sum] => 514848 [total_days] => 15 [display_material_sum] => 268 036 [display_work_sum] => 246 812 [display_total_sum] => 514 848 ) 1
514 848
Работа:246 812
Материалы:268 036
Дни:15
stdClass Object ( [id] => 245 [attribute_id] => 5 [name] => Теплая керамика [material_modifier] => 1 [work_modifier] => 1 [options] => Array ( [0] => 380 мм [1] => 380 мм Thermo [2] => 440 мм [3] => 510 мм ) [days] => [10,10,11,12] [material_price] => [4510,5098,6093,8013] [work_price] => [4737,4937,5903,6958] [image] => https://akademik-stroy.ru/wp-content/uploads/materials/teplaya-keramika.jpg [area_modifier] => 88.97 [parent_name] => Стены 2 этаж (несущие) [parent_id] => 5 [material_sum] => 505581 [work_sum] => 442523 [total_sum] => 948104 [total_days] => 10 [display_material_sum] => 505 581 [display_work_sum] => 442 523 [display_total_sum] => 948 104 ) 1
948 104
Работа:442 523
Материалы:505 581
Дни:10
stdClass Object ( [id] => 246 [attribute_id] => 5 [name] => Несъемная опалубка [material_modifier] => 1 [work_modifier] => 1 [options] => Array ( [0] => 380 мм [1] => 380 мм Thermo [2] => 440 мм [3] => 510 мм ) [days] => [10,10,11,12] [material_price] => [3302,3902,4108,5008] [work_price] => [2100,2100,2300,2534] [image] => https://akademik-stroy.ru/wp-content/uploads/materials/nesemnaya-opalubka.jpg [area_modifier] => 88.97 [parent_name] => Стены 2 этаж (несущие) [parent_id] => 5 [material_sum] => 370161 [work_sum] => 196179 [total_sum] => 566340 [total_days] => 10 [display_material_sum] => 370 161 [display_work_sum] => 196 179 [display_total_sum] => 566 340 ) 1
566 340
Работа:196 179
Материалы:370 161
Дни:10
stdClass Object ( [id] => 254 [attribute_id] => 5 [name] => Бревно [material_modifier] => 1 [work_modifier] => 1 [options] => Array ( [0] => 260 мм [1] => 320 мм [2] => 360 мм [3] => 400 мм [4] => 500 мм ) [days] => [7,8,9,10,11] [material_price] => [1874,24045,26930,30972,38825] [work_price] => [5046,6207,6952,7716,9723] [image] => https://akademik-stroy.ru/wp-content/uploads/materials/sruby.jpg [area_modifier] => 88.97 [parent_name] => Стены 2 этаж (несущие) [parent_id] => 5 [material_sum] => 210080 [work_sum] => 471390 [total_sum] => 681470 [total_days] => 7 [display_material_sum] => 210 080 [display_work_sum] => 471 390 [display_total_sum] => 681 470 ) 1
681 470
Работа:471 390
Материалы:210 080
Дни:7
Крыша (Скатная)
stdClass Object ( [id] => 164 [attribute_id] => 37 [name] => Металлочерепица [material_modifier] => 1 [work_modifier] => 1 [options] => Array ( ) [days] => [20] [material_price] => [6112] [work_price] => [5726] [image] => https://akademik-stroy.ru/wp-content/uploads/materials/metallocherepica.jpg [area_modifier] => 126.43 [parent_name] => Крыша (Скатная) [parent_id] => 37 [material_sum] => 973653 [work_sum] => 760135 [total_sum] => 1733788 [total_days] => 20 [display_material_sum] => 973 653 [display_work_sum] => 760 135 [display_total_sum] => 1 733 788 ) 1
1 733 788
Работа:760 135
Материалы:973 653
Дни:20
stdClass Object ( [id] => 165 [attribute_id] => 37 [name] => Гибкая черепица [material_modifier] => 1 [work_modifier] => 1 [options] => Array ( ) [days] => [20] [material_price] => [6980] [work_price] => [5950] [image] => https://akademik-stroy.ru/wp-content/uploads/materials/gibkaya-cherepica.jpg [area_modifier] => 126.43 [parent_name] => Крыша (Скатная) [parent_id] => 37 [material_sum] => 1111927 [work_sum] => 789871 [total_sum] => 1901798 [total_days] => 20 [display_material_sum] => 1 111 927 [display_work_sum] => 789 871 [display_total_sum] => 1 901 798 ) 1
1 901 798
Работа:789 871
Материалы:1 111 927
Дни:20
stdClass Object ( [id] => 166 [attribute_id] => 37 [name] => Цементно-песчаная черепица [material_modifier] => 1 [work_modifier] => 1 [options] => Array ( ) [days] => [20] [material_price] => [10560] [work_price] => [9456] [image] => https://akademik-stroy.ru/wp-content/uploads/materials/cementno-peschanaya-cherepica.jpg [area_modifier] => 126.43 [parent_name] => Крыша (Скатная) [parent_id] => 37 [material_sum] => 1682227 [work_sum] => 1255298 [total_sum] => 2937525 [total_days] => 20 [display_material_sum] => 1 682 227 [display_work_sum] => 1 255 298 [display_total_sum] => 2 937 525 ) 1
2 937 525
Работа:1 255 298
Материалы:1 682 227
Дни:20
stdClass Object ( [id] => 167 [attribute_id] => 37 [name] => Композитная черепица [material_modifier] => 1 [work_modifier] => 1 [options] => Array ( ) [days] => [20] [material_price] => [9506] [work_price] => [8905] [image] => https://akademik-stroy.ru/wp-content/uploads/materials/kompozitnaya-cherepica.jpg [area_modifier] => 126.43 [parent_name] => Крыша (Скатная) [parent_id] => 37 [material_sum] => 1514323 [work_sum] => 1182152 [total_sum] => 2696475 [total_days] => 20 [display_material_sum] => 1 514 323 [display_work_sum] => 1 182 152 [display_total_sum] => 2 696 475 ) 1
2 696 475
Работа:1 182 152
Материалы:1 514 323
Дни:20
stdClass Object ( [id] => 168 [attribute_id] => 37 [name] => Керамическая черепица [material_modifier] => 1 [work_modifier] => 1 [options] => Array ( ) [days] => [20] [material_price] => [12750] [work_price] => [9456] [image] => https://akademik-stroy.ru/wp-content/uploads/materials/keramicheskaya-cherepica.jpg [area_modifier] => 126.43 [parent_name] => Крыша (Скатная) [parent_id] => 37 [material_sum] => 2031098 [work_sum] => 1255298 [total_sum] => 3286396 [total_days] => 20 [display_material_sum] => 2 031 098 [display_work_sum] => 1 255 298 [display_total_sum] => 3 286 396 ) 1
3 286 396
Работа:1 255 298
Материалы:2 031 098
Дни:20
stdClass Object ( [id] => 169 [attribute_id] => 37 [name] => Металлическая фальцевая [material_modifier] => 1 [work_modifier] => 1 [options] => Array ( ) [days] => [20] [material_price] => [8550] [work_price] => [8190] [image] => https://akademik-stroy.ru/wp-content/uploads/materials/metallicheskaya-falcevaya.jpg [area_modifier] => 126.43 [parent_name] => Крыша (Скатная) [parent_id] => 37 [material_sum] => 1362030 [work_sum] => 1087235 [total_sum] => 2449265 [total_days] => 20 [display_material_sum] => 1 362 030 [display_work_sum] => 1 087 235 [display_total_sum] => 2 449 265 ) 1
2 449 265
Работа:1 087 235
Материалы:1 362 030
Дни:20
stdClass Object ( [id] => 170 [attribute_id] => 37 [name] => Медная фальцевая [material_modifier] => 1 [work_modifier] => 1 [options] => Array ( ) [days] => [20] [material_price] => [20450] [work_price] => [16750] [image] => https://akademik-stroy.ru/wp-content/uploads/materials/mednaya-falcevaya.jpg [area_modifier] => 126.43 [parent_name] => Крыша (Скатная) [parent_id] => 37 [material_sum] => 3257722 [work_sum] => 2223588 [total_sum] => 5481310 [total_days] => 20 [display_material_sum] => 3 257 722 [display_work_sum] => 2 223 588 [display_total_sum] => 5 481 310 ) 1
5 481 310
Работа:2 223 588
Материалы:3 257 722
Дни:20
stdClass Object ( [id] => 171 [attribute_id] => 37 [name] => Зеленая кровля [material_modifier] => 1 [work_modifier] => 1 [options] => Array ( ) [days] => [20] [material_price] => [19850] [work_price] => [16780] [image] => https://akademik-stroy.ru/wp-content/uploads/materials/zelenaya-krovlya.jpg [area_modifier] => 126.43 [parent_name] => Крыша (Скатная) [parent_id] => 37 [material_sum] => 3162141 [work_sum] => 2227570 [total_sum] => 5389711 [total_days] => 20 [display_material_sum] => 3 162 141 [display_work_sum] => 2 227 570 [display_total_sum] => 5 389 711 ) 1
5 389 711
Работа:2 227 570
Материалы:3 162 141
Дни:20
stdClass Object ( [id] => 172 [attribute_id] => 37 [name] => Профлист [material_modifier] => 1 [work_modifier] => 1 [options] => Array ( ) [days] => [20] [material_price] => [3450] [work_price] => [3750] [image] => https://akademik-stroy.ru/wp-content/uploads/materials/proflist.jpg [area_modifier] => 126.43 [parent_name] => Крыша (Скатная) [parent_id] => 37 [material_sum] => 549591 [work_sum] => 497818 [total_sum] => 1047409 [total_days] => 20 [display_material_sum] => 549 591 [display_work_sum] => 497 818 [display_total_sum] => 1 047 409 ) 1
1 047 409
Работа:497 818
Материалы:549 591
Дни:20
Окна
stdClass Object ( [id] => 51 [attribute_id] => 26 [name] => Есть [material_modifier] => 1 [work_modifier] => 1 [options] => Array ( [0] => Профиль 58 мм, 3-камерный, стеклопакет 2-камерный до 32 мм [1] => Профиль 60 мм, 4-камерный, стеклопакет 2-камерный до 32 мм [2] => Профиль 70 мм, 5-камерный, стеклопакет 2-камерный до 40 мм [3] => Профиль 72 мм, 5-камерный, стеклопакет 2-камерный до 40 мм [4] => Алюминиевые окна Alutech профиль 72 мм, стеклопакет 2-камерный ) [days] => [3,3,3,3,3] [material_price] => [1339,2124,2867,3023,29596] [work_price] => [635,647,659,668,2579] [image] => https://akademik-stroy.ru/wp-content/uploads/materials/okna.jpg [area_modifier] => 174.8 [parent_name] => Окна [parent_id] => 26 [material_sum] => 294912 [work_sum] => 116548 [total_sum] => 411460 [total_days] => 3 [display_material_sum] => 294 912 [display_work_sum] => 116 548 [display_total_sum] => 411 460 ) 1
411 460
Работа:116 548
Материалы:294 912
Дни:3
stdClass Object ( [id] => 52 [attribute_id] => 26 [name] => Нет [material_modifier] => 2 [work_modifier] => 1 [options] => [days] => null [material_price] => null [work_price] => null [image] => https://akademik-stroy.ru/wp-content/uploads/materials/okna.jpg [area_modifier] => 174.8 [parent_name] => Окна [parent_id] => 26 [material_sum] => 0 [work_sum] => 0 [total_sum] => 0 [total_days] => 0 [display_material_sum] => 0 [display_work_sum] => 0 [display_total_sum] => 0 ) 1
0
Работа:0
Материалы:0
Дни:0
Двери входные
stdClass Object ( [id] => 53 [attribute_id] => 27 [name] => Есть [material_modifier] => 1 [work_modifier] => 1 [options] => Array ( ) [days] => [1] [material_price] => [10000] [work_price] => [5500] [image] => https://akademik-stroy.ru/wp-content/uploads/materials/dveri.jpg [area_modifier] => 1 [parent_name] => Двери входные [parent_id] => 27 [material_sum] => 12600 [work_sum] => 5775 [total_sum] => 18375 [total_days] => 1 [display_material_sum] => 12 600 [display_work_sum] => 5 775 [display_total_sum] => 18 375 ) 1
18 375
Работа:5 775
Материалы:12 600
Дни:1
stdClass Object ( [id] => 54 [attribute_id] => 27 [name] => Нет [material_modifier] => 1 [work_modifier] => 1 [options] => Array ( ) [days] => [0] [material_price] => [0] [work_price] => [0] [image] => https://akademik-stroy.ru/wp-content/uploads/materials/dveri.jpg [area_modifier] => 1 [parent_name] => Двери входные [parent_id] => 27 [material_sum] => 0 [work_sum] => 0 [total_sum] => 0 [total_days] => 0 [display_material_sum] => 0 [display_work_sum] => 0 [display_total_sum] => 0 ) 1
0
Работа:0
Материалы:0
Дни:0
Утепление кровли (Мансарда)
stdClass Object ( [id] => 25 [attribute_id] => 13 [name] => Нет [material_modifier] => 1 [work_modifier] => 1 [options] => Array ( ) [days] => [0] [material_price] => [0] [work_price] => [0] [image] => https://akademik-stroy.ru/wp-content/uploads/materials/mineralovata-krov.jpg [area_modifier] => 126.43 [parent_name] => Утепление кровли (Мансарда) [parent_id] => 13 [material_sum] => 0 [work_sum] => 0 [total_sum] => 0 [total_days] => 0 [display_material_sum] => 0 [display_work_sum] => 0 [display_total_sum] => 0 ) 1
0
Работа:0
Материалы:0
Дни:0
stdClass Object ( [id] => 26 [attribute_id] => 13 [name] => Минераловатный [material_modifier] => 1 [work_modifier] => 1 [options] => Array ( [0] => 50 мм [1] => 100 мм [2] => 150 мм [3] => 200 мм [4] => 250 мм [5] => 300 мм [6] => 350 мм [7] => 400 мм [8] => 450 мм [9] => 500 мм ) [days] => [5,5,6,6,6,7,7,7,8,8] [material_price] => [1158,1414,1772,2230,3602,4060,4974,5890,6408,7718] [work_price] => [650,846,846,1098,1318,1450,1596,1754,1930,2122] [image] => https://akademik-stroy.ru/wp-content/uploads/materials/mineralovata-krov.jpg [area_modifier] => 126.43 [parent_name] => Утепление кровли (Мансарда) [parent_id] => 13 [material_sum] => 184471 [work_sum] => 86288 [total_sum] => 270759 [total_days] => 5 [display_material_sum] => 184 471 [display_work_sum] => 86 288 [display_total_sum] => 270 759 ) 1
270 759
Работа:86 288
Материалы:184 471
Дни:5
stdClass Object ( [id] => 123 [attribute_id] => 13 [name] => Эковата (целлюлозная вата) [material_modifier] => 1 [work_modifier] => 1 [options] => Array ( [0] => 50 мм [1] => 100 мм [2] => 150 мм [3] => 200 мм [4] => 250 мм [5] => 300 мм [6] => 350 мм [7] => 400 мм [8] => 450 мм [9] => 500 мм ) [days] => [3,3,4,4,4,5,5,5,5,5] [material_price] => [820,1638,2458,3276,5734,6552,8190,9828,11466,13104] [work_price] => [234,304,304,396,474,522,574,632,694,764] [image] => https://akademik-stroy.ru/wp-content/uploads/materials/ehkovata-krov.jpg [area_modifier] => 126.43 [parent_name] => Утепление кровли (Мансарда) [parent_id] => 13 [material_sum] => 130627 [work_sum] => 31064 [total_sum] => 161691 [total_days] => 3 [display_material_sum] => 130 627 [display_work_sum] => 31 064 [display_total_sum] => 161 691 ) 1
161 691
Работа:31 064
Материалы:130 627
Дни:3
stdClass Object ( [id] => 124 [attribute_id] => 13 [name] => Экструдированный пенополистирол [material_modifier] => 1 [work_modifier] => 1 [options] => Array ( [0] => 50 мм [1] => 100 мм [2] => 150 мм [3] => 200 мм [4] => 250 мм [5] => 300 мм [6] => 350 мм [7] => 400 мм [8] => 450 мм [9] => 500 мм ) [days] => [3,3,4,4,4,5,5,5,5,6] [material_price] => [1146,2292,3438,4584,8020,9166,11458,13750,16040,18332] [work_price] => [390,508,508,660,790,870,958,1052,1158,1274] [image] => https://akademik-stroy.ru/wp-content/uploads/materials/epps-krov.jpg [area_modifier] => 126.43 [parent_name] => Утепление кровли (Мансарда) [parent_id] => 13 [material_sum] => 182560 [work_sum] => 51773 [total_sum] => 234333 [total_days] => 3 [display_material_sum] => 182 560 [display_work_sum] => 51 773 [display_total_sum] => 234 333 ) 1
234 333
Работа:51 773
Материалы:182 560
Дни:3
stdClass Object ( [id] => 125 [attribute_id] => 13 [name] => ПСБ (ППС-пенополистирол) [material_modifier] => 1 [work_modifier] => 1 [options] => Array ( [0] => 50 мм [1] => 100 мм [2] => 150 мм [3] => 200 мм [4] => 250 мм [5] => 300 мм [6] => 350 мм [7] => 400 мм [8] => 450 мм [9] => 500 мм ) [days] => [3,3,4,4,4,5,5,5,5,6] [material_price] => [476,954,1430,1906,3336,3814,4766,5720,6674,7626] [work_price] => [390,508,508,660,790,870,958,1052,1158,1274] [image] => https://akademik-stroy.ru/wp-content/uploads/materials/psb-krov.jpg [area_modifier] => 126.43 [parent_name] => Утепление кровли (Мансарда) [parent_id] => 13 [material_sum] => 75828 [work_sum] => 51773 [total_sum] => 127601 [total_days] => 3 [display_material_sum] => 75 828 [display_work_sum] => 51 773 [display_total_sum] => 127 601 ) 1
127 601
Работа:51 773
Материалы:75 828
Дни:3
stdClass Object ( [id] => 126 [attribute_id] => 13 [name] => ППУ (Пенополиуретан) [material_modifier] => 1 [work_modifier] => 1 [options] => Array ( [0] => 50 мм [1] => 100 мм [2] => 150 мм [3] => 200 мм [4] => 250 мм [5] => 300 мм [6] => 350 мм [7] => 400 мм [8] => 450 мм [9] => 500 мм ) [days] => [2,2,3,3,3,3,4,4,4,4] [material_price] => [2080,4160,6240,8320,14560,16640,20800,24960,29120,33280] [work_price] => [234,304,304,396,474,522,574,632,694,764] [image] => https://akademik-stroy.ru/wp-content/uploads/materials/ppu-krov.jpg [area_modifier] => 126.43 [parent_name] => Утепление кровли (Мансарда) [parent_id] => 13 [material_sum] => 331348 [work_sum] => 31064 [total_sum] => 362412 [total_days] => 2 [display_material_sum] => 331 348 [display_work_sum] => 31 064 [display_total_sum] => 362 412 ) 1
362 412
Работа:31 064
Материалы:331 348
Дни:2
stdClass Object ( [id] => 127 [attribute_id] => 13 [name] => PIR-плиты (пенополиизоцианурат) [material_modifier] => 1 [work_modifier] => 1 [options] => Array ( [0] => 50 мм [1] => 100 мм [2] => 150 мм [3] => 200 мм [4] => 250 мм [5] => 300 мм [6] => 350 мм [7] => 400 мм [8] => 450 мм [9] => 500 мм ) [days] => [3,3,4,4,4,5,5,5,5,6] [material_price] => [2646,5290,7936,10580,18516,21162,26452,31742,37032,42324] [work_price] => [390,508,508,660,790,870,958,1052,1158,1274] [image] => https://akademik-stroy.ru/wp-content/uploads/materials/pir-krov.jpg [area_modifier] => 126.43 [parent_name] => Утепление кровли (Мансарда) [parent_id] => 13 [material_sum] => 421513 [work_sum] => 51773 [total_sum] => 473286 [total_days] => 3 [display_material_sum] => 421 513 [display_work_sum] => 51 773 [display_total_sum] => 473 286 ) 1
473 286
Работа:51 773
Материалы:421 513
Дни:3
Мансардные окна
stdClass Object ( [id] => 27 [attribute_id] => 14 [name] => Нет [material_modifier] => 1 [work_modifier] => 1 [options] => Array ( ) [days] => [0] [material_price] => [0] [work_price] => [0] [image] => https://akademik-stroy.ru/wp-content/uploads/materials/mansardnye-okna-2.jpg [area_modifier] => 1 [parent_name] => Мансардные окна [parent_id] => 14 [material_sum] => 0 [work_sum] => 0 [total_sum] => 0 [total_days] => 0 [display_material_sum] => 0 [display_work_sum] => 0 [display_total_sum] => 0 ) 1
0
Работа:0
Материалы:0
Дни:0
stdClass Object ( [id] => 28 [attribute_id] => 14 [name] => Есть [material_modifier] => 1 [work_modifier] => 1 [options] => Array ( [0] => 55x78 [1] => 55x98 ) [days] => [6,7] [material_price] => [47480,68700] [work_price] => [17900,19500] [image] => https://akademik-stroy.ru/wp-content/uploads/materials/mansardnye-okna-2.jpg [area_modifier] => 1 [parent_name] => Мансардные окна [parent_id] => 14 [material_sum] => 59825 [work_sum] => 18795 [total_sum] => 78620 [total_days] => 6 [display_material_sum] => 59 825 [display_work_sum] => 18 795 [display_total_sum] => 78 620 ) 1
78 620
Работа:18 795
Материалы:59 825
Дни:6
Подшивка кровли
stdClass Object ( [id] => 29 [attribute_id] => 15 [name] => Нет [material_modifier] => 1 [work_modifier] => 1 [options] => Array ( ) [days] => [0] [material_price] => [0] [work_price] => [0] [image] => https://akademik-stroy.ru/wp-content/uploads/materials/sofit.jpg [area_modifier] => 126.43 [parent_name] => Подшивка кровли [parent_id] => 15 [material_sum] => 0 [work_sum] => 0 [total_sum] => 0 [total_days] => 0 [display_material_sum] => 0 [display_work_sum] => 0 [display_total_sum] => 0 ) 1
0
Работа:0
Материалы:0
Дни:0
stdClass Object ( [id] => 30 [attribute_id] => 15 [name] => Есть [material_modifier] => 1 [work_modifier] => 1 [options] => Array ( [0] => Софиты (ПВХ) [1] => Cedral [2] => ДПК [3] => Планкен ) [days] => [7,10,9,8] [material_price] => [1803,3213,3025,3150] [work_price] => [1529,2188,2075,1923] [image] => https://akademik-stroy.ru/wp-content/uploads/materials/sofit.jpg [area_modifier] => 126.43 [parent_name] => Подшивка кровли [parent_id] => 15 [material_sum] => 287221 [work_sum] => 202977 [total_sum] => 490198 [total_days] => 7 [display_material_sum] => 287 221 [display_work_sum] => 202 977 [display_total_sum] => 490 198 ) 1
490 198
Работа:202 977
Материалы:287 221
Дни:7
Водосточная система
stdClass Object ( [id] => 31 [attribute_id] => 16 [name] => Нет [material_modifier] => 1 [work_modifier] => 1 [options] => Array ( ) [days] => [0] [material_price] => [0] [work_price] => [0] [image] => https://akademik-stroy.ru/wp-content/uploads/materials/docke-standard-pvh.jpg [area_modifier] => 126.43 [parent_name] => Водосточная система [parent_id] => 16 [material_sum] => 0 [work_sum] => 0 [total_sum] => 0 [total_days] => 0 [display_material_sum] => 0 [display_work_sum] => 0 [display_total_sum] => 0 ) 1
0
Работа:0
Материалы:0
Дни:0
stdClass Object ( [id] => 32 [attribute_id] => 16 [name] => Есть [material_modifier] => 1 [work_modifier] => 1 [options] => Array ( [0] => Döcke Standard (ПВХ) [1] => Металлические Grand Line ) [days] => [7,7] [material_price] => [1842,2703] [work_price] => [1491,1529] [image] => https://akademik-stroy.ru/wp-content/uploads/materials/docke-standard-pvh.jpg [area_modifier] => 126.43 [parent_name] => Водосточная система [parent_id] => 16 [material_sum] => 293434 [work_sum] => 197932 [total_sum] => 491366 [total_days] => 7 [display_material_sum] => 293 434 [display_work_sum] => 197 932 [display_total_sum] => 491 366 ) 1
491 366
Работа:197 932
Материалы:293 434
Дни:7
Дополнительное утепление наружных стен
stdClass Object ( [id] => 33 [attribute_id] => 17 [name] => Нет [material_modifier] => 1 [work_modifier] => 1 [options] => Array ( ) [days] => [0] [material_price] => [0] [work_price] => [0] [image] => https://akademik-stroy.ru/wp-content/uploads/materials/mineralovata.jpg [area_modifier] => 215.41 [parent_name] => Дополнительное утепление наружных стен [parent_id] => 17 [material_sum] => 0 [work_sum] => 0 [total_sum] => 0 [total_days] => 0 [display_material_sum] => 0 [display_work_sum] => 0 [display_total_sum] => 0 ) 1
0
Работа:0
Материалы:0
Дни:0
stdClass Object ( [id] => 34 [attribute_id] => 17 [name] => Минераловатный [material_modifier] => 1 [work_modifier] => 1 [options] => Array ( [0] => 50 мм [1] => 100 мм [2] => 150 мм [3] => 200 мм [4] => 250 мм [5] => 300 мм ) [days] => [7,8,10,12,14,15] [material_price] => [3437,3613,3803,3915,4601,4830] [work_price] => [2325,2423,2523,2749,2859,3025] [image] => https://akademik-stroy.ru/wp-content/uploads/materials/mineralovata.jpg [area_modifier] => 215.41 [parent_name] => Дополнительное утепление наружных стен [parent_id] => 17 [material_sum] => 932859 [work_sum] => 525870 [total_sum] => 1458729 [total_days] => 7 [display_material_sum] => 932 859 [display_work_sum] => 525 870 [display_total_sum] => 1 458 729 ) 1
1 458 729
Работа:525 870
Материалы:932 859
Дни:7
stdClass Object ( [id] => 128 [attribute_id] => 17 [name] => Эковата (целлюлозная вата) [material_modifier] => 1 [work_modifier] => 1 [options] => Array ( [0] => 50 мм [1] => 100 мм [2] => 150 мм [3] => 200 мм [4] => 250 мм [5] => 300 мм ) [days] => [3,4,5,6,7,8] [material_price] => [810,1319,1629,1838,2267,2676] [work_price] => [1225,1323,1423,1549,1659,1725] [image] => https://akademik-stroy.ru/wp-content/uploads/materials/ehkovata.jpg [area_modifier] => 215.41 [parent_name] => Дополнительное утепление наружных стен [parent_id] => 17 [material_sum] => 219847 [work_sum] => 277071 [total_sum] => 496918 [total_days] => 3 [display_material_sum] => 219 847 [display_work_sum] => 277 071 [display_total_sum] => 496 918 ) 1
496 918
Работа:277 071
Материалы:219 847
Дни:3
stdClass Object ( [id] => 129 [attribute_id] => 17 [name] => Экструдированный пенополистирол [material_modifier] => 1 [work_modifier] => 1 [options] => Array ( [0] => 50 мм [1] => 100 мм [2] => 150 мм [3] => 200 мм [4] => 250 мм [5] => 300 мм ) [days] => [5,6,7,8,9,10] [material_price] => [4560,4300,5119,6292,7010,8583] [work_price] => [1795,1954,2254,2330,2595,2735] [image] => https://akademik-stroy.ru/wp-content/uploads/materials/epps.jpg [area_modifier] => 215.41 [parent_name] => Дополнительное утепление наружных стен [parent_id] => 17 [material_sum] => 1237660 [work_sum] => 405994 [total_sum] => 1643654 [total_days] => 5 [display_material_sum] => 1 237 660 [display_work_sum] => 405 994 [display_total_sum] => 1 643 654 ) 1
1 643 654
Работа:405 994
Материалы:1 237 660
Дни:5
stdClass Object ( [id] => 130 [attribute_id] => 17 [name] => ПСБ (ППС-пенополистирол) [material_modifier] => 1 [work_modifier] => 1 [options] => Array ( [0] => 50 мм [1] => 100 мм [2] => 150 мм [3] => 200 мм [4] => 250 мм [5] => 300 мм ) [days] => [5,6,7,8,9,10] [material_price] => [4822,5200,5819,6292,7010,7583] [work_price] => [1795,1954,2254,2330,2595,2735] [image] => https://akademik-stroy.ru/wp-content/uploads/materials/psb.jpg [area_modifier] => 215.41 [parent_name] => Дополнительное утепление наружных стен [parent_id] => 17 [material_sum] => 1308771 [work_sum] => 405994 [total_sum] => 1714765 [total_days] => 5 [display_material_sum] => 1 308 771 [display_work_sum] => 405 994 [display_total_sum] => 1 714 765 ) 1
1 714 765
Работа:405 994
Материалы:1 308 771
Дни:5
stdClass Object ( [id] => 131 [attribute_id] => 17 [name] => ППУ (Пенополиуретан) [material_modifier] => 1 [work_modifier] => 1 [options] => Array ( [0] => 50 мм [1] => 100 мм [2] => 150 мм [3] => 200 мм [4] => 250 мм [5] => 300 мм ) [days] => [3,4,5,6,7,8] [material_price] => [2860,3400,4219,4592,5010,5583] [work_price] => [729,900,980,1120,1280,1530] [image] => https://akademik-stroy.ru/wp-content/uploads/materials/ppu.jpg [area_modifier] => 215.41 [parent_name] => Дополнительное утепление наружных стен [parent_id] => 17 [material_sum] => 776251 [work_sum] => 164886 [total_sum] => 941137 [total_days] => 3 [display_material_sum] => 776 251 [display_work_sum] => 164 886 [display_total_sum] => 941 137 ) 1
941 137
Работа:164 886
Материалы:776 251
Дни:3
stdClass Object ( [id] => 132 [attribute_id] => 17 [name] => PIR-плиты (пенополиизоцианурат) [material_modifier] => 1 [work_modifier] => 1 [options] => Array ( [0] => 50 мм [1] => 100 мм [2] => 150 мм [3] => 200 мм [4] => 250 мм [5] => 300 мм ) [days] => [5,6,7,8,9,10] [material_price] => [8323,15645,20968,25900,29258,30581] [work_price] => [800,900,970,1150,1280,1330] [image] => https://akademik-stroy.ru/wp-content/uploads/materials/pir.jpg [area_modifier] => 215.41 [parent_name] => Дополнительное утепление наружных стен [parent_id] => 17 [material_sum] => 2259000 [work_sum] => 180944 [total_sum] => 2439944 [total_days] => 5 [display_material_sum] => 2 259 000 [display_work_sum] => 180 944 [display_total_sum] => 2 439 944 ) 1
2 439 944
Работа:180 944
Материалы:2 259 000
Дни:5
Наружная отделка фасада
stdClass Object ( [id] => 37 [attribute_id] => 19 [name] => Нет [material_modifier] => 1 [work_modifier] => 1 [options] => Array ( ) [days] => [0] [material_price] => [0] [work_price] => [0] [image] => https://akademik-stroy.ru/wp-content/uploads/materials/imitaciya-brusa.jpg [area_modifier] => 215.41 [parent_name] => Наружная отделка фасада [parent_id] => 19 [material_sum] => 0 [work_sum] => 0 [total_sum] => 0 [total_days] => 0 [display_material_sum] => 0 [display_work_sum] => 0 [display_total_sum] => 0 ) 1
0
Работа:0
Материалы:0
Дни:0
stdClass Object ( [id] => 38 [attribute_id] => 19 [name] => Имитация бруса [material_modifier] => 1 [work_modifier] => 1 [options] => Array ( [0] => Сосна [1] => Ель [2] => Лиственница ) [days] => [20,20,20] [material_price] => [2994,2762,4954] [work_price] => [1397,1231,1577] [image] => https://akademik-stroy.ru/wp-content/uploads/materials/imitaciya-brusa.jpg [area_modifier] => 215.41 [parent_name] => Наружная отделка фасада [parent_id] => 19 [material_sum] => 812621 [work_sum] => 315974 [total_sum] => 1128595 [total_days] => 20 [display_material_sum] => 812 621 [display_work_sum] => 315 974 [display_total_sum] => 1 128 595 ) 1
1 128 595
Работа:315 974
Материалы:812 621
Дни:20
stdClass Object ( [id] => 136 [attribute_id] => 19 [name] => Планкен [material_modifier] => 1 [work_modifier] => 1 [options] => Array ( [0] => Сосна [1] => Ель [2] => Лиственница ) [days] => [20,20,20] [material_price] => [3194,2862,5154] [work_price] => [1537,1354,1735] [image] => https://akademik-stroy.ru/wp-content/uploads/materials/planken.jpg [area_modifier] => 215.41 [parent_name] => Наружная отделка фасада [parent_id] => 19 [material_sum] => 866905 [work_sum] => 347639 [total_sum] => 1214544 [total_days] => 20 [display_material_sum] => 866 905 [display_work_sum] => 347 639 [display_total_sum] => 1 214 544 ) 1
1 214 544
Работа:347 639
Материалы:866 905
Дни:20
stdClass Object ( [id] => 137 [attribute_id] => 19 [name] => Штукатурка [material_modifier] => 1 [work_modifier] => 1 [options] => Array ( [0] => Цементно-песчаная (минеральная) [1] => Мокрый фасад ) [days] => [35,35] [material_price] => [2231,3938] [work_price] => [1202,2422] [image] => https://akademik-stroy.ru/wp-content/uploads/materials/shtukaturka.jpg [area_modifier] => 215.41 [parent_name] => Наружная отделка фасада [parent_id] => 19 [material_sum] => 605530 [work_sum] => 271869 [total_sum] => 877399 [total_days] => 35 [display_material_sum] => 605 530 [display_work_sum] => 271 869 [display_total_sum] => 877 399 ) 1
877 399
Работа:271 869
Материалы:605 530
Дни:35
stdClass Object ( [id] => 138 [attribute_id] => 19 [name] => Облицовочный кирпич [material_modifier] => 1 [work_modifier] => 1 [options] => Array ( [0] => Керамический [1] => Клинкерный [2] => Ручной формовки [3] => Гиперпрессованный [4] => Силикатный кирпич ) [days] => [45,45,45,45,45] [material_price] => [8174,9148,1040,1257,5876] [work_price] => [3240,3758,4536,4017,3369] [image] => https://akademik-stroy.ru/wp-content/uploads/materials/oblicovochnyj-kirpich.jpg [area_modifier] => 215.41 [parent_name] => Наружная отделка фасада [parent_id] => 19 [material_sum] => 2218559 [work_sum] => 732825 [total_sum] => 2951384 [total_days] => 45 [display_material_sum] => 2 218 559 [display_work_sum] => 732 825 [display_total_sum] => 2 951 384 ) 1
2 951 384
Работа:732 825
Материалы:2 218 559
Дни:45
stdClass Object ( [id] => 139 [attribute_id] => 19 [name] => Фасадная плитка [material_modifier] => 1 [work_modifier] => 1 [options] => Array ( [0] => Клинкерная [1] => Керамическая [2] => Плитка ручной формовки ) [days] => [40,40,40] [material_price] => [2974,1487,3470] [work_price] => [3007,2592,3629] [image] => https://akademik-stroy.ru/wp-content/uploads/materials/fasadnaya-plitka.jpg [area_modifier] => 215.41 [parent_name] => Наружная отделка фасада [parent_id] => 19 [material_sum] => 807193 [work_sum] => 680125 [total_sum] => 1487318 [total_days] => 40 [display_material_sum] => 807 193 [display_work_sum] => 680 125 [display_total_sum] => 1 487 318 ) 1
1 487 318
Работа:680 125
Материалы:807 193
Дни:40
stdClass Object ( [id] => 140 [attribute_id] => 19 [name] => Сайдинг [material_modifier] => 1 [work_modifier] => 1 [options] => Array ( [0] => Виниловый [1] => Металлический [2] => Фиброцементный ) [days] => [20,20,20] [material_price] => [1263,1944,4147] [work_price] => [1263,1944,2074] [image] => https://akademik-stroy.ru/wp-content/uploads/materials/sajding.jpg [area_modifier] => 215.41 [parent_name] => Наружная отделка фасада [parent_id] => 19 [material_sum] => 342799 [work_sum] => 285666 [total_sum] => 628465 [total_days] => 20 [display_material_sum] => 342 799 [display_work_sum] => 285 666 [display_total_sum] => 628 465 ) 1
628 465
Работа:285 666
Материалы:342 799
Дни:20
stdClass Object ( [id] => 141 [attribute_id] => 19 [name] => Камень [material_modifier] => 1 [work_modifier] => 1 [options] => Array ( [0] => Травертин [1] => Дагестанский [2] => Искусственный [3] => Натуральный [4] => Керамогранит ) [days] => [45,45,45,45,45] [material_price] => [4536,3888,2592,3240,2462] [work_price] => [3240,3240,2462,3110,1944] [image] => https://akademik-stroy.ru/wp-content/uploads/materials/kamen-1.jpg [area_modifier] => 215.41 [parent_name] => Наружная отделка фасада [parent_id] => 19 [material_sum] => 1231146 [work_sum] => 732825 [total_sum] => 1963971 [total_days] => 45 [display_material_sum] => 1 231 146 [display_work_sum] => 732 825 [display_total_sum] => 1 963 971 ) 1
1 963 971
Работа:732 825
Материалы:1 231 146
Дни:45
stdClass Object ( [id] => 142 [attribute_id] => 19 [name] => Термопанели [material_modifier] => 1 [work_modifier] => 1 [options] => Array ( ) [days] => [20] [material_price] => [6221] [work_price] => [2333] [image] => https://akademik-stroy.ru/wp-content/uploads/materials/termo.png [area_modifier] => 215.41 [parent_name] => Наружная отделка фасада [parent_id] => 19 [material_sum] => 1688483 [work_sum] => 527679 [total_sum] => 2216162 [total_days] => 20 [display_material_sum] => 1 688 483 [display_work_sum] => 527 679 [display_total_sum] => 2 216 162 ) 1
2 216 162
Работа:527 679
Материалы:1 688 483
Дни:20
stdClass Object ( [id] => 143 [attribute_id] => 19 [name] => Плитка HAUBERK [material_modifier] => 1 [work_modifier] => 1 [options] => Array ( ) [days] => [20] [material_price] => [2786] [work_price] => [1944] [image] => https://akademik-stroy.ru/wp-content/uploads/materials/hauberk.jpg [area_modifier] => 215.41 [parent_name] => Наружная отделка фасада [parent_id] => 19 [material_sum] => 756167 [work_sum] => 439695 [total_sum] => 1195862 [total_days] => 20 [display_material_sum] => 756 167 [display_work_sum] => 439 695 [display_total_sum] => 1 195 862 ) 1
1 195 862
Работа:439 695
Материалы:756 167
Дни:20
stdClass Object ( [id] => 144 [attribute_id] => 19 [name] => Фальцевый фасад [material_modifier] => 1 [work_modifier] => 1 [options] => Array ( ) [days] => [20] [material_price] => [3240] [work_price] => [2592] [image] => https://akademik-stroy.ru/wp-content/uploads/materials/falcevyj-fasad.jpg [area_modifier] => 215.41 [parent_name] => Наружная отделка фасада [parent_id] => 19 [material_sum] => 879390 [work_sum] => 586260 [total_sum] => 1465650 [total_days] => 20 [display_material_sum] => 879 390 [display_work_sum] => 586 260 [display_total_sum] => 1 465 650 ) 1
1 465 650
Работа:586 260
Материалы:879 390
Дни:20
stdClass Object ( [id] => 145 [attribute_id] => 19 [name] => Комбинированный [material_modifier] => 1 [work_modifier] => 1 [options] => Array ( ) [days] => [20] [material_price] => [4629] [work_price] => [3499] [image] => https://akademik-stroy.ru/wp-content/uploads/materials/Kombinirovannyj.jpg [area_modifier] => 215.41 [parent_name] => Наружная отделка фасада [parent_id] => 19 [material_sum] => 1256387 [work_sum] => 791406 [total_sum] => 2047793 [total_days] => 20 [display_material_sum] => 1 256 387 [display_work_sum] => 791 406 [display_total_sum] => 2 047 793 ) 1
2 047 793
Работа:791 406
Материалы:1 256 387
Дни:20
stdClass Object ( [id] => 257 [attribute_id] => 19 [name] => Японские фиброцементные [material_modifier] => 1 [work_modifier] => 1 [options] => Array ( ) [days] => [20] [material_price] => [7043] [work_price] => [2993] [image] => https://akademik-stroy.ru/wp-content/uploads/materials/paneli.jpg [area_modifier] => 215.41 [parent_name] => Наружная отделка фасада [parent_id] => 19 [material_sum] => 1911587 [work_sum] => 676958 [total_sum] => 2588545 [total_days] => 20 [display_material_sum] => 1 911 587 [display_work_sum] => 676 958 [display_total_sum] => 2 588 545 ) 1
2 588 545
Работа:676 958
Материалы:1 911 587
Дни:20
stdClass Object ( [id] => 258 [attribute_id] => 19 [name] => Панели Каньон [material_modifier] => 1 [work_modifier] => 1 [options] => Array ( ) [days] => [20] [material_price] => [4543] [work_price] => [2592] [image] => https://akademik-stroy.ru/wp-content/uploads/materials/kanon.png [area_modifier] => 215.41 [parent_name] => Наружная отделка фасада [parent_id] => 19 [material_sum] => 1233046 [work_sum] => 586260 [total_sum] => 1819306 [total_days] => 20 [display_material_sum] => 1 233 046 [display_work_sum] => 586 260 [display_total_sum] => 1 819 306 ) 1
1 819 306
Работа:586 260
Материалы:1 233 046
Дни:20
Террасы, крыльца, навесы
stdClass Object ( [id] => 39 [attribute_id] => 20 [name] => Нет [material_modifier] => 1 [work_modifier] => 1 [options] => Array ( ) [days] => [0] [material_price] => [0] [work_price] => [0] [image] => https://akademik-stroy.ru/wp-content/uploads/materials/terrasy.jpg [area_modifier] => 30 [parent_name] => Террасы, крыльца, навесы [parent_id] => 20 [material_sum] => 0 [work_sum] => 0 [total_sum] => 0 [total_days] => 0 [display_material_sum] => 0 [display_work_sum] => 0 [display_total_sum] => 0 ) 1
0
Работа:0
Материалы:0
Дни:0
stdClass Object ( [id] => 40 [attribute_id] => 20 [name] => Есть [material_modifier] => 1 [work_modifier] => 1 [options] => Array ( ) [days] => [5] [material_price] => [10450] [work_price] => [1950] [image] => https://akademik-stroy.ru/wp-content/uploads/materials/terrasy.jpg [area_modifier] => 30 [parent_name] => Террасы, крыльца, навесы [parent_id] => 20 [material_sum] => 395010 [work_sum] => 61425 [total_sum] => 456435 [total_days] => 5 [display_material_sum] => 395 010 [display_work_sum] => 61 425 [display_total_sum] => 456 435 ) 1
456 435
Работа:61 425
Материалы:395 010
Дни:5
Балконы
stdClass Object ( [id] => 41 [attribute_id] => 21 [name] => Нет [material_modifier] => 1 [work_modifier] => 1 [options] => Array ( ) [days] => [0] [material_price] => [0] [work_price] => [0] [image] => https://akademik-stroy.ru/wp-content/uploads/materials/balkony.jpg [area_modifier] => 30 [parent_name] => Балконы [parent_id] => 21 [material_sum] => 0 [work_sum] => 0 [total_sum] => 0 [total_days] => 0 [display_material_sum] => 0 [display_work_sum] => 0 [display_total_sum] => 0 ) 1
0
Работа:0
Материалы:0
Дни:0
stdClass Object ( [id] => 42 [attribute_id] => 21 [name] => Есть [material_modifier] => 1 [work_modifier] => 1 [options] => Array ( ) [days] => [12] [material_price] => [3600] [work_price] => [1950] [image] => https://akademik-stroy.ru/wp-content/uploads/materials/balkony.jpg [area_modifier] => 30 [parent_name] => Балконы [parent_id] => 21 [material_sum] => 136080 [work_sum] => 61425 [total_sum] => 197505 [total_days] => 12 [display_material_sum] => 136 080 [display_work_sum] => 61 425 [display_total_sum] => 197 505 ) 1
197 505
Работа:61 425
Материалы:136 080
Дни:12
Отмостка
stdClass Object ( [id] => 43 [attribute_id] => 22 [name] => Нет [material_modifier] => 1 [work_modifier] => 1 [options] => Array ( ) [days] => [0] [material_price] => [0] [work_price] => [0] [image] => https://akademik-stroy.ru/wp-content/uploads/materials/uteplennaya.jpg [area_modifier] => 126.43 [parent_name] => Отмостка [parent_id] => 22 [material_sum] => 0 [work_sum] => 0 [total_sum] => 0 [total_days] => 0 [display_material_sum] => 0 [display_work_sum] => 0 [display_total_sum] => 0 ) 1
0
Работа:0
Материалы:0
Дни:0
stdClass Object ( [id] => 44 [attribute_id] => 22 [name] => Утепленная отмостка [material_modifier] => 1 [work_modifier] => 1 [options] => Array ( ) [days] => [15] [material_price] => [2550] [work_price] => [1750] [image] => https://akademik-stroy.ru/wp-content/uploads/materials/uteplennaya.jpg [area_modifier] => 126.43 [parent_name] => Отмостка [parent_id] => 22 [material_sum] => 406220 [work_sum] => 232315 [total_sum] => 638535 [total_days] => 15 [display_material_sum] => 406 220 [display_work_sum] => 232 315 [display_total_sum] => 638 535 ) 1
638 535
Работа:232 315
Материалы:406 220
Дни:15
stdClass Object ( [id] => 146 [attribute_id] => 22 [name] => Не утепленная отмостка [material_modifier] => 1 [work_modifier] => 1 [options] => Array ( ) [days] => [10] [material_price] => [1650] [work_price] => [1450] [image] => https://akademik-stroy.ru/wp-content/uploads/materials/ne-uteplennaya.jpg [area_modifier] => 126.43 [parent_name] => Отмостка [parent_id] => 22 [material_sum] => 262848 [work_sum] => 192490 [total_sum] => 455338 [total_days] => 10 [display_material_sum] => 262 848 [display_work_sum] => 192 490 [display_total_sum] => 455 338 ) 1
455 338
Работа:192 490
Материалы:262 848
Дни:10
Дренаж вокруг дома
stdClass Object ( [id] => 45 [attribute_id] => 23 [name] => Нет [material_modifier] => 1 [work_modifier] => 1 [options] => Array ( ) [days] => [0] [material_price] => [0] [work_price] => [0] [image] => https://akademik-stroy.ru/wp-content/uploads/materials/drenazh-2.jpg [area_modifier] => 126.43 [parent_name] => Дренаж вокруг дома [parent_id] => 23 [material_sum] => 0 [work_sum] => 0 [total_sum] => 0 [total_days] => 0 [display_material_sum] => 0 [display_work_sum] => 0 [display_total_sum] => 0 ) 1
0
Работа:0
Материалы:0
Дни:0
stdClass Object ( [id] => 46 [attribute_id] => 23 [name] => Есть [material_modifier] => 1 [work_modifier] => 1 [options] => Array ( ) [days] => [5] [material_price] => [2366] [work_price] => [1911] [image] => https://akademik-stroy.ru/wp-content/uploads/materials/drenazh-2.jpg [area_modifier] => 126.43 [parent_name] => Дренаж вокруг дома [parent_id] => 23 [material_sum] => 376908 [work_sum] => 253688 [total_sum] => 630596 [total_days] => 5 [display_material_sum] => 376 908 [display_work_sum] => 253 688 [display_total_sum] => 630 596 ) 1
630 596
Работа:253 688
Материалы:376 908
Дни:5
Автономная канализация (септики)
stdClass Object ( [id] => 47 [attribute_id] => 24 [name] => Нет [material_modifier] => 1 [work_modifier] => 1 [options] => Array ( ) [days] => [0] [material_price] => [0] [work_price] => [0] [image] => https://akademik-stroy.ru/wp-content/uploads/materials/septik.jpg [area_modifier] => 1 [parent_name] => Автономная канализация (септики) [parent_id] => 24 [material_sum] => 0 [work_sum] => 0 [total_sum] => 0 [total_days] => 0 [display_material_sum] => 0 [display_work_sum] => 0 [display_total_sum] => 0 ) 1
0
Работа:0
Материалы:0
Дни:0
stdClass Object ( [id] => 48 [attribute_id] => 24 [name] => Есть [material_modifier] => 1 [work_modifier] => 1 [options] => Array ( [0] => Для дачи на 4 человека [1] => Для дома на 5 человек [2] => Для дома на 6 человек [3] => Для дома на 7 человек [4] => Для дома на 10 человек ) [days] => [7,7,7,8,8] [material_price] => [196340,220500,240940,264200,293340] [work_price] => [50000,55000,60500,66550,73206] [image] => https://akademik-stroy.ru/wp-content/uploads/materials/septik.jpg [area_modifier] => 1 [parent_name] => Автономная канализация (септики) [parent_id] => 24 [material_sum] => 247388 [work_sum] => 52500 [total_sum] => 299888 [total_days] => 7 [display_material_sum] => 247 388 [display_work_sum] => 52 500 [display_total_sum] => 299 888 ) 1
299 888
Работа:52 500
Материалы:247 388
Дни:7
Внутренние (не несущие) перегородки
stdClass Object ( [id] => 49 [attribute_id] => 25 [name] => Нет [material_modifier] => 1 [work_modifier] => 1 [options] => Array ( ) [days] => [0] [material_price] => [0] [work_price] => [0] [image] => https://akademik-stroy.ru/wp-content/uploads/materials/gkl.jpg [area_modifier] => 215.41 [parent_name] => Внутренние (не несущие) перегородки [parent_id] => 25 [material_sum] => 0 [work_sum] => 0 [total_sum] => 0 [total_days] => 0 [display_material_sum] => 0 [display_work_sum] => 0 [display_total_sum] => 0 ) 1
0
Работа:0
Материалы:0
Дни:0
stdClass Object ( [id] => 147 [attribute_id] => 25 [name] => Каркасно-обшивные [material_modifier] => 1 [work_modifier] => 1 [options] => Array ( [0] => 75 мм (без шумоизоляции) [1] => 75 мм (с шумоизоляцией) ) [days] => [11,11] [material_price] => [580,970] [work_price] => [380,570] [image] => https://akademik-stroy.ru/wp-content/uploads/materials/gkl.jpg [area_modifier] => 215.41 [parent_name] => Внутренние (не несущие) перегородки [parent_id] => 25 [material_sum] => 157422 [work_sum] => 85949 [total_sum] => 243371 [total_days] => 11 [display_material_sum] => 157 422 [display_work_sum] => 85 949 [display_total_sum] => 243 371 ) 1
243 371
Работа:85 949
Материалы:157 422
Дни:11
stdClass Object ( [id] => 148 [attribute_id] => 25 [name] => Пазогребневые [material_modifier] => 1 [work_modifier] => 1 [options] => Array ( [0] => 80 мм [1] => 100 мм ) [days] => [5,5] [material_price] => [1022,1313] [work_price] => [600,700] [image] => https://akademik-stroy.ru/wp-content/uploads/materials/pazogrebnevye-bloki.jpg [area_modifier] => 215.41 [parent_name] => Внутренние (не несущие) перегородки [parent_id] => 25 [material_sum] => 277388 [work_sum] => 135708 [total_sum] => 413096 [total_days] => 5 [display_material_sum] => 277 388 [display_work_sum] => 135 708 [display_total_sum] => 413 096 ) 1
413 096
Работа:135 708
Материалы:277 388
Дни:5
stdClass Object ( [id] => 149 [attribute_id] => 25 [name] => Газобетонные [material_modifier] => 1 [work_modifier] => 1 [options] => Array ( [0] => 100 мм [1] => 200 мм ) [days] => [11,11] [material_price] => [1160,1920] [work_price] => [700,900] [image] => https://akademik-stroy.ru/wp-content/uploads/materials/gazobeton-2.jpg [area_modifier] => 215.41 [parent_name] => Внутренние (не несущие) перегородки [parent_id] => 25 [material_sum] => 314843 [work_sum] => 158326 [total_sum] => 473169 [total_days] => 11 [display_material_sum] => 314 843 [display_work_sum] => 158 326 [display_total_sum] => 473 169 ) 1
473 169
Работа:158 326
Материалы:314 843
Дни:11
stdClass Object ( [id] => 150 [attribute_id] => 25 [name] => Кирпичные [material_modifier] => 1 [work_modifier] => 1 [options] => Array ( [0] => 120 мм [1] => 250 мм [2] => 360 мм ) [days] => [7,7,7] [material_price] => [1785,3570,5355] [work_price] => [900,1600,1800] [image] => https://akademik-stroy.ru/wp-content/uploads/materials/kirpich-1.jpg [area_modifier] => 215.41 [parent_name] => Внутренние (не несущие) перегородки [parent_id] => 25 [material_sum] => 484479 [work_sum] => 203562 [total_sum] => 688041 [total_days] => 7 [display_material_sum] => 484 479 [display_work_sum] => 203 562 [display_total_sum] => 688 041 ) 1
688 041
Работа:203 562
Материалы:484 479
Дни:7
Электрика
stdClass Object ( [id] => 55 [attribute_id] => 28 [name] => Нет [material_modifier] => 1 [work_modifier] => 1 [options] => Array ( ) [days] => [0] [material_price] => [0] [work_price] => [0] [image] => https://akademik-stroy.ru/wp-content/uploads/materials/ehlektrika.jpg [area_modifier] => 174.8 [parent_name] => Электрика [parent_id] => 28 [material_sum] => 0 [work_sum] => 0 [total_sum] => 0 [total_days] => 0 [display_material_sum] => 0 [display_work_sum] => 0 [display_total_sum] => 0 ) 1
0
Работа:0
Материалы:0
Дни:0
stdClass Object ( [id] => 56 [attribute_id] => 28 [name] => Есть [material_modifier] => 1 [work_modifier] => 1 [options] => Array ( ) [days] => [10] [material_price] => [650] [work_price] => [950] [image] => https://akademik-stroy.ru/wp-content/uploads/materials/ehlektrika.jpg [area_modifier] => 174.8 [parent_name] => Электрика [parent_id] => 28 [material_sum] => 143161 [work_sum] => 174363 [total_sum] => 317524 [total_days] => 10 [display_material_sum] => 143 161 [display_work_sum] => 174 363 [display_total_sum] => 317 524 ) 1
317 524
Работа:174 363
Материалы:143 161
Дни:10
Сантехника, канализация в доме
stdClass Object ( [id] => 57 [attribute_id] => 29 [name] => Нет [material_modifier] => 1 [work_modifier] => 1 [options] => Array ( ) [days] => [0] [material_price] => [0] [work_price] => [0] [image] => https://akademik-stroy.ru/wp-content/uploads/materials/santekhnika-kanalizaciya-1.jpg [area_modifier] => 174.8 [parent_name] => Сантехника, канализация в доме [parent_id] => 29 [material_sum] => 0 [work_sum] => 0 [total_sum] => 0 [total_days] => 0 [display_material_sum] => 0 [display_work_sum] => 0 [display_total_sum] => 0 ) 1
0
Работа:0
Материалы:0
Дни:0
stdClass Object ( [id] => 58 [attribute_id] => 29 [name] => Есть [material_modifier] => 1 [work_modifier] => 1 [options] => Array ( ) [days] => [10] [material_price] => [600] [work_price] => [730] [image] => https://akademik-stroy.ru/wp-content/uploads/materials/santekhnika-kanalizaciya-1.jpg [area_modifier] => 174.8 [parent_name] => Сантехника, канализация в доме [parent_id] => 29 [material_sum] => 132149 [work_sum] => 133984 [total_sum] => 266133 [total_days] => 10 [display_material_sum] => 132 149 [display_work_sum] => 133 984 [display_total_sum] => 266 133 ) 1
266 133
Работа:133 984
Материалы:132 149
Дни:10
Отопление
stdClass Object ( [id] => 59 [attribute_id] => 30 [name] => Нет [material_modifier] => 1 [work_modifier] => 1 [options] => Array ( ) [days] => [0] [material_price] => [0] [work_price] => [0] [image] => https://akademik-stroy.ru/wp-content/uploads/materials/otoplenie-1.jpg [area_modifier] => 174.8 [parent_name] => Отопление [parent_id] => 30 [material_sum] => 0 [work_sum] => 0 [total_sum] => 0 [total_days] => 0 [display_material_sum] => 0 [display_work_sum] => 0 [display_total_sum] => 0 ) 1
0
Работа:0
Материалы:0
Дни:0
stdClass Object ( [id] => 60 [attribute_id] => 30 [name] => Есть [material_modifier] => 1 [work_modifier] => 1 [options] => Array ( ) [days] => [5] [material_price] => [610] [work_price] => [560] [image] => https://akademik-stroy.ru/wp-content/uploads/materials/otoplenie-1.jpg [area_modifier] => 174.8 [parent_name] => Отопление [parent_id] => 30 [material_sum] => 134351 [work_sum] => 102782 [total_sum] => 237133 [total_days] => 5 [display_material_sum] => 134 351 [display_work_sum] => 102 782 [display_total_sum] => 237 133 ) 1
237 133
Работа:102 782
Материалы:134 351
Дни:5
Теплые полы
stdClass Object ( [id] => 61 [attribute_id] => 31 [name] => Нет [material_modifier] => 1 [work_modifier] => 1 [options] => Array ( ) [days] => [0] [material_price] => [0] [work_price] => [0] [image] => https://akademik-stroy.ru/wp-content/uploads/materials/vodyanye.jpg [area_modifier] => 30 [parent_name] => Теплые полы [parent_id] => 31 [material_sum] => 0 [work_sum] => 0 [total_sum] => 0 [total_days] => 0 [display_material_sum] => 0 [display_work_sum] => 0 [display_total_sum] => 0 ) 1
0
Работа:0
Материалы:0
Дни:0
stdClass Object ( [id] => 151 [attribute_id] => 31 [name] => Водяные [material_modifier] => 1 [work_modifier] => 1 [options] => Array ( ) [days] => [9] [material_price] => [10200] [work_price] => [2500] [image] => https://akademik-stroy.ru/wp-content/uploads/materials/vodyanye.jpg [area_modifier] => 30 [parent_name] => Теплые полы [parent_id] => 31 [material_sum] => 385560 [work_sum] => 78750 [total_sum] => 464310 [total_days] => 9 [display_material_sum] => 385 560 [display_work_sum] => 78 750 [display_total_sum] => 464 310 ) 1
464 310
Работа:78 750
Материалы:385 560
Дни:9
stdClass Object ( [id] => 152 [attribute_id] => 31 [name] => Электро [material_modifier] => 1 [work_modifier] => 1 [options] => Array ( ) [days] => [5] [material_price] => [6300] [work_price] => [1500] [image] => https://akademik-stroy.ru/wp-content/uploads/materials/ehlektricheskij.jpg [area_modifier] => 30 [parent_name] => Теплые полы [parent_id] => 31 [material_sum] => 238140 [work_sum] => 47250 [total_sum] => 285390 [total_days] => 5 [display_material_sum] => 238 140 [display_work_sum] => 47 250 [display_total_sum] => 285 390 ) 1
285 390
Работа:47 250
Материалы:238 140
Дни:5
Черновая отделка стен
stdClass Object ( [id] => 63 [attribute_id] => 32 [name] => Нет [material_modifier] => 1 [work_modifier] => 1 [options] => Array ( ) [days] => [0] [material_price] => [0] [work_price] => [0] [image] => https://akademik-stroy.ru/wp-content/uploads/materials/shtukaturka-shpatlevka-1.jpg [area_modifier] => 174.8 [parent_name] => Черновая отделка стен [parent_id] => 32 [material_sum] => 0 [work_sum] => 0 [total_sum] => 0 [total_days] => 0 [display_material_sum] => 0 [display_work_sum] => 0 [display_total_sum] => 0 ) 1
0
Работа:0
Материалы:0
Дни:0
stdClass Object ( [id] => 153 [attribute_id] => 32 [name] => Штукатурка и шпатлевка [material_modifier] => 1 [work_modifier] => 1 [options] => Array ( ) [days] => [20] [material_price] => [1850] [work_price] => [2600] [image] => https://akademik-stroy.ru/wp-content/uploads/materials/shtukaturka-shpatlevka-1.jpg [area_modifier] => 174.8 [parent_name] => Черновая отделка стен [parent_id] => 32 [material_sum] => 407459 [work_sum] => 477204 [total_sum] => 884663 [total_days] => 20 [display_material_sum] => 407 459 [display_work_sum] => 477 204 [display_total_sum] => 884 663 ) 1
884 663
Работа:477 204
Материалы:407 459
Дни:20
stdClass Object ( [id] => 154 [attribute_id] => 32 [name] => Гипсокортон на стены [material_modifier] => 1 [work_modifier] => 1 [options] => Array ( ) [days] => [15] [material_price] => [950] [work_price] => [2100] [image] => https://akademik-stroy.ru/wp-content/uploads/materials/gkl-1.jpg [area_modifier] => 174.8 [parent_name] => Черновая отделка стен [parent_id] => 32 [material_sum] => 209236 [work_sum] => 385434 [total_sum] => 594670 [total_days] => 15 [display_material_sum] => 209 236 [display_work_sum] => 385 434 [display_total_sum] => 594 670 ) 1
594 670
Работа:385 434
Материалы:209 236
Дни:15
stdClass Object ( [id] => 155 [attribute_id] => 32 [name] => Вагонка [material_modifier] => 1 [work_modifier] => 1 [options] => Array ( ) [days] => [15] [material_price] => [1250] [work_price] => [950] [image] => https://akademik-stroy.ru/wp-content/uploads/materials/vagonka.jpg [area_modifier] => 174.8 [parent_name] => Черновая отделка стен [parent_id] => 32 [material_sum] => 275310 [work_sum] => 174363 [total_sum] => 449673 [total_days] => 15 [display_material_sum] => 275 310 [display_work_sum] => 174 363 [display_total_sum] => 449 673 ) 1
449 673
Работа:174 363
Материалы:275 310
Дни:15
Черновая отделка полов
stdClass Object ( [id] => 65 [attribute_id] => 33 [name] => Нет [material_modifier] => 1 [work_modifier] => 1 [options] => Array ( ) [days] => [0] [material_price] => [0] [work_price] => [0] [image] => https://akademik-stroy.ru/wp-content/uploads/materials/styazhka.jpg [area_modifier] => 174.8 [parent_name] => Черновая отделка полов [parent_id] => 33 [material_sum] => 0 [work_sum] => 0 [total_sum] => 0 [total_days] => 0 [display_material_sum] => 0 [display_work_sum] => 0 [display_total_sum] => 0 ) 1
0
Работа:0
Материалы:0
Дни:0
stdClass Object ( [id] => 156 [attribute_id] => 33 [name] => Стяжка + наливные полы [material_modifier] => 1 [work_modifier] => 1 [options] => Array ( ) [days] => [10] [material_price] => [1000] [work_price] => [900] [image] => https://akademik-stroy.ru/wp-content/uploads/materials/styazhka.jpg [area_modifier] => 174.8 [parent_name] => Черновая отделка полов [parent_id] => 33 [material_sum] => 220248 [work_sum] => 165186 [total_sum] => 385434 [total_days] => 10 [display_material_sum] => 220 248 [display_work_sum] => 165 186 [display_total_sum] => 385 434 ) 1
385 434
Работа:165 186
Материалы:220 248
Дни:10
stdClass Object ( [id] => 157 [attribute_id] => 33 [name] => ОСБ на пол [material_modifier] => 1 [work_modifier] => 1 [options] => Array ( ) [days] => [7] [material_price] => [580] [work_price] => [350] [image] => https://akademik-stroy.ru/wp-content/uploads/materials/osb-1.jpg [area_modifier] => 174.8 [parent_name] => Черновая отделка полов [parent_id] => 33 [material_sum] => 127744 [work_sum] => 64239 [total_sum] => 191983 [total_days] => 7 [display_material_sum] => 127 744 [display_work_sum] => 64 239 [display_total_sum] => 191 983 ) 1
191 983
Работа:64 239
Материалы:127 744
Дни:7
Чистовая отделка стен и полов
stdClass Object ( [id] => 67 [attribute_id] => 34 [name] => Нет [material_modifier] => 1 [work_modifier] => 1 [options] => Array ( ) [days] => [0] [material_price] => [0] [work_price] => [0] [image] => https://akademik-stroy.ru/wp-content/uploads/materials/chistovaya-otdelka.jpg [area_modifier] => 174.8 [parent_name] => Чистовая отделка стен и полов [parent_id] => 34 [material_sum] => 0 [work_sum] => 0 [total_sum] => 0 [total_days] => 0 [display_material_sum] => 0 [display_work_sum] => 0 [display_total_sum] => 0 ) 1
0
Работа:0
Материалы:0
Дни:0
stdClass Object ( [id] => 68 [attribute_id] => 34 [name] => Есть [material_modifier] => 1 [work_modifier] => 1 [options] => Array ( ) [days] => [50] [material_price] => [6000] [work_price] => [3500] [image] => https://akademik-stroy.ru/wp-content/uploads/materials/chistovaya-otdelka.jpg [area_modifier] => 174.8 [parent_name] => Чистовая отделка стен и полов [parent_id] => 34 [material_sum] => 1321488 [work_sum] => 642390 [total_sum] => 1963878 [total_days] => 50 [display_material_sum] => 1 321 488 [display_work_sum] => 642 390 [display_total_sum] => 1 963 878 ) 1
1 963 878
Работа:642 390
Материалы:1 321 488
Дни:50
Отделка потолка
stdClass Object ( [id] => 69 [attribute_id] => 35 [name] => Нет [material_modifier] => 1 [work_modifier] => 1 [options] => Array ( ) [days] => [0] [material_price] => [0] [work_price] => [0] [image] => https://akademik-stroy.ru/wp-content/uploads/materials/mnogourovnevyj-gkl.jpg [area_modifier] => 174.8 [parent_name] => Отделка потолка [parent_id] => 35 [material_sum] => 0 [work_sum] => 0 [total_sum] => 0 [total_days] => 0 [display_material_sum] => 0 [display_work_sum] => 0 [display_total_sum] => 0 ) 1
0
Работа:0
Материалы:0
Дни:0
stdClass Object ( [id] => 70 [attribute_id] => 35 [name] => Есть [material_modifier] => 1 [work_modifier] => 1 [options] => Array ( [0] => Многоуровневый потолок из гипсокартона [1] => Многоуровневый потолок из гипсокартона и натяжного потолка [2] => Одноуровневый потолок из гипсокартона [3] => Одноуровневый натяжной потолок ) [days] => [10,10,1,1] [material_price] => [900,700,700,600] [work_price] => [1000,800,500,300] [image] => https://akademik-stroy.ru/wp-content/uploads/materials/mnogourovnevyj-gkl.jpg [area_modifier] => 174.8 [parent_name] => Отделка потолка [parent_id] => 35 [material_sum] => 198223 [work_sum] => 183540 [total_sum] => 381763 [total_days] => 10 [display_material_sum] => 198 223 [display_work_sum] => 183 540 [display_total_sum] => 381 763 ) 1
381 763
Работа:183 540
Материалы:198 223
Дни:10

Преимущества работы с нами

icon

7 этапов оплаты

icon

Независимый строительный надзор

icon

Экологически чистые материалы

icon

16 лет гарантии

icon

Онлайн-кабинет с веб-камерой

icon

Строители с опытом более 15 лет

icon

Собственное производство

Почему двухэтажный дом 15x12 – это разумный выбор для семьи в Москве

Когда речь заходит о выборе проекта для собственного дома, каждый хочет найти оптимальное сочетание функциональности, комфорта и доступной цены. Если вы планируете строить в Москве или Московской области, наверняка задумываетесь над тем, какой проект лучше подойдет именно для вашего участка и образа жизни. Именно здесь на сцену выходит двухэтажный дом с размерами 15 на 12 метров и полезной площадью почти 175 м². Это не просто набор цифр – это реально удобное пространство для жизни большой семьи с просторной жилой зоной и необходимыми техническими решениями. Компания "Академик Строй" предлагает готовый проект такого дома, уже адаптированный к российским реалиям и климату. Позволю себе сказать, что это тот редкий случай, когда вы получаете разумный по цене, тщательно продуманный проект, не переплачивая за лишние опции и невероятно сложные инженерные решения. Именно поэтому я рекомендую присмотреться именно к этому варианту, если нацелены на комфортное проживание без излишеств.

Общая характеристика проекта: что вы получаете

Прежде чем углубляться в детали, давайте поговорим о том, что именно предлагает проект двухэтажного дома 15x12 от "Академик Строй".
  • Полезная площадь: 174,8 м² – достаточно для комфортной жизни семьи из 4–6 человек;
  • Жилая площадь: 128,8 м² – это пространство, в котором расположены жилые комнаты;
  • Размеры дома: 15 на 12 метров – оптимальный размер для участка средней площади;
  • Этажей: 2 – чтобы удобно распределить зоны отдыха и общего пользования;
  • Количество спален: 4 – чтобы каждый член семьи чувствовал себя комфортно;
  • Количество санузлов: 2 – для удобства всех жильцов;
  • Площадь застройки: 183,7 м² – фактическая площадь «под ножкой», что важно для расчёта налога и территории участка;
  • Объем брутто: 856,8 м³ – характеристика, важная для инженерных расчётов;
  • Площадь крыши: 228,3 м² с углом наклона 42° и двускатной конструкцией;
  • Высота здания: 8,6 метров – вполне гармоничная, вписывающаяся в городскую застройку;
  • Минимальные размеры участка: 23,3 на 20 метров – чтобы дом не выглядел громоздко и оставалось место для участка.

Таблица основных параметров дома

Параметр Значение Комментарии
Полезная площадь 174,8 м² Простор для комфортной жизни
Жилая площадь 128,8 м² Жилые комнаты без учета коридоров и технических зон
Размеры дома 15 x 12 м Оптимальный размер для участка в Москве
Этажность 2 этажа Удобное зонирование дома
Количество спален 4 Достаточно для семьи и гостей
Санузлы 2 Удобно для нескольких человек
Площадь застройки 183,7 м² Фактическое занимаемое место на земле
Объем брутто 856,8 м³ Важен для строительных расчетов и энергетики
Площадь крыши 228,3 м² Двускатная крыша с углом 42°
Высота здания 8,6 м Вписывается в нормы для индивидуального жилья

Преимущества такого проекта для московских условий

Если вы строите дом в Москве, то, скорее всего, уже понимаете, что застройка города и близлежащих территорий требует особого подхода. Здесь, помимо основных критериев комфорта, следует обращать внимание на экономическую составляющую и особенности климата региона. Проект двухэтажного дома 15x12 как нельзя лучше подходит под эти требования.

Комфортная площадь для семьи

Четыре спальни — это скорее не роскошь, а необходимость для семьи с детьми или тех, кто планирует разнопоколенную жизнь в одном доме. Не нужно придумывать, где разместить гостей или организовать личное пространство для каждого члена семьи. Жилая площадь в 128,8 м² гарантирует приватность и удобство.

Правильное размещение комнат

Как правило, в таких проектах первого этажа располагается гостевая зона: кухня, столовая, гостиная, санузел для гостей и технические помещения. Второй же этаж — это спальни и ванная комната, обеспечивающие покой и приватность. Делать так логично и удобно всем, кто живет в доме.

Климатические особенности

Двускатная крыша с углом наклона 42° – оптимальный выбор для московского климата. Она позволяет быстро и эффективно сбрасывать снег в зимний период, что снижает риск дополнительных нагрузок и протечек. При этом площадь крыши 228,3 м² достаточна для установки солнечных панелей, если вы решите использовать альтернативные источники энергии.

Экономия места на участке

Минимальные размеры для участка – 23,3 на 20 метров. Такой дом не займёт всю территорию, оставляя пространство для сада, детской площадки или, например, беседки. В российских условиях это особенно актуально – ведь хочется иметь и зелёный уголок, и дом с комфортной планировкой.

Для кого подходит проект дома 15x12 с площадью 174,8 м²

Разберем, кому именно стоит обратить внимание на данный проект.

Молодые семьи с детьми

Четыре спальни — идеальный вариант для родителей, которые хотят иметь своё пространство, и для детей, чтобы у каждого был свой уголок. Наличие двух санузлов избавляет от бытовых неудобств по утрам или вечерам. Дом готов к тому, чтобы в нём проживала и семья, и иногда приезжали гости.

Семьи с пожилыми родителями

Второй этаж позволяет разнести зоны пребывания, обеспечив взрослым больше приватности. Если необходимо — часть комнаты может быть переоборудована под кабинет или комнату для хобби.

Любители просторного жилья и практичных решений

Этот проект сочетаем по размеру и функционалу, он не кажется перегруженным, а значит – здесь не придется переплачивать за лишние метры. Также на таком доме легко реализовать любые отделочные решения – от классики до современного стиля.

Как заказать проект у компании "Академик Строй" и что важно знать

Самое главное — это то, что проект уже готов и адаптирован под реальные задачи современного строительства. Заказать его можно буквально за пару дней. Компания "Академик Строй" ведет прием заказов по телефону +7 (980) 800-47-93, где менеджеры помогут подробно ознакомиться с проектом, ответят на все вопросы, а также подскажут варианты быстрой адаптации под ваш участок.

Этапы сотрудничества

  1. Связь по телефону или через сайт компании для получения консультации;
  2. Подписание договора и оплата проекта;
  3. Получение полного комплекта документации, включая архитектурные, конструктивные и инженерные чертежи;
  4. Настройка проекта под ваши требования (при необходимости);
  5. Начало строительства или передача проекта подрядчикам.

Почему стоит заказать именно здесь

Компания "Академик Строй" предлагает компактные и грамотно продуманные проекты, которые идеально подходят для условий Москвы и области. Цены на проект доступные, а специалисты всегда готовы помочь с доработкой, адаптацией и даже индивидуальным консультированием на этапе стройки.

Особенности конструкции и инженерных решений

Проект двухэтажного дома размером 15x12 м тщательно сбалансирован не только с точки зрения архитектуры, но и по технической части.

Двускатная крыша

Двускатная крыша с углом 42° — классика, проверенная временем. Такой вариант крыши универсален, надежен и относительно простой в строительстве. Снег и дождь не задерживаются на поверхности, что минимизирует риск протекания и устраняет необходимость частого ремонта.

Высота здания — 8,6 метра

Эта высота отлично вписывается в существующую застройку Москвы, что важно, если есть ограничение высотности по нормам или желание не выделяться из окружающего ландшафта. При этом внутри дома сохраняется ощущение простора за счет высоких потолков.

Объем здания 856,8 м³

Объем позволяет оценить общую вместимость и теплопотери здания. Это важный показатель при планировании отопления и вентиляционных систем, что в Московской области — залог комфортного микроклимата зимой и летом.

Некоторые часто задаваемые вопросы о проекте

Можно ли изменить планировку комнат?

Да, проект предусматривает возможность доработки. Компания "Академик Строй" может помочь адаптировать план под ваши личные предпочтения или особенности участка.

Подойдет ли этот дом для узкого участка?

Минимальная ширина участка — около 23 метров, что говорит о необходимости не очень узкого участка. Если ваш участок уже, есть смысл обсудить с архитектором варианты сужения дома.

Что включено в стоимость проекта?

Проект включает в себя рабочую документацию по архитектуре, конструктивные решения, планы электроснабжения и водоснабжения. Возможны дополнительные услуги по инженерным системам.

Практические советы при заказе и строительстве дома 15x12 в Москве

Чтобы строительство прошло гладко и быстро, а дом стал действительно вашим уютным гнездышком, стоит учитывать некоторые нюансы.

Подбор участка и подготовка

Удостоверьтесь, что ваш участок соответствует минимальным требованиям по размерам и конфигурации. Обеспечьте возможность подъезда техники и коммуникаций. Чем тщательнее подготовка, тем меньше проблем в процессе стройки.

Выбор строительных материалов

Для московского климата советую отдавать предпочтение качественным теплоизоляционным материалам – это поможет существенно сократить расходы на отопление. Оптимальны варианты с газобетонными блоками или керамическим кирпичом, комбинируемые с утеплителями.

Планирование инженерных систем

Обязательно учитывайте взятые в проекте объемы и площади для выбора систем отопления, вентиляции и электроснабжения. Желательно сразу согласовать с проектировщиками возможные варианты, чтобы избежать дополнительных затрат и корректировок в будущем.

Сроки строительства

Двухэтажный дом площадью около 170 м² вполне можно построить за 6-9 месяцев, при условии правильной организации и опытной бригады. Заказывая проект у "Академик Строй", вы можете рассчитывать на помощь в подборе подрядчиков и консультации на всех этапах стройки.

Итог: почему стоит выбрать этот проект

Если подвести итоги, то проект двухэтажного дома размером 15 на 12 метров с полезной площадью 174,8 м² — это как раз та золотая середина между комфортом, функционалом и разумной ценой. Это решение для тех, кто хочет жить просторно, но не переплачивать за лишние метры и сложные инженерные идеи. Компания "Академик Строй" предлагает полный цикл сопровождения проекта от подачи заявки до ваших консультаций во время стройки. Позвоните по телефону +7 (980) 800-47-93 и убедитесь сами: строительство собственного дома — это реально просто и доступно. В конце концов, лучший дом — это дом, который построен под вас и для ваших близких.