Общие характеристики одноэтажного дома размером 11х12 метров
Одноэтажные дома всегда пользуются спросом у тех, кто стремится к максимальному комфорту и удобству на одном уровне. Дом размером 11 на 12 метров — это оптимальное решение для семьи из 3-5 человек, желающей иметь просторное и функциональное жилое пространство. Общая площадь дома 99,12 м² делает этот проект привлекательным и эргономичным, поскольку он достаточно компактен для экономии средств на строительстве, но при этом предлагает достаточно места для всех необходимых помещений.
Конструкция одноэтажного дома упрощает процесс организации внутреннего пространства, а также позволяет избежать дополнительных затрат на лестницы и связанные с ними инженерные решения. Кроме того, одноэтажный дом подходит для всех возрастных категорий, в том числе для пожилых людей и семей с маленькими детьми, обеспечивая безопасное и комфортное проживание без барьеров.
Преимущества одноэтажных домов 11х12 метров
Проекты одноэтажных домов с размерами 11х12 метров выделяются своими преимуществами, которых не всегда хватает у многоэтажных построек. Рассмотрим более подробно, почему данный формат становится таким популярным.
Оптимальное пространство
Площадь 99,12 м² — это баланс между просторностью и компактностью. В таком доме можно разместить все необходимые помещения, не чувствуя себя в стесненных условиях. Три спальни — достаточно для проживания семьи с детьми или для организации гостевых комнат и кабинета.
Экономичность строительства и эксплуатации
Одноэтажные дома значительно дешевле возводить по сравнению с домами в два и более этажа. Отсутствие лестниц сокращает затраты на материалы и время выполнения работ. Эксплуатационные расходы, включая отопление и обслуживание кровли, также менее затратны, так как площадь поверхности меньше и теплопотери снижаются.
Удобство и безопасность
Жилье на одном уровне предоставляет удобство передвижения, что особенно важно для семей с маленькими детьми, пожилыми людьми или лицами с ограниченными физическими возможностями. Нет необходимости подниматься по лестницам, что снижает риск травм и делает дом более доступным.
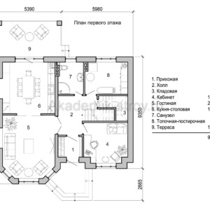
Планировка дома 11х12 м с тремя спальнями и двумя санузлами
Одним из ключевых факторов комфорта в доме является продуманная планировка. Дом в 99,12 м² с тремя спальнями и двумя санузлами предоставляет уникальную возможность рационально распределить пространство, учитывая потребности всех членов семьи.
Зоны отдыха и личного пространства
Три отдельные спальни обеспечивают каждому члену семьи возможность иметь личное пространство для отдыха и работы. Это особенно важно для подростков, родителей и гостей. Размещение спальней в разных частях дома позволяет повысить уровень приватности и тишины.
Два санузла: комфорт и удобство
Наличие двух санузлов — редкость в одноэтажных домах небольшой площади, что делает этот проект особенно удобным. Один санузел может располагаться как гостевой, второй — при спальнях, что облегчает утренние сборы и снижает очереди в ванной комнате.
Общая зона: гостиная и кухня
Общая жилая зона объединяет кухню, столовую и гостиную, создавая просторное светлое помещение, где собирается семья. Открытая планировка способствует поддержке общения и совместному проведению времени, а также визуально увеличивает пространство.
Материалы и технологии строительства одноэтажного дома 11х12 м
Выбор материала для дома — одна из ключевых задач на этапе проектирования. Он влияет на тепловые характеристики, экологичность, стоимость и сроки строительства. Рассмотрим несколько популярных вариантов для домов подобного размера.
Кирпич и блоки
Кирпичные и блочные дома отличаются высокой прочностью и долговечностью. Они хорошо сохраняют тепло, что важно для климатических условий России. Дом 11х12 из кирпича будет надежен и эстетичен, однако может потребовать дополнительных затрат на утепление и отделку.
Дерево и каркасные технологии
Деревянные дома или каркасные постройки легче по весу, быстрее возводятся и обладают хорошими теплоизоляционными свойствами. Современные каркасные технологии позволяют строить энергоэффективные дома с минимальными теплопотерями. Это отличный вариант для тех, кто ценит экологичность и скорость строительства.
Фундамент и кровля
Для одноэтажного дома размером 11х12 м достаточно мелкозаглубленного ленточного или плитного фундамента, что снижает стоимость. Кровля может быть как скатной, так и плоской в зависимости от архитектурного стиля и предпочтений. Важно учитывать климатические условия и материалы покрытия для обеспечения долговечности и комфорта.
Важные аспекты проектирования и планирования участка для дома 11х12 м
Размер дома 11 на 12 метров формирует определенные требования к участку, на котором он будет стоять. Предварительное планирование участка позволяет максимально использовать возможности дома и обеспечивать комфортную жизнь его обитателям.
Минимальные размеры участка
Для размещения одноэтажного дома 11х12 м с прилегающей зоной отдыха, садом и хозяйственными постройками рекомендуется участок площадью не менее 6-8 соток. Это обеспечит достаточно пространства для озеленения, парковки и организации ландшафтного дизайна.
Ориентация дома
Оптимальная ориентация дома по сторонам света помогает существенно экономить на отоплении и кондиционировании. Обычно гостиные и основные жилые комнаты ориентируют на южную или юго-западную сторону для максимального поступления естественного света, а технические помещения и спальни размещают с северной стороны.
Благоустройство участка
Обустройство участка вокруг дома должно учитывать потребности семьи: выделение места для детской площадки, зоны барбекю, огорода или цветника. При этом важно соблюсти нормы пожарной безопасности и обеспечить свободное движение вокруг дома для обслуживания и ремонта.
Таблица: Распределение помещений в доме 11х12 м
| Помещение | Площадь, м² (ориентировочно) | Назначение |
|---|---|---|
| Гостиная + кухня-столовая | 35 | Общая зона для отдыха, приема пищи и общения |
| Спальня 1 | 14 | Основная спальня для родителей |
| Спальня 2 | 12 | Детская или гостевая комната |
| Спальня 3 | 12 | Кабинет или дополнительная спальня |
| Санузел 1 | 5 | Основной санузел с ванной или душем |
| Санузел 2 | 3 | Гостевой или дополнительный санузел |
| Прихожая и коридоры | 10 | Связь между зонами дома и хранение вещей |
Рекомендации по внутреннему дизайну и отделке дома 11х12 м
Одноэтажный дом площадью около 100 м² открывает широкие возможности для реализации разных стилевых решений в дизайне интерьера. Правильный выбор отделочных материалов и грамотная организация пространства поможет создать гармоничное и комфортное жилье.
Цветовые и световые решения
Светлые оттенки визуально увеличивают пространство и делают комнаты более воздушными. Для пола рекомендуется использовать прочные материалы — керамогранит, ламинат или качественную древесину. Светлые стены в сочетании с яркими акцентами в текстиле, мебели и декоре создадут уютное настроение.
Рациональное использование пространства
В небольшом доме важна каждая деталь. Рекомендуется использовать встроенные шкафы и системы хранения, которые минимизируют беспорядок и экономят полезное пространство. Многофункциональная мебель, например, раскладные диваны и трансформируемые столы, отлично подходят для дома с ограниченной площадью.
Зонирование помещений
Разграничьте зону отдыха, работы и приема пищи с помощью света, мебели и визуальных элементов. Например, перегородки из стекла или открытые стеллажи помогут отделить кухню от гостиной, сохраняя при этом ощущение простора.
Энергоэффективность и инженерные системы
Современный дом должен быть не только красивым и удобным, но и отвечать требованиям энергоэффективности. Это позволяет существенно экономить на отоплении, кондиционировании и потреблении электроэнергии, а также создавать комфортный микроклимат.
Теплоизоляция и вентиляция
Для одноэтажного дома 11х12 м важна качественная теплоизоляция стен, крыши и пола. Это особенно актуально для регионов с холодным климатом. Использование современных утеплителей и пароизоляционных мембран обеспечивает сохранение тепла и защиту конструкций от влаги.
Эффективная система вентиляции с рекуперацией тепла позволит обеспечить свежий воздух без потерь тепла. Это также способствует поддержанию здоровой атмосферы внутри дома и предотвращает образование плесени и конденсата.
Инженерные коммуникации
Организация водоснабжения, канализации, электрики и отопления должна учитывать компактные размеры дома и количество проживающих. В проекте с тремя спальнями и двумя санузлами необходимо предусмотреть современную сантехнику и достаточное количество точек доступа к воде и электроснабжению.
Заключение
Одноэтажный дом размером 11 на 12 метров с общей площадью около 99 м² — это отличный выбор для семей, которые хотят иметь комфортное, функциональное и экономичное жилье. Такой дом сочетает в себе удобство одноуровневого проживания, рациональную планировку с тремя спальнями и двумя санузлами, а также возможности для воплощения различных архитектурных и дизайнерских решений.
Подобные проекты становятся все более востребованными в современном строительстве благодаря своей практичности и уюту. Они позволяют создавать долговечное жилье, отвечающее потребностям семьи на долгие годы.




























