Двухэтажный дом 13x15 м – воплощение комфорта и функциональности
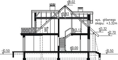
Проект двухэтажного дома размером 13 на 15 метров с полезной площадью 169,3 м² представляет собой идеальный баланс между простором, удобством и эргономикой. В современном строительстве частных домов такие параметры становятся золотой серединой для семей, стремящихся совместить удобство городской квартиры с преимуществами загородного жилья. Этот дом при общей высоте 8,5 метра и двускатной крыше с наклоном 42 градуса отлично впишется практически в любой ландшафт, обеспечив при этом отличный уровень теплоизоляции и привлекательный внешний вид.
Особенность данной компоновки — это продуманный планировочный состав, который рассчитан на размещение четырех спален и двух санузлов, что идеально подходит для большой семьи. Жилая площадь в 138,4 м² гарантирует обособленное персональное пространство для каждого члена семьи и вместе с тем сохраняет ощущение открытости и единства дома.
Отсутствие гаража в проекте открывает дополнительные возможности для оформления ландшафтного дизайна или обустройства зоны отдыха рядом с домом. Это создает простор для творчества и индивидуальных решений в благоустройстве участка.
Площадь и размеры дома: оптимальное решение для семьи
Размеры дома 13 на 15 метров предоставляют заметное преимущество в плане внутренней организации пространства и комфортного размещения всех необходимых помещений. Общая площадь застройки составляет 137,2 м², что позволяет сооружению занимать оптимальное место на участке, не создавая при этом чрезмерной нагрузки на земельный ресурс.
Полезная площадь в 169,3 м² говорит о том, что внутреннее пространство дома максимально эффективно используют каждый метр с умом — без лишних коридоров и малофункциональных площадей. Благодаря этому под жилые помещения отведены практически все квадратные метры, что напрямую увеличивает удобство проживания и снижает издержки по отоплению и обслуживанию.
Технические характеристики и параметры дома
| Параметр | Значение |
|---|---|
| Размеры дома | 13 x 15 м |
| Полезная площадь | 169,3 м² |
| Жилая площадь | 138,4 м² |
| Площадь застройки | 137,2 м² |
| Объем брутто | 840,5 м³ |
| Площадь крыши | 219,5 м² |
| Угол наклона крыши | 42° |
| Высота здания | 8,5 м |
| Этажность | 2 этажа |
| Количество спален | 4 |
| Количество санузлов | 2 |
| Минимальная ширина участка | 21,2 м |
| Минимальная длина участка | 22,5 м |
Планировка дома: 4 спальни и 2 санузла – для комфорта всей семьи
Одним из ключевых преимуществ данного проекта является рациональная планировка внутреннего пространства, которая предусматривает четыре спальные комнаты на двух этажах. Такое решение будет особенно удобным для семей с детьми, где каждый член семьи может иметь своё личное пространство для отдыха и работы.
Наличие двух санузлов в доме позволяет значительно повысить уровень комфорта, особенно в утренние и вечерние часы, когда многие нуждаются в одновременном использовании ванной комнаты. Это существенно экономит время и снижает возможные неудобства.
Как правило, основная спальня располагается на одном из этажей, выделяясь своей просторностью и удобствами, что создаёт ощущение уюта и приватности. Остальные спальни могут быть предназначены для детей, гостей или же использоваться как кабинет или хобби-зона.
Типичная структура комнат
- Гостиная – просторное место для встреч и отдыха;
- Кухня с обеденной зоной – современная и функциональная;
- Четыре спальни, расположенные удобно друг к другу;
- Два санузла: один на первом, второй – на втором этаже;
- Технические и хозяйственные помещения для обеспечения комфорта;
- Разумно организованные коридоры, позволяющие без лишних потерь перемещаться по дому.
Крыша и фасад: двускатная кровля с наклоном 42°
Двускатная крыша с углом наклона в 42 градуса является классическим решением для частных домов. Такой наклон крыши оптимален для отведения осадков и предотвращения скопления снега в зимнее время, что значительно увеличивает срок службы кровельного покрытия. Площадь крыши в 219,5 м² обеспечивает достаточную защиту здания от неблагоприятных погодных условий.
Кроме того, двускатная крыша позволяет разместить полезное пространство на мансардном этаже, если принято решение о приспособлении чердака под жилые нужды. Это расширяет функциональные возможности дома без существенного увеличения строительных затрат.
Внешний вид дома с такой крышей характеризуется лаконичностью и гармоничностью, что хорошо вписывается как в городской, так и в природный пейзаж. Материалы для фасада и кровли можно подобрать с учетом региональных климатических особенностей и личных дизайн-предпочтений.
Требования к участку под строительство
Минимальные размеры участка, необходимого для строительства дома размером 13 на 15 метров, составляют 21,2 метра по ширине и 22,5 метра по длине. Это значит, что даже при относительно небольших размерах земельного участка можно комфортно разместить дом с учетом требований СНиП и нормативных актов, связанных с отступами от соседних построек и границ участка.
Правильно выбранный участок будет иметь место для организации зоны отдыха, небольшого сада или детской площадки, а также подъездных путей и стоянки автомобилей. В условиях плотной городской застройки такой дом станет настоящим островком уюта и спокойствия.
Преимущества проекта для инвестирования и строительства
- Достаточная площадь для комфортного проживания семьи из 4-6 человек;
- Умеренные габариты, позволяющие снизить стоимость земельного участка;
- Два этажа при высоте здания 8,5 метра создают объемный и просторный интерьер;
- Двускатная крыша гарантирует длительный срок эксплуатации;
- Оптимальная стоимость строительства — 6 354 399 рублей за готовый объект;
- Возможность адаптации проекта под индивидуальные запросы за счет отсутствия встроенного гаража.
Стоимость строительства: разумное вложение в качество и комфорт
Цена строительства такого дома, составляющая около 6 354 399 рублей, полностью соответствует ожиданиям по соотношению качества и площади. Это продуманное вложение в надежное, долговечное и функциональное жилье. В указанную стоимость включаются все основные строительные работы, а также материалы и инженерные системы, обеспечивающие комфортный уровень жизни в любой сезон.
Важно отметить, что при грамотном управлении процессом строительства возможно оптимизировать бюджет, благодаря чему стоимость может быть снижена без ущерба для качества. Профессиональные застройщики применяют передовые технологии и качественные стройматериалы, что дополнительно увеличивает срок службы дома и снижает будущие расходы на эксплуатацию.
Что входит в стоимость строительства дома 169,3 м²?
| Компонент | Описание |
|---|---|
| Фундамент | Монолитный железобетонный или свайный в зависимости от грунта |
| Стены | Качественные материалы с хорошими теплоизоляционными характеристиками |
| Кровля | Двускатная крыша со всеми необходимыми гидро- и теплоизоляционными слоями |
| Отделочные работы | Внутренние и наружные отделочные работы, включая штукатурку и покраску |
| Инженерные коммуникации | Электропроводка, водопровод и система отопления |
| Окна и двери | Энергосберегающие стеклопакеты и надежные двери |
Почему стоит выбрать этот проект для строительства собственного дома?
Данный проект представляет собой удачное решение для семей, которые ищут одновременно просторный, но при этом компактный и современный дом. Благодаря двум этажам и продуманной планировке, здесь сочетаются удобство, функциональность и современный дизайн. Четыре спальни и два санузла ответят на потребности даже большой семьи без ущерба свободе передвижения в доме.
Практичная двускатная крыша обеспечит надежность конструкции и долговечность жилища в любых климатических условиях, а умеренная высота дома позволит избежать дополнительных затрат на утепление и отделку. С учетом ориентировочной стоимости строительства в 6,35 миллионов рублей, этот дом станет прекрасным вложением средств в крепкий и уютный семейный очаг.
Минимальные требования к участку делают его привлекательным для застройщиков, готовых подобрать площадку с оптимальным соотношением цены и удобства расположения. В итоге вы получаете современный дом с хорошей логистикой и продуманным пространством, способный обеспечить качественную жизнь на долгие годы.




