Общие характеристики двухэтажного дома 15x11
Проект двухэтажного дома размером 15 на 11 метров — это гармоничное сочетание просторных жилых помещений и рационального использования площади. Полезная площадь этого дома составляет внушительные 176,34 квадратных метра, что позволяет разместить всю необходимую для комфортной жизни семью инфраструктуру. Благодаря оптимальной планировке и современным строительным технологиям, такой дом станет отличным вариантом для тех, кто ищет просторное и функциональное жилье без лишних сложностей.
Габариты здания 15 на 11 метров идеально подходят для малоэтажного строительства как в пригородных поселках, так и на участках городской застройки с достаточной площадью. Высота дома составляет 8,57 метров, что усиливает ощущение простора, а при высоте аттиковой стены 0,80 метра достигается дополнительный комфорт использования верхнего этажа.
Планировка и жилая площадь
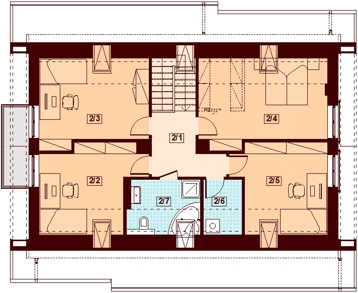
Проект предусматривает два этажа, что даёт возможность грамотно разделить зону дневного и ночного пребывания. Жилая площадь равна 146,84 квадратным метрам, что говорит о просторном размещении жилых комнат и удобных местах общего пользования. Планировка дома включает более 5 спален, что особенно актуально для больших семей, где каждому члену нужна своя зона уединения и отдыха.
Наличие двух санузлов значительно повышает комфорт жизни, устраняя очереди и обеспечивая удобство даже в периоды максимальной загруженности дома. Санузлы можно расположить как на первом, так и на втором этаже, что делает пользование ими максимально удобным для всех жителей и гостей.
Размещение спален
Как правило, в домах такого размера пять и более спален размещаются преимущественно на втором этаже, где обеспечивается более тихая и приватная обстановка. Это позволяет разграничить пространство дома, выделяя отдельные зоны для отдыха и работы. В каждой спальне можно предусмотреть ниши под шкафы, удобные окна с хорошим естественным освещением и, по желанию, балконные двери (хотя в проекте балконов и террас не предусмотрено).
Общие помещения
Первый этаж традиционно включает в себя гостиную, столовую, кухню и технические помещения. Удобная кухня с современным оснащением позволяет готовить с комфортом, а объединённое пространство гостиной и столовой создаёт уютную атмосферу для семейных встреч и приёма гостей.
Строительные параметры и особенности крыши
Здание оборудовано двускатной крышей с углом наклона 40°, что является оптимальным решением для климата с частыми осадками и снегопадами. Такая крыша прекрасно сбрасывает воду, предотвращая протекания и накопление снега, увеличивая срок эксплуатации кровельного покрытия и минимизируя риск аварийных ситуаций.
Площадь крыши составляет 224,18 квадратных метра, что чуть превышает площадь самого дома, благодаря свесам и выступам, предохраняющим стены от дождя и солнца. Угол наклона в 40° также способствует полноценному использованию чердачного пространства, которое может использоваться для технических коммуникаций или дополнительных кладовых.
Высота здания и аттиковые стены
Высота дома в 8,57 метров — это оптимальное значение, которое позволяет не только обеспечить высокий комфорт внутри помещения, но и вписать строение в стандарты малоэтажного строительства. Аттиковые стены высотой 0,80 метра служат переходом между жилой частью и крышей, облегчая планировку второго этажа и скрывая коммуникации. Эти стены создают эстетичный внешний вид и придают дому более современный и строгий характер.
Площадь застройки и требования к участку
Площадь застройки для дома составляет 141,91 квадратных метров. Это означает, что на фундамент и внешние стены дома будет приходится именно эта площадь, что важно учитывать при подготовке участка к строительству и оформлении разрешительной документации. Для того чтобы разместить такой дом на земельном участке, нужны минимальные размеры участка не меньше 22,54 метра по ширине и 18,64 метра по длине.
Минимальные размеры участка учитывают необходимые отступы от границ соседних домов и обязательные санитарные зоны. Если участок меньше этих параметров, расположить данный дом на нем не получится без нарушения строительных норм, что может привести к административным последствиям и дополнительным затратам.
Требования к проектированию участка
Создание благоустроенной территории вокруг дома является неотъемлемой частью комфортного проживания. Следует заранее продумать план размещения подъездных путей, зон отдыха, газонов и огородов. Несмотря на отсутствие встроенного гаража, достаточно пространства для организации парковки автомобилей во дворе или строительства отдельно стоящего гаражного блока.
Стоимость строительства и экономическая составляющая
Относительно стоимости реализации проекта — цена двухэтажного дома площадью 176,34 кв.м находится на уровне 6 537 572 рублей. Это весьма конкурентоспособное предложение, учитывая параметры дома, качество материалов и используемые технологии. В стоимость, как правило, входит не только сам дом, но и фундамент, кровля, полный набор инженерных систем и отделочные работы.
Экономическая составляющая проекта выражена в сбалансированном соотношении цены и качества, что позволяет получить крепкий, долговечный и удобный дом без переплат за избыточные дизайнерские решения. Для большинства семей такая сумма является оптимальной инвестицией в качественное жильё на долгие годы.
Факторы, влияющие на стоимость
- Используемые строительные материалы (кирпич, газобетон, дерево и прочие).
- Уровень отделки (чистовая, предчистовая, «под ключ»).
- Особенности инженерных систем (отопление, водоснабжение, электрика).
- Региональные особенности и стоимость рабочей силы.
Архитектурные и технические преимущества
Просторные размеры дома и продуманная двухэтажная планировка делают жильё максимально комфортным и многофункциональным. В отличие от одноэтажных проектов, двухэтажный дом позволяет экономить площадь участка и при этом получить все необходимые комнаты для большой семьи.
Высокая высота потолков и пространство под крышей с правильным углом наклона создают приятную атмосферу внутри дома. Хорошая теплоизоляция и грамотная вентиляция значительно снижают расходы на отопление и кондиционирование, что положительно сказывается на семейном бюджете в долгосрочной перспективе.
Таблица основных параметров дома
| Параметр | Значение |
|---|---|
| Размеры дома | 15 x 11 м |
| Полезная площадь | 176,34 м² |
| Жилая площадь | 146,84 м² |
| Количество этажей | 2 |
| Количество спален | 5+ |
| Количество санузлов | 2 |
| Площадь крыши | 224,18 м² |
| Угол наклона крыши | 40° |
| Высота здания | 8,57 м |
| Высота аттиковой стены | 0,80 м |
| Площадь застройки | 141,91 м² |
| Минимальная ширина участка | 22,54 м |
| Минимальная длина участка | 18,64 м |
| Стоимость строительства | 6 537 572 руб. |
Преимущества двухэтажного дома в сравнении с другими вариантами
Двухэтажные дома всегда пользовались спросом за счёт своей функциональности и разумного подхода к использованию земельного участка. В сравнении с одноэтажными аналогами, они требуют меньше места по периметру, что важно для участков с ограниченной площадью или в условиях плотной застройки. При этом двухэтажные проекты позволяют увеличить жилую площадь вдвое без значительного удорожания фундамента и кровли.
Также стоит отметить, что такой дом выглядит более внушительно и прекрасно подходит для семей с детьми, поскольку на втором этаже можно обустроить просторные и удобные детские комнаты и спальни родителей. Это обеспечивает тишину и покой на ночь, а также возможность организовать личное пространство.
Недостатки и решения
- Необходимость организации удобной лестницы – современный дизайн и эргономика позволяют создавать безопасные, удобные и эстетичные лестницы.
- Расходы на отопление второго этажа – современные энергоэффективные технологии и утепление стен позволяют снизить затраты на отопление до минимума.
- Риск шума при использовании лестницы – установка качественного звукоизоляционного покрытия и уплотнителей в конструкции лестницы помогает устранить этот недостаток.
Заключение и рекомендации по выбору проекта
Проект двухэтажного дома 15x11 метров с полезной площадью 176,34 квадратных метра — это выбор тех, кто ищет простор, функциональность и комфортное проживание в условиях современного загородного строительства. Возможность разместить более 5 спален, два санузла и просторные общие зоны открывают большие перспективы для семейного уюта и удобного быта.
Если вы планируете строительство дома для большой семьи, нуждаетесь в современном и стильном решении — этот проект подготовлен так, чтобы оптимально соответствовать вашим требованиям и финансовым возможностям. Продуманная планировка, качественные материалы и современный архитектурный стиль обеспечивают надежность и привлекательность этого двухэтажного дома на долгие годы.







