Введение в проект двухэтажного дома 10х14 м
Планирование и строительство частного дома — это всегда большой и ответственный шаг для любой семьи. В условиях плотной застройки и ограниченного участка оптимальное решение — дом с компактным, но продуманным планом. Двухэтажный дом размером 10 на 14 метров представляет собой один из наиболее удачных вариантов для тех, кто ценит комфорт и простор при ограниченной площади застройки. В этой статье мы подробно рассмотрим особенности дома с размерами 10х14, общей площадью около 400,51 м², а также узнаем, какие преимущества предоставляет жилье с двумя этажами и пятью спальнями.
Двухэтажный формат – один из самых популярных в современном частном домостроении. Он позволяет разделить пространство на зоны с максимальной эффективностью, сохраняет значительную часть территории для сада, зоны отдыха или хозяйственных построек. Несмотря на отсутствие гаража, о котором мы тоже расскажем, такой дом полностью отвечает нуждам большой семьи и сопровождается продуманным количеством санузлов и жилых комнат.
Размеры и планировка дома 10 на 14 метров
Дом размерами 10 на 14 метров является отлично сбалансированным вариантом для участка средней площади. Эти габариты достаточно компактны для частей с нестандартной или узкой территорией, но в то же время предоставляют достаточное внутреннее пространство для комфортного проживания.
При площади застройки примерно в 140 м² и общей площади дома около 400,51 м², достигается оптимальное сочетание комнат для разных целей: жить, работать, отдыхать и заниматься хобби. За счет двух этажей площадь увеличивается приблизительно вдвое по сравнению с одноэтажным домом аналогичной площадью основания, что даёт заметное преимущество при небольшом размере участка.
Основы проектирования 10x14 дома
Правильное распределение пространства очень важно для рационального использования площади каждого этажа. В подобных домах традиционно первый этаж отводят под общественные помещения — прихожую, гостиную, кухню и столовую, а второй этаж — под спальни и санузлы. Такой принцип зонирования создает ощущение приватности и удобства.
- Первый этаж обычно совмещает просторную гостиную с выходом на участок или террасу.
- На втором этаже размещаются, как правило, 5 и более спален, что идеально для большой семьи.
- 3 санузла обеспечивают комфортное пребывание всех жильцов без очередей.
Преимущества двухэтажного дома с большой спальней
Главным отличием такого проекта является количество спален — их более пяти, что позволяет разместить всех членов семьи и даже предусмотреть гостевые комнаты или личные кабинеты. Современный ритм жизни требует пространства для уединения, особенно если семья большая или в доме живут несколько поколений.
Два этажа дают возможность реализовать различные стилистические и функциональные решения. Например, на втором этаже можно предусмотреть мастер-спальню с отдельным санузлом и гардеробной, а также детские комнаты с большим количеством окон для естественного освещения. Это удобно как для детей, так и для взрослых.
Расположение санузлов в доме
Наличие трех санузлов в доме размером 10 на 14 метров — это важный аспект, который значительно повышает уровень комфорта. Обычно распределение санузлов происходит следующим образом:
- Гостевой санузел на первом этаже — доступен для всех посетителей и одновременно удобен для дневного пользования.
- Два полноценных санузла на втором этаже — по одному на разные жилые зоны или спальни.
Такое количество санузлов минимизирует время ожидания, особенно в утренние часы, и поддерживает приватность для членов семьи.
Архитектурные особенности и конструктивные решения
Дом с шириной 10 и длиной 14 метров предоставляет удобные условия не только для внутренней планировки, но и для выбора конструкции стен, крыши и элементов фасада. Площадь около 400,51 м² позволяет реализовать современный стиль с холстом для творчества архитектора и дизайнера.
Двухэтажные дома в таких размерах традиционно строятся из кирпича, газобетона или деревянных панелей с утеплением по современным технологиям. Важна устойчивость конструкции, качественная звукоизоляция между этажами и способность дома выдерживать погодные нагрузки.
Выбор крыши и кровельного материала
Хотя точный тип крыши в проекте не указан, можно рассмотреть наиболее распространенные варианты для двуэтажного дома 10x14 м:
| Тип крыши | Преимущества | Недостатки |
|---|---|---|
| Двускатная | Простота конструкции, хороший сток воды, классический внешний вид | Ограничение пространства под крышей, требует дополнительного утепления |
| Мансардная | Дополнительное жилое пространство под крышей, оригинальный дизайн | Сложность монтажа, возможные потери тепла при неправильном утеплении |
| Плоская | Современный внешний вид, возможность сделать террасу на крыше | Сложный отвод воды, требовательность к качеству гидроизоляции |
В зависимости от климата и предпочтений владельцев, выбирается оптимальный вариант с учётом технологии строительства, а также эстетических и эксплуатационных требований.
Отсутствие гаража как функциональное решение
В проекте дома отсутствует гараж, что может быть обусловлено разными причинами. Например, на ограниченном по размеру участке может быть выгоднее выделить больше пространства под жилые зоны и сады, чем под парковку. Вместо гаража можно предусмотреть открытые парковочные места или отдельные хозяйственные постройки на территории.
Такой подход позволяет сосредоточиться на интерьерных решениях и благоустройстве зоны отдыха, а также избежать дополнительных затрат на строительство и обслуживание гаража. При этом современные владельцы домов зачастую предпочитают использовать многофункциональные пространства в доме, а автомобили ставить у дома под навесом или на улице.
Минимальные требования к участку для строительства дома 10х14 м
Для успешной и комфортной реализации проекта двухэтажного дома 10 на 14 метров необходимо учитывать параметры участка. Хотя проект сам по себе предполагает весьма экономное использование площади, участок для такого дома должен быть оптимальных размеров, чтобы обеспечить минимальное расстояние до границ по строительным нормам и создать привлекательное пространство вокруг дома.
| Параметр | Рекомендуемое значение | Обоснование |
|---|---|---|
| Минимальная ширина участка | Не менее 15-16 метров | Для размещения дома с отступами и минимальных проходов по бокам |
| Минимальная длина участка | Не менее 20-22 метров | Для обеспечения комфортного расположения дома и зоны перед домом |
Эти размеры обеспечивают дополнительное пространство для выхода на улицу, зону отдыха, контейнеры для мусора и возможность озеленения территории.
Внутренняя организация пространства в доме 10 на 14 метров
Одним из важных аспектов комфортного проживания является удобная внутренняя планировка. Двухэтажный дом с пятью спальнями и тремя санузлами легко предоставляет возможность продуманного зонирования. Это особенно важно для семей с детьми или состоящих из нескольких поколений.
Рассмотрим основные элементы внутреннего устройства:
Первый этаж — общественная зона
На первом этаже располагаются:
- Гостиная — большая и светлая, с выходом в сад или на террасу;
- Кухня, объединённая со столовой — для удобства приготовления и совместных семейных обедов;
- Гостевой санузел — предназначен как для семейных нужд, так и для посетителей;
- Прихожая и технические помещения — размещены с минимальными проходными расстояниями.
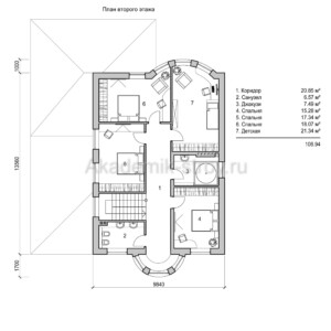
Второй этаж — личная зона
На втором этаже с успешной планировкой предусмотрены:
- Пять и более спален — для каждого члена семьи или под дополнительные функции (гостевые комнаты, кабинеты);
- Два санузла — обеспечивают комфорт, особенно в утренние часы и при занятости одного из санузлов;
- Холл с дополнительным пространством для отдыха или хранения.
Примеры планировки двухэтажного дома 10x14 м с пятью спальнями
Для наглядности рассмотрим пример распределения комнат в доме такого типа. Это поможет читателям понять, как можно организовать пространство в рамках указанных параметров.
| Этаж | Комната | Площадь, м² (примерно) | Описание |
|---|---|---|---|
| Первый этаж | Гостиная | 35-40 | Просторная, с большими окнами и выходом во двор |
| Первый этаж | Кухня-столовая | 25-30 | Объединённая зона для семейных обедов и приготовления пищи |
| Первый этаж | Гостевой санузел | 4-5 | Удобство для гостей и домочадцев |
| Второй этаж | Спальня 1 (мастер) | 20-25 | С гардеробной и санузлом |
| Второй этаж | Спальня 2 | 15-18 | Комната для ребенка или гостевая |
| Второй этаж | Спальня 3 | 15-18 | Дополнительное спальное место или кабинет |
| Второй этаж | Спальня 4 | 15-18 | Комната для подростка |
| Второй этаж | Спальня 5 | 15-18 | Гостевая или игровая |
| Второй этаж | Два санузла | 6-8 каждый | Разделены для удобства пользователей |
Технические аспекты строительства и эксплуатационные характеристики
При реализации проекта дома 10х14 м важно учитывать не только архитектурные и дизайнерские решения, но и технологические особенности, включая выбор материалов, методы теплоизоляции и организации инженерных сетей.
Двухэтажное здание требует надежной конструкции перекрытий, что особенно важно для комфорта и безопасности. Кроме того, система отопления, вентиляции и водоснабжения должна быть рассчитана на количество жильцов и площадь дома.
Используемые материалы и энергосбережение
Для стен обычно применяются газобетонные блоки или кирпич, которые обеспечивают хорошую теплоизоляцию. Внешняя отделка может быть выполнена из облицовочного кирпича, штукатурки или современного вентилируемого фасада.
Энергоэффективность дома дополнительно улучшается за счет применения двойных или тройных стеклопакетов на окнах, качественного утепления крыши и системы рекуперации воздуха. Это снижает эксплуатационные расходы и создает комфортный микроклимат.
Инженерные коммуникации и системы безопасности
Трёхсанузловый дом обеспечивает возможность установки современного сантехнического оборудования, в том числе систем подогрева полов и эффективной вентиляции в ванных комнатах и кухне. Важно также внедрить системы пожарной безопасности и сигнализации, особенно в больших семьях.
Преимущества жизни в доме 10 на 14 с двумя этажами
Выбирая двухэтажный дом размером 10х14 метров, вы получаете:
- Рациональное использование земли при сохранении большого пространства для дома;
- Оптимальное количество жилых комнат для большой семьи или совместного проживания с родственниками;
- Удобное разделение жилья на общественные и приватные зоны;
- Возможность реализации различных архитектурных и дизайнерских идей;
- Высокий комфорт благодаря трём санузлам и достаточному естественному освещению;
- Минимальную площадь фундамента и уменьшение стоимости кровли в сравнении с большими по площади одноэтажными домами.
Заключение по проекту двухэтажного дома 10х14
Проект двухэтажного дома 10х14 метров с площадью около 400,51 м² идеально подходит для семей, которые хотят сочетать компактные размеры участка и просторное, функциональное жильё. Пять и более спален, три санузла и рациональная планировка обеспечивают высокий уровень комфорта и удобства.
При грамотном проектировании и выборе материалов жильё станет теплым, энергоэффективным и долговечным домом, который будет радовать своих владельцев долгие годы. Такая площадь и этажность дают возможность реализовать множество индивидуальных решений, от классики до современного дизайна, сохраняя при этом функциональность и комфорт.














































