Обзор двухэтажного дома 9х12 – оптимальное решение для большой семьи
Планировка дома размером 9 на 12 метров уже давно доказала свою успешность для комфортного проживания среднестатистической семьи. Особенно привлекательным вариант представляется двухэтажный дом площадью 172,03 м², который прекрасно сочетает в себе функциональность, эргономику и эстетическую привлекательность. Такой дом отлично подходит как для постоянного проживания, так и для загородного отдыха.
Что делает двухэтажный дом с габаритами 9 на 12 метров столь востребованным? В первую очередь — это возможность оптимизации пространства, позволяющая на ограниченной площади уместить все необходимые комнаты и функциональные зоны. Вторая его неоспоримая особенность — грамотное зонирование, благодаря которому каждый член семьи сможет иметь личное пространство, не нарушая при этом общую гармонию внутри дома.
Размеры дома 9x12 и их преимущества
Размеры дома 9 на 12 метров считаются достаточно универсальными для создания комфортного жилого пространства. Эти габариты позволяют эффективно использовать строительные материалы, оптимизировать расходы на отделочные работы и инженерные коммуникации, не превышая при этом допустимых нормативов по площади.
Дом таких размеров отлично вписывается практически на любой стандартный участок, что дает гибкость при выборе места размещения здания на глубине и ширине участка. Кроме того, при планировании интерьера подобный двухэтажный проект позволяет реализовать самые разные дизайнерские решения, не жертвуя личным комфортом жильцов.
| Параметр | Значение | Комментарий |
|---|---|---|
| Длина дома | 12 м | Оптимальна для размещения длинной гостиной и кухни |
| Ширина дома | 9 м | Позволяет разместить комнаты с естественным освещением |
| Общая площадь | 172,03 м² | Достаточно для комфортного проживания семьи из 4-5 человек |
Два этажа — функциональность и комфорт в каждом квадранте
Наличие двух этажей существенно расширяет возможности планировки и эргономики дома. Первый этаж традиционно отводится под общие зоны — гостиную, кухню, столовую, прихожую, а также один из санузлов. Это делает жизнь максимально удобной, особенно в моменты приема гостей и обустройства хозяйственных процессов.
Второй этаж, в свою очередь, обычно занимает приватная зона с несколькими спальнями, санузлом и дополнительными помещениями, которые могут быть организованы под кабинет, игровую или гардеробную. Для семьи из четырёх человек такой подход просто незаменим — каждый получает свой уголок отдыха и уединения.
Преимущества двухэтажной конструкции
- Рациональное использование территории. Вместо расширения фундамента горизонтально — при доступной площади на участке — дом поднимается ввысь.
- Зонирование пространства. Легкое разделение на общественные и приватные зоны.
- Визуальная привлекательность. Многоуровневое строение гармонично вписывается в ландшафт.
- Удобство проведения инженерных коммуникаций. Возможность централизованного размещения систем отопления и водоснабжения.
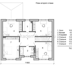
Планировка и дизайн: 4 спальни и 2 санузла
Для проектов с такой площадью и количеством этажей особенно важна продуманная планировка. В доме размером 9х12 и площадью более 170 м² комфортно размещаются четыре спальни, что идеально подходит для семьи с детьми, гостями или даже для организации кабинета и спальни для родителей отдельно.
Наличие двух санузлов — важный фактор качества жизни, позволяющий избежать утренних заторов и повысить удобство бытового процесса. Обычно один санузел размещается на первом этаже в зоне общественных помещений, второй — на этаже с жилыми комнатами.
Основные принципы зонирования в доме с 4 спальнями
- Распределение спален по этажам. На втором этаже размещают основные спальни для создания тишины и уединения.
- Санузлы — в удобных местах. Один максимально доступен на первом этаже, второй рядом со спальнями.
- Гибкость назначения комнат. Одну из комнат можно выделить под офис или гостевую спальню.
- Использование коридоров минимально. Это повышает полезность жилой площади.
Архитектурные особенности и внешний вид
Двухэтажные дома формата 9х12 с четырьмя спальнями несут в себе своеобразную эстетику, которая легко адаптируется под любой стиль — от классики до современных минималистичных тенденций. Четкие формы, рациональное использование пространства, функциональность — вот основные черты таких проектов.
Пропорции дома позволяют реализовать эффектные фасады с большими окнами, удобно расположенными входными группами и даже применить интересные вариации кровли. Например, использование мансардных окон позволит наполнить верхние комнаты естественным светом, при этом не добавляя наклонных потолков, которые снижают комфорт проживания.
Материалы фасада и кровли
Выбор материалов для фасада играет важную роль и влияет не только на внешний вид, но и на долговечность здания. Современные технологии предоставляют большой выбор вариантов: от классического облицовочного кирпича, экологичного дерева и декоративной штукатурки до современных композитных панелей и фасадных систем с утеплением.
Что касается крыши, в зависимости от стилистики и технических решений, она может быть как двускатной, так и шатровой. Такой подход обеспечивает надежную защиту дома и облегчает отвод снега и дождевой воды.
Основные этапы строительства дома 9х12 172,03 м²
Строительство полноценного двухэтажного дома требует не только материалов и средств, но и тщательного погружения в планирование каждого этапа. От качества и грамотности исполнения зависит долговечность, энергоэффективность и комфорт эксплуатации.
Поэтапный план работ
- Подготовительный этап. Включает выбор и подготовку участка, получение необходимых разрешений, разработку проекта и инженерных коммуникаций.
- Земляные работы и фундамент. Разметка территории, копка котлована, заливка фундамента с учетом нагрузок двухэтажного здания.
- Возведение стен и перекрытий. Каркас, кладка или монтаж стен, установка междуэтажных перекрытий.
- Кровельные работы. Монтаж стропильной системы, укладка кровли и обеспечение гидроизоляции.
- Инженерные системы. Установка электрики, водоснабжения, отопления и вентиляции.
- Внутренняя отделка. Штукатурка, штукатурка и покраска стен, утепление, установка окон и дверей.
- Благоустройство. Подготовка подходов, отмостки и возможная организация ландшафтного дизайна.
Особое внимание — фундаменту
При двухэтажном строительстве крайне важно правильно выбрать тип фундамента, учитывая характеристики грунта и нагрузку здания. Чаще всего для домов 9x12 используют ленточный фундамент или плиту. Ленточный фундамент подходит в случае устойчивого грунта, плитный — для участков с высокой влажностью или пучинистыми типами почв.
Инвестиции и стоимость дома 9х12 двухэтажного формата
Стоимость строительства дома напрямую зависит от выбранных технологий, материалов, квалификации подрядчиков и ряда других факторов. Однако при габаритах 9x12 и площади порядка 172 м² можно ориентироваться на средний бюджет, включающий в себя как основные строительные операции, так и приобретение инженерных систем и отделочных материалов.
Также следует учитывать расходы на коммуникации, которые в разных регионах могут существенно варьироваться. Закономерно, что более качественные материалы и инновационные технологии увеличивают цену, но при этом влияют на эксплуатационные характеристики и срок службы дома.
Состав бюджета на строительство двухэтажного дома 9х12
| Статья расходов | Процент от общего бюджета | Описание |
|---|---|---|
| Фундамент и земляные работы | 20% | Заливка фундамента, подготовка участка |
| Возведение стен и крыши | 40% | Стены, перекрытия, кровельные работы |
| Инженерные коммуникации | 15% | Проводка, сантехника, отопление |
| Внутренняя отделка | 20% | Штукатурка, покраска, полы |
| Непредвиденные расходы | 5% | Резерв для дополнительных работ |
Энергоэффективность и современные технологии в доме 9х12
Сегодня энергоэффективность — одно из важнейших требований к жилым домам. В двухэтажном загородном доме площадью более 170 м² внедрение современных технологий позволяет существенно снизить затраты на отопление и кондиционирование, повысить общий комфорт проживания.
Одним из основных направлений является эффективное утепление стен, применение современных стеклопакетов, а также установка энергоэкономичной системы отопления, например, тепловых насосов или конденсационных котлов. Такие решения не только экономят деньги, но и воздействуют на экологию окружающей среды.
Основные способы повышения энергоэффективности
- Многослойное утепление стен. Использование базальтовой ваты, пенополистирола или эковаты для минимизации теплопотерь.
- Современные окна. Тройные стеклопакеты с низкоэмиссионным покрытием.
- Системы вентиляции. Приточные установки с рекуперацией тепла.
- Автоматизация систем. Контроль температуры и освещения для снижения энергозатрат.
Практические советы при выборе проекта и строительстве дома 9х12
Если вы рассматриваете строительство двухэтажного дома размером 9 на 12 метров и площадью около 172 м², стоит подойти к выбору проекта внимательнее. Рекомендуется тщательно изучить варианты планировок с четырьмя спальнями и двумя санузлами, а также обратить внимание на качество проекта и его адаптацию под климатические условия региона.
Не менее важно продумать вопрос выбора строительной бригады, материалов и контроль на каждом этапе выполнения работ. Своевременная инспекция и соблюдение технологических процессов имеют решающее значение для конечного качества и длительной службы дома.
Рекомендации по выбору проекта и подрядчика
- Запросите несколько вариантов проектов. Сравните планировки, материалы, возможность внесения изменений.
- Учитывайте климат и особенности участка. Выбор типа фундамента и утепления.
- Доверяйте профессионалам с отзывами. Проверенные бригады сокращают риски и сроки строительства.
- Планируйте бюджет с запасом. Не забывайте про непредвиденные расходы.
Заключение
Двухэтажный дом размером 9х12 метров и площадью 172,03 м² является одной из оптимальных моделей для семейного проживания и комфортного использования земельного участка. Продуманная планировка с четырьмя спальнями и двумя санузлами обеспечивает комфорт и функциональность, а рациональное распределение жилого пространства и инженерных систем является залогом долговечности и энергоэффективности дома.
Если подойти к проектированию и строительству внимательно, такой дом прослужит гармоничным и уютным уголком для всей семьи на долгие годы.
























