Двухэтажный дом 10х10 м: основы планировки и ключевые характеристики
Проект двухэтажного дома с размерами 10х10 метров уже давно завоевал популярность среди частных застройщиков. Такой дом занимает площадь в основе около 100 м², что позволяет грамотно использовать площадь участка и при этом обеспечить комфортное пространство для семьи средней величины. Эта базовая геометрия делает дом удобным для проживания и органичным для большинства типов участков, даже с ограниченным размером.
Два этажа в доме позволяют увеличить общую площадь без расширения периметра постройки, что особенно важно на небольших земельных участках. Такой подход к планировке помогает эффективно зонировать жильё, отделять общие зоны от приватных и оптимально использовать каждый квадратный метр.
Планировка и функциональное распределение пространства
При проектировании дома размером 10х10 метров с двумя этажами важным является правильное распределение комнат, чтобы обеспечить удобство и комфорт проживания. В данном случае дом рассчитан на наличие четырёх спален и двух санузлов, что является вполне сбалансированным решением для семьи из 4-6 человек.
Количество и размещение спален
Четыре спальни — важная характеристика для семей с детьми или тех, кто часто принимает гостей. Пространство для сна и отдыха размещается преимущественно на втором этаже, что обеспечивает тишину и уединение от дневных активностей. Такой подход обеспечивает комфортное проживание всех членов семьи и отвечает современным стандартам частного домостроения.
Санузлы: оптимальное количество и расположение
Два санузла — отличный вариант для дома среднего размера. Обычно один из них располагается на первом этаже, что удобно для приема гостей и для использования непосредственно из общих зон, а второй — на втором, рядом со спальнями. Это снижает утренние очереди и сохраняет комфортный ритм жизни семьи. Современное оборудование и грамотное зонирование обеспечивают высокий уровень удобства при использовании.
Особенности конструкции и внешнего облика
Размеры 10 на 10 метров создают практически квадратный фасад, который является классикой архитектурных решений. Такая форма удобна для реализации различных дизайнерских идей, от строгого минимализма до традиционного загородного стиля. Благодаря ровным линиям, дом выглядит аккуратно и гармонично вписывается в разные ландшафты.
Двухэтажная постройка позволяет разнообразить фасад, добавить оконные проемы различной формы и размера, что улучшает освещённость внутренних помещений и создает уютное восприятие дома извне.
Технические аспекты строительства дома 10х10 м
Проектирование и возведение двухэтажного дома под ключ требует глубокого понимания технических нюансов. В том числе — нагрузки на фундамент, особенности перекрытий, требования к теплоизоляции и вентиляции. Строительство такого дома возможно с использованием различных технологий — от классического кирпича до модульных и каркасных систем, что позволяет варьировать стоимость и сроки реализации.
Фундамент и несущие конструкции
Основание дома 10х10 м обычно выполняется с учетом веса двух этажей и типа грунта. Наиболее популярны ленточные фундаменты, которые обеспечивают надежную опору для стен и перекрытий. Для точного расчёта необходимы геодезические изыскания и понимание гидрогеологических условий участка.
Стены и материалы
В зависимости от бюджета и предпочтений заказчика, стены могут быть построены из кирпича, газобетонных блоков, клееного бруса или каркасных панелей. Газобетон и кирпич обладают высокими теплоизоляционными характеристиками и сохраняют оптимальный микроклимат в доме благодаря своей плотности.
Перекрытия и лестницы
Большинство проектов включают железобетонные перекрытия между этажами, что обеспечивает высокую прочность и долговечность конструкций. Лестница обычно размещается в центральной части дома или сбоку, в зависимости от общей планировки — она должна быть удобной и безопасной.
Возможности использования внутреннего пространства
Общая площадь дома — около 156,64 м² — позволяет предусмотреть как жилую, так и хозяйственную зоны. Помимо спален и санузлов, пространство часто включает просторную кухню, столовую, гостиную и возможно отдельную зону для работы или хобби.
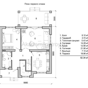
Зонирование первого этажа
На первом этаже традиционно располагается гостевая зона: холл, кухня, гостиная и санузел. Такой подход позволяет эффективно использовать пространство и организовать комфортные условия для приема гостей и семейного отдыха. Открытая или полуоткрытая планировка создает ощущение свободного пространства.
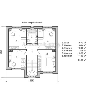
Второй этаж и приватность
Второй этаж в домах данного формата полностью посвящён спальням и комнатам для отдыха, что создает зону уединения. Здесь также располагается второй санузел, что особенно удобно для взрослых и детей. Такой разграниченный функционал помогает поддерживать порядок и комфорт для всех проживающих.
Преимущества и особенности выбора именно дома 10х10 с четырьмя спальнями
Главное достоинство проекта — рациональное использование площади участка и внутреннего пространства. Квадратный двухэтажный дом позволяет легко создавать комфортные зоны и обеспечивать всех членов семьи достаточным количеством личного пространства. Такой дом оптимален для семей, которые планируют жить долго и комфортно, а также ценят универсальность и удобство.
Еще одним значительным преимуществом является возможность гибко адаптировать внутренние помещения под нужды заказчика: например, одну из спален переоборудовать в кабинет, игровую или мастерскую.
Преимущества по сравнению с одноэтажными домами
- Экономия участка за счет компактного размещения жилой площади.
- Разделение жилых и общественных зон по этажам для повышения комфорта.
- Лучший обзор вокруг — второй этаж позволяет контролировать территорию и впускать больше света.
Преимущества по сравнению с большими коттеджами
- Более доступная стоимость постройки и эксплуатации.
- Меньше сложности в обслуживании и ремонте.
- Упрощенный дизайн и возможность быстрее завершить строительство.
Особенности эксплуатации и инженерного оборудования
Большое внимание в проекте уделяется инженерным системам, которые обеспечивают домашний комфорт и безопасность. Хозяева дома 10х10 м оценят автоматизированные системы отопления, канализации и водоснабжения, которые можно эффективно реализовать в двухэтажном здании среднего размера.
Системы отопления
Оптимальное решение — использование настенных котлов, которые обеспечивают централизованное теплоснабжение всего дома. Также возможна интеграция с системами теплых полов, которые особенно актуальны для северных регионов.
Водоснабжение и канализация
Дом оборудован двумя санузлами, что требует комплексного подхода к планированию трубопроводов. Обычно используется совмещенная канализационная система с локальными очистными сооружениями на участке или подключением к центральной сети.
Электроснабжение и освещение
Проект предусматривает удобное расположение розеток и выключателей во всех комнатах, а также возможность установки умного освещения для создания различных сценариев в доме.
Рекомендации по выбору и подготовке участка для строительства дома 10х10
При планировании постройки важно учитывать не только характеристики дома, но и параметры участка. Минимальные размеры участка должны соблюдаться для комфортного размещения постройки, наружных коммуникаций и зоны отдыха.
Оптимальные размеры участка
| Параметр | Минимальное значение | Рекомендуемое значение |
|---|---|---|
| Ширина участка | от 15 м | от 20 м и более |
| Длина участка | от 20 м | от 25 м и более |
Для комфортной жизни стоит располагать на участке не только дом, но и места для парковки, зеленую зону, возможно, беседку или детскую площадку. При ширине дома 10 м и рекомендуемых отступах можно создать уютное пространство для отдыха и хозяйственных построек.
Особенности внутреннего дизайна и отделки
Общая площадь около 156,64 м² предоставляет достаточно пространства для разнообразных решений в отделке и дизайне. Это позволяет учитывать индивидуальные предпочтения и функциональные задачи каждой комнаты.
Дизайн интерьера
- Современный стиль с открытыми планировками и минималистичным декором.
- Классика с деревянными акцентами и теплыми оттенками.
- Экологичный стиль с использованием натуральных материалов.
Выбор отделочных материалов
Для долговечности и эстетики рекомендуется использовать материалы с хорошей износостойкостью и простотой ухода, особенно для кухни и санузлов. В жилых комнатах популярны дерево, керамическая плитка, качественные обои и краски.
Возможность расширения и модификации проекта
Проект двухэтажного дома 10х10 м с четырьмя спальнями и двумя санузлами считается достаточно гибким. В зависимости от потребностей семьи он может быть дополнен хозяйственными пристройками, верандой или менять внутреннюю планировку.
Так, без установки гаража, легко организовать навес или выделить парковочное место на участке. Возможен также вариант с созданием мансарды, что подарит дополнительное жилое пространство.
Несколько идей для модификации
- Добавление террасы или веранды для организации открытой зоны отдыха.
- Перепланировка вторичного этажа с целью создания просторной мастерской или кабинета.
- Объединение гостиной и кухни для создания «гостиной-столовой» open-space.
- Расширение санузлов с установкой современных душевых кабин и ванн.
Экономические аспекты и сроки строительства
Строительство дома размером 10х10 метров с двумя этажами и четырьмя спальнями — это средний сегмент по вложениям. Он находится в категории «оптимальный дом», где сочетается комфорт и разумная стоимость.
Время возведения такого дома с использованием современных технологий и профессиональной бригады составляет от 6 до 12 месяцев в зависимости от выбранных материалов и сложности отделочных работ.
Основные расходы при строительстве
| Статья расходов | Средний удельный вес в бюджете | Примечания |
|---|---|---|
| Фундамент | 15–20% | Зависит от типа грунта и выбранного типа фундамента |
| Стены и перекрытия | 30–35% | Ключевая статья, зависит от материала стен |
| Кровля | 10–15% | Материалы — металлочерепица, битумная черепица и др. |
| Инженерные сети | 15–20% | Отопление, электрика, сантехника |
| Отделочные работы | 15–20% | Внутренние и внешние работы |
Оптимизация расходов всегда возможна при грамотном выборе материалов и профессиональном планировании. Важно помнить, что качество и долговечность дома зависят не только от бюджета, но и от корректного проектирования и квалифицированного исполнения.






















