Особенности и преимущества одноэтажного дома 13х13 м
Одноэтажные дома всегда пользуются большой популярностью благодаря своей функциональности, удобству и экономичности. Дом размером 13х13 метров с общей площадью около 156 квадратных метров – оптимальный выбор для семьи, которая ценит комфорт, практичность и уют. Такие размеры позволяют воплотить сбалансированное планировочное решение, в котором удобно разместятся все необходимые жилые зоны и технические помещения.
Одноэтажное строительство, в отличие от многоэтажного, обладает рядом существенных преимуществ. Во-первых, это простота возведения и сокращение строительных затрат. Во-вторых, нет необходимости монтировать сложные системы лестниц, что делает дом более доступным для людей с ограниченными возможностями, пожилых и маленьких детей. В-третьих, близость ко всем помещениям улучшает коммуникации и упрощает эксплуатацию.
Дом 13 на 13 метров при одной истории дает возможность разбить внутреннее пространство максимально эффективно, используя принцип зонирования на дневные и ночные зоны, место для отдыха и рабочие участки, а также достаточное количество ванных комнат.
Планировка дома: оптимальное размещение трех спален и двух санузлов
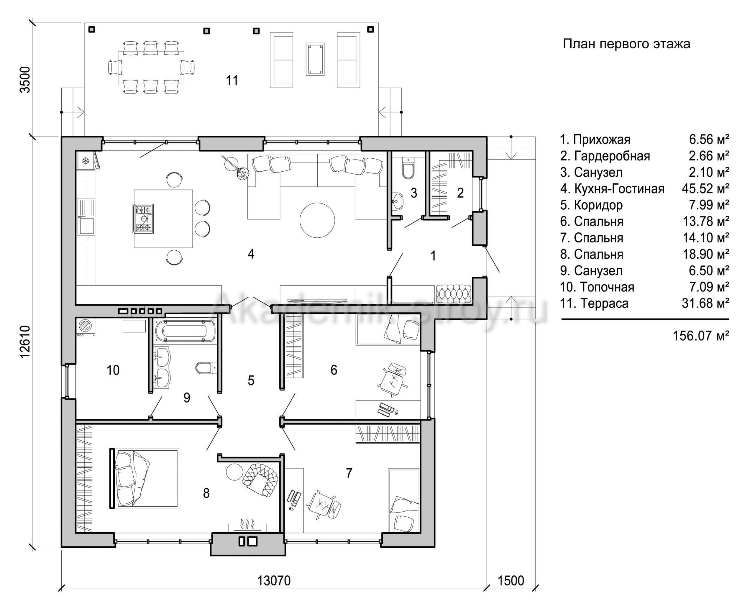
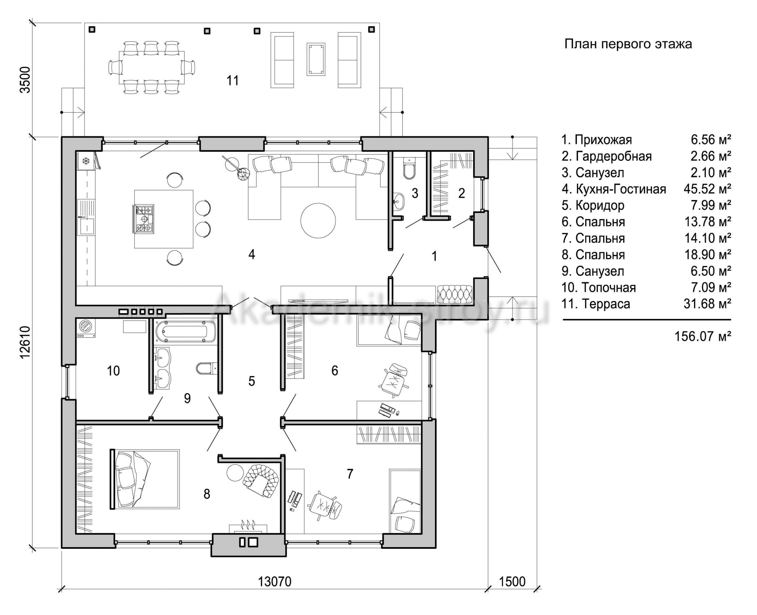
При разработке планировки дома площадью 156 м² одной из ключевых задач является создание удобного жилого пространства, учитывающего потребности всех членов семьи. Наличие трех спален позволяет с комфортом разместить как родителей, так и детей или гостей. Каждая спальня может иметь быстрое и легкое соединение с отдельной ванной комнатой или общей санитарной зоной.
Организация двух санузлов существенно повышает уровень комфорта проживания. Один из санузлов, обычно основной, оборудуется ванной, душевой кабиной, раковиной и унитазом, а второй – как вариант гостевой или хозяйственный санузел, возможно, с минимальным набором сантехники. Такое распределение помогает избежать бытовых неудобств в утренние часы и при большом количестве жильцов.
Особое внимание проектировщики уделяют размещению спален так, чтобы обеспечить максимальную звукоизоляцию и обеспечить приватность. Это важный момент для спокойного отдыха и личного пространства каждого члена семьи.
Примерная планировка зон одного этажа 13х13 м
| Зона | Функция | Особенности |
|---|---|---|
| Гостиная | Отдых и общение | Большое окно, выход на улицу при необходимости |
| Кухня-столовая | Приготовление и прием пищи | Совмещенное пространство, достаточная площадь для обеденного стола |
| Три спальни | Личное пространство жильцов | Разной площади, с местами для хранения |
| Два санузла | Гигиенические процедуры | Основной и дополнительный санузел |
| Прихожая | Прием гостей, хранение верхней одежды | Связующая звено между домом и улицей |
Технические аспекты строительства одноэтажного дома 13x13
Строительство дома с габаритами 13 на 13 метров требует тщательного планирования на всех этапах – от разработки проекта до окончательной отделки. Массивная квадратная форма облегчает задачу возведения несущих конструкций и создания прочного фундамента. Как правило, для одноэтажных зданий такой площади используют бетонные ленточные фундаменты или плитные основания, что обеспечивает равномерную опору и минимизирует риск деформаций.
Выбор материалов для несущих стен и кровли зависит от климата, бюджетных ограничений и предпочтений заказчика. Это может быть традиционный кирпич или газоблоки, каркасная технология с утеплителем, а также комбинированные системы. Такие здания легко утепляются и обеспечивают комфортный микроклимат в жилых помещениях.
При проектировании крыши стандартной формы дома 13х13 используется простая двускатная конструкция, которая отлично справляется с нагрузками снега и дождя, при этом оставаясь экономичной в монтаже. Угол наклона крыши подбирается с учетом региональных климатических особенностей и предпочтений по внешнему виду.
Основные этапы строительства одноэтажного дома 13х13
- Подготовка участка и вынос геодезической оси
- Разметка фундамента и земляные работы
- Заливка фундамента, гидроизоляция
- Возведение несущих стен
- Монтаж перекрытий и крыши
- Установка окон и дверей
- Проведение инженерных коммуникаций
- Внутренняя и наружная отделка
Планирование участка для строительства одноэтажного дома
Для комфортного возведения дома размером 13х13 метров необходимо правильно выбрать и подготовить участок. Минимальный размер земельного участка должен предусматривать не только параметр жилья, но и дополнительные зоны: подъездные пути, места для отдыха, озеленение и даже строительство отдельных хозяйственных построек.
Из-за квадратной формы дома в 13х13 метров оптимально располагать здание ближе к центру участка. Это обеспечит равномерное освещение комнат с разных сторон и создаст возможность для организации как переднего двора, так и уютного заднего сада.
Работа с ландшафтом, дренажем и инженерными сетями также влияет на выбор участка. Наличие удобного подъезда для строительной техники и легкий доступ к коммуникациям – важные факторы экономии времени и бюджета.
Рекомендации по минимальным размерам участка для дома 13х13
| Параметр участка | Минимальный размер | Комментарий |
|---|---|---|
| Ширина | 18 м | Обеспечивает отступы от границ участка, зоны прохода и озеленения |
| Длина | 20 м | Позволяет разместить дом, зоны отдыха и сад |
Внутренний дизайн и организация пространства
Организация интерьера одноэтажного дома 13x13 имеет большое значение для комфорта проживания. Просторная дневная зона с гостиной и кухней-столовой создаст атмосферу уюта и позволит хозяевам принимать гостей с максимальным удобством. В дизайне предпочтителен открытый стиль с минимальными перегородками для визуального расширения пространства.
Три спальни дают возможность каждому члену семьи иметь свою зону уединения, что особенно важно в современных условиях, когда многие работают и учатся из дома. При этом отделка стен, качество освещения и мебели должны способствовать релаксации и хорошему сну.
Ванные комнаты в двух санузлах обустраиваются качественной сантехникой и соответствующими системами вентиляции, что гарантирует свежесть воздуха и максимальную гигиену.
Советы по отделке и эргономике помещений
- Используйте светлую цветовую гамму для визуального расширения пространства;
- Выбирайте мебель с многофункциональным назначением для экономии места;
- Организуйте достаточное количество мест для хранения, чтобы минимизировать загромождение;
- Продумайте освещение с использованием точечных и основного света;
- Применяйте натуральные материалы для отделки стен и полов для создания комфортной атмосферы.
Инженерные системы в одноэтажном доме 13x13
Современный дом площадью 156 м² требует хорошо продуманных инженерных систем, начиная от отопления и водоснабжения до электроснабжения и вентиляции. Одноэтажный формат упрощает их монтаж и обслуживание, что снижает общие эксплуатационные расходы.
Отопление дома обычно реализуют с помощью газового котла или электрического оборудования, в зависимости от удаленности участка от централизованных сетей. Также популярны варианты с тепловыми насосами и использованием альтернативной энергетики.
Водоочистка и система канализации должны работать надежно и соответствовать санитарным нормам. Возможно подключение к централизованной сети или монтаж автономных очистных сооружений.
Перечень рекомендуемых инженерных систем
| Система | Описание | Преимущества |
|---|---|---|
| Отопление | Газовый котел с радиаторами или теплый пол | Эффективное распределение тепла, экономия энергии |
| Вентиляция | Приточно-вытяжная с рекуперацией тепла | Свежий воздух без потерь тепла |
| Водоснабжение | Подключение к центральной системе или артезианская скважина | Надежное и качественное снабжение водой |
| Канализация | Централизованная или локальные очистные системы | Гигиеничность и экологичность |
| Электроснабжение | Автоматические панели и розетки с заземлением | Безопасность и удобство эксплуатации |
Экономическая целесообразность и стоимость строительства
Строительство одноэтажного дома размером 13х13 с площадью около 156 квадратных метров – это оптимальное вложение средств для семейного жилья средней стоимости. Экономия достигается благодаря простоте конструкции, отсутствию второго этажа, снижению затрат на строительство лестниц и сложных систем вертикальных коммуникаций.
Кроме того, эксплуатационные расходы при такой планировке ниже, так как отопление и утепление одноэтажного здания проще и эффективнее. Планирование наличия двух санузлов также помогает избежать дополнительных затрат в будущем на перепланировки или расширения.
Выбирая одноэтажный дом с тремя спальнями, семья получает полностью готовое для комфортной жизни пространство, что сокращает необходимость дополнительных вложений на обустройство.
Факторы, влияющие на стоимость строительства
- Выбор строительных материалов (кирпич, газобетон, дерево);
- Технология возведения стен и кровли;
- Качество и тип инженерных систем;
- Уровень отделки и используемые отделочные материалы;
- Расположение и подготовка участка.
Почему стоит выбрать одноэтажный дом размером 13x13?
Одноэтажный дом с габаритами 13х13 метров – это уникальное сочетание удобства, функциональности и привлекательной стоимости. Он идеально подходит для семей разного состава благодаря продуманной планировке, позволяющей расположить сразу три спальни и два санузла. Такой дом отличается хорошей эргономикой и рациональным использованием пространства, исключая при этом сложности с доступом и обслуживанием помещений.
Также одноэтажный вариант упрощает процесс строительства и обслуживания дома, позволяя сэкономить время и деньги при сохранении высокого уровня комфорта. Регулярный доступ ко всем помещениям без ограничений делает такое жилье удобным и безопасным для пожилых людей и детей.
Этот дом идеально подойдет для тех, кто ценит стабильность и комфорт в загородной жизни, не желая мириться с лишними сложностями и затратами, связанными с многоэтажными зданиями.



























