Описание и планировка двухэтажного дома 9х11 метров – 136.41 м²
Двухэтажный дом с габаритами 9 на 11 метров – это оптимальное решение для семьи, которая хочет комфортное и функциональное жильё с четырьмя спальнями и двумя санузлами. Такой дом порадует владельцев своей компактностью при достаточно большой общей жилой площади, позволяющей органично расположить все необходимые помещения. Он отлично впишется в типовой участок, обеспечит гармонию в архитектуре и удобство в эксплуатации.
В этой статье мы подробно рассмотрим основные параметры дома, особенности планировки, преимущества и нюансы строительства, а также затронем ключевые аспекты выбора материалов и технологий возведения для создания комфортного и долговечного жилья.
Размеры и конструктивные характеристики дома
Габариты дома 9х11 метров стали стандартной мерой для построек средней величины, сочетающих в себе компактность и простор. Эти размеры позволяют расположить на двух этажах достаточное число комнат, не увеличивая при этом площадь застройки и минимизируя затраты на фундамент и кровлю.
Сам по себе двухэтажный формат с классической квадратной или почти квадратной формой является преимуществом как с инженерной, так и с практической точки зрения. Такой дом проще в строительстве, легче адаптируется к различным архитектурным стилям и лучше поддаётся зонированию внутренних пространств.
Преимущества размеров 9x11 м
- Равномерное распределение пространства без узких "смертельных" зон;
- Оптимальная форма фундамента, что снижает затраты на материалы и работу;
- Удобство планировочных решений – можно разместить сразу четыре спальни и два санузла;
- Достаточно простое обустройство кровли и конструкций второго этажа;
- Легко вписывается в стандартные участки с минимальными размерами, сохраняя при этом хорошее отступление от границ.
Два этажа — за и против
Конструкция с двумя этажами является классическим решением для частных домов, особенно когда участок не позволяет расширяться горизонтально. Второй этаж значительно увеличивает площадь жилья без необходимости расширения фундамента, что экономит земельный ресурс.
Однако при этом важно учитывать несколько моментов: необходимость организации удобно расположенной лестницы, возможные сложности с отоплением верхних этажей и вопросы пожарной безопасности. В проекте дома 9х11 м эти моменты учтены благодаря рациональному расположению лестничного узла и инженерных коммуникаций.
Планировка помещений: комфорт и функциональность
Главным действующим элементом любого жилого дома является планировка. В нашем проекте с четырьмя спальнями и двумя санузлами жилищные и хозяйственные зоны разделены максимально удобно, что позволяет избежать вторжений в личное пространство и одновременно создать площадки для совместного отдыха.
Первый этаж: общие зоны и гостевые помещения
На первом этаже обычно располагаются гостиная, кухня, столовая зона и комнатa отдыха или кабинет. Наличие одного санузла на первом этаже делает использование пространства максимально удобным для гостей и жильцов. Такой подход помогает приёмам гостей и повседневной жизни без необходимости подниматься на второй этаж каждый раз.
Организация кухни вблизи столовой зоны позволяет создать открытые пространства, что модернизирует восприятие дома и позволяет естественному свету проникать во все уголки. Хорошее зонирование и вентиляция – важнейшие составляющие комфортного интерьера.
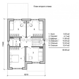
Второй этаж: приватные зоны – спальни и санузлы
Второй этаж отведён под четыре спальни, идеально подходящие для большой семьи или для размещения гостей и домашнего офиса. Наличие второго санузла здесь существенно облегчает жизнь жильцам, особенно в утренние часы и вечерами.
Такой подход к планировке исключает утренние очереди в ванную комнату, а также создаёт оптимальные условия для личного пространства и отдыха каждого члена семьи. Гибкость использования помещений позволяет также адаптировать комнату под детскую, кабинет или игровую.
Таблица расположения комнат по этажам
| Этаж | Помещения | Функции |
|---|---|---|
| Первый этаж | Гостиная, Кухня, Столовая, Санузел | Общие зоны, прием гостей, кухня и столовая, гигиенические нужды |
| Второй этаж | 4 спальни, Санузел | Личные комнаты, отдых, приватность, современный комфорт |
Особенности инженерных систем и коммуникаций
Продуманный проект двухэтажного дома 9х11 м обязательно включает распределение инженерных коммуникаций с максимальной компактностью и эффективностью. Вертикальное расположение стояков, продуманная система вентиляции и грамотная разводка электричества станут основой для будущего комфорта.
Отопление и вентиляция
Для двухэтажного дома необходима качественная система отопления с равномерной подачей тепла на оба этажа. Рассматриваются варианты газового котла, тепловых насосов или комбинаций с тёплыми полами. Вентиляция должна обеспечить постоянный приток свежего воздуха, избегая образования сырости и плесени.
Водоснабжение и канализация
Два санузла расположены на разных этажах, что требует продуманной системы водопровода и канализации с надёжными стояками и правильным уклоном труб. Такое решение гарантирует бесперебойную работу коммуникаций и минимизирует возможность засоров.
Выбор материалов для постройки дома 9х11 метров
Качество и долговечность дома во многом зависит от выбранных строительных материалов. Поскольку дом компактный, бетонный фундамент и качественные стены обеспечат надёжность и устойчивость конструкции. Экологичность и теплоизоляционные свойства материалов нужны для создания комфортного микроклимата внутри.
Основные варианты стеновых материалов
- Кирпич: классика с хорошей прочностью и теплоёмкостью;
- Газобетонные блоки: лёгкие, с хорошими теплоизоляционными свойствами, просты в монтаже;
- Дерево: экологично и красиво, требует дополнительной защиты от влаги и вредителей;
- Каркасные технологии: быстрый монтаж, хорошие теплоизоляционные характеристики, малый вес конструкции.
Рекомендации по выбору кровли и отделочных материалов
В проекте дома с размерами 9х11 м кровля играет важную роль в долговечности и дизайне здания. Рекомендуются такие материалы, как металлочерепица, натуральная или битумная черепица. Выбор зависит от климата, бюджета и желаемого внешнего вида.
Отделка фасадов может выполняться в разнообразных стилях – штукатурка, сайдинг, декоративный камень или сочетание вариантов. Главное придерживаться единого архитектурного решения, гармонирующего с окружающим ландшафтом.
Проектирование и бюджетирование
Составление проектной документации и чёткий подсчёт бюджета – незаменимые этапы планирования строительства. При проектировании дома 9 на 11 метров важно учесть все особенности участка, нормативы и пожелания заказчика, чтобы итоговый результат был удобен и эстетичен.
Основные этапы проектирования
- Определение функционального зонирования и пожеланий жильцов;
- Разработка архитектурного решения с учётом размеров 9х11 м и двух этажей;
- Проектирование систем инженерных коммуникаций;
- Согласование проекта с необходимыми инстанциями;
- Подготовка рабочей документации для строительства.
Примерная структура бюджета
| Статья расходов | Процент от общего бюджета | Примечания |
|---|---|---|
| Фундамент | 15% | Зависит от типа грунта и глубины заложения |
| Стены и конструкции | 30% | Материалы и работа |
| Кровля | 10% | Материалы, гидроизоляция |
| Инженерные системы | 20% | Отопление, водоснабжение, электричество |
| Отделочные работы | 20% | Внутренняя и наружная отделка |
| Прочие расходы | 5% | Разрешения, доставка, непредвиденные затраты |
Рекомендации по выбору участка и размещению дома
Для дома с размерами 9 на 11 метров важно правильно подобрать участок, чтобы реализовать архитектурный потенциал и обеспечить комфорт жильцам. Минимальные размеры участка должны позволять оставлять нормированные отступы от границ, обеспечивать освещение всех помещений и учитывать будущие инженерные коммуникации.
Расположение дома на участке должно учитывать следующие факторы: инсоляцию, рельеф, тип грунта, доступность для транспортных средств и возможность создания благоустроенной придомовой территории.
Оптимальные параметры участка
- Ширина не менее 15 метров для комфортного отступа от границ;
- Длина не менее 20 метров для организации подъездных путей и зон отдыха;
- Ровный или слабонаклонный рельеф для упрощения строительства;
- Хорошая транспортная доступность и подключение к коммуникациям.
Итоги и перспективы проекта
Двухэтажный дом 9х11 метров площадью 136,41 м² – это современное, практичное жилое пространство, идеально подходящее для семьи с детьми или людей, ценящих комфорт и рациональное использование площади. Дом лёгок в реализации, экономичен, при этом достаточно просторен и функционален.
При правильном подходе к проектированию и выбору материалов такой дом прослужит своим владельцам десятилетиями, сохраняя уют, тепло и безопасность. Для застройщика и будущих жильцов дом 9х11 м – это удачное сочетание всех необходимых характеристик при умеренных финансовых и временных затратах.
Строительство дома с такими параметрами – разумный выбор на пути к собственному комфортабельному жилью, и его проектная база даёт отличные возможности для дальнейших модификаций и индивидуализации по желанию заказчика.






























