Двухэтажный дом 11x12 – идеальное сочетание пространства и комфорта
Когда речь заходит о строительстве собственного дома, перед каждым застройщиком встает множество вопросов, начиная от планировки и заканчивая этажностью. Двухэтажный дом размером 11 на 12 метров с площадью около 181,18 квадратных метров является оптимальным решением для тех, кто хочет получить просторное, функциональное и вместе с тем уютное жилище.
Такой формат дома успешно сочетает в себе компактность застройки и рациональное использование внутреннего пространства. В этой статье мы подробно рассмотрим особенности двухэтажного дома размером 11 на 12 метров, уделив внимание его планировке, функциональным зонам, а также важным техническим моментам, которые помогут вам принять взвешенное решение для создания идеального собственного гнезда.
Размеры и планировка: преимущества двухэтажной конструкции 11x12
Основным параметром данного проекта является его габарит — 11 на 12 метров. Это достаточно вместительные размеры, которые позволяют удобно распределить зоны внутри здания, не занимая при этом слишком большой участок земли.
Двухэтажный дом с такими параметрами даёт возможность грамотно организовать жизненное пространство, разделив его на общественные и приватные зоны, что чрезвычайно важно для комфортного проживания семьи с детьми или сотрудников, работающих дома.
Преимущества габаритов 11 на 12 метров
Габариты 11х12 м — это своего рода золотая середина между слишком маленьким и чрезмерно крупным домом.
- Удобство планировки – дозволяет иметь как просторные комнаты, так и необходимые хозяйственные помещения.
- Экономия места на участке – дом занимает достаточно компактную площадь, что позволяет оставить пространство для сада, детской площадки или зоны отдыха на улице.
- Рациональное строительство – размеры придают дому устойчивость и избавляют от лишних сложностей при возведении фундамента и кровли.
Организация внутренних зон
Двухэтажная конструкция позволяет распределить комнаты по функциональному признаку. Обычно первый этаж отводят под гостевые, кухню, столовую и хозяйственные помещения, а второй – под спальни и личные кабинеты, что обеспечивает дополнительный уровень приватности. Такой подход способствует сохранению уюта и оптимальной звукоизоляции между зонами.
Количество этажей и их функциональная нагрузка
Проект дома включает два этажа, что дает существенные преимущества в плане зонирования и использования полезной площади.
Два полноценных этажа – это эффективное решение, которое позволяет:
- Разграничить пространство для дневного и ночного использования;
- Оптимизировать световой режим помещений – на первом этаже часто размещают общественные зоны с большими окнами, второй этаж более уединенный;
- Создать комфортные условия для больших семей;
- Максимально использовать площадь земельного участка.
Особенности планировки двухэтажного дома 11x12
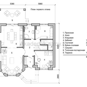
При проектировании помещений важно учитывать не только комфорт проживания, но и функциональные характеристики. Например, на первом этаже удачно расположить просторную гостиную, кухню и столовую, а на втором – три спальни, что идеально подходит для стандартной семьи из 3-5 человек.
Также двухэтажные дома легче адаптировать под разные стили интерьера и новые технологии, что делает их привлекательными для современного покупателя и владельца.
Количество спален: комфорт и приватность для всей семьи
Одним из важных параметров рассматриваемого дома является количество спален — их три. Этот показатель оптимален для типичной семьи с двумя детьми или семьей, где требуется создание гостевой комнаты или кабинета.
Три спальни позволяют каждому члену семьи иметь свое личное пространство, что способствует комфорту и гармонии в доме:
- Главная спальня с дополнительным пространством для гардероба и собственного санузла.
- Детские или гостевые спальни, которые можно использовать для сна, учебы или даже занятий творчеством.
- Возможность создания кабинета или зоны для хобби в одной из комнат.
Расположение спален на втором этаже
Как правило, спальни располагаются на втором этаже, что обеспечивает максимальную тишину и приватность, поскольку они отделены от общественных помещений. Это особенно актуально для семей с детьми, которым нужен спокойный отдых после насыщенного дня.
Количество санузлов: удобства для всех членов семьи
В проекте предусмотрено два санузла, что является продуманным решением с точки зрения удобства и комфорта проживания. Наличие даже второго санузла существенно повышает качество жизни в доме и минимизирует утренние очереди, которые часто возникают в больших семьях.
Два санузла обычно распределяются следующим образом:
- Первый расположен на первом этаже, что обеспечивает удобство хозяйских и гостей;
- Второй — на втором этаже, рядом со спальнями.
Это позволяет эффективно организовать пространство и облегчить утренние сборы, особенно если в семье несколько членов.
Особенности фасада и внешнего облика
Двухэтажный дом 11 на 12 легкоахватимо воспринять как гармоничную композицию, где симметрия сочетается с функциональной выразительностью. Экстерьер дома может быть выполнен в различных архитектурных стилях — от классического до современного минимализма, что дает возможность адаптировать проект под личные предпочтения и особенности ландшафта.
Хотя в параметрах не указано наличие террасы или балконов, существует большое количество вариантов комбинирования фасадов с крытыми входами и широкими окнами, что добавляет визуальной легкости и уюта.
Преимущества двухэтажного дома без гаража
В описании проекта отсутствует гараж, что может стать осознанным выбором для тех, кто предпочитает использовать участок более рационально или уже имеет отдельное помещение для автомобиля.
Такая особенность позволяет:
- Увеличить жилое пространство внутри дома;
- Сосредоточиться на зонах отдыха и хозяйственных помещениях;
- Сэкономить средства на строительстве дополнительных помещений;
- При планировке участка предусмотреть открытую стоянку или ландшафтные зоны.
Строительные материалы и технологии
Выбор материалов для строительства дома размером 11х12 м с двумя этажами зависит от климатической зоны, бюджета, а также желаемого стиля и функциональности. Чаще всего для таких проектов выбирают надежные и энергоэффективные материалы, такие как:
| Материал | Особенности | Преимущества |
|---|---|---|
| Кирпич | Классический строительный материал | Долговечность, отличная теплоизоляция, пожаробезопасность |
| Газобетонные блоки | Легкий и экологичный материал | Хорошая теплоизоляция, простота монтажа, экономия бюджета |
| Дерево | Экологически чистый и приятный материал | Уютный интерьер, естественная вентиляция, экологичность |
Каждый из этих вариантов обладает своими достоинствами и преимуществами, а выбор зависит от ваших предпочтений и особенностей участка.
Размещение дома на участке и минимальные размеры участка
Размеры дома 11 на 12 метров требуют грамотного распределения на земельном участке, чтобы обеспечить комфортную зону для отдыха, а также места для хозяйственных нужд. Обычно для постройки такого дома рекомендуется участок минимальной ширины и длины, который позволит сохранить достаточное расстояние от границ соседних участков, что важно для соблюдения санитарных и строительных норм.
Минимальные размеры участка зависят от правил местного землепользования, однако для дома габаритами 11х12 метров рекомендуются параметры не менее 18-20 метров в ширину и порядка 25-30 метров в длину, чтобы свободно разместить дом и прилегающую территорию.
Почему стоит выбрать двухэтажный дом 11 х 12 — 181.18 м2?
Проект такого дома на два этажа с тремя спальнями и двумя санузлами идеально подходит для современных семей, стремящихся к удобству, функциональности и эстетике. Благодаря оптимальной площади и компактным габаритам, дом можно расположить даже на небольшом участке, грамотно распоряжаясь пространством вокруг.
Ключевые преимущества:
- Рациональное использование площади в 181,18 м2, что обеспечивает оптимальный комфорт жильцам.
- Эффективное зонирование благодаря двум этажам и продуманной планировке.
- Оптимальное количество спален и санузлов для семьи любого состава.
- Гибкость в выборе строительных материалов и архитектурных решений.
- Сбалансированные размеры, позволяющие экономично использовать участок.
Дополнительные рекомендации по проектированию и строительству
Чтобы конечный результат полностью соответствовал вашим ожиданиям, рекомендуем при разработке индивидуального проекта учитывать следующие нюансы:
- Привлекайте профессиональных архитекторов и инженеров для адаптации типового проекта под ваши запросы и климатические условия региона.
- Обратите внимание на энергоэффективность здания — выбирайте качественную теплоизоляцию и современные системы отопления для минимизации затрат на эксплуатацию.
- Рассмотрите варианты размещения окон и дверей для максимального естественного освещения и воздухообмена.
- Продумайте варианты отделки фасадов и кровли, которые будут сочетаться с местным ландшафтом и обеспечивать надежную защиту от погодных условий.
Только комплексный подход к проектированию и строительству позволит создать дом, в котором будет комфортно и приятно жить долгие годы.

























