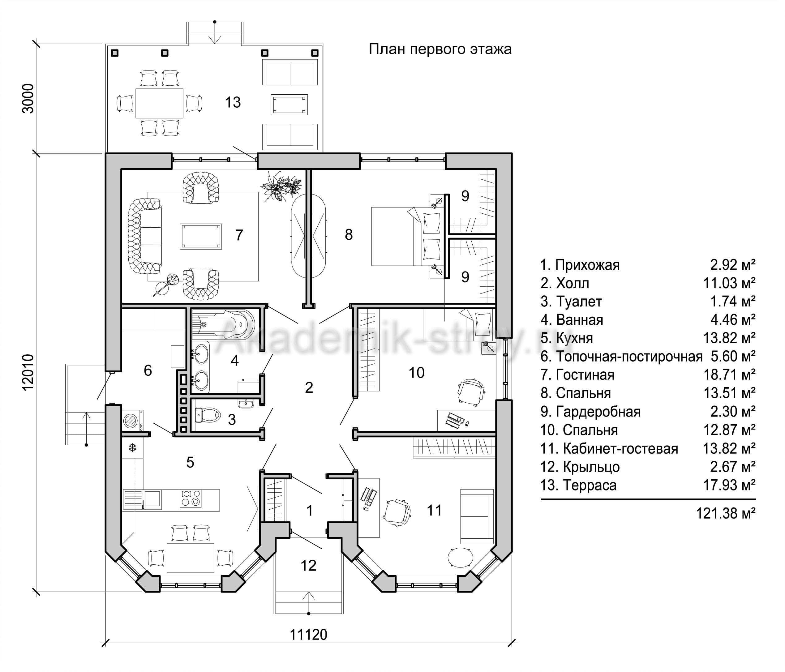
Введение в проект одноэтажного дома 11x12 м
Проектирование собственного дома всегда является важным и увлекательным этапом в жизни каждого человека, который стремится создать комфортное пространство для жизни своей семьи. Одноэтажный дом размером 11 на 12 метров является оптимальным вариантом для многих людей, так как сочетает в себе удобство, компактность и функциональность. Его площадь в 121,38 м² позволяет разместить все необходимые помещения для полноценного проживания, не перегружая участок и сохраняя гармонию с природой.
В данной статье мы подробно рассмотрим особенности, преимущества и нюансы одноэтажного дома с размерами 11x12 метров. Это семейный дом с двумя спальнями и одним санузлом, идеально подходящий для молодой семьи или пары, которая ценит удобство и простоту в управлении жилищем.
Общая характеристика дома 11x12 м
Одноэтажный дом площадью 121,38 м² — это сбалансированный проект, который оптимально использует площадь участка. Простой, но продуманный план позволяет рационально распределить жилое пространство, обеспечивая достаточное количество комнат и удобств для комфортного проживания. Дом не содержит дополнительных пристроек, таких как гараж или террасы, что упрощает его строительство и эксплуатацию.
Размеры и конфигурация
Размеры дома 11 на 12 метров – это пример классического прямоугольника, позволяющего эффективно и экономично использовать строительные материалы и пространство внутри. Такой компактный формат обеспечивает минимум потерь на коридоры и технические зоны, что особенно важно для одноэтажных домов.
Форма дома способствует оптимальному расположению комнат и хорошему зонированию жилого пространства. Конструкция подходит для участков различной формы и размеров, что расширяет круг потенциальных будущих владельцев.
Количество этажей
Одноэтажное строительство – это залог удобства, безопасности и доступности. Такие дома особенно актуальны для семей с маленькими детьми, пожилыми людьми, а также поклонниками минимализма в архитектуре. В доме представлен всего один этаж, что существенно облегчает эксплуатацию здания и снижает затраты на инженерные системы и обслуживание.
Отсутствие лестниц упрощает передвижение внутри дома, а планировка на одном уровне способствует теплому и уютному микроклимату.
Планировка дома: что входит в проект 11х12 м
Основным фактором комфортного проживания является грамотное планирование пространства. В данном проекте предусмотрено две спальни и один санузел, что делает его идеальным для семейного проживания с детьми или для тех, кто часто принимает гостей.
Спальни
Две спальни обеспечивают приватность и комфорт всем членам семьи. Обычно одна из комнат является главной спальней, а вторая предназначена для детей или гостей. Пространство достаточно для установки кроватей, шкафов и рабочих мест, а также оснащено окнами, обеспечивающими естественное освещение и хорошую вентиляцию.
Санузел
Наличие одного санузла требует продуманного подхода к его расположению и оснащению. Обычно санузел располагается в удобном месте, обеспечивая легкий доступ из всех частей дома. Современное оборудование, эргономичная планировка и качественная отделка создают комфортные условия для личной гигиены и расслабления.
Общие помещения
Помимо спален и санузла, дом оборудован просторной гостиной, кухней и столовой зоной. Такое объединение помещений способствует созданию уютной и функциональной зоны для отдыха и общения всей семьи. Важно тщательно продумать расположение мебели и бытовой техники, чтобы оптимально использовать пространство.
Преимущества одноэтажного дома 11x12
Рассмотрим детальнее плюсы такого типа дома, которые являются решающими при выборе проекта для частного строительства.
Экономия и простота строительства
Одноэтажные дома легче и быстрее строить, чем многоэтажные аналоги. Благодаря отсутствию лестниц и дополнительных перекрытий снижаются расходы на материалы и работу. Отсутствие гаража и террасы также уменьшает сумму на стройматериалы и монтаж.
Комфорт и безопасность
Дом без лестниц облегчает доступ в любое помещение, что влияет на мобильность и снижает риски травматизма. Это особенно важно для семей с маленькими детьми и пожилыми людьми, а также для тех, кто стремится к максимально удобному проживанию.
Удобство эксплуатации
Все коммуникации и инженерные системы проще обслуживать, так как они расположены на одном уровне и доступны без необходимости перемещаться между этажами. Это упрощает регулярное обслуживание, ремонт и замену оборудования.
Материалы и технологии в строительстве
Для проекта дома 11x12 м важно подобрать качественные материалы, которые обеспечат надежность и долговечность строения. Современные технологии позволяют строить комфортные одноэтажные дома с высокой энергоэффективностью и минимальными затратами на содержание.
Стены и фундамент
Для такого размера дома оптимальным вариантом являются кирпич или газобетон, так как они обеспечивают хорошую теплоизоляцию и долговечность. Выбор материалов зависит от климатических условий участка и бюджета строительства. Фундамент обычно выполняется ленточным или плитным, в зависимости от характеристик грунта.
Кровля и кровельные материалы
Хотя угол наклона и тип крыши в проекте не указаны, для одноэтажных домов популярны двускатные или четырехскатные крыши, которые гарантируют хорошее отведение воды и снега. Кровельные материалы варьируются от металлочерепицы до гибкой черепицы, каждый из которых имеет свои преимущества по долговечности и эстетике.
Утепление и коммуникации
Особое внимание уделяется теплоизоляции стен, пола и потолка, что позволяет снизить затраты на отопление в холодное время года. Современные системы вентиляции, водоснабжения и электроснабжения обеспечивают комфорт в доме и повышают его энергоэффективность.
Подбор участка и ориентация дома
Размеры дома 11x12 м предполагают определенные требования к участку, чтобы строительство прошло комфортно и не вызвало дополнительных затрат.
Минимальные размеры участка
Для размещения дома площадью около 121 м² необходимо учитывать не только габариты здания, но и свободное пространство для хозяйственных нужд, сада, зон отдыха и подъездных путей. Минимальная ширина и длина участка зависят от местных строительных норм и предпочтений владельца.
Ориентация по сторонам света
Особенно важно правильно расположить дом на участке для максимального использования естественного освещения и тепла солнца. В идеале гостиная и главные жилые комнаты выходят окнами на южную или юго-западную сторону, что позволяет экономить на освещении и отоплении.
Внутреннее оформление и дизайн
Правильное зонирование и оформление интерьера дома 11x12 м позволяет легко сделать его уютным и функциональным.
Стиль и цветовое решение
Для одноэтажного дома традиционно выбирают светлые и теплые оттенки, которые визуально расширяют пространство и создают атмосферу уюта. Современные тенденции декора подразумевают использование натуральных материалов и экологически чистых отделочных материалов.
Меблировка и эргономика пространства
Выбор мебели должен учитывать ограниченную площадь, поэтому предпочтение отдается многофункциональным и компактным предметам. Использование встроенных шкафов и открытых стеллажей помогает максимально эффективно использовать каждый квадратный метр.
Таблица примера планировки одноэтажного дома 11х12 м
| Помещение | Площадь, м² | Описание |
|---|---|---|
| Гостиная | 28 | Просторное помещение для отдыха и приема гостей, с отдельной зоной для обедов. |
| Кухня | 15 | Функциональное пространство с удобным расположением техники и рабочей поверхности. |
| Спальня 1 | 16 | Главная спальня с достаточным местом для большой кровати и гардероба. |
| Спальня 2 | 14 | Вторая спальня, подходит для ребенка или гостевой комнаты. |
| Санузел | 6 | Оснащён современными сантехническими приборами, функциональный и удобный. |
| Прихожая и коридор | 12 | Связующее пространство между комнатами, предусмотрено место для хранения верхней одежды. |
| Техническое помещение | 10 | Для размещения котельной, системы фильтрации воды и дополнительного хранения. |
Советы по выбору и реализации проекта
Реализация проекта одноэтажного дома площадью около 121 м² требует тщательной подготовки и планирования, чтобы избежать ошибок на любом из этапов строительства.
Работа с архитектором и строителями
При выборе готового проекта важно учесть все особенности участка, пожелания семьи и возможные ограничения. Рекомендуется сотрудничать с опытными архитекторами и подрядчиками, которые помогут адаптировать проект к конкретным условиям и сделать его максимально удобным и долговечным.
Оптимизация бюджета
Планируя бюджет, не следует экономить на фундаменте и основных конструктивных элементах дома. Лучше заранее предусмотреть качество материалов и согласовать сроки, чтобы избежать дополнительных затрат на исправление недочётов в дальнейшем.
Учет будущих изменений
Подумайте о возможности модернизации или расширения дома в будущем. Грамотно спроектированное пространство с минимальными архитектурными ограничениями позволит легко адаптировать жилище к изменяющимся потребностям семьи.
Выводы о проекте одноэтажного дома 11x12 м
Одноэтажный дом с размерами 11 на 12 метров и площадью 121,38 м² является выгодным и разумным решением для тех, кто ищет комфортное и функциональное жилье. Простая и эргономичная планировка с двумя спальнями и одним санузлом обеспечивает удобство для семьи среднего размера. Отсутствие гаража и террас снижает стоимость строительства и обслуживания, а оптимальный размер дома упрощает эксплуатацию.
Выбирая такой дом, вы инвестируете в качество жизни, продуманную архитектуру и возможность создать уютное пространство для жизни и отдыха. Такой дом подойдет для самых разных климатических условий и легко впишется в разные стили участка и ландшафта.






















