Обзор проекта двухэтажного дома 15x8 метров с площадью 250 м²
Проект двухэтажного дома с размерами 15 на 8 метров представляет собой отличное решение для тех, кто стремится совместить комфорт проживания с эффективным использованием пространства. Общая полезная площадь дома составляет внушительные 250 квадратных метров, что обеспечивает достаточно места для большой семьи, а также для создания различных функциональных зон внутри здания.
Два этажа позволяют гибко организовать жилые и хозяйственные помещения. Такой размер и конфигурация дома оптимальны для комфортной жизни, при этом дом не занимает слишком много места на участке.
Преимущества двухэтажного дома 15x8 м
Двухэтажные дома всегда привлекают внимание благодаря своей компактности и многофункциональности. В этом проекте совмещены ряд преимуществ, которые отражаются не только на удобстве, но и на экономической эффективности строительства и эксплуатации.
Рациональное использование земельного участка
За счёт вертикального строительства площадь застройки уменьшается, что особенно важно для небольших участков. Дом площадью 15 на 8 метров занимает всего 120 м² на земле, в то время как суммарная полезная площадь достигает 250 м² за счет второго этажа. Это означает, что большая часть участка остается свободной для организации сада, зоны отдыха или других элементов ландшафта.
Комфортное зонирование пространства
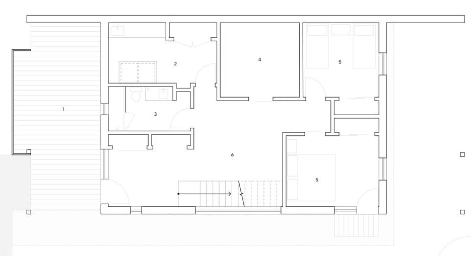
Наличие двух этажей помогает разделить функциональные зоны таким образом, чтобы обеспечить максимальный комфорт для всех проживающих. Как правило, на первом этаже располагается общественная зона — кухня, гостиная, столовая, а второй этаж отводится под приватные помещения — спальни и санузлы. В нашем проекте это три спальни и три санузла, что создаёт максимальные удобства для семьи любого состава.
Экономия на инженерных коммуникациях
Компактный двухэтажный дом более экономичен по сравнению с одноэтажным домом такой же площади, так как коммуникации — отопление, водоснабжение, электричество — прокладываются на меньшую длину труб и кабелей. Результатом становится снижение эксплуатационных расходов и более удобный доступ к инженерным системам.
Дизайн и планировка дома 15x8 метра
Планировка – ключевой элемент любого одно- или двухэтажного дома. При размерах 15 на 8 метров можно создать множество вариантов, обеспечивающих удобное движение по дому и грамотное зонирование. Три спальни и три санузла делают этот проект привлекательным для семьи из 4-5 человек или для тех, кто часто принимает гостей.
Расположение спален
Три спальни с удобной площадью каждая располагаются на верхнем этаже, обеспечивая уединение и покой в ночное время. Такая планировка часто предусматривает одну главную спальню, более просторную, и две дополнительных комнаты, которые могут использоваться как детские, гостевые или рабочие кабинеты.
Количество санузлов и их удобство
Наличие трех санузлов — еще одно большое преимущество этого дома. Это позволяет не испытывать дискомфорта в утренние часы, когда все собираются на работу или в школу. Обычно в проекте предусмотрено по одному санузлу на каждом этаже и, возможно, гостевой санузел.
Продуманное общественное пространство
На первом этаже располагается совмещённая зона кухни, столовой и гостиной. Рационально спроектированное пространство без лишних перегородок создает атмосферу открытости и легкости, а при необходимости может быть легко зонировано с помощью мебели или декоративных элементов.
Материалы и технологии строительства дома 15x8 м
Выбор материалов и технологий строительства напрямую влияет на стоимость, время возведения и долговечность дома. Современные строительные решения позволяют получать высококачественные здания, которые отлично сохраняют тепло и не требуют чрезмерных затрат на обслуживание.
Кирпич, газобетон или каркасные технологии?
- Кирпич: классический вариант с отличной звукоизоляцией и долговечностью. Позволяет строить дома с хорошей термоизоляцией, но возведение может занимать больше времени и стоить дороже.
- Газобетон: легкий и энергосберегающий материал, ускоряет процесс строительства. Газобетонные блоки легко обрабатываются и обеспечивают хорошие теплоизоляционные свойства.
- Каркасные технологии: более быстрый способ возведения, при котором дом собирается из заранее подготовленных элементов. Каркасные дома легче и требуют высокого уровня защиты от влаги и огня.
Каждая технология имеет свои плюсы и минусы, и выбор зависит от климатической зоны, бюджета и предпочтений заказчика.
Кровля и системы утепления
Хотя угол наклона и тип крыши в этом проекте не указаны, важно уделять внимание качеству кровельного покрытия и утеплению. Металлочерепица, битумная черепица или профнастил – популярные варианты крыш, которые обеспечивают надёжную защиту от осадков и ветра. Для утепления применяют минеральную вату, пенополистирол или базальтовые плиты, что гарантирует сохранение тепла и комфортный микроклимат в доме круглый год.
Стоимость строительства и экономические аспекты проекта
Цена дома важна для планирования бюджета и выбора оптимального варианта строительства. Данный проект оценивается в 8 498 139 рублей. Данная сумма охватывает все необходимые работы по возведению здания до состояния «под ключ» или до определенного этапа, в зависимости от условий договора с подрядчиком.
Что включено в стоимость?
- Фундамент и несущие конструкции.
- Несущие внешние и внутренние стены.
- Перекрытия между этажами.
- Отделка фасадов и кровли.
- Устройство систем отопления, водоснабжения и электрики.
Важно учитывать, что дополнительные расходы могут возникнуть при заказе индивидуальных проектов дизайна интерьера, благоустройстве участка и монтаже дорогой техники и мебели.
Экономическая целесообразность двухэтажного дома 15 x 8 м
При сравнении с одноэтажным домом одинаковой полезной площади, двухэтажная конструкция может быть даже дешевле, если грамотно организовать строительный процесс и выбрать оптимальное соотношение материалов. Меньшая площадь застройки снижает расходы на фундамент и кровлю — одни из самых затратных видов работ.
Также при двухэтажном доме проще обеспечить раздельное отопление и вентиляцию, что позволяет экономить энергоресурсы в будущем.
Планирование участка и рекомендации по размещению дома
Для оптимального расположения дома с размерами 15 на 8 метров необходим соответствующий участок. Минимальные размеры зависят от того, какой тип отступов и инженерных коммуникаций приняты по местным нормам.
Минимальные размеры участка для дома 15x8 м
| Параметр | Рекомендованные размеры, м | Комментарий |
|---|---|---|
| Минимальная ширина участка | 20-22 | Чтобы обеспечить отступы от границ и маневренность |
| Минимальная длина участка | 25-30 | Для удобного размещения дома и дворовой зоны |
Стоит учитывать, что нормы могут различаться в зависимости от региона, а также от требований местных органов власти.
Планировка прилегающей территории
Важную роль играет не только сам дом, но и окружающая территория. Правильное размещение подъезда, зона для отдыха или сад с огородом позволят максимально использовать возможности участка и сделают проживание более комфортным. Если на участке нет гаража, стоит предусмотреть достаточное пространство для парковки автомобилей.
Удобства и комфорт проживания в доме с тремя спальнями и тремя санузлами
Три спальни и три санузла – это набор функциональных удобств, который значительно повышает статус дома и качество жизни его обитателей. Такая планировка создаёт возможности для комфортного размещения всех членов семьи и гостей без ощущения нехватки пространства.
Преимущества трех спален
- Возможность зонировать комнаты под разные задачи — главная спальня, детские комнаты, кабинет или гостевая.
- Обеспечение личного пространства каждому жильцу, что особенно важно в больших семьях.
- Гибкость использования комнат: в будущем спальни можно переоборудовать в игровые зоны, мастерские или студии.
Роль трех санузлов в плане удобства
Современные семьи мечтают о наличии нескольких санузлов, чтобы избежать очередей и повысить уровень гигиены. Кроме того, санузлы, расположенные на разных этажах, обеспечивают максимальную функциональность и удобство пользования.
Возможности для расширения и индивидуальной настройки проекта
Проект такого размера легко адаптируется под нужды конкретного заказчика. Можно предусмотреть дополнительные элементы, расширить функциональность помещений, интегрировать современные технологии «умного дома» и системы энергоэффективности.
Индивидуальное перепланирование
При желании можно изменить количество комнат, объединить или наоборот, разделить зоны. Важно при этом учитывать несущие конструкции и оптимальную работу инженерных систем. Квалифицированный архитектор поможет реализовать любые идеи без ущерба безопасности и комфорту.
Варианты отделки и оборудования
Данный проект можно воплотить в различных стилях – от классики до модерна, используя разные материалы для отделки фасадов и интерьера. Также можно использовать современные системы отопления, вентиляции и кондиционирования, устанавливать автономные источники энергии, что делает дом не только красивым, но и экологичным.
Особенности эксплуатации и обслуживания дома 15x8 метров с площадью 250 м²
Важным аспектом качественного дома является простота ухода и долговечность конструкций. При корректном выборе материалов и продуманной планировке дальнейшая эксплуатация дома будет удобной и экономичной.
Удобство инженерных систем
В домах с продуманной планировкой инженерные коммуникации проходят рационально, что облегчает проведение профилактических и ремонтных работ. Например, расположение сантехники в непосредственной близости на разных этажах позволяет сократить протяженность трубопроводов.
Организация уборки и обслуживания
Два этажа требуют продуманного подхода к уборке и обслуживанию помещений — например, установка систем «умного дома» позволяет автоматизировать уборочные и сервисные процедуры. Наличие трех санузлов снижает нагрузку при одновременном использовании дома большим количеством человек.
Сезонное обслуживание и энергоэффективность
При использовании современных теплоизоляционных материалов и систем отопления эксплуатационные расходы минимизируются. При планировании вентиляции и отопления можно применять рекуперацию тепла, что благоприятно сказывается на микроклимате внутри помещений.





















