Одноэтажный дом 14х4 м — оптимальное решение для современной семьи
В современном строительстве одним из наиболее востребованных форматов жилых домов становится компактный и функциональный одноэтажный дом. Особенно актуальным он является для тех, кто ценит удобство, минимализм и практичность. Дом с размерами 14х4 метра и полезной площадью в 55 квадратных метров — это отличное решение для семьи из двух-трёх человек, а также для тех, кто хочет построить уютное загородное жильё с комфортом и без лишних затрат.
Сегодня мы подробно рассмотрим особенности такого дома, выясним его преимущества и особенности эксплуатации, а также подробно разберем стоимость строительства, которая составляет 4 646 256 рублей. Это позволит не только понять, насколько проект соответствует запросам современного жилья, но и определить экономическую выгоду от его реализации.
Размеры и планировка: что означает 14х4 метра?
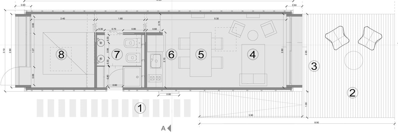
Дом с габаритами 14 метров в длину и 4 метра в ширину сразу обращает на себя внимание своей вытянутой и узкой формой. Такая планировка становится отличным вариантом для узких участков, где ограничено место по ширине. Теперь давайте рассмотрим, что именно можно разместить на площади в 55 м2 и какие возможности открывает данный размер дома.
Общая площадь и полезное пространство
Полезная площадь дома составляет ровно 55 квадратных метров. На таком пространстве можно создать все необходимые для комфортной жизни зоны, при этом не загромождая помещений. Несмотря на относительно небольшую площадь, проект предусматривает грамотное зонирование и рациональное размещение всех ключевых помещений, что особенно важно для одноэтажной постройки.
Планировочные решения: удобство и функциональность
Оптимальная планировка предусматривает наличие одной спальни и одного санузла, что делает дом удобным для небольшой семьи или пары без детей. Такой формат – часто оптимальное решение для тех, кто предпочитает минимализм и функциональность. В квартире останется много свободного пространства для зала, кухни и гостиных зон.
Основные помещения и их расположение
- Спальня — отдельная комната, достаточно просторная, чтобы разместить двуспальную кровать и шкаф для хранения вещей;
- Санузел — совмещённый, с оборудованием современного уровня;
- Общая зона — объединённая кухня-столовая и гостиная для комфортного времяпрепровождения;
- Коридор — компактный, но функциональный, позволяющий избежать потерь пространства.
Балконы и террасы в данном проекте отсутствуют, что подчеркивает стремление к максимальному использованию внутреннего пространства.
Почему именно одноэтажный дом?
Одноэтажные дома обладают рядом уникальных преимуществ, которые делают их особенно привлекательными для различных категорий покупателей. Рассмотрим основные из них:
Удобство и безопасность для всех членов семьи
Главное преимущество одноэтажного дома — это отсутствие лестниц, что существенно упрощает передвижение внутри дома. Это особенно важно для семей с маленькими детьми, пожилыми людьми или лицами с ограниченными возможностями. Каждый уголок дома максимально доступен, а риск травм снижается к минимуму.
Экономия и оптимизация затрат на строительство и эксплуатацию
Одноэтажный дом с размерами 14х4 обеспечивает более простое и быстрое строительство. Отсутствие второго этажа снижает проектные и строительные расходы. В дальнейшем это отражается и на снижении затрат на отопление и обслуживание, что немаловажно при эксплуатации жилого дома.
Простота технического обслуживания и ремонта
Монолитное расположение всех жилых помещений в одном уровне значительно облегчает проведение ремонтных работ и обслуживания инженерных систем. Это сокращает время и затраты на поддержание дома в хорошем состоянии.
Стоимость строительства: 4 646 256 рублей — за что мы платим?
Стоимость в 4 646 256 рублей за одноэтажный дом площадью 55 м2 кажется достаточно высокой на первый взгляд, но если рассмотреть эту сумму подробно, станет понятно, что в нее входят все ключевые компоненты строительства высокого качества и с учётом современных требований.
Основные статьи расходов
| Статья расходов | Описание | Процент от общего бюджета |
|---|---|---|
| Фундамент | Монолитный или свайный фундамент с учетом особенностей грунта | 15% |
| Стены и ограждающие конструкции | Качественные материалы для наружных и внутренних стен, обеспечивающие теплоизоляцию и надежность | 30% |
| Кровля | Устройство надежной крыши с системами водоотвода | 10% |
| Внутренние отделочные работы | Штукатурка, покраска, укладка напольных покрытий, установка дверей и окон | 20% |
| Инженерные коммуникации | Электрика, водоснабжение, канализация, отопление | 20% |
| Прочие расходы | Проектирование, разрешения, услуги подрядчиков и непредвиденные затраты | 5% |
Понимание структуры затрат позволяет оценить, насколько справедливо формируется цена проекта и как каждое вложение обеспечивает качество и надежность конечного результата.
Факторы, влияющие на цену
- Выбор строительных материалов и технологий. Использование современных, энергоэффективных материалов увеличивает стоимость, но снижает расходы в долгосрочной перспективе;
- Технологическая оснащённость дома — системы отопления, вентиляции, водоснабжения;
- Регион строительства — цены на работы и материалы варьируются в зависимости от географического расположения;
- Уровень отделки — готовность "под ключ" подразумевает больше вложений, чем строительные работы "коробка".
Как подобрать участок для дома 14x4 метров
Перед строительством одноэтажного дома длиной 14 метров и шириной 4 метра необходимо тщательно продумать параметры участка, на котором он будет возведен. Небольшая ширина дома позволяет использовать даже узкие участки, что является важным преимуществом в условиях плотной городской или пригородной застройки.
Минимальные размеры участка
Для дома с такими габаритами желательно иметь участок, ширина которого превышает ширину дома минимум на 2-3 метра с каждой стороны для организации отступов и удобного подхода, а также обеспечения естественного освещения помещений. В длину участок должен быть минимум на 3-4 метра длиннее дома, чтобы предусмотреть место для входных групп и, возможно, дополнительных зон отдыха.
Особенности планировки участка и ландшафта
Кроме минимальных размеров, важно учитывать характер рельефа и наличие инженерных сетей. Ровный или слабоволнистый ландшафт упростит процесс строительства и снизит стоимость подрядных работ. Наличие подведенных коммуникаций позволяет быстро подключить дом к сетям воды, электричества и канализации.
Преимущества и недостатки дома без гаража и террасы
В рассматриваемом проекте отсутствуют террасы и балконы, а также гараж. Это существенно влияет на несколько аспектов — с одной стороны, позволяет сосредоточиться на эффективном использовании внутреннего пространства, с другой — может стать препятствием для любителей открытых зон и владельцев автомобилей.
Преимущества отсутствия гаража и террасы
- Снижение общих расходов на строительство;
- Упрощение архитектурного решения и уменьшение времени на строительство;
- Более компактная планировка, что облегчает отопление и техническое обслуживание;
- Больше ресурсов можно потратить на улучшение внутренней отделки и инженерное оснащение.
Недостатки и как с ними справиться
- Отсутствие места для хранения автомобиля — решается отделкой навесом или постройкой отдельного гаража на участке;
- Нет открытой зоны для отдыха на террасе — можно создать уютную зону во дворе с садовой мебелью;
- Меньше возможностей для расширения площади — оптимально сразу планировать интерьер под нужды семьи.
Проектирование односпальной планировки: как сделать дом удобным?
Односпальный дом 55 м2 — это вызов для архитектора и дизайнера, который требует от них умения рационально использовать каждый квадратный метр. Поскольку количество жилых комнат ограничено, каждая зона должна быть максимально эргономичной и многофункциональной.
Зонирование помещений
Четкое зонирование позволяет избежать ощущения тесноты и хаоса в интерьере:
- Спальня — изолированное пространство для отдыха с достаточно места для мебели и организации хранения;
- Санузел — компактный, но оснащённый современными приборами для удобства;
- Общая зона — объединенная кухня и гостиная, где можно разместить приём гостей и проводить семейные вечера;
- Места хранения — встроенные шкафы и комоды, оптимально встроенные в стены или углы.
Идеи для визуального увеличения пространства
Для домов с небольшой площадью важна визуальная свобода и свет. Использование светлых тонов в отделке, большие окна, открытые планировки и минимализм в меблировке способствуют созданию ощущения простора и комфорта.
Материалы и технологии строительства дома 14х4
Выбор материалов и технологий определяет финальное качество, энергоэффективность и долговечность дома. На рынке сегодня доступны как традиционные, так и инновационные решения для одноэтажных домов, и именно их комбинация помогает добиться оптимального результата.
Каркасные технологии
Каркасное строительство — один из популярных методов возведения легких и энергоэффективных домов. Легкость конструкции позволяет быстро выполнять работы, а современные утеплители обеспечивают комфортный микроклимат.
Блочные и кирпичные варианты
Стены из газоблоков или керамического кирпича отличаются высокой прочностью и звукоизоляцией, что особенно ценно для жилых помещений. Эти материалы обладают хорошей теплоемкостью, что снижает затраты на отопление зимой.
Выбор крыши и её значение
Крыша является неотъемлемой частью дома, не только защищающей от осадков, но и влияющей на внешний вид и долговечность строения. В данном проекте отсутствует информация о типе крыши и её характеристиках, однако для одноэтажных домов часто применяются скатные крыши, которые обеспечивают эффективный водоотвод и возможность использования чердачного пространства.
Инженерные коммуникации: комфорт и безопасность
Для полноценной жизни важно, чтобы дом был оснащён современными коммуникациями, обеспечивающими удобство и безопасность всех проживающих. В доме площадью 55 м2 инженерные системы продуманы так, чтобы поддерживать оптимальный микроклимат и снабжение водой без лишних затрат и сложностей.
Отопление и вентиляция
Современные системы отопления с использованием газовых котлов, электрических теплых полов или отопительных панелей позволяют эффективно обогревать дом и регулировать температуру в каждой зоне. Обязательным элементом является вентиляция, которая обеспечивает приток свежего воздуха и предотвращает накопление влаги.
Водоснабжение и канализация
Совмещённый санузел требует грамотного подключения инженерных систем. Современные устройства позволяют экономить воду и поддерживать высокий уровень гигиены. Подключение к центральной системе канализации или установка автономного септика зависит от расположения дома и особенностей участка.
Практические советы по обустройству одноэтажного дома 14x4
Хотя проект и готов, окончательное удобство дома во многом зависит от правильного выбора и расстановки мебели, организации хранения и освещения. Ниже представлены рекомендации, которые помогут создать комфортное пространство.
Мебель и хранение
- Используйте встроенную мебель и многофункциональные предметы (раскладные диваны, столы-трансформеры);
- Выбирайте светлые оттенки и лаконичные формы, чтобы не перегружать интерьер;
- Максимально используйте вертикальное пространство для хранения — полки, шкафы, гардеробные системы;
- Организуйте минимальное, но функциональное рабочее пространство, если нужно.
Освещение и декор
- Максимальное использование естественного освещения – большие окна и светлые шторы;
- Зонированное искусственное освещение — потолочные светильники, настольные лампы и подсветка в зонах хранения;
- Небольшое количество декоративных элементов — лучше выбрать несколько акцентов, чтобы не перегрузить комнату.
Подведение итогов: почему стоит выбрать этот проект?
Одноэтажный дом размером 14х4 метра с полезной площадью 55 м2 — это сбалансированное решение для тех, кто ищет компактное, удобное и экономичное жильё. Отсутствие лишних площадей и функциональный дизайн позволяют получить комфортное проживание с разумными финансовыми затратами, а стоимость в 4 646 256 рублей оправдана качеством и технологичностью постройки.
Такой дом станет хорошей основой для создания уютного семейного очага, обеспечит безопасность и простоту эксплуатации, а также позволит при необходимости дополнить его удобными внешними зонами на участке. При выборе этого проекта вы делаете ставку на практичность и современный подход к организации жилого пространства.










