Обзор проекта двухэтажного дома 9х12 м – идеальное сочетание пространства и комфорта
Проект двухэтажного дома размером 9 на 12 метров – это один из наиболее востребованных вариантов для тех, кто хочет рационально использовать участок и при этом получить просторное и функциональное жилье. Общая площадь такого дома составляет около 163,52 квадратных метров, что позволяет комфортно разместить всю необходимую мебель и бытовую технику, создавать уют для семьи, включающей до трех спален.
В нашей статье мы подробно рассмотрим особенности этого дома, преимущества двухэтажной планировки, количество и расположение жилых комнат, а также практические аспекты строительства на участке, подходящем под размер 9х12 м.
Архитектурные размеры и планировка дома 9x12 м
Основные габариты дома – 9 метров в ширину и 12 метров в длину – создают удобный прямоугольный контур, который широко используется в строительстве частных домов. Благодаря такому размеру, фундамент и несущие конструкции получаются оптимальными по стоимости и скорости возведения.
Двухэтажная конструкция эффективно использует земельный участок, позволяя увеличить жилую площадь без расширения плана по периметру. Этот подход важен для семей, которым необходимо дополнительное пространство, но размер участка ограничен.
Преимущества прямоугольной формы
Дом с прямоугольной формой 9 на 12 метров предлагает несколько важных преимуществ:
- Простота организации внутреннего пространства и зонирования;
- Удобное размещение несущих стен, что снижает стоимость строительства;
- Легкость интеграции инженерных систем и коммуникаций;
- Гибкость в выборе отделки фасадов и кровли.
Такой формат позволяет не только создать классический дизайн, но и использовать современные тенденции в архитектуре: например, большие окна с видом на сад или компактные эркеры.
Двухэтажная планировка: комфорт и функциональность
Два этажа – это отличный способ разделить жилые и общественные зоны в доме. Как правило, на первом этаже располагается кухня, гостиная и вспомогательные помещения, а на втором – приватные комнаты, включая спальни и санузлы. Для дома площадью 163,52 м² такая организация позволяет максимально использовать каждый квадратный метр без лишних коридоров.
Расположение комнат и зонирование
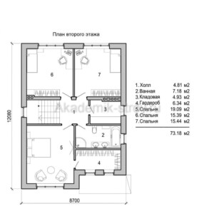
В доме этого размера традиционно предусматривается три спальни, которые располагаются на втором этаже для обеспечения уюта и тишины. Это оптимальная конфигурация для семьи из 3-5 человек, позволяющая каждому члену семьи иметь личное пространство.
На первом этаже обычно размещают просторную кухню, объединённую с гостиной зоной, кабинет или дополнительную комнату для гостей. Наличие двух полноценных санузлов существенно повышает комфорт семьи и избавляет от утренних очередей в ванной.
Преимущества двух санузлов
- Удобство для большой семьи и гостей;
- Возможность предусмотреть как полноценную ванную с душевой кабиной, так и компактный гостевой туалет;
- Оптимальное распределение сантехнических коммуникаций между этажами.
Архитектурные и конструктивные особенности дома 9х12 м
Строительство двухэтажного дома такой площади требует внимания к нескольким важным деталям — от выбора материала для стен до типа перекрытий и кровли. Рациональный подход включает использование современных технологий, которые обеспечивают надежность, энергоэффективность и долговечность.
Материалы стен и утепления
В частном строительстве чаще всего применяются материалы, сочетающие прочность и теплоизоляцию. Это могут быть газобетонные блоки, кирпич или комбинированные решения с каркасными вставками. Для дома площадью 163,52 м², где жилые помещения находятся на двух этажах, важно выбирать материал, который гарантирует сохранение тепла и позволяет избежать сквозняков.
Перекрытия и лестница
Важной частью планировки является правильный выбор системы перекрытий между этажами – деревянные балки, железобетонные плиты или комбинированные решения обеспечивают устойчивость и безопасность. Лестница, как связующее звено двух уровней, должна быть удобной, отвечать нормам безопасности и хорошо вписываться в интерьер.
Фундамент и кровля
При размерных параметрах дома 9 на 12 метров фундамент обычно выполняется ленточным или плитным типом. Кровля – одна из ключевых составляющих, которая влияет как на общую эстетику, так и на долговечность дома и защиту внутреннего пространства.
Внутреннее пространство и планировка комнат
Одним из наиболее важных преимуществ дома площадью 163,52 м² является возможность рационального размещения сразу трех спален, что идеально подходит для классической семьи с детьми.
Спальни: приватность и комфорт
На втором этаже размещаются три спальни, каждая из которых может быть различной площади и назначения — от комнаты ребенка до мастер-спальни родителей с отдельной гардеробной. Такие условия позволяют обеспечить комфортное пребывание в доме для всех членов семьи, каждому выделить личное пространство.
Гостиная и кухня
Первый этаж, как правило, посвящен общественной зоне – просторной гостиной, объединенной с кухней и столовой. Эта открытая планировка не только создает ощущение простора, но и делает дом функциональным для приема гостей и семейных мероприятий.
Санузлы и хозяйственные помещения
Наличие двух санузлов – на первом и втором этажах – обеспечивает свободный доступ к ванной комнате для всех жильцов, особенно в утренние часы. Это важное удобство делает жизнь более комфортной и избавляет от лишних неудобств.
Технические аспекты строительства и удобство эксплуатации
Дом 9х12 м с двумя этажами имеет свои особенности в плане инженерии. Важна правильная организация отопления, вентиляции и водоснабжения. На сегодняшний день оптимальным решением являются системы, которые позволяют экономить энергию и обеспечивают эффективный микроклимат внутри помещения.
Отопление и вентиляция
Лучшие типы отопительных систем – это теплоэффективные котлы с возможностью управления температурой на каждом этаже и комнатах. Натуральная вентиляция дополняется системой приточной вентиляции с рекуперацией тепла, что существенно улучшает качество воздуха и снижает затраты на тепло.
Электроснабжение и безопасность
Двухэтажный дом на 163,52 м² требует продуманного распределения электрических линий, которые должны поддерживать одновременно освещение, бытовую технику и системы безопасности. Особое внимание уделяется защите от коротких замыканий и установке автоматических выключателей.
Требования к участку под дом 9х12 м
Размер дома накладывает определенные требования к участку, на котором он будет строиться. Земельный участок должен иметь достаточную ширину и длину, чтобы обеспечить комфортное размещение строения и пространства для небольшого сада или зоны отдыха.
Минимальные размеры участка
Для дома габаритами 9 на 12 метров рекомендуется земельный участок с шириной не менее 15 метров и длиной от 20 метров и выше. Это позволит оставить свободное пространство по периметру дома для коммуникаций, декоративного озеленения, а также для удобного подъезда и маневрирования транспорта.
| Параметр | Минимальное значение | Рекомендации |
|---|---|---|
| Ширина участка | 15 м | Оставить по 3 метра с каждой стороны для дворовой зоны |
| Длина участка | 20 м | Обеспечить зону переднего двора и заднего сада |
| Площадь участка | 300 м² (ориентировочно) | В зависимости от желаемых зон и планировки внешнего пространства |
Возможности для индивидуальной настройки проекта
Одним из преимуществ данного стандартизированного проекта дома 9х12 м является возможность вариаций и добавления опций, которые делают жилище уникальным и отвечающим любым личным предпочтениям и образу жизни. К ним относятся дизайн фасадов, внутреннее зонирование, дополнительные отделочные решения и системные доработки.
Перераспределение комнат и функциональных зон
Заказчик может внести изменения в планировке, например, увеличить площадь одной из спален или организовать дополнительный санузел, заменить гостиную на кабинет, или наоборот.
Внешние особенности
Хотя проект не предусматривает встроенный гараж, всегда возможно его пристроить отдельно. Также можно дополнить дом небольшими террасами или балконами по желанию, что расширит функциональность и визуальную привлекательность здания.
Заключение: почему стоит выбрать двухэтажный дом 9x12 м площадью 163.52 м²
Двухэтажный дом с габаритами 9 на 12 метров и общей площадью около 163,52 квадратных метров – это отличное решение для полноценного семейного жилья, сочетающего в себе оптимальный размер участка и продуманную внутреннюю планировку. Наличие трех спален и двух санузлов обеспечивает высокий уровень комфорта, а рациональное использование пространства позволяет создать уют и функциональность на каждом участке.
При правильном выборе строительных материалов, инженерных систем и грамотной организации пространства такой дом станет вашим надежным и долговечным жилищем, которое подарит тепло и безопасность всем членам семьи на долгие годы.





























