Двухэтажный дом 17x14 - характеристики и особенности проекта
Проект двухэтажного дома с размерами 17 на 14 метров и общей полезной площадью 190 м² является идеальным вариантом для тех, кто мечтает о просторном и функциональном жилье. Такой дом способен сочетать в себе комфорт городской квартиры и уют загородного дома, предоставляя достаточно пространства для большой семьи и гостей. В этой статье мы подробно рассмотрим все ключевые аспекты этого проекта, подчеркнем его преимущества и расскажем, почему его стоимость в 7 824 190 рублей является вполне оправданной.
Когда речь идет о таком габаритном доме, особенно важно уделять внимание планировке, архитектуре и материалам, чтобы итоговое строительство соответствовало ожиданиям заказчика и сочетало хорошие показатели по стоимости и качеству. Двухэтажные дома – отличный выбор для участков с ограниченной площадью, поскольку они позволяют увеличить жилую площадь, занимая меньше земли. Давайте подробно разберем, что представляет собой дом площадью 190 м² с размерами 17 на 14 метров и двумя этажами.
Размеры дома и их влияние на комфорт
Размеры дома – один из наиболее важных факторов при планировании строительства. Габариты 17 на 14 метров позволяют создать удобную и логичную планировку, где пространства не будут казаться тесными или наоборот – слишком распыленными.
Длина в 17 метров и ширина 14 метров дают существенную площадь для организации как общих, так и приватных зон. При этом дом остается компактным с точки зрения занимаемой площади на участке. Этот параметр подойдет для большинства загородных участков, не требуя слишком больших затрат на обустройство территории.
Почему 190 м² полезной площади оптимальны для семьи
Полезная площадь 190 м² – это комфортный «золотой стандарт» для семьи из 3-5 человек. Данный метраж позволяет разместить все необходимые функциональные зоны, которые включают в себя:
- гостиную и кухню;
- столовую;
- две спальни;
- рабочий кабинет или игровую комнату;
- два санузла;
- зону отдыха.
Такой дом не требует жертвовать площадью комнат ради дополнительных помещений, и одновременно сохраняет энергоэффективность и комфорт. Оптимальное распределение площади позволяет избежать ощущения тесноты и скованности – в такие дома хочется возвращаться.
Планировка здания: два этажа для максимизации пространства
Использование двух этажей – залог максимально эффективного использования площади участка. Большинство современных проектов двухэтажных домов предполагают разделение функций между этажами для удобства проживания.
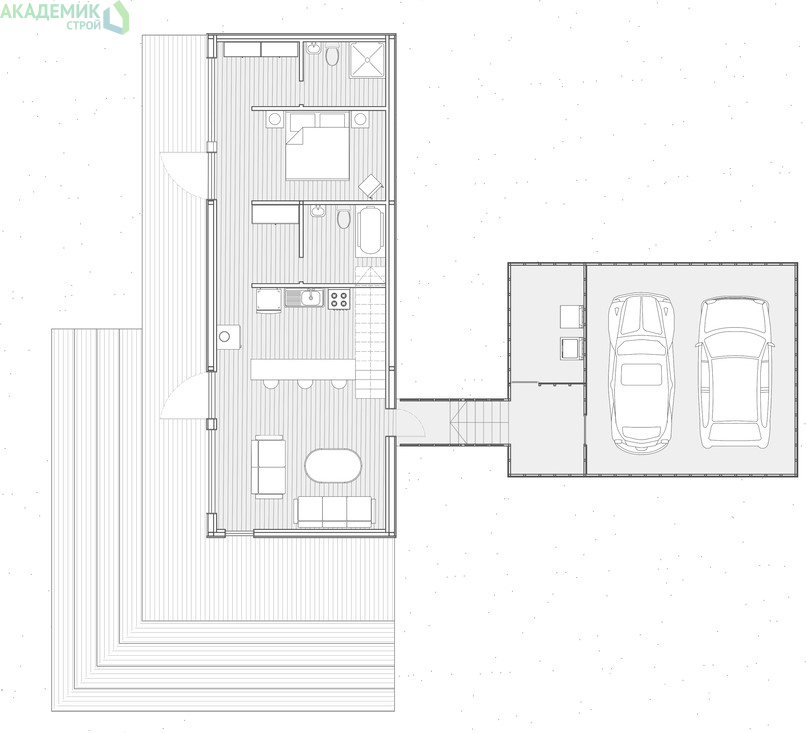
Первый этаж: общие и хозяйственные зоны
На первом этаже традиционно располагаются зоны общего пользования. Обычно сюда входят гостиная, кухня и столовая, а также — при необходимости — гостевой санузел и небольшое техническое помещение или кладовая. Такая композиция позволяет сделать пространство открытым и светлым, что идеально подходит для приема гостей и совместного времяпрепровождения.
Второй этаж: приватные комнаты и санузлы
На втором этаже расположены все приватные зоны – спальни и санузлы. В нашем конкретном случае это две спальни. Каждая из них может быть оборудована гардеробной или небольшой зоной для работы или отдыха. Наличие двух санузлов – несомненный плюс, особенно для семей с детьми или для постоянного проживания нескольких поколений.
Преимущества двух санузлов для комфорта семьи
Два санузла позволяют избежать утренних очередей и конфликтов, создают задел на будущее при расширении семьи или посуточном проживании гостей. Они расположены таким образом, чтобы обеспечить максимальную приватность и удобство, что особенно важно для домов с двумя этажами.
Стоимость дома - 7 824 190 рублей: за что вы платите?
Цена в 7 824 190 рублей за двухэтажный дом 17х14 с площадью 190 м² – это средний ценовой сегмент для частного загородного строительства. Чтобы понять, насколько эта сумма оправдана, рассмотрим, что именно входит в стоимость и как она формируется.
Основные составляющие затрат
| Статья расходов | Описание | Процент от общей стоимости |
|---|---|---|
| Фундамент и земляные работы | Подготовка участка, закладка фундамента с учетом габаритов дома | 20% |
| Каркас и стены | Возведение несущих конструкций, наружные и внутренние стены | 30% |
| Кровля и облицовка | Устройство крыши, водосток, наружная отделка стен | 15% |
| Инженерные системы | Отопление, электрика, водоснабжение и канализация | 15% |
| Внутренняя отделка | Штукатурка, покраска, укладка пола, установка дверей и окон | 10% |
| Прочие затраты | Проектирование, разрешения, логистика и непредвиденные расходы | 10% |
Таким образом, стоимость формируется из большого числа компонентов, каждый из которых важен для качественного результата. Важно отметить, что проект с такой площадью и конфигурацией подразумевает использование хороших материалов, современного оборудования и продуманной архитектуры.
Почему стоит выбрать двухэтажный дом площадью 190 м²
Наличие двух этажей и внушительной площади означает, что вы получаете пространство, которое можно адаптировать под любые потребности. В отличие от одноэтажных конструкций, здесь помещение эффективно зонируется, что обеспечивает отличное разделение на общественные и приватные зоны без дополнительных перегородок, которые «съедают» площадь.
Преимущества двухэтажного дома
- Экономия участка: Небольшой footprint дома на земле позволяет сохранить больше свободной территории для сада, зоны отдыха и парковки.
- Повышенная приватность: Разделение этажей делает возможным комфортное проживание от нескольких поколений или семей.
- Лучшее использование ресурсов: Отопление и вентиляция двухэтажных домов зачастую более эффективны при правильной проектировке.
- Более интересная архитектура: Вы можете получить красивый фасад и возможность расширения за счет мансарды или балконов (если предусмотрено).
Для кого подойдет этот проект
Такой дом прекрасно подходит:
- Для семей с одним или двумя детьми, которые нуждаются в комфортных условиях проживания.
- Для тех, кто планирует принимать гостей или организовывать домашний офис.
- Для владельцев участков средней площади, где важно сохранение свободных метров для ландшафтного дизайна.
- Для желающих получить жилье с умеренно высокой инвестиционной стоимостью и при этом надежным и долговечным.
Материалы и технологии строительства
Качество материалов и используемые технологии – залог долговечности и комфорта дома. Для проекта площадью 190 м² очень важен выбор технологии, которая обеспечит устойчивость, теплоизоляцию и удобство эксплуатации.
Популярные варианты материалов
- Кирпич: Один из самых прочных и долговечных материалов, обеспечивающий отличную тепло- и звукоизоляцию.
- Газоблоки и пеноблоки: Легкие и энергоэффективные материалы, доступные по цене и удобные в работе.
- Дерево: Натуральный материал, который создает отличный микроклимат внутри дома, но требует тщательной обработки.
- Монолитный бетон: Современный способ возведения прочных конструкций с высокой степенью герметичности.
Выбор материала зависит от климата региона, бюджета и архитектурных предпочтений заказчика. В любом случае основу качественного дома составляет грамотный архитектурный проект и соблюдение технологии строительства на всех этапах.
Инженерные системы
Проект с площадью 190 м² предусматривает полное оснащение современными инженерными системами, включающими:
- Эффективную систему отопления (газовое, электрическое, теплые полы);
- Автоматическую систему водоснабжения и канализации;
- Кабели и оборудование для интернета, телевидения и безопасности;
- Вентиляция с рекуперацией, если это предусмотрено проектом.
Это обеспечивает качественный уровень жизни и минимизацию расходов на содержание дома в будущем.
Стоит ли строить такие дома в современных условиях?
Современное строительство в России предлагает огромное количество вариантов для комфортного жилья. При том, что на рынке есть много небольших домов и коттеджей, двухэтажный вариант с площадью около 190 м² остается среди самых востребованных благодаря своей универсальности и функциональности.
Важным аргументом в пользу такого дома является возможность экспериментировать с дизайном и эргономикой пространств, делая каждую комнату по-настоящему удобной. Также не стоит забывать, что значительная площадь дома повышает его рыночную стоимость и привлекательность при возможной продаже.
Какие факторы влияют на выбор проекта?
| Фактор | Описание | Влияние на выбор |
|---|---|---|
| Размер участка | Площадь, конфигурация и рельеф участка | Определяет максимально допустимые размеры дома и отступы |
| Бюджет строительства | Доступные средства на реализацию проекта | Влияет на выбор материалов и сложность конструкции |
| Количество членов семьи | Численность и возраст жильцов | Определяет количество спален и санузлов |
| Пожелания по стилю | Архитектурные и дизайнерские предпочтения | Влияет на внешний вид и внутреннюю планировку |
Подводя итог
Двухэтажный дом 17 на 14 метров с полезной площадью 190 м² является оптимальным вариантом для тех, кто ищет сочетание простора, комфорта и функциональности. Наличие двух спален и двух санузлов отвечает базовым потребностям семьи, а лаконичные габариты позволяют не занимать лишние метры участка.
Стоимость в 7 824 190 рублей вполне оправдана при учете качества материалов, технологии строительства и уровня оснащения инженерными системами. Такой дом станет хорошим вложением в комфорт и будущее, обеспечивая уют и безопасность на многие годы.
Если вы рассматриваете строительство именно двухэтажного дома, проект 17x14 м с площадью 190 м² – достойный выбор, который будет радовать вас и вашу семью своим удобством и привлекательным внешним видом.









