Введение в проект трехэтажного дома 8x14 площадью 460 м²
Строительство частного дома — это всегда интересный и ответственный процесс, особенно когда речь идет о просторных и многофункциональных строениях. Трехэтажный дом с размерами 8 на 14 метров и общей полезной площадью 460 квадратных метров — это предложение, способное удовлетворить потребности большой семьи или тех, кто ценит простор и комфорт в каждом уголке своего жилья. В этой статье мы подробно рассмотрим, какие преимущества предоставляет такой проект, как грамотно организовать пространство, и на что обратить внимание при планировании и строительстве.
Современные технологии и материалы дают возможность создавать дома, сочетающие эстетическую привлекательность, энергоэффективность и высокий уровень комфорта. Перейдя к изучению конкретного проекта, стоит отметить, что трехэтажное решение открывает дополнительные возможности для зонирования жилого пространства, выделения рабочих и общественных зон, а также включает в себя большое количество ванных комнат, что в значительной степени повышает удобство повседневной жизни.
Размеры и планировка: основные параметры дома 8x14 с тремя этажами
Дом с размерами 8 на 14 метров является компактным по габаритам для трехэтажного здания, но при этом он предлагает значительное жилое пространство благодаря эффективному использованию трех уровней. Общая полезная площадь в 460 м² позволяет функционально распределить помещения и создать комфортные условия для проживания.
Три этажа — это возможность не только увеличить жилую площадь, но и сегментировать дом таким образом, чтобы создать приватные и общественные зоны. Обычно в таких домах нижний этаж отводится под гостиную, кухню, столовую и технические помещения, второй этаж — под спальни, а третий — может быть оборудован под гостевую зону, кабинет или зону отдыха.
Преимущества трехэтажной застройки
- Экономия земли: За счет вертикального строительства площадь застройки уменьшается, что особенно важно при ограниченном размере участка.
- Удобное зонирование: Возможность четко разделить общественные и личные зоны, что повышает комфорт для всех членов семьи.
- Вместимость: Три полноценных этажа — отличное решение для большой семьи или для тех, кто любит принимать гостей.
Габариты дома и организация пространства
Длина 14 метров и ширина 8 метров формируют компактный, но глубокий план, позволяющий разместить комнаты разных назначений без ущерба для естественного освещения и вентиляции. При грамотном проектировании обеспечивается удобство перемещения между этажами и свобода выбора дизайна интерьера.
Комфорт и функциональность: количество спален и санузлов
Одним из ключевых параметров проекта является количество спален — в данном случае их 4. Этот показатель является оптимальным для типичной семьи из 4-6 человек, где каждый член семьи получает личное пространство. Наличие четырех спален распределяется по этажам таким образом, чтобы обеспечить максимальный комфорт и приватность.
Особое внимание заслуживает санузлы — в доме их планируется пять и более. Наличие нескольких санузлов существенно облегчает организацию быта, исключая “очереди” утром или вечером, что особенно актуально в больших семьях. Также наличие дополнительных ванных комнат может использоваться для оборудования гостевых туалетов, санитарных зон при бассейне или рабочем кабинете.
Распределение спален и санузлов по этажам
| Этаж | Количество спален | Количество санузлов | Назначение основных помещений |
|---|---|---|---|
| Первый этаж | 0 | 1+ | Гостиная, кухня, столовая, санузел, технические помещения |
| Второй этаж | 2-3 | 2-3 | Основные спальни с персональными санузлами |
| Третий этаж | 1-2 | 1+ | Дополнительные спальни, кабинеты, зона отдыха с санузлом |
Организация спален с собственными санузлами — один из признаков комфортного жилья высокого класса, ведь она позволяет сохранить уединение и обеспечить индивидуальные условия для каждого жильца.
Экономика строительства: стоимость трехэтажного дома 8x14
Стоимость строительства является важным фактором при выборе проекта дома. В нашем случае трехэтажный дом площадью 460 квадратных метров оценен в 9 333 856 рублей. Этот ценовой показатель отражает современные строительные стандарты, использование качественных материалов и профессиональный подход к возведению здания.
При расчете бюджета необходимо учитывать не только стоимость материалов и работы строителей, но и дополнительные затраты на проектирование, инженерные коммуникации, отделочные работы и реализацию ландшафтного дизайна. Правильное планирование и распределение ресурсов позволяет избежать непредвиденных расходов и сохранить качество и функциональность дома.
Основные составляющие стоимости
| Статья расходов | Примерная доля в стоимости | Описание |
|---|---|---|
| Материалы | 40-50% | Кирпич, бетон, утеплители, кровля, окна и двери |
| Работы | 30-35% | Строительство, монтаж систем, внутренняя отделка |
| Инженерия | 10-15% | Электрика, сантехника, вентиляция, отопление |
| Проектирование и разрешения | 5-10% | Архитектурный проект, согласования, лабораторные работы |
Таким образом, цена 9,3 миллиона рублей — это разумная и конкурентоспособная стоимость для дома такого масштаба и уровня комфорта.
Энергоэффективность и современные технологии в строительстве трехэтажного дома
Современные стандарты строительства требуют от домов не только привлекательности и удобства, но и экономии ресурсов. Энергоэффективность — залог не только снижения коммунальных платежей, но и заботы об экологии вокруг. Для дома на трех этажах с размерами 8 на 14 метров это особенно важно, так как увеличенная площадь и объем здания могут привести к значительным тепловым потерям, если проект и материалы выбраны неправильно.
Использование современных утеплителей, окон с низким коэффициентом теплопередачи, эффективной вентиляционной системы с рекуперацией тепла позволяет значительно снизить энергопотребление. А грамотно спроектированная планировка помогает использовать естественное освещение и минимизировать потери тепла.
Технологии и материалы для энергоэффективности
- Многокамерные стеклопакеты с энергосберегающим покрытием. Позволяют сохранять тепло зимой и сохранять прохладу летом.
- Внешнее утепление фасадов. Использование пенополиуретана, минеральной ваты или современных композитных материалов.
- Системы «умный дом». Автоматизация контроля температуры, освещения и вентиляции для оптимального использования ресурсов.
- Воздухообмен с рекуперацией. Позволяет сохранять тепло, выводя отработанный воздух и подавая свежий при минимальных потерях тепла.
Проектирование и планировочные решения: как обеспечить комфорт для большой семьи
Разработка проекта трехэтажного дома 8x14 метра с площадью 460 м² должна основываться на четком понимании потребностей семьи, которая будет его заселять. Помимо достаточного количества спален и санузлов, важно продумать зоны общего пользования, технические помещения, а также места для отдыха и хобби.
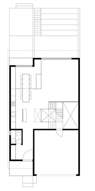
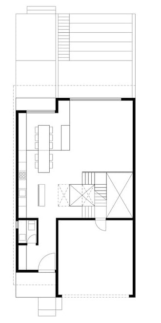
Часто рекомендуемое решение — выделение первого этажа под социальную функцию: гостиную, кухню, столовую, возможно, кабинет или игровую зону. Это позволяет сделать пространство максимально открытым и светлым, что создает атмосферу уюта и приглашает к совместным встречам.
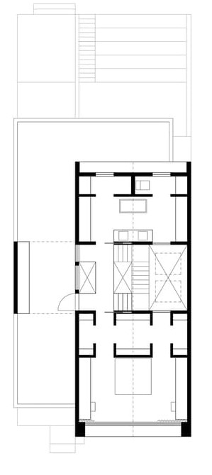
На втором и третьем этажах целесообразно расположить спальни с прилегающими санузлами, а также место для отдельной детской комнаты, гостевой, рабочего кабинета или зоны релаксации. Большое количество санузлов помогает избежать бытовых неудобств и повысить статус дома как комфортного и современного здания.
Рекомендации по зонированию помещений
- Первый этаж — общественные помещения: кухня, гостиная, столовая, гостевой санузел.
- Второй этаж — спальни родителей и старших детей с собственными ванными.
- Третий этаж — дополнительные спальни, кабинет, зона отдыха, санузлы.
- Отдельное внимание — техническим помещениям: кладовым, котельной, постирочным комнатам.
Особенности строительства и выбор подрядчика
Возведение трехэтажного дома — задача, требующая высокого профессионализма и точности от подрядчика. Именно от качества строительных работ зависит долговечность дома, его энергосбережение и удобство эксплуатации. Поэтому крайне важно тщательно подбирать строительную компанию, ориентируясь на отзывы, портфолио и рекомендации.
В ходе строительства важно контролировать процесс возведения инженерных систем, качество отделочных работ и безопасность монтажа конструкции. Современные методы контроля качества, применение сертифицированных материалов и использование специализированного оборудования — залог успеха любого крупного частного проекта.
Критерии выбора подрядчика
- Опыт работы с подобными проектами. Вертикальная многоквартирная застройка и частные многоэтажные дома имеют свои особенности.
- Наличие необходимой лицензии и сертификатов. Это гарантирует соблюдение строительных норм и правил.
- Качество репутации. Отзывы предыдущих клиентов и реальное портфолио объектов.
- Прозрачность предложений по стоимости. Отсутствие скрытых платежей и корректная смета.
Стоит ли выбирает трехэтажный дом 8x14 площадью 460 м²
Трехэтажный дом 8 на 14 метров с 460 квадратными метрами полезной площади — это отличное решение для тех, кто ценит комфорт, простор и функциональность. Проект идеально вписывается в среднестатистические городские и загородные участки, а также позволяет обеспечить все необходимые удобства большой семье.
При наличии бюджета в районе 9,3 миллиона рублей вы получаете не просто жилое пространство, а полноценное семейное гнездо с индивидуальными санузлами, удобным зонированием и современной инженерией. Такой дом становится инвестициями в собственное благополучие на годы вперед.
Если вы ищете сочетание оптимальных размеров, функциональности и разумной стоимости — данный проект заслуживает вашего внимания и может стать отличной основой для дома вашей мечты.













