Особенности двухэтажного дома 17х5 метров с площадью 330 м2
Двухэтажный дом площадью 330 квадратных метров при габаритах 17 на 5 метров — это отличное решение для тех, кто ищет компактное, но при этом просторное и функциональное жилье. Такой дом идеально подходит для узких участков, сохраняя при этом комфорт и простор внутри. Несмотря на достаточно узкий фасад, удается грамотно распланировать внутреннее пространство, чтобы разместить все необходимые комнаты и зоны для жизни и отдыха.
Размеры 17 на 5 метров создают интересный архитектурный вызов, но вместе с тем дают возможность реализовать современные дизайнерские приемы. Двухэтажная конструкция значительно увеличивает полезную площадь при минимальном занятии территории участка. В итоге дом получается вместительным и удобным в эксплуатации, сохраняя одновременно небольшой footprint на участке.
Преимущества планировки и использования двуэтажного формата
Выбор двух этажей является удачным компромиссом между удобством и экономией на строительстве. Благодаря вертикальному разделению зон, можно четко разграничить общественные и личные пространства, что поддерживает комфортное проживание нескольких человек или семьи из 3-5 человек. В нашем случае, наличие двух этажей позволяет уместить 3 спальни и 2 санузла, что является оптимальным вариантом для семьи среднего размера.
Важным преимуществом является также возможность эффективно использовать инженерные сети и коммуникации за счет компактности площади основания, что снижает расходы на монтаж труб и электропроводки благодаря меньшей длине трасс.
Четкое зонирование жилья
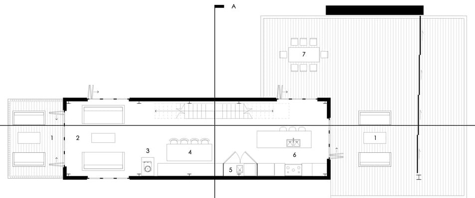
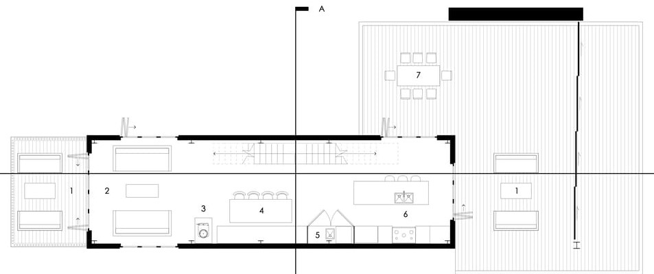
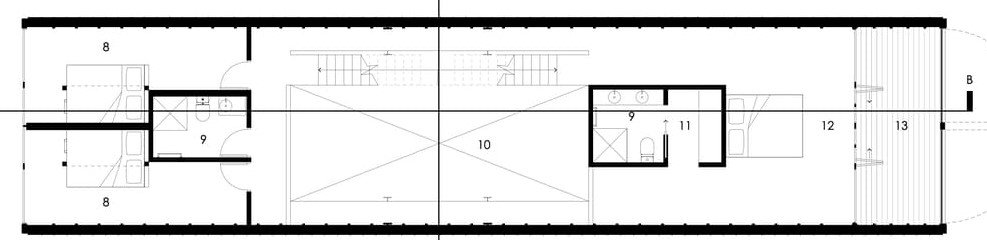
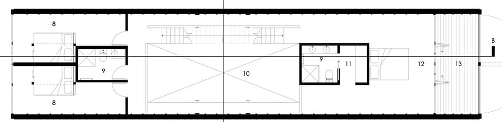
В двухэтажном доме всех 3 спальни размещены обычно на втором этаже, что создает приватную зону для отдыха и сна. В свою очередь, на первом этаже расположены помещения общего пользования — гостиная, кухня, столовая и санузел. Такое разделение помещений соответствует современным стандартам комфорта и эффективности использования пространства.
Наличие 2 санузлов — еще один удобный момент планировки. Один из них располагается обычно при спальнях, обеспечивая быстрый доступ к ванной комнате, второй — может служить гостевым, расположенным на первом этаже рядом с кухней и зоной отдыха.
Комфорт и функциональность: 3 спальни и 2 санузла
Три спальни в доме площадью 330 м2 позволяют обеспечить личное пространство каждому члену семьи. Это может быть одна спальня родителей, детская и кабинет или комната для гостей. Такая диверсификация обеспечивает не только комфорт, но и возможность адаптировать дом под переменчивые потребности семьи со временем.
Также важно, что наличие двух санузлов азначает комфортное пользование в утренние часы, снижая очереди и упрощая быт. Кроме того, лишняя ванная комната значительно повышает удобство проживания гостей и способствует гигиеническим потребностям.
Распределение спален и санузлов
| Помещение | Количество | Основное назначение |
|---|---|---|
| Спальни | 3 | Личный отдых и приватность |
| Санузлы | 2 | Гигиенические процедуры, обеспечивают удобство |
Технические и экономические аспекты строительства
Стоимость дома площадью 330 м2 в размере 12 112 612 рублей — отражает оптимальное соотношение цены и качества для частного жилищного строительства такого масштаба и планировки. При этом цена включает все основные этапы строительства: от фундамента и стен до кровли и коммуникаций с базовой отделкой.
Грамотное проектирование с габаритами 17x5 метра позволяет снизить издержки на материалы и работы, сохраняя при этом высокий уровень комфорта для обитателей. Узкий, но длинный дом требует основательного подхода к отоплению, вентиляции и освещению, что также учитывается на этапе разработки проекта.
Финансовые выгоды и бюджетирование
Примерная разбивка стоимости строительства дома 330 м2 может выглядеть следующим образом:
| Статья расходов | Процент от бюджета | Сумма (руб.) |
|---|---|---|
| Фундамент и работы по земле | 15% | 1 816 892 |
| Стены и кровля | 35% | 4 239 414 |
| Установка окон и дверей | 10% | 1 211 261 |
| Инженерные сети и коммуникации | 20% | 2 422 522 |
| Внутренняя отделка | 15% | 1 816 892 |
| Прочие расходы | 5% | 605 630 |
Архитектурные и инженерные решения для двухэтажного дома 17х5
Узкая планировка: всего 5 метров шириной — ставит перед архитекторами и инженерами непростые задачи. Основная задача – обеспечить достаточное естественное освещение и хорошую вентиляцию. Здесь широко применяется концепция продольного зонирования с окнами, выходящими фасадом и задним двором, что помогает сделать помещения светлыми и уютными.
Двухэтажность при таких размерах также предусматривает надежную лестницу с эргономичными размерами, которая не отнимает слишком много полезной площади. Конструкция лестницы часто выбирается Г-образной или с забежными ступенями для экономии пространства.
Рекомендации по материалам
- Фундамент: монолитная плита или ленточный бетон – надежные и экономичные варианты для малогабаритных участков.
- Стены: керамический блок или газобетон — обеспечивают хорошую теплоизоляцию при умеренной себестоимости.
- Кровля: легкие металлические или композитные материалы с надежной гидроизоляцией.
- Окна: пластиковые или деревянные с утепленными стеклопакетами для сохранения микроклимата.
Организация пространства: как разместить 3 спальни и 2 санузла в доме 17х5
Тонкой настройкой планировки достигается оптимальное размещение спален на втором этаже. Обычно центральная спальня — главная с возможностью размещения большой кровати и пространства для хранения. Две дополнительные комнаты могут быть детскими, гостевыми или под кабинет, в зависимости от нужд семьи.
Два санузла — это обычно одна ванная комната с душевой либо ванной и туалетом на втором этаже и гостевой туалет на первом. Такая компоновка позволяет избавиться от утренних пробок и обеспечивает удобство для жильцов и гостей.
Примерная планировка этажа
| Этаж | Комнаты | Назначение |
|---|---|---|
| Первый этаж | Кухня, гостиная, столовая, санузел | Общественные зоны для отдыха и приема гостей |
| Второй этаж | 3 спальни, ванная комната | Приватная зона для отдыха и гигиены |
Важные аспекты эксплуатации и обслуживания дома 17х5 и площадью 330 м2
Двухэтажный дом такой площади требует регулярного ухода и обслуживания, чтобы сохранить его эксплуатационные характеристики. Особое внимание уделяется системам отопления и вентиляции, которые при компактной ширине здания должны работать без перебоев и обеспечивать равномерный микроклимат во всех помещениях.
Кроме того, расположение комнат и инженерных сетей предусматривает удобный доступ для ремонта и обслуживания. Это снижает последующие расходы и упрощает техобслуживание дома.
Советы по эксплуатации
- Регулярное техническое обслуживание отопительной системы — минимум раз в год.
- Проверка и очистка вентиляционных каналов для предотвращения засорений и обеспечения качественного воздухообмена.
- Контроль герметичности окон и дверей при смене сезонов для сохранения тепла в холодное время года.
- Поддержание чистоты и регулярный осмотр крыши для обнаружения повреждений и предотвращения протечек.
Почему стоит выбрать именно такой двухэтажный дом 17х5
Такой дом идеально приживается в условиях небольшого или узкого земельного участка, где важен каждый метр. Его компактные размеры позволяют сэкономить на земельном участке, не жертвуя при этом комфортом и функциональностью. Ширина в 5 метров — оптимальное значение для обеспечения естественного освещения и вентиляции при продуманной планировке.
Общая полезная площадь в 330 м2 позволяет разместить большое количество комнат и зон для жизни и отдыха, что используется как для семьи с 3-4 людьми, так и для тех, кто любит принимать гостей. Наличие 3 спален и 2 санузлов делает дом универсальным и удобным для большинства сценариев.












