Обзор одноэтажного дома 12х16 метров: преимущества и возможности
Проект одноэтажного дома размером 12 на 16 метров — это оптимальное решение для тех, кто ищет комфортное и функциональное жильё на одном уровне. Площадь более 150 квадратных метров позволяет реализовать просторное внутреннее пространство, которое можно комфортно разделить на различные зоны: жилые комнаты, хозяйственные помещения и зоны отдыха. Такой формат строительства особенно привлекателен для семей с детьми, пожилых людей и тех, кто ценит удобство перемещений и минимальное количество лестниц внутри дома.
Одноэтажный проект обладает рядом преимуществ по сравнению с двух- и трёхэтажными домами: легче соблюсти требования по теплоизоляции и звукоизоляции, упрощается планировка систем водоснабжения и отопления, а также при строительстве значительно снижаются затраты на фундамент и крышу. Размеры дома 12 на 16 метров образуют площадь въездного участка, которая гармонично вписывается на большинство типовых участков в пригородных и дачных зонах.
Планировка дома: грамотное распределение пространства
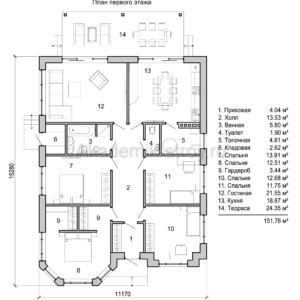
Одноэтажный дом размерами 12 на 16 метров прекрасно подходит для организации комфортной и рациональной планировки. Особенно стоит выделить наличие четырёх спален и двух санузлов — такой набор комнат обеспечивает комфортное проживание большой семьи или возможность принимать гостей с удобством. Расположение спален и санузлов в проекте организовано так, чтобы обеспечить приватность и достаточный уровень звукоизоляции между зонами.
В проекте основное жилое пространство обычно состоит из просторной гостиной, совмещённой с кухней и столовой зоной, что создаёт открытое и светлое пространство для семейных встреч и отдыха. Это позволяет увеличить визуальное пространство и обеспечивает хорошую коммуникацию между членами семьи. Кроме того, наличие двух санузлов существенно повышает комфорт проживания, особенно в часы пик.
Особенности размещения спален и санузлов
Четыре спальни удобно расположены вдоль одной стороны дома или разбиты по две — для детей и взрослых, что предоставляет возможность зонирования по интересам и возрасту. Санузлы в таком доме обычно размещаются так, чтобы к ним был удобный доступ из всех жилых комнат, при этом один из них может служить гостевым, а другой — семейным.
Преимущества организации двух санузлов в доме
- Сокращают время ожидания в утренние часы
- Повышают комфортное использование дома во время приема гостей
- Обеспечивают возможность одновременного использования без нарушения приватности
Размеры дома 12 на 16: оптимальные габариты для строительства
Стандартные размеры 12x16 м делают этот проект универсальным для различных типов участков, не требуя слишком больших затрат на оформление и подготовку территории. Эти параметры позволяют эффективно использовать внутреннее пространство для создания продуманной планировки, при этом сохраняется достаточное пространство для внешних хозяйственных построек или небольшого сада вокруг дома.
Габариты здания удобны для организации коммуникаций, а также позволяют строить дом технологично и быстро. Кроме того, компактные размеры способствуют снижению теплопотерь и экономии на материалах для фасада и крыши.
Минимальные требования к участку земли для постройки дома 12x16
| Параметр | Минимальное значение | Примечания |
|---|---|---|
| Ширина участка | 18 м | Обеспечивает отступы от границ и место для въезда |
| Длина участка | 24 м | Позволяет разместить дом и зону для отдыха или сад |
Для комфортного размещения дома и соблюдения всех строительных норм рекомендуется иметь участок с размерами не менее приведённых в таблице. Это даст пространство для создания придомовой территории, парковки и малых архитектурных форм.
Особенности одноэтажного дома: конструкция и инженерия
При проектировании и строительстве одноэтажного дома площадью около 152 квадратных метров важно тщательно продумать конструкции и инженерные системы. Низкая высота здания позволяет использовать облегчённые конструкции стропильной системы, снижая нагрузку на фундамент и общую стоимость строительства. Кроме того, одноэтажное здание упрощает монтаж инженерных коммуникаций, включая вентиляцию, отопление и электроснабжение.
Особое внимание уделяется утеплению наружных стен и кровельного покрытия. Современные теплоизоляционные материалы помогают снизить энергозатраты на отопление и кондиционирование, что выгодно отражается на финансовых расходах владельцев дома в будущем.
Фундамент и стены
Выбор типа фундамента зависит от особенностей грунта на участке. Чаще всего для дома таких размеров используют ленточный или плитный фундамент, который обеспечивает равномерную поддержку всей конструкции и предотвращает деформации. Стены могут быть выполнены из различных материалов — кирпича, газобетона, дерева или комбинированных решений, что позволяет адаптировать строительство под бюджет и климатические условия.
Кровля и чердачное пространство
Тип крыши в таком проекте обычно выбирается с учётом климатических условий и желаемого внешнего вида здания. Крыша может иметь невысокий уклон, что отвечает эстетическим и функциональным требованиям для одноэтажных домов. Важным аспектом является адекватная гидроизоляция и вентиляция пространства под кровлей, что предотвращает образование конденсата и продлевает срок службы кровельных материалов.
Примеры внутреннего зонирования и дизайн помещений
Для одноэтажного дома 12х16 метров важно продумать внутреннее зонирование, чтобы каждая зона гармонично выполняла свои функции и одновременно сохранялся комфорт для всех жильцов. Жилые комнаты — спальни — рекомендуется отделить от общественной зоны, где располагается кухня и гостиная. Это позволяет создать приватную атмосферу уединения и при этом сохраняет открытость в местах совместного времяпровождения.
Комнаты и их функциональное назначение
- Гостиная: Центр дома, просторное помещение, которое используется для отдыха всей семьи и приёма гостей.
- Кухня-столовая: Объединённое пространство для приготовления и употребления пищи, обеспечивающее комфорт и функциональность.
- Спальни: Четыре отдельные комнаты, каждая с достаточной площадью для размещения кровати, шкафа и офисного уголка.
- Санузлы: Два полноценных санузла, оборудованных современной сантехникой, один из которых может быть совмещён с ванной, а второй — с душевой кабиной.
Дополнительные зоны и пространства
В проекте также может быть предусмотрено место под гардеробные, кладовые или небольшие хозяйственные комнаты, что значительно повышает удобство проживания и помогает поддерживать порядок. Возможным решением является наличие небольшого холла при входе, где можно разместить шкаф для верхней одежды, обувь и аксессуары.
Материалы и технологии строительства дома 12х16
Выбор строительных материалов влияет на долговечность, комфорт и стоимость дома. Современные технологии позволяют сочетать традиционные и инновационные материалы, получая эффективные решения. Для стен часто применяются теплопористые блоки, которые обеспечивают хорошую теплоизоляцию и позволяют снизить затраты на отопление. Для кровли – металлочерепица или гибкая битумная черепица, которые отличаются долговечностью и эстетическим внешним видом.
Использование качественных материалов для отделки фасадов и внутренних помещений воздействует на внешний вид дома и его эксплуатационные качества. Например, оштукатуривание с последующей покраской или облицовка декоративным камнем придают зданию солидность и привлекательность.
Преимущества газобетона и облицовочного кирпича
| Материал | Преимущества | Особенности использования |
|---|---|---|
| Газобетон | Лёгкий, теплоизоляционный, огнестойкий, экологичный | Используется для строительства несущих стен |
| Облицовочный кирпич | Декоративный эффект, высокая прочность, защита от осадков | Используется для внешней отделки фасада |
Финансовые аспекты и сроки строительства
Строительство одноэтажного дома 12х16 с четырьмя спальнями и двумя санузлами требует грамотного планирования бюджета и сроков. В целом, строительство одноэтажного дома обходится дешевле многоэтажных аналогов из-за меньших затрат на фундамент и инженерные сети. Средние сроки возведения такого дома составляют от 4 до 8 месяцев, что зависит от выбранных технологий, сезонности и квалификации строителей.
Основные статьи расходов включают затраты на материалы, оплату труда строительной бригады, проектные работы и инженерное оснащение. На этапе планирования полезно подробно просчитать все статьи бюджета, а также предусмотреть резерв на непредвиденные расходы, чтобы избежать задержек и перерасхода.
Факторы влияющие на бюджет строительства
- Тип и качество материалов
- Особенности грунта и необходимость дополнительных работ по подготовке площадки
- Выбор инженерных систем (отопление, водоснабжение, вентиляция)
- Оформление и отделка внутри и снаружи дома
- Сезонность строительства и географическое расположение участка
Что учитывать при выборе одноэтажного дома 12х16
При выборе проекта и строительстве дома таких размеров стоит учитывать как личные потребности семьи, так и особенности участка, на котором планируется возведение здания. Определитесь с необходимым количеством комнат и их функциональным назначением, а также обязательно проконсультируйтесь с архитектором и инженерами для грамотной реализации проекта.
Кроме этого, учитывайте перспективы развития семьи: возможно, через несколько лет старшие дети пожелают отделиться своим пространством, или появится необходимость организации рабочего кабинета. Планируя дом с четырьмя спальнями, вы сразу получаете запас жилой площади на будущее.
Рекомендации по выбору участка под строительство одноэтажного дома
- Проверьте качество грунта и отсутствует ли высокий уровень грунтовых вод
- Убедитесь в наличии удобных подъездных путей и коммуникаций
- Оцените уровень шума и экологическую обстановку в районе
- Определите доступность инфраструктуры — магазинов, школ, медицинских учреждений
Только после полного анализа всех факторов стоит приступать к выбору строительной компании и утверждению конкретного проекта одноэтажного дома 12 на 16 метров, идеально подходящего именно для ваших задач и бюджета.
























