Двухэтажный дом 9х9 с площадью 120 м²: оптимальное решение для семьи
В современном строительстве частных домов важную роль играет не только функциональность и комфорт, но и рациональное использование пространства. Дом размером 9 на 9 метров, с общей полезной площадью 120 квадратных метров, представляет собой идеальное сочетание компактности и удобства. Такая планировка позволяет компактно разместить все необходимые помещения, сохранив при этом уют и комфорт для большой семьи.
Двухэтажное строительство в данном случае позволяет эффективно разделить жилое пространство по назначению – на первом этаже обычно располагают гостиную, кухню и зону для приема гостей, а на втором находятся личные комнаты. Этим достигается максимальный комфорт и приватность для всех членов семьи при минимальных затратах на строительство и эксплуатацию дома.
Размеры дома 9x9 м: преимущества и особенности
Габариты дома 9 на 9 метров являются одним из наиболее популярных вариантов для частного строительства. Такое квадратное расположение обеспечивает удобство в выборе планировки, рациональное использование площади и уменьшение потерь на коммуникации. Компактные размеры позволяют расположить дом практически на любом земельном участке, при этом обеспечивая комфортное пространство внутри.
Кроме того, дом 9х9 м проще возводить по сравнению с более сложными конструкциями, что снижает стоимость строительства и уменьшает сроки реализации проекта. Квадратная форма способствует прямолинейной коммуникации и минимизации строительных отходов.
Преимущества квадратного плана дома
- Рациональное использование внутреннего пространства без потерь;
- Удобство планировки и зонирования помещений;
- Упрощение конструктивных решений и снижения себестоимости;
- Легкость размещения дома на участке с ограниченной площадью.
Два этажа — больше возможностей для семьи
Одно из главных достоинств двухэтажного дома — возможность четкого разделения общественных и приватных зон. На первом этаже обычно располагаются гостиная, столовая, кухня, а также иногда гостевая комната или кабинет. Второй этаж отводится под спальни и личные санузлы, что создает ощущение уюта и приватности для каждого члена семьи.
Для семьи с детьми наличие двух этажей особенно актуально — дети могут иметь собственные спальни и игровые пространства, не мешая взрослым. Также двухэтажный дом обеспечивает большую свободную площадь на участке, так как при меньшей площади застройки можно получить значительный полезный метраж.
Особенности планировки двухэтажного дома 9х9
- Обособление общественных и приватных зон;
- Возможность увеличения количества комнат без расширения площади участка;
- Повышенная звукоизоляция между этажами;
- Эстетическая привлекательность и возможность использования разных архитектурных стилей.
Четыре спальни: комфорт для семьи из нескольких поколений
Планировка с четырьмя спальнями открывает широкие возможности для комфортного проживания большой семьи или размещения гостей. Каждая спальня может иметь индивидуальное назначение — например, родительскую, детские комнаты, гостевую или кабинет. Это особенно важно для семей, ценящих личное пространство и комфорт.
Распределение четырех спален на двух этажах позволяет грамотно использовать площадь и разделить зоны по возрасту и потребностям жильцов. В некоторых случаях одну из комнат можно использовать как детскую игровую, что дополнительно экономит площадь общего пространства.
Возможные варианты размещения спален
| Этаж | Назначение | Комментарий |
|---|---|---|
| Первый | Гостевая спальня или кабинет | Удобно для размещения гостей или работы из дома |
| Второй | Три спальни (родительская + детские) | Обеспечивает приватность и комфорт для семьи |
Два санузла: удобство и практичность
Наличие двух санузлов в доме площадью 120 м² — это необходимое условие для комфортного проживания пяти и более человек. Один санузел обычно располагается на первом этаже и служит как для жильцов, так и для гостей, второй — на втором этаже, расположенный рядом со спальнями. Такое распределение значительно снижает очереди и позволяет использовать пространство более рационально.
Кроме удобства, это способствует гигиеничности и предотвращает необходимость постоянного перемещения между этажами в периоды пиковой нагрузки — например, утром или вечером. Два санузла позволяют более удобно организовать распорядок дня для всех членов семьи.
Основные преимущества двух санузлов в частном доме
- Уменьшение времени ожидания и очередей;
- Возможность разделения функций — ванная для семьи, гостевой туалет;
- Повышенный уровень комфорта для жителей и гостей;
- Удобство проведения уборок и обслуживания коммуникаций.
Стоимость строительства двухэтажного дома 9x9 — 5 078 517 рублей
При выборе проекта дома важным фактором является его стоимость. Дом размером 9x9 метров с полезной площадью 120 м² оценивается примерно в 5 078 517 рублей. Такая цена включает основные строительные работы, материалы для возведения коробки, финишную отделку, монтаж инженерных систем и базовую комплектацию.
Важно понимать, что стоимость конечного объекта может варьироваться в зависимости от региона строительства, выбора отделочных материалов, усложнения архитектурных решений и требований к инженерным системам. Тем не менее, данная сумма является ориентиром для надежного и комфортного жилья с оптимальным соотношением цена-качество.
Факторы, влияющие на стоимость дома
| Фактор | Описание | Влияние на стоимость |
|---|---|---|
| Материалы | Качество и тип стройматериалов (кирпич, дерево, газобетон) | До 30% стоимости |
| Архитектурные решения | Наличие сложных элементов, выступов, нестандартных форм | До 20% |
| Отделка | Качество финишных материалов, виды отделки стен и пола | 15-25% |
| Инженерия | Типы коммуникаций, отопления, вентиляции | 10-20% |
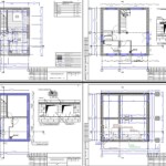
Распределение внутреннего пространства: планировка дома 9x9 на 2 этажа
Оптимальная планировка — залог комфортного проживания и удобного использования каждого квадратного метра. В доме с размерами 9х9 и двумя этажами обычно предусматривается ясное разделение функций первого и второго этажей. Это помогает обеспечить приватность и создает комфортные условия для всех жильцов.
Первый этаж: общественные зоны и гостевая спальня
На первом этаже обычно располагают просторную гостиную, кухню и столовую, обустраивают входную зону и, по возможности, гостевую или кабинеты. Гостевая спальня отлично подойдет для родственников, приезжающих в гости, или для пожилых членов семьи, которым сложнее подниматься по лестнице.
- Гостиная — 25-30 м²
- Кухня-столовая — 15-18 м²
- Гостевая спальня/кабинет — 12-14 м²
- Санузел — 4-6 м²
- Прихожая и технические помещения — 7-10 м²
Второй этаж: приватные комнаты и санузлы
Второй этаж обычно занимает зона отдыха — три спальни и второй санузел. Такое распределение позволяет создать тишину и приватность для ночного отдыха, при этом обеспечивая доступ к комфортной ванной комнате без необходимости спускаться вниз.
- Главная спальня — 16-18 м²
- Детские спальни — по 12-14 м² каждая
- Санузел — 5-6 м²
- Коридор и гардеробные — 8-10 м²
Преимущества строительства двухэтажного дома 9х9 — 120 м²
Строительство дома с описанными параметрами подходит как для городской, так и для загородной жизни. Он сочетает в себе множество преимуществ, делающих его привлекательным выбором для многих семей.
- Оптимальное соотношение площади и стоимости — вы получаете просторное жилье при разумном бюджете.
- Удобное зонирование пространства с разделением общественных и приватных помещений.
- Компактность габаритов дома позволяет максимально эффективно использовать участок земли.
- Проект легко адаптируется к индивидуальным пожеланиям и стилю владельцев.
- Двухэтажное строительство обеспечивает сохранение свободной территории для сада или зоны отдыха.
Какие материалы и технологии подходят для строительства дома 9х9
Выбор строительных материалов напрямую зависит от климата региона, бюджета и пожеланий заказчика. Для дома площадью 120 м² и размером 9 на 9 метров подходят разные технологии строительства, каждая из которых имеет свои преимущества и недостатки.
Кирпич и блоки
Кирпичные дома считаются прочными и долговечными, обеспечивают хорошую теплоизоляцию и звукоизоляцию. Газобетонные или пенобетонные блоки придают конструкции легкость, позволяют ускорить процесс строительства и снижают нагрузку на фундамент.
Дерево
Дома из бруса или бревна популярны за счет своей экологичности, природной красоты и природной теплоизоляции. Однако деревянные дома требуют качественной обработки от влаги и насекомых.
Каркасные технологии
Каркасное строительство позволяет возвести дом за короткие сроки при умеренном бюджете, обеспечивая при этом хорошую теплоизоляцию и гибкость планировок. Однако требует качественного утепления и защиты от влаги.
Советы по выбору проекта и этапы реализации
Перед началом строительства важно внимательно изучить особенности выбранного проекта дома и определить последовательность действий. Правильный подход позволит избежать неожиданных затрат и задержек, а также обеспечит получение дома мечты в срок.
Этапы реализации проекта
- Выбор земельного участка — важно, чтобы размеры участка позволяли разместить дом и необходимые коммуникации.
- Подробное изучение и адаптация проекта под личные потребности и климатические условия.
- Получение разрешительной документации и согласований.
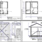
- Подготовка строительной площадки и заливка фундамента.
- Возведение коробки дома — стены, перекрытия, крыша.
- Монтаж инженерных систем — электрика, водоснабжение, отопление.
- Отделочные работы и благоустройство территории.
Рекомендации по выбору проекта
- Обращайте внимание на удобство планировки и возможность будущей перепланировки.
- Учитывайте климатические особенности региона и выбирайте подходящие материалы и системы отопления.
- Планируйте дом с возможностью увеличения или адаптации под изменяющийся состав семьи.
- Обсудите проект с профессионалами, чтобы избежать ошибок и оптимизировать стоимость.
Подводя итоги: дом 9х9 с двумя этажами и 120 м² полезной площади — идеальный выбор
Дом площадью 120 квадратных метров, построенный по проекту с размерами 9 на 9 метров и двумя этажами — это оптимальное решение для семей, ищущих сочетание комфорта, практичности и разумной стоимости. Четыре спальни и два санузла обеспечивают достаточное пространство для всех домочадцев, а рациональная планировка позволяет максимально эффективно использовать каждый квадратный метр.
Строительство такого дома стоимостью около 5 миллионов рублей — это инвестиция в долгосрочное и комфортное проживание, способное удовлетворить потребности семьи на многие годы. Экономия пространства и удобное зонирование делают этот вариант особенно привлекательным для загородных участков малого размера или для тех, кто хочет получить удобное жилье с практичной планировкой и доступной ценой.
















