Введение: Почему одноэтажный дом 16x15 — оптимальный выбор
Выбирая проект частного дома, многие останавливаются на одноэтажных постройках, и этому есть множество причин. Одноэтажный дом площадью 260 м² с размерами 16 на 15 метров — отличный вариант для тех, кто ценит комфорт, функциональность и практичность. Этот формат позволяет создать уютное и просторное жилое пространство, идеально подходящее для семьи из нескольких человек, включая малышей и пожилых членов семьи.
Одноэтажное расположение помещений упрощает планировку и обеспечивает удобство передвижения без лестниц, что особенно важно для семей с детьми и людьми старшего возраста. Кроме того, такой дом легко приспосабливается к индивидуальным пожеланиям владельцев, предоставляя возможность для воплощения разнообразных дизайнерских решений. В этой статье мы подробно рассмотрим все ключевые аспекты одноэтажного дома 16x15 с площадью 260 м² и стоимостью 12 850 186 рублей, чтобы вы могли сделать обоснованный выбор при строительстве своей мечты.
Основные характеристики дома 16x15 м
При выборе проекта дома особое внимание уделяется размерам здания и общей площади, поскольку именно эти параметры определяют комфорт и функциональность жилища. Дом площадью 260 м² площадью 16 на 15 метров представляет собой современную крупную одноэтажную постройку, которая идеально вписывается под любые земельные участки соответствующего размера.
Одним из преимуществ таких габаритов является возможность легко зонировать пространство. При площади 260 м² без труда можно выделить и спальни, и просторную гостиную, и технические помещения, а также места для отдыха и работы. Размещение всех функций на одном этаже минимизирует потери площади на лестницы и коридоры, что делает жилую площадь максимально эффективной.
Таблица: Основные параметры дома
| Параметр | Значение |
|---|---|
| Размеры дома | 16 x 15 м |
| Полезная площадь | 260 м² |
| Количество этажей | 1 этаж |
| Количество спален | 3 |
| Количество санузлов | 2 |
| Стоимость строительства | 12 850 186 руб. |
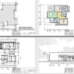
Планировка и функциональность: как всё организовано внутри?
Внутренняя планировка одноэтажного дома 16x15 метров — одна из самых важных характеристик, определяющих удобство и качество проживания. Наличие трех спален и двух санузлов обеспечивает достаточную приватность и комфорт всем членам семьи.
Основная часть пространства отводится жилым зонам, при этом удается выделить отдельную просторную гостиную и кухню, которые традиционно служат центром домашнего общения и отдыха. Благодаря правильной зонировке удается избежать лишних коридоров и холлов, которые обычно "крадут" полезные квадратные метры.
Преимущества планировки одноэтажного дома 16x15
- Оптимальное распределение комнат: три спальни для членов семьи и гостей;
- Два санузла: удобно для утреннего и вечернего времени, а также гости;
- Отсутствие лестниц: удобство для всех поколений, безопасность;
- Возможность создать отдельную зону кабинаета или детской игровой.
Зонирование пространства
При проектировании дома важно учитывать логичное разделение на дневные и ночные зоны. Три спальни обычно располагаются в более тихой части дома, вдали от зоны гостиной и кухни. Это обеспечивает комфортный отдых и максимальную приватность для каждого члена семьи.
Два санузла, одним из которых может быть гостевой, а другим — главным с ванной и душевой, позволяют избежать очередей утром и вечером, что особенно важно в больших семьях. Возможность обустроить отдельные хозяйственные комнаты или кладовые тоже может учитываться в проекте, что позволяет увеличить комфорт и порядок.
Стоимость строительства: оценка и факторы влияния
Стоимость строительства дома площадью 260 м² составляет примерно 12 850 186 рублей. Это позволяет с хорошим качеством материалов и работ возвести просторный, уютный одноэтажный дом с современными инженерными системами и комфортабельной планировкой.
Однако важно понимать, что рубеж стоимости устойчив, но может меняться в зависимости от региона, стоимости материалов, выбранных технологий и дополнительных опций. Данная сумма является ориентировочной средней по рынку на момент подготовки проекта и реализации строительства в обычных условиях.
Факторы, влияющие на цену дома 16x15
- Стоимость строительных материалов: бетон, кирпич, дерево, металл;
- Работы по фундаменту: в зависимости от типа грунта и глубины заложения;
- Инженерные сети и коммуникации: отопление, водоснабжение, канализация, электрика;
- Отделочные работы: внутренних и внешних стен, пола и потолков;
- Дополнительные элементы: системы безопасности, автоматизация, ландшафтный дизайн (если включены в проект).
Таблица: Распределение бюджета строительства
| Этап строительства | Процент от общей стоимости | Примерная сумма (руб.) |
|---|---|---|
| Фундамент | 15% | 1 927 528 |
| Каркас и стены | 30% | 3 855 056 |
| Кровля | 10% | 1 285 019 |
| Инженерные системы | 20% | 2 570 037 |
| Отделка | 20% | 2 570 037 |
| Прочие работы | 5% | 642 509 |
Выбор конструкции и материалов для одноэтажного дома 260 м²
Надежность, энергоэффективность и долговечность дома во многом зависят от выбора конструктивных материалов. Для дома размером 16 на 15 метров с площадью 260 м² предпочтительно использовать проверенные и качественные материалы с хорошими теплоизоляционными характеристиками.
Популярным решением является комбинирование разных материалов: например, монолитный армированный фундамент, стены из газобетонных блоков или кирпича, качественная теплоизоляция и облицовка фасада современными декоративными материалами. Такой подход обеспечивает комфортный микроклимат и долговечность строения даже в сложных климатических условиях.
Основные материалы для строительства
- Фундамент: монолитная плита или ленточный фундамент с армированием;
- Стены: газобетон, кирпич, дерево (брус или каркас);
- Утеплитель: минеральная вата, пенополистирол, PIR-панели;
- Кровля: металлочерепица, композитная черепица или битумная черепица;
- Отделка фасада: декоративная штукатурка, клинкерная плитка или сайдинг.
Преимущества данных материалов
Газобетонные блоки отличаются отличной паропроницаемостью, долговечностью и высокой тепловой инерцией, что снижает расходы на отопление зимой и охлаждение летом. Кирпич же гарантирует прочность и устойчивость здания, а дерево обеспечивает экологичность и естественную атмосферу в доме.
Качественная теплоизоляция и продуманная вентиляция позволяют поддерживать оптимальный уровень влажности и температуры в любых погодных условиях, не забывая при этом о снижении затрат на коммунальные услуги.
Комфорт и удобство проживания: зона спален и санузлов
Три спальни в одноэтажном доме обеспечивают удобные условия для всех членов семьи. Каждая комната может быть оформлена по индивидуальному дизайну с учетом личных предпочтений, размеров и расположения помещений.
Размещение двух санузлов придает дополнительное удобство, что особенно важно в периоды утренней подготовки к работе и школе. Главный санузел может быть оборудован ванной и душевой кабиной, а гостевой — укомплектован необходимым минимумом для удобства посетителей и домашних.
Основные принципы организации спальных зон
- Удаленность от шумных зон: комнаты располагаются вдали от гостиной и кухни;
- Максимальная изоляция: использование шумоизоляционных материалов;
- Вместительные гардеробные зоны в каждой спальне или рядом;
- Удобный доступ к санузлам как для взрослых, так и для детей.
Преимущества двух санузлов в одноэтажном доме
В семейной жизни удобство и функциональность — очень важные условия. Два санузла позволяют избежать временных накладок, связанных с утренними спешками и вечерним отдыхом. Особенно, если один из санузлов располагается вблизи главной спальни, а второй — в доступной зоне для детей и гостей.
Как подобрать участок под дом 16x15
Размеры дома 16 на 15 метров накладывают определенные требования к комфортному земельному участку для строительства. Чтобы дом не чувствовал себя "придавленным" к границам, а вокруг оставалось достаточно места для организации двора, сада или зоны отдыха, минимальные размеры участка должны превышать размеры дома с запасом.
Рекомендуется учитывать при этом также расположение подъездных путей, коммуникаций и ландшафтные особенности территории. Хорошо продуманный участок способствуют максимальному раскрытию потенциала одноэтажного дома.
Рекомендации по минимальным размерам земельного участка
- Минимальная ширина участка: не менее 22-24 метров для свободного размещения дома и отступов;
- Минимальная длина участка: минимум 25-30 метров для зоны отдыха, проходов и дополнительного озеленения;
- Размещение дома в глубине участка: для защиты от шума и создания приватной зоны;
- Учет направлений сторон света: для комфортного освещения и энергосбережения.
Финальная оценка: стоит ли строить одноэтажный дом 16x15 площадью 260 м²?
Дом 16x15 метров с площадью 260 м² и тремя спальнями — это идеальное решение для семей, которые мечтают о просторном и комфортном жилище без лишних уровней, лестниц и неудобств. Это возможность реализовать собственные идеи в оформлении большого одноэтажного пространства и обеспечить высокое качество жизни.
Стоимость строительства в районе 12 850 186 рублей является умеренной и оправданной при условии качественного исполнения проектных и строительных работ. Такой дом позволит обустроить не только удобный жилой интерьер, но и организовать территории вокруг с учетом индивидуальных пожеланий.
В конечном итоге, одноэтажный дом такого формата — это отличный баланс между комфортом, функциональностью и бюджетом, который идеально подходит для тихой семейной жизни, где пространство работает на благо всех обитателей.













