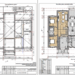
Обзор проекта двухэтажного дома 14x16 метров с площадью 330 м²
Строительство частного дома – всегда волнительное и важное событие для семьи, желающей обрести собственное уютное пространство. Сегодня мы подробно рассмотрим проект двухэтажного дома площадью 330 квадратных метров с размерами 14 на 16 метров, стоимостью около 11 456 876 рублей. Этот проект отлично подойдет тем, кто мечтает о просторном и функциональном доме, способном вместить большую семью и обеспечить комфортное проживание и гостеприимство.
Первое, что привлекает внимание в данной постройке — это сочетаемость крупных габаритов и продуманных планировочных решений. Площадь в 330 м² позволяет не ограничиваться скромными вариантами организации пространства. Здесь можно разместить более пяти спален и пять и более санузлов, что говорит о направлении на максимальное удобство и приватность каждого члена семьи, а также наличие гостевых зон.
Особенности архитектуры и площадь дома
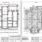
Двухэтажный дом размером 14 на 16 метров обладает ярко выраженной компактностью с учётом своих масштабов. Такое соотношение сторон оптимально для использования участка средней величины, позволяя эффективно задействовать земельную площадь без чрезмерного увеличения габаритов.
Площадь в 330 м² — это один из ключевых параметров данного проекта, который гарантирует достаточно места для комфортной жизни. При этом важно отметить, что такая площадь чаще всего включает как жилые комнаты, так и дополнительные помещения: коридоры, гардеробные, кладовки, технические зоны, что делает пространство действительно удобным и функциональным.
Преимущества двухэтажной конструкции
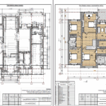
Два этажа – это не просто возможность увеличить площадь жилого пространства. Это также способ сохранить участок с садом, двором или иметь место для отдыха на открытом воздухе. Вертикальное развитие здания позволяет зонировать пространство: нижний этаж чаще всего отводится под общие комнаты, такие как гостиная, кухня и столовая, тогда как верхний этаж отведён для спален и личных кабинетов.
Таким образом, при строительстве дома 14х16 м и общей полезной площади 330 м², вы получаете оптимальное сочетание доступности и комфорта, а также возможность реализовать самые смелые дизайнерские решения.
Планировка: количество комнат и санузлов
Одним из преимуществ этого проекта является большое количество спален и санузлов – 5 и более каждого вида. Такое количество комнат идеально подходит крупным семьям, а также позволяет организовать гостевые или рабочие зоны, которые, в наше время, становятся всё более востребованными из-за распространения удалённой работы и частых визитов родственников.
Наличие более пяти санузлов – это не просто роскошь, а необходимость для комфортного быта. Каждый этаж оснащён санитарными комнатами, что снижает время ожидания и увеличивает удобство использования. Часто на втором этаже располагаются отдельные санузлы в каждой спальне, что значительно повышает уровень приватности.
Распределение спален по этажам
Расположение спален имеет большое значение для семей с детьми, многопоколенных семей или для тех, кто часто принимает гостей. В данном проекте пять и более спален позволяют удобно распределить комнаты по этажам с учетом потребностей жильцов:
- Основная спальня с собственной ванной и гардеробной.
- Детские или гостевые спальни с удобным подходом к санузлам.
- Кабинеты или комнаты для творчества.
Такой подход к планировке повышает уровень комфорта и предоставляет каждому возможность уединения.
Стоимость дома: составные части и соотношение цена/качество
Цена в 11 456 876 рублей для дома с полезной площадью 330 м² и двумя этажами на первый взгляд может показаться значительной, но стоит проанализировать, что входит в эту сумму и какова средняя стоимость квадратного метра на рынке индивидуального жилья.
Основные статьи расходов при строительстве такого дома
| Статья расходов | Содержание | Примерная доля в стоимости |
|---|---|---|
| Фундамент и монтаж | Закладка конструкции фундамента, материалы и работы | 15% |
| Возведение стен и перекрытий | Стены из кирпича, блоков, монолит или каркас | 25% |
| Кровля и утепление | Покрытие крыши, теплоизоляция | 10% |
| Внутренние работы | Отделка, сантехника, электрика, отопление | 30% |
| Инженерное оборудование | Системы водоснабжения, отопления, вентиляции | 15% |
| Прочие расходы | Проектирование, оформление документов | 5% |
В сумме такая структура стоимости полностью отражает усреднённые показатели по рынку и подтверждает, что цена полностью соответствует уровню дома и его характеристикам.
Сравнение цены за квадратный метр
Для более полной оценки, стоит рассчитать стоимость квадратного метра:
| Общая стоимость, руб. | 11 456 876 |
| Общая площадь, м² | 330 |
| Стоимость м², руб. | 34 716 |
Такой уровень стоимости квадратного метра соответствует средним и выше средних показателям по индивидуальному строительству с использованием качественных материалов и технологий. При этом важно понимать, что вложение в дом подобного размера и уровня оправдывает себя в долгосрочной перспективе, обеспечивая комфорт, надёжность и элегантность жилья.
Функциональность и удобство планировки
Наличие более пяти спален и санузлов дает уникальную возможность создать по-настоящему универсальное пространство для проживания. Благодаря большому количеству помещений дом удобно приспосабливается к любым жизненным ситуациям и семейным изменениям.
Например, часть комнат можно использовать под рабочие кабинеты, спортивные залы или мастерские. Санузлы, распределенные по этажам и спальням, обеспечат отсутствие очередей утром и вечером, что особенно актуально в семьях с детьми и пожилыми людьми.
Преимущества для многодетных семей
Для больших семей, где проживает несколько детей разного возраста, важна возможность иметь отдельные комнаты для каждого. Также стоит учитывать и комфорт родителей – наличие собственной спальни с ванной делает дом особенно комфортным.
Гостевые и многофункциональные помещения
Если часто наведываются гости, присутствует необходимость в просторных гостиных и рабочих комнатах. Здесь легко организовать уютную гостиную с местом для отдыха, детский игровой уголок, библиотеку или полноценный кабинет.
Особенности строительства и выбор материалов
При строительстве такого масштабного дома важно обратить внимание на выбор материалов и технологий. Дом площадью 330 м² и размерами 14x16 м требует не только качественного фундамента, но и надежной конструкции, обеспечивающей долгий срок эксплуатации и энергоэффективность.
Материалы для строительства стен
Оптимальные материалы для возведения стен в таком доме — это газоблоки, керамический кирпич или монолитный бетон. Каждый из вариантов обладает своими преимуществами:
- Газоблоки — легкие, обладают хорошей теплоизоляцией и относительно низкой стоимостью.
- Керамический кирпич — крепкий, долговечный, экологичный материал с высокой прочностью.
- Монолитный бетон — обеспечивает максимальную надежность и устойчивость конструкции, подходит для сложных архитектурных форм.
Кровля и утепление
Хотя тип крыши не указан, при двухэтажной конструкции рекомендуется отдавать предпочтение скатным кровлям с средним углом наклона. Утепление конструкции – обязательное условие для дома такой площади, поскольку именно от теплоизоляции зависит комфорт зимой и экономия на отоплении. Рекомендуется использовать многослойные материалы с использованием минеральной ваты или современных пенополистиролов.
Отделка и инженерные коммуникации
Профессиональная отделка внутреннего пространства включает использование современных, экологически чистых материалов, долговечных покрытий и эргономичного оборудования. Особое внимание уделяется качеству сантехники, системам подогрева пола, вентиляции и электроснабжения – все это повышает уровень комфорта и безопасности.
Выбор участка для дома 14х16 м
Проект с размерами дома 14 на 16 метров требует участка соответствующей площади. Для комфортного размещения дома, организации гостевых зон, а также ландшафтного дизайна и организации хозяйственной деятельности обычно рекомендуют выбирать участки с учетом не только габаритов дома, но и свободного пространства вокруг для создания комфортной среды.
Рекомендации по размерам участка
- Минимальная ширина участка должна составлять от 20 метров, чтобы обеспечить свободный доступ и размещение по бокам дома.
- Минимальная длина участка должна быть не менее 25 метров для комфортного обустройства входной зоны, сада и зоны отдыха.
При этом стоит учитывать также требования местных нормативов по отступам от границы участка, пожарным расстояниям и обеспечению подъезда для строительной техники и последующей эксплуатации.
Преимущества проживания в большом двухэтажном доме
Жизнь в просторном доме площадью 330 м² предоставляет массу возможностей и преимуществ. У каждого члена семьи есть собственное пространство, а также общие зоны для совместного отдыха и общения. Большой дом – залог уюта, безопасности и независимости.
К тому же, наличие нескольких санузлов решает важную бытовую задачу – сокращает время утренних сборов и снижает стресс. Пространство позволяет вместить мебель и технику, организовать зоны для хобби, спортзала или кабинета без ущерба жилым комнатам.
Потенциал для реализации дизайнерских идей
Большая площадь и четкие габариты дома 14х16 м позволяют написать сценарии оформления интерьера на любой вкус – от классики до современного минимализма. Можно применять разнообразные методы зонирования пространства – например, объединять кухню с гостиной или создавать отдельные виллы для разных поколений, прописывая максимально удобное расположение комнат.
Экономия на эксплуатации дома
Качественные строительные материалы и современные инженерные сети снижают издержки на отопление, электричество и обслуживание дома. Это особенно важно для домов большой площади, где даже маленькие улучшения в энергоэффективности существенно влияют на конечные расходы.
Заключительные рекомендации для покупателей проекта
Если вы задумались о покупке или строительстве двухэтажного дома 14x16 метров с полезной площадью в 330 м², цена 11 456 876 рублей вполне соответствует рыночным требованиям для домов такого класса. При этом правильно выбранный участок, качественные материалы и грамотное проектирование позволят создать комфортный, надежный дом для всей семьи на долгие годы.
Не забудьте обратить внимание на нюансы планировки, инженерие сети и качество отделки при выборе подрядчиков, поскольку именно эти аспекты определяют практичность и долговечность дома. При планировании бюджета рекомендуется учитывать не только стоимость строительства, но и эксплуатационные расходы, чтобы избежать непредвиденных затрат в будущем.
Большой дом – это не только материальное вложение, но и инвестиция в качество жизни, уют и безопасность. Этот проект предоставляет все условия для комфортного проживания, объединяя простор, функциональность и высокое качество строительства.













