Обзор проекта двухэтажного дома 11х9 м площадью 240 м2
Строительство собственного дома — это значимое событие в жизни каждого, кто мечтает об уюте, комфорте и независимости. Особое внимание при выборе проекта уделяется его площади и планировке, ведь они напрямую влияют на удобство проживания и возможность размещения всей семьи. Проект двухэтажного дома размером 11х9 метров и площадью 240 квадратных метров — удачное решение для тех, кто ищет функциональность и простор.
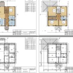
Размеры дома 11 на 9 метров обеспечивают рациональное использование участка и позволяют разместить на двух этажах все необходимые помещения. Две полноценных жилых этажа дают возможность грамотно распределить зоны: на первом этаже обычно располагаются гостиная, кухня, гостевые и рабочие комнаты, а второй этаж посвящается личной жизни — спальням и санузлам.
Цена такого дома — 9 254 144 рубля — отражает высокое качество строительных материалов, современный дизайн и продуманный архитектурный план. Этот бюджет уместен для комфортного частного проживания в доме с пятью и более спальнями и двумя санузлами, что особенно актуально для больших семей или тех, кто часто принимает гостей.
Архитектурные особенности и планировка
Двухэтажный дом 11х9 м с площадью 240 м² предлагает оптимальное сочетание компактных внешних габаритов и значительно просторного внутреннего пространства. Такой дом рассчитан на интенсивное и комфортное проживание в любое время года.
Основным преимуществом двух этажей является разделение приватной и общественной зон. На первом этаже размещаются гостиная, столовая, кухня, а также гостевая спальня или кабинет, что очень удобно для приема гостей и организации работы из дома. Второй этаж отведен полностью под спальни и зоны отдыха, с учетом того, что в доме пять и более спален, каждый член семьи получает личное пространство.
Преимущества продуманной планировки
- Большое количество спален позволяет комфортно разместить даже большую семью.
- Два санузла — один на первом этаже и второй на втором — гарантируют удобство в быту и отсутствие очередей в утренние часы.
- Оптимальное использование площади за счет компактных коммуникаций и функциональных коридоров.
- Высокие потолки и просторные комнаты создают ощущение свободы и легкости.
Рациональное зонирование пространства
При организации внутреннего пространства особое внимание уделяется зонированию по функциям, ведь это напрямую влияет на комфорт обитателей. Общая зона включает в себя гостиную и кухню-столовую, которые могут быть выполнены в открытом стиле, что усиливает ощущение простора и способствует семейному общению. При этом спальни и ванны расположены отдельно, что обеспечивает тишину и спокойствие для отдыха.
Технические характеристики и материалы
При строительстве дома размером 11 на 9 метров площадью 240 м2 используются современные и проверенные строительные материалы, что обеспечивает надежность и долговечность здания. Каркас дома выполнен из качественного бетона и кирпича либо современных газобетонных блоков с дополнительным утеплением. Это позволяет не только сохранять тепло зимой, но и поддерживать комфортную прохладу в летние месяцы.
Также важен аспект энергоэффективности — на этапах проектирования изначально предвидится утепление стен, пола и крыши с применением современных теплоизоляционных материалов. Металлопластиковые окна с двухкамерным стеклопакетом минимизируют теплопотери и оптимизируют освещение в дневное время.
Удобство эксплуатации и обслуживание
Два полноценных санузла в доме площадью 240 м2 позволяют избежать неудобств при большом числе проживающих. Расположение этих зон организовано таким образом, чтобы одна ванная комната была доступна на первом этаже, а вторая — на втором, что упрощает утренние сборы.
В рамках технического оснащения дома предусмотрены коммуникации современного уровня: система отопления, водоснабжение, канализация и вентиляция оснащены автоматическим управлением и адаптированы под российские климатические условия.
Оптимальное использование пространства — пять и более спален
Наличие пяти и более спален в доме площадью 240 м² — явное преимущество для тех, кто ценит личное пространство, но при этом хочет жить с большой семьей под одной крышей или создать гостеприимную атмосферу для гостей.
Распределение комнат позволяет создавать разные сценарии их использования — от классических спален до детских, гостевых комнат или кабинетов. Гибкость планировки позволяет адаптировать дом под меняющиеся потребности семьи с течением времени, например, когда дети вырастают или появляется необходимость организовать рабочее место дома.
Таблица распределения спален и функциональных зон
| Этаж | Помещение | Примерная площадь (м²) | Назначение |
|---|---|---|---|
| 1 этаж | Гостиная | 35 | Общая зона, прием гостей |
| 1 этаж | Кухня-столовая | 25 | Приготовление и прием пищи |
| 1 этаж | Гостевая спальня | 15 | Для гостей и временного проживания |
| 2 этаж | Спальня основная | 20 | Личная комната хозяев дома |
| 2 этаж | Дополнительные спальни (4+) | от 12 до 18 | Детские, кабинеты, гостевые |
| 2 этаж | Санузел | 8 | Для личных нужд жильцов второго этажа |
| 1 этаж | Санузел | 6 | Для жильцов первого этажа и гостей |
Стоимость строительства: что входит в цену 9 254 144 руб.
Цена строительства двухэтажного дома 11х9 м площадью 240 м2 — 9 254 144 рубля — включает в себя комплекс работ и материалов. Прежде всего — возведение фундамента, возведение стен, перекрытий, монтаж кровли, установку оконных и дверных конструкций, выполнение инженерных сетей и отделочные работы различного уровня.
В стоимость входит не только базовое строительство, но и адаптация проекта с учетом индивидуальных требований заказчика по планировке и функциональному наполнению дома. Это позволяет максимально учесть все пожелания по удобству и эстетике дома.
Что влияет на формирование стоимости
- Выбор строительных материалов — от стандартных до премиальных, которые увеличивают износостойкость и внешний вид здания.
- Уровень отделочных работ — от базового оштукатуривания и окраски до декоративной отделки и установки эксклюзивной мебели.
- Техническое оснащение — наличие современных систем отопления, водоснабжения, вентиляции и электричества.
- Особенности местности и необходимость дополнительных работ — подготовка грунта, установка дренажных систем и других инженерных решений.
Преимущества двухэтажных домов с размерами 11 на 9 м
Дома с размерами 11 на 9 метров особенно популярны среди жителей городских окраин и коттеджных поселков. Компактные размеры позволяют экономить площадь земельного участка, что актуально при ограниченных условиях, при этом внутреннее пространство при правильно спланированном двухэтажном доме не уступает по комфорту более крупным одноэтажным вариантам.
Вертикальное размещение комнат позволяет обеспечить отдельные уровни для разных функций, избежать переполненных коридоров и эффективно использовать каждый квадрат метра. Это особенно важно для семей с несколькими поколениями или людьми с разными потребностями.
Основные достоинства такого проекта
- Экономия земельного участка. Компактные габариты позволяют использовать участок менее чем 200 м².
- Удобство размещения коммуникаций. Совмещение инженерных систем помогает снизить затраты на эксплуатацию и обслуживание.
- Возможность расширения. При необходимости можно реализовать надстройку или пристройку за счет увеличения этажности.
- Удобная планировка. Четкое зонирование создаёт комфортные условия для каждого члена семьи.
Выбор участка и минимальные требования к площадке для строительства
При планировании строительства двухэтажного дома с габаритами 11х9 м важно учитывать характеристики земельного участка. Хотя точные параметры минимальной ширины и длины участка в данном проекте не указаны, рекомендуется планировать площадь земли с запасом около 5-6 метров вокруг дома для организации крытого входа, дорожек и места отдыха.
Наличие свободного пространства вокруг дома обеспечивает удобство при проведении инженерных работ, дополнительное озеленение и обустройство ландшафта. Также это важно для пожарной безопасности и санитарных норм.
Особенности эксплуатации дома площадью 240 м²
Дом площадью 240 м² с пятью спальнями и двумя санузлами рассчитан на длительное комфортное проживание большой семьи. Однако такой объем жилого пространства требует тщательного подхода к обеспечению микроклимата и поддержанию чистоты.
Первое, на что стоит обратить внимание — это инженерное обеспечение: качественная система отопления с зональным управлением позволит равномерно распределить тепло и оптимизировать расходы на энергоносители. Важно также продумать автоматизацию освещения и вентиляции.
Второй аспект — регулярное обслуживание, уборка и поддержание порядка. Большое количество комнат и большое жилое пространство требуют больше времени и усилий, что можно компенсировать правильным выбором функциональной мебели и грамотной организацией пространства.
Рекомендации по эксплуатации
- Использовать энергосберегающие системы отопления и вентиляции.
- Регулярно выполнять профилактические работы на инженерных системах.
- Организовать удобные зоны хранения для минимизации пространства, занятого бытовыми вещами.
- Планировать квартиры в зависимости от образа жизни семьи.
Заключение
Проект двухэтажного дома 11х9 метров с площадью 240 м2 и пятью спальнями за 9 254 144 рубля представляет собой современное и функциональное решение для комфортного проживания большой семьи. Продуманная планировка, качество материалов и инженерных систем, а также разумное ценообразование делают данный вариант привлекательным для тех, кто хочет построить надежный и удобный дом.
При выборе такого дома стоит обращать внимание как на технические параметры, так и на размер и характеристики земельного участка, чтобы конечный результат отвечал ожиданиям и служил уютным гнездом для всех членов семьи.










