Двухэтажный дом 14х13 — разумный выбор для комфортной жизни
Выбор идеального проекта частного дома — задача непростая и многогранная. Особое внимание уделяется его размерам, планировке, функциональности и, конечно, стоимости. Двухэтажный дом размером 14 на 13 метров с общей полезной площадью 160 м² становится оптимальным решением для большой семьи, желающей совместить комфорт и рациональность. В этой статье рассмотрим особенности такого дома, его конструкции, внутреннюю планировку, а также финансовые аспекты строительства.
Дом 14х13 м сочетает в себе достаточно большую площадь для комфортного проживания, при этом не занимая чрезмерно много места на участке. Два этажа позволяют рационально разделить зону отдыха и дневного пребывания, что важно для семей с детьми и взрослыми. При размере в 160 м² этот дом обладает всеми необходимыми помещениями для полноценной жизни, включая четыре спальни и два санузла.
Планировка и архитектурные решения
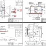
Одним из ключевых факторов при выборе проекта дома является планировка. Для дома 14х13 м, общей площадью 160 м², мы имеем возможность расположить все помещения так, чтобы обеспечить максимальный комфорт и удобство для всех членов семьи.
Первый этаж: зона общественного пользования
Первый этаж обычно предназначен для гостиной, кухни и обеденной зоны. Свободная планировка открытого типа способна создать ощущение простора и света. Кроме того, такой формат времяпровождения улучшает коммуникации в семье и предоставляет возможность комфортно принимать гостей.
На первом этаже также располагается один из двух санузлов — удобно как для хозяев, так и для посетителей. Ведь два санузла в доме площадью 160 м² — это не роскошь, а необходимость, которая избавляет от лишних неудобств в утренние часы.
Второй этаж: приватная зона для отдыха
Второй этаж включает в себя четыре спальни, что идеально подходит для семьи с детьми, а также тех, кто предпочитает иметь кабинет или гостевую комнату. Четыре спальни обеспечивают каждому члену семьи личное пространство, а панорамные окна придают комнатам дополнительный уют и наполняют их естественным светом.
Второй санузел, расположенный на верхнем этаже, гарантирует дополнительный комфорт без необходимости спускаться вниз. Это особенно удобно для семей с детьми и пожилыми родственниками.
Размеры и технические характеристики дома
Дом размером 14х13 м занимает достаточно пространства на участке, но при этом остается компактным и функциональным. Два этажа позволяют максимально эффективно использовать площадь земли.
| Параметр | Значение |
|---|---|
| Размеры дома | 14 x 13 м |
| Количество этажей | 2 этажа |
| Полезная площадь | 160 м² |
| Количество спален | 4 |
| Количество санузлов | 2 |
Большинство строителей и владельцев частных домов сталкиваются с проблемой оптимального соотношения площади дома и размеров участка. Здесь дом 14х13 м предстает как решение, позволяющее разместить дом на большинстве среднестатистических участков без необходимости занять слишком много полезной земли под застройку.
Экономический аспект строительства
Стоимость строительства — один из решающих факторов при выборе проекта дома. Двухэтажный дом площадью 160 м² обойдется примерно в 7 003 546 рублей. Эта сумма сформирована исходя из средней стоимости строительных материалов, работ и проектной документации.
Стоимость строительства зависит от множества факторов: использованных материалов, сложности конструкции, наличие инженерных систем, отделки и даже региона. Дом такого размера и планировки представляет собой отличный баланс между комфортом и разумными финансовыми вложениями.
Разбивка стоимости строительства
Для того чтобы лучше понимать, куда уходят деньги, рассмотрим приблизительную разбивку затрат при строительстве на примере дома 160 м²:
- Фундамент и земляные работы — 15% от стоимости;
- Основные строительные материалы (блоки, кирпич, бетон) — 35%;
- Кровельные работы — 10%;
- Отделочные и ремонтные работы — 25%;
- Инженерные системы (водоснабжение, электричество, отопление) — 10%;
- Проектирование и прочие затраты — 5%.
Эта разбивка позволяет оценить бюджетные возможности и принять взвешенное решение о степени отделки, выборе материалов и других нюансах строительства.
Преимущества двухэтажного дома 14х13
Двухэтажный дом 14 на 13 метров с полезной площадью 160 м² предлагает ряд значимых преимуществ, которые важно учитывать при выборе проекта вашего будущего жилья.
Рациональное использование территории
Построив дом в два этажа, вы экономите значительную площадь участка. Это позволяет сохранить свободное пространство для сада, детской площадки, зоны барбекю или гаража, которые могут быть расположены отдельно.
Комфорт и функциональность
Две жилые зоны — дневная и спальни — четко сегментированы. Это значительно улучшает качество жизни, позволяя лучше контролировать шумовые нагрузки и добиться приватности для всех домочадцев. Четыре спальни подходят для большой семьи или тех, кто хочет иметь отдельные кабинеты и гостевые комнаты.
Возможности модернизации и расширения
Двухэтажная конструкция дает простор для модернизации — например, обустройства мансарды или добавления террасы на втором этаже. Хотя в текущем проекте террас и балконов нет, планировка позволяет в дальнейшем добавить подобные элементы без серьезных изменений несущих конструкций.
Важные аспекты инженерных систем и коммуникаций
Для дома площадью 160 м² важно спроектировать систему отопления, водоснабжения и электрификации так, чтобы обеспечить комфорт и экономию ресурсов. В современных двухэтажных домах применяются энергоэффективные решения, которые позволяют снизить расходы на коммунальные платежи.
Отопление и вентиляция
Рассматриваемый дом потребует обустройства двухконтурного отопления, которое обеспечит равномерный комфортный микроклимат на обоих этажах. Также важна система вентиляции, которая будет гарантировать свежий воздух без излишних теплопотерь.
Водоснабжение и канализация
Наличие двух санузлов предполагает продуманную разводку водопровода и канализации. Особое внимание уделяется качественным трубам, которые обеспечивают долгий срок службы и отсутствие протечек.
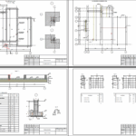
Материалы и технологии строительства
Выбор материалов для постройки дома напрямую влияет на его долговечность, экономичность и комфортность проживания. Для двухэтажного дома такими критериями являются прочность конструкции, теплоизоляция и звукоизоляция между этажами.
Стены и фундамент
Практичным и популярным вариантом является использование газобетонных блоков в сочетании с монолитным фундаментом. Газобетон обладает хорошими тепло- и звукоизоляционными характеристиками, способен «дышать» и не требует дополнительных утеплителей при грамотной отделке.
Кровля и перекрытия
Для крыши применяется металлочерепица или битумная черепица, которые обеспечивают надежную защиту от осадков и ветра. Перекрытия между этажами выполняются из железобетонных плит или деревянных балок с необходимой звукоизоляцией и гидроизоляцией.
Возможности оформления и отделки
Выбор фасадных материалов и внутренней отделки — это не только способ подчеркнуть индивидуальность дома, но и вклад в его долговечность. Для дома 14х13 м с полезной площадью 160 м² популярны следующие решения:
- Внешняя отделка — штукатурка с покраской, декоративный кирпич, сайдинг;
- Внутренняя отделка — гипсокартонные конструкции, современные отделочные смеси, натуральное дерево;
- Покрытие пола — ламинат, плитка, паркет;
- Устройства освещения — встроенные светильники, декоративное освещение в зонах отдыха.
Итоговое сравнение: почему стоит выбрать проект 14х13 м
| Критерий | Преимущества |
|---|---|
| Площадь | 160 м² — достаточно для большой семьи |
| Количество спален | 4 — каждому члену семьи личное пространство |
| Количество санузлов | 2 — удобство и отсутствие очередей |
| Стоимость | 7 003 546 руб. — экономия при оптимальной площади |
| Два этажа | Рациональное использование участка, наличие приватных зон |
Дом размером 14 на 13 метров с двумя этажами и четырьмя спальнями — это проверенное временем и опытом решение, гармонично сочетающее функциональность и комфорт. Если вы ищете строение, которое подойдет для семьи средней размерности, обеспечит личное пространство и удобства каждому, этот проект является весьма привлекательным выбором.


















