Одноэтажный дом 16x10 метров: оптимальный выбор для семейной жизни
Современное частное домовладение – это не только комфорт и уют, но и продуманное использование пространства, отвечающее потребностям всей семьи. Одноэтажный дом размером 16 на 10 метров с общей полезной площадью 150 м² становится превосходным решением для тех, кто ценит простор, удобство и функциональность в едином формате.
Такой дом часто выбирают семьи с детьми, пожилые люди или те, кто предпочитает минимальное количество ступенек и барьеров, облегчающих перемещение по дому. Один этаж упрощает обслуживание, снижает расходы на строительство и эксплуатацию, при этом позволяет рационально расположить все необходимые комнаты для комфортной жизни.
В данной статье на примере конкретного проекта дома площадью 150 м², расположенного на участке с размерами, позволяющими построить дом 16х10 метров, обсудим конструкционные особенности, планировку, стоимость, а также преимущества такого типа жилья.
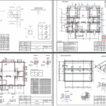
Характеристики проекта и планировка дома
Дом имеет габариты 16 на 10 метров, что дает достаточное пространство для комфортного размещения всех необходимых помещений. Размеры позволяют реализовать удобное зонирование жилой площади, при котором можно выделить отдельные зоны для отдыха, работы, приготовления пищи и сна.
Проект одноэтажного дома включает три спальни и два санузла, что идеально подходит для семейного проживания. Такая конфигурация максимально отвечает требованиям среднего по размеру семейного дома, обеспечивая личное пространство каждому члену семьи и одновременно поддерживая концепцию общего пространства для общения.
Преимущества трех спален и двух санузлов в одноэтажном доме
Три спальни – это универсальное решение для семьи из 3-5 человек. Родительская спальня, детские комнаты или гостиная спальня могут быть удобно разнесены по дому, чтобы обеспечить приватность и комфорт. Наличие двух санузлов значительно повышает удобство, особенно в утренние часы или при приеме гостей.
- Оптимизация личного пространства для каждого члена семьи.
- Возможность использовать одну спальню как кабинет или гостевую.
- Удобство и экономия времени за счет разделения санузлов.
Зонирование дома: как распределить пространство
Для большого дома площадью 150 м² важно грамотно распределить зоны. Обычно планировка включает следующие функциональные участки:
- Общая зона: гостиная, кухня и столовая, объединенные в едином пространстве или разграниченные перегородками.
- Спальная зона: три спальни, расположенные вдали от шума и кухонных приборов.
- Санитарно-гигиеническая зона: два санузла, один из которых может быть совмещенным с ванной, второй – гостевым.
Такое разделение позволяет обеспечить комфорт и приватность, при этом сохраняется ощущение простора и открытости в общественных зонах.
Строительные материалы и конструктивные особенности дома 16x10
Выбор строительных материалов играет ключевую роль в долговечности и энергоэффективности дома. Для одноэтажного дома размером 16х10 метров лучше всего подходят технологии с хорошей термоизоляцией, которые обеспечивают комфортные условия проживания в любое время года.
Среди наиболее популярных материалов выделяют:
| Материал | Преимущества | Особенности использования |
|---|---|---|
| Газоблоки | Высокая теплоизоляция, легкий вес, простота кладки | Подходят для стен с дополнительной отделкой, экономят время и бюджет |
| Кирпич | Прочность, долговечность, эстетичный внешний вид | Требует более тщательного утепления, повышает стоимость строительства |
| Дерево (брус, каркас) | Экологичность, натуралистичный вид, быстрый монтаж | Потребует защитных пропиток и регулярного ухода, возможна усадка |
В зависимости от региональных климатических условий и финансовых возможностей выбираются оптимальные материалы, способствующие максимальному комфорту и энергоэффективности дома.
Стоимость постройки: 8 067 850 рублей за 150 м²
Цена строительства — один из ключевых факторов при выборе проекта частного дома. Рассматриваемый проект одноэтажного дома площадью 150 квадратных метров стоит 8 067 850 рублей. В эту сумму включены все основные работы, вплоть до окончательной отделки под ключ.
Чтобы подробнее понять, за что именно идет оплата, целесообразно разделить стоимость на несколько крупных блоков:
| Этап строительства | Процент от общей стоимости | Примерная сумма (руб.) |
|---|---|---|
| Фундамент и благоустройство участка | 20% | 1 613 570 |
| Стены и перекрытия | 30% | 2 420 355 |
| Кровля и утепление | 15% | 1 210 177 |
| Инженерные сети и коммуникации | 15% | 1 210 177 |
| Отделочные работы | 20% | 1 613 570 |
Эта разбивка демонстрирует, как сбалансирована цена с техническими и эстетическими параметрами дома, что позволяет получить готовое жилье с высокими стандартами качества.
Что входит в стоимость строительства?
По договору строительства под ключ покупатель получает не просто коробку дома, а полностью готовое к проживанию помещение с:
- Подводом и разводкой электросети, водоснабжения и канализации.
- Утеплением стен и крыши, способствующим экономии на отоплении.
- Отделкой внутренних помещений – стен, потолков, пола.
- Установкой окон и дверей, включая внешние двери, обеспечивающие безопасность.
Это избавляет от необходимости дополнительных вложений и переживаний о комплектующих и работах на последующих этапах.
Преимущества одноэтажного дома 16x10 м для жизни и эксплуатации
Одноэтажные дома имеют несколько неоспоримых преимуществ, которые делают их предпочтительными для широкого круга владельцев. Особенно на примере дома размером 16х10 метров и площадью 150 м² выделяются следующие факторы:
Простота конструкции и скорость строительства
Несмотря на достаточно внушительную площадь, одноэтажный дом строится быстрее чем двух- или трехэтажный аналог. Отсутствие дополнительных этажей делает конструкцию легче, и уменьшает временные и финансовые затраты на укрепление фундамента и монтаж лестниц.
Удобство и безопасность
Все комнаты находятся на одном уровне, что облегчает перемещение по дому и снижает риски падений, особенно для пожилых людей и маленьких детей. Это делает жилье максимально комфортным для семей с разным составом.
Гибкая планировка и возможность расширения
Площадь в 150 м² позволяет создать просторные жилые зоны и при этом оставляет шанс для расширения или добавления различных функциональных помещений в будущем. Можно реализовать раздельные комнаты для детей, гостиную совмещенную с кухней, отдельное рабочее пространство и даже предусмотреть место под мансарду или техническое помещение.
Экономия на обслуживании
Одноэтажные дома обходятся дешевле в эксплуатации за счет равномерного отопления, простоты обслуживания крыши и коммуникаций. Уход и косметический ремонт занимает меньше времени и усилий по сравнению со сложной многоэтажной конструкцией.
Как выбрать участок под дом 16x10
Планируя строительство дома размером 16 на 10 метров, важно правильно подобрать участок для строительства, который позволит грамотно разместить здание и выполнить все технические требования.
Минимальные размеры земельного участка зависят от возможностей корректного размещения дома и нормы отступов согласно нормативам. Для данного проекта рекомендуется учитывать не только площадь застройки, но и пространство для газонов, подъездных путей, зон отдыха и хозяйственных построек.
При выборе участка важно обращать внимание на следующие параметры:
- Рельеф и грунты: ровный участок упрощает строительство фундамента и снижает расходы.
- Доступность коммуникаций: наличие водоснабжения, электричества и канализации.
- Ориентация по сторонам света: для оптимального освещения жилых помещений.
- Правила землепользования и местная застройка: чтобы избежать конфликтов с соседями и проблем с разрешительной документацией.
Особенности эксплуатации одноэтажного дома площадью 150 м²
Одним из ключевых достоинств таких домов является удобство в эксплуатации. Расположение всей жилой площади на одном уровне существенно снижает сложности технического обслуживания, ремонта и уборки.
При подборе мебели и выборе интерьера можно свободно экспериментировать с расстановкой, поскольку нет ограничений, связанных со ступенями и сложными переходами между этажами. Это позволяет сделать дом максимально функциональным и уютным, подстраиваясь под индивидуальные потребности семьи.
Более того, дом 150 м² обеспечивает достаточный запас для создания мастер-спальни с отдельной гардеробной и просторной ванной комнатой, а также гостевой зоны, что особенно актуально при приеме родственников и друзей.
Особенности инженерных систем
Проект предусматривает рациональное размещение сантехнических и электротехнических коммуникаций, что снижает стоимость их монтажа и облегчает последующую эксплуатацию. Наличие двух санузлов позволяет организовать автономное использование в разные часы, уменьшая время ожидания и повышая комфорт.
Итог: оптимальное решение для семьи и инвестиций
Одноэтажный дом размером 16 на 10 метров с полезной площадью 150 м² и стоимостью 8 067 850 рублей – это сбалансированный продукт на рынке жилья, соответствующий современным стандартам качества и комфорта.
Он сочетает в себе удобство, функциональность и экономическую целесообразность, предлагая решения, подходящие для различных жизненных ситуаций и предпочтений. Такой дом служит прекрасной альтернативой многоквартирному жилью, даря простор и свободу в пределах собственного пространства.
Выбирая данный проект, вы инвестируете в надежное, комфортное и эстетически привлекательное пространство, готовое стать настоящим семейным очагом на долгие годы.













