Одноэтажный дом 25х11 м – простор и функциональность на 210 м²
Выбор дома – ответственное и важное решение для каждой семьи. Современные тенденции в строительстве частных домов стремятся объединить красоту, удобство и функциональность в одном проекте. Одноэтажный дом размером 25 на 11 метров с общей площадью 210 м² – это оптимальное решение для тех, кто ценит комфорт, простоту и практичность. Такой дом позволяет грамотно организовать жилое пространство, создавать уют и при этом экономить время и средства, необходимые для строительства и эксплуатации.
В современных экономических условиях ключевой вопрос – не только площадь и дизайн, но и стоимость строительства. Цена в 10 773 376 рублей за дом с такой площадью и параметрами – вполне реалистична и при этом предоставляет возможность получить качественное жилье с проработанными инженерными решениями и комфортом. В этой статье мы подробно рассмотрим особенности такого дома, преимущества одноэтажной планировки, пространство и стоимость, а также основные нюансы, которые помогут вам принять правильное решение при выборе загородного жилья.
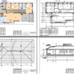
Размеры и планировка: как 25x11 м трансформируются в 210 м² полезной площади
Габариты дома 25 метров в длину и 11 метров в ширину – идеальны для обеспечения просторного и светлого интерьера. Площадь в 210 м² позволяет размещать достаточное количество помещений, сохраняя комфорт и создавая уютную атмосферу. Одноэтажная планировка позволяет избежать потерь пространства на лестничные клетки, а значит каждый квадратный метр используется с максимальной эффективностью.
В доме присутствуют две спальни и три санузла. Это важный аспект, особенно для семей с детьми или для тех, кто часто принимает гостей. Наличие трех ванных комнат избавляет жильцов от долгих очередей по утрам и вечерам, а благодаря продуманному расположению каждый санузел доступен из разных частей дома, что увеличивает комфорт проживания.
Планировочные решения
При проектировании дома размером 25x11 метров можно использовать разные варианты зонирования пространства. Обычно площадь делится на несколько основных функциональных зон: жилую, хозяйственную и гостевую. Такой баланс обеспечивает удобство в использовании и позволяет при этом сохранить достаточное пространство для отдыха и приватности.
Две спальни могут быть размещены с отдельным выходом в санузлы, а гостиная зона может совмещаться с кухней и столовой, создавая единое светлое пространство. Благодаря наличию трех санузлов гостям и членам семьи не придется испытывать дискомфорт при одновременном пользовании этими помещениями. Данный подход особенно актуален для больших семей и тех, кто часто принимает гостей.
Типичные размеры помещений
| Комната | Примерная площадь, м² |
|---|---|
| Спальня 1 | 22-25 |
| Спальня 2 | 18-20 |
| Гостиная с кухней | 50-60 |
| Ванные комнаты (по 3 шт.) | 5-7 каждая |
| Хозяйственные помещения | 10-15 |
Общий дизайн может быть адаптирован под личные предпочтения заказчика, причем важно учитывать удобство коммуникаций и максимально рациональное использование каждого участка внутри дома.
Преимущества одноэтажного дома площадью 210 м²
Одноэтажные дома стремительно набирают популярность в средней и более старшей возрастной категориях, а также среди семей с маленькими детьми. Комфорт передвижения и отсутствие лестниц – основное преимущество таких зданий. Это особенно важно для семей, заботящихся о безопасности малышей или пожилых родственников.
Помимо удобства, одноэтажные дома обладают еще рядом значимых достоинств. Во-первых, проще проводить инженерные коммуникации, что отражается на снижении стоимости строительства и обслуживания. Во-вторых, уход за территории и окрестностями дома становится менее трудоемким, а сам дом легче эксплуатировать.
Экономия времени и средств
Одноэтажный дом с размерами 25х11 м и площадью 210 м² отличается более простой конструкцией. Это сокращает сроки строительства и снижает затраты на материалы, поскольку отсутствуют дополнительные железобетонные и армирующие работы для устройства перекрытий между этажами. Кроме того, эксплуатационные расходы на отопление и вентиляцию существенно снижаются за счет более равномерного температурного распределения по всем помещениям.
Безбарьерное пространство и безопасность
Отсутствие лестниц значительно уменьшает риск травм, особенно для детей и пожилых людей. Все помещения находятся на одном уровне, что обеспечивает удобство и безопасность перемещения. Такой формат подходит для людей с ограниченной подвижностью и создаёт домашний уют для всех членов семьи.
Стоимость строительства и бюджет: 10 773 376 рублей за дом мечты
Цена является одним из ключевых факторов при выборе проекта дома. Ориентировочная стоимость строительства одноэтажного дома 25 на 11 метров с площадью 210 м² составляет 10 773 376 рублей. Это разумная сумма, учитывая высокую площадь, современные материалы и инженерные решения, заложенные в проект.
Цены могут варьироваться в зависимости от региона, выбранных материалов и уровня отделки, однако в данном случае данная цифра отражает средний бюджет для качественного загородного строительства с продуманной планировкой, теплоизоляцией и современными коммуникациями.
Структура расходов на строительство
Чтобы лучше понимать, как формируется итоговая цена, рассмотрим основные статьи расходов при строительстве такого дома:
- Фундамент и несущие конструкции: составляют около 25-30% бюджета, так как именно от них зависит долговечность и прочность дома.
- Стены и кровля: занимают примерно 30-35%. Используются современные материалы с хорошими теплоизоляционными свойствами и эстетичным внешним видом.
- Инженерные системы (отопление, водоснабжение, электрика): около 15-20% бюджета. Выполняются по современным стандартам энергоэффективности и безопасности.
- Отделочные работы и внутреннее обустройство: на отделку и обустройство интерьера уходит примерно 15-20%, включая материалы, сантехнику, напольные покрытия и так далее.
Таблица расчетных затрат
| Статья расходов | Процент бюджета | Примерная сумма, руб. |
|---|---|---|
| Фундамент и несущие конструкции | 30% | 3 232 013 |
| Стены и кровля | 33% | 3 555 513 |
| Инженерные системы | 18% | 1 939 208 |
| Отделочные работы и обустройство | 19% | 2 046 642 |
Это усредненный расчет, который помогает ориентироваться в общих затратах и планировать бюджет без сюрпризов.
Особенности проектирования жилого пространства с двумя спальнями и тремя санузлами
Для многих семей важно наличие больших жилых комнат, но при этом удобство использования санитарно-технических помещений не менее значимо. Два отдельных спальника идеально подходят для комфортного размещения семьи из 3-4 человек, а три санузла обеспечивают возможность личного пространства даже в часы пик.
При проектировании таких домов учитывается возможность выполнения мастер-спальни с индивидуальным с/у, гостевой ванной комнаты и дополнительного санузла для детей или обслуживающего персонала. Это позволяет значительно повысить уровень комфорта и избежать типичных бытовых неудобств.
Преимущества наличия трех санузлов
- Сокращение времени ожидания и конфликтов в утренние и вечерние часы.
- Возможность выделения отдельного туалетного и санитарного пространства для гостей.
- Удобство при большом количестве проживающих без ущерба личному пространству.
Рекомендации по расположению комнат
Для повышения функциональности дома рекомендуется разместить спальни в более тихой стороне участка, а гостиную – ближе к входу и кухне. Санузлы рационально располагать так, чтобы один из них был смежным с гостиной, второй – в непосредственной близости от спальни хозяев, а третий – около детской или другой спальни. Это обеспечит максимальный комфорт и удобство.
Как выбрать участок и подготовить пространство для дома 25x11 м
Для постройки дома с размерами 25 на 11 метров важно правильно подобрать земельный участок. Участок должен иметь минимальные размеры, которые позволяют комфортно разместить не только сам дом, но и дополнительные зоны – например, место для отдыха, небольшого сада или хозяйственных построек.
Хотя точные минимальные размеры участка могут варьироваться, оптимальным будет пространство, превышающее габариты дома минимум на 4-5 метров с каждой стороны. Это обеспечит достаточную удаленность от границ соседних участков и позволит организовать комфортную зону отдыха или хозяйственную территорию.
Рекомендации по планировке участка
- Расстояние от дома до границ участка — не менее 4 метров для обеспечения пожарной безопасности и удобства эксплуатации.
- Выделение зоны для входа и подъезда транспорта (например, до гаража или парковочного места, если оно предусмотрено отдельно от дома).
- Обустройство зоны отдыха и сада с учетом солнцезащиты и естественной вентиляции дома.
Использование современных технологий и материалов в строительстве одноэтажного дома
Современное строительство частных домов не мыслится без применения передовых материалов и инновационных технологий. Они позволяют повысить энергоэффективность здания, долговечность и безопасность, сохраняя при этом комфорт и эстетику.
В доме размером 25х11 м и площадью 210 м² используются высококачественные материалы, которые обеспечивают отличную теплоизоляцию. Это дает возможность значительно снизить расходы на отопление зимой и кондиционирование летом, тем самым улучшая энергоэффективность.
Современные материалы в строительстве
- Керамические блоки или газобетон: легкие, теплые и прочные материалы для стен, обеспечивающие хорошую шумоизоляцию.
- Металлический каркас: используется в качестве основы кровли и для укрепления каркасных элементов.
- Многоуровневая теплоизоляция: современные теплоизолирующие материалы типа минеральной ваты, экструзионного пенополистирола (XPS) и других, улучшающих микроклимат в доме.
- Энергоэффективные окна: стеклопакеты с несколькими камерами и теплосберегающими покрытиями.
Инженерные решения для комфорта
Интеграция современных систем отопления, вентиляции с рекуперацией тепла, а также автономных систем водоснабжения обеспечивает стабильный и комфортный микроклимат. В доме предусмотрены три полноценных санузла, что требует продуманных систем водообеспечения и канализации.
Цель грамотного инженерного проектирования – создание удобного и энергоэффективного дома, в котором не придется жертвовать комфортом ради экономии.
Почему стоит выбрать именно одноэтажный дом площадью 210 м²?
Одноэтажные дома все чаще становятся выбором современных домовладельцев за счет своих преимуществ. Они позволяют максимально использовать каждый квадратный метр жилой площади, создавая комфортные условия для проживания без лишних перегородок и ограничений. При площади 210 м² и размерах 25 на 11 метров хозяева получают достаточно пространства для реализации множества идей и любых дизайнерских решений.
Кроме того, без необходимости строительства второго этажа экономятся средства, которые можно направить на качественные материалы, отделку и инженерное оборудование. Это особенно важно в условиях ограниченного бюджета, ведь дом становится одновременно и функциональным, и красивым, и уютным.
Таким образом, проект одноэтажного дома 25x11 м является отличной инвестицией в комфортное и практичное жилье на долгие годы.









