Введение в проект двухэтажного дома 10x8 м с площадью 122 м²
Строительство собственного дома — это важный этап в жизни каждого, кто стремится создать комфортное и уютное пространство для своей семьи. Одним из наиболее популярных решений для загородного или приусадебного строительства является двухэтажный дом размером 10 на 8 метров с полезной площадью 122 м². Такой проект сочетает в себе оптимальное соотношение площади, функциональности и стоимости, что делает его привлекательным для многих владельцев земельных участков.
Говоря о стоимости, заметно, что двухэтажный дом площадью 122 м² можно построить за сумму порядка 4 612 844 рублей — весьма разумная инвестиция, учитывая все преимущества двух этажей, обеспечивающих удобное разделение жилых и технических зон. В данной статье мы детально рассмотрим ключевые параметры этого дома, особенности проектирования и архитектурные решения, а также сделаем обзор преимуществ, которые подарит этот дом своим жильцам.
Основные параметры дома: габариты и площадь
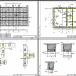
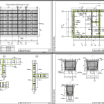
Габариты здания — ключевой аспект для правильного планирования участка и оптимального использования площади. Дом размером 10x8 метров занимает площадь в основании, которая отлично вписывается в большинство стандартных участков, сохраняя при этом достаточный простор внутри. Полезная площадь в 122 м² – это тот объем, который можно эффективно распределить между всеми нужными зонами для комфортного проживания.
Выбирая данный проект, будущий владелец получает дом, который не выглядит громоздким, но при этом достаточно просторен для проживания семьи из 3-5 человек. Это обстоятельство выгодно отличает такой дом от более компактных вариантов с меньшей площадью, ограничивающих возможности комфортной жизни.
| Параметр | Значение |
|---|---|
| Размеры здания | 10 x 8 м |
| Полезная площадь | 122 м² |
| Количество этажей | 2 |
| Количество спален | 3 |
| Количество санузлов | 2 |
| Стоимость строительства | 4 612 844 руб. |
Архитектурные особенности двухэтажного дома 10x8
Двухэтажные дома обладают важным преимуществом — просторностью при небольшой площади застройки. Дом размером 10 на 8 метров позволяет разместить достаточное количество жилых комнат, санузлов и служебных помещений без ущерба для комфорта. Наличие двух этажей также дает больше возможностей в организации пространства, отделяя зоны отдыха и работы, занимаясь оптимизацией внутреннего микроклимата и эргономики.
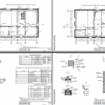
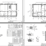
Важной архитектурной задачей является грамотное разделение комнат: на первом этаже обычно располагают гостиную, кухню-столовую, санузел и, при необходимости, кабинет или гостевую спальню. Второй этаж в проекте такого дома отведён под приватные зоны — спальни и основной семейный санузел. Такой подход обеспечивает уединение и создает комфортный ритм жизни обитателей дома.
Распределение помещений внутри дома
Правильное распределение жилых и технических помещений позволяет максимально эффективно использовать каждый квадратный метр. В доме с площадью 122 м² размещены три спальни — оптимальный вариант для семей с детьми или тех, кто ценит возможность иметь отдельные комнаты для гостей или рабочих кабинетов.
Наличие двух санузлов существенно увеличивает удобство и сокращает время ожидания утром или вечером, особенно в семьях с несколькими членами. Один санузел, обычно расположенный на первом этаже, удобен для гостей и общих нужд, а второй на втором этаже служит для жильцов спальных комнат.
- Три спальни, обеспечивающие комфорт для семьи из 3-5 человек
- Два санузла для удобства и повышения функциональности
- Раздельное использование пространства жилыми и хозяйственными зонами
- Возможность организации дополнительной комнаты для работы или отдыха
Стоимость строительства и экономическая целесообразность
Стоимость строительства дома — один из основных критериев выбора проекта. Построить двухэтажный дом площадью 122 м² можно за сумму порядка 4 612 844 рублей. Указанная цена отражает комплексные затраты на строительство, включая материалы и работу, что делает проект привлекательным вариантом по соотношению цены и качества.
Инвестирование в двухэтажный дом экономически оправдано, особенно если учесть, что площадь 122 м² предоставляет большой комфорт без существенного увеличения затрат на земельный участок или эксплуатационные расходы. Кроме того, маленький отпечаток на почве в сочетании с увеличенной жилой площадью делает такой проект рациональным выбором для участков ограниченной площади.
| Показатель | Значение |
|---|---|
| Площадь дома | 122 м² |
| Стоимость строительства | 4 612 844 руб. |
| Средняя стоимость за 1 м² | около 37 800 руб./м² |
Преимущества двухэтажных домов на участке 10x8 м
Одно из главных достоинств двухэтажных домов — возможность получить значительную площадь без необходимости увеличивать размеры земельного участка. Для участков с ограниченной площадью это особенно актуально. Дом 10x8 м прекрасно впишется в множество типовых участков, оставляя пространство для сада, зоны отдыха и парковки.
Также двухэтажная планировка позволяет зонировать пространство. Жилые комнаты расположены на втором этаже, что обеспечивает больше уединения и тишины, а бытовые помещения — на первом, где проще организовать доступ к инженерным коммуникациям и зонам общего пользования. Такое решение помогает существенно повысить качество жизни и удобство проживания.
Комфорт и функциональность
- Оптимальное использование полезной площади без увеличения застройки земельного участка
- Отделение общественной и приватной зон в доме
- Возможность размещения нескольких спален для семьи или гостей
- Два санузла, избавляющие от утренних очередей
- Экономия на отоплении и освещении за счет компактного размера и концентрации пространства
Особенности проектирования и планировки
Проект двухэтажного дома 10x8 с площадью 122 м² предполагает рациональный подход к планировке помещений. При проектировании учитывается все: от расположения комнат и мест для хранения до удобства передвижения по дому. В такой планировке во внимание принимается и ориентация окон относительно сторон света, что позволяет обеспечить максимальное естественное освещение и тепло в зимний период.
Обычно первый этаж отводится под гостиную комнату, совмещенную с кухней и столовой — это создает максимально просторную и светлую зону для семейных и гостевых мероприятий. Рядом располагается санузел и вспомогательные помещения. Второй этаж разделен на три спальни и второй санузел, обеспечивая приватность и комфорт для каждого члена семьи.
Типичная планировка первого этажа
- Гостиная площадью около 25-30 м², объединённая с кухней
- Санузел с душевой или ванной
- Прихожая и лестничная зона
Типичная планировка второго этажа
- Три спальни различного размера
- Второй санузел с удобным расположением для всех комнат
- Возможность обустройства гардеробных или небольших рабочих зон
Материалы и технологии строительства
Проект дома 10x8 м с площадью 122 м² может быть реализован с использованием различных строительных материалов: от традиционной кирпичной кладки до современных технологий каркасного домостроения. Выбор материала зависит от желаемого бюджета, климатических условий, а также сроков строительства. Каркасные технологии позволяют существенно ускорить процесс, уменьшить вес здания и повысить энергоэффективность.
Для внешних стен часто используют утеплённые панели, газобетонные блоки, или кирпич, что обеспечивает хорошие теплоизоляционные свойства. Крыша в таких домах может быть выполнена из металлочерепицы, битумной черепицы или других долговечных материалов, которые максимально защищают строение от атмосферных воздействий.
Возможные материалы для стен и кровли
| Элемент | Материалы | Преимущества |
|---|---|---|
| Стены | Кирпич, газобетон, пеноблок, каркас с утеплением | Высокая теплоизоляция, долговечность, простота монтажа (для каркасных) |
| Крыша | Металлочерепица, битумная черепица, профнастил | Легкий вес, устойчивость к осадкам, долговечность |
Энергоэффективность и инженерные системы в доме 10x8
Современные проекты загородных домов, как данный дом площадью 122 м², обязательно включают грамотные инженерные решения для обеспечения комфорта и снижения затрат на эксплуатацию. Энергоэффективность направлена на сохранение тепла зимой и прохлады летом, что способствует снижению расходов на отопление и кондиционирование.
В проект могут входить системы вентиляции с рекуперацией, эффективные отопительные установки, современные тепло- и гидроизоляционные материалы. Водоснабжение и канализация продуманы с учётом локальных условий, что делает жилье удобным в повседневном использовании.
- Современные теплоизоляционные материалы для стен и перекрытий
- Эффективные отопительные системы — котлы, теплые полы
- Вентиляция с энергоэффективной рекуперацией
- Компактные инженерные решения, минимизирующие потери теплоэнергии
Правильный выбор и подготовка участка под строительство дома 10x8 м
Перед началом строительства важно правильно оценить земельный участок. Размеры дома 10x8 м требуют минимального пространства не только под здание, но и под вспомогательные зоны: входную группу, проходы вокруг дома, возможно, зону отдыха или огород. Такой дом подходит для участков средних и крупных размеров, а на участках около 6-8 соток его строительство также вполне реализуемо.
Подготовка участка включает удаление растительности, обеспечение доступа для техники и подведение инженерных коммуникаций. Продуманное расположение дома с учетом солнечных сторон, рельефа и близости объектов инфраструктуры поможет максимально увеличить комфорт проживания и сократить затраты на эксплуатацию.
Рекомендации по размещению дома на участке
- Минимальный отступ от границ участка согласно нормам
- Ориентация почти всеми жилыми комнатами на юг или юго-восток для хорошего естественного освещения
- Организация подъезда и парковочного места рядом с домом
- Выделение зоны отдыха или сада с удобным доступом из дома
Влияние планировки на качество жизни в доме
Планировка — это не просто распределение комнат, это основа для создания атмосферы, комфорта и уюта. В двухэтажном доме 10x8 м с тремя спальными комнатами и двумя санузлами каждый член семьи найдёт своё личное пространство, а общее пространство превратится в место для общения и совместных занятий.
Удобство передвижения по дому, наличие достаточного количества окон, хорошо продуманная система хранения и зоны отдыха создадут идеальные условия для жизни. При проектировании обязательно учитывается возможность гибкости: дополнительные комнаты могут трансформироваться в рабочие кабинеты, игровые комнаты или мастерские по мере изменения потребностей семьи.
Основные преимущества хорошо продуманной планировки
- Оптимальное использование пространства без создания "мертвых зон"
- Обеспечение уединения для каждого члена семьи
- Создание комфортных условий для отдыха и работы
- Гибкость в изменении назначения комнат
- Логичные переходы и удобство перемещений внутри дома





















