Одноэтажный дом 15x12 м — практичное решение площадью 193 м²
Когда речь заходит о строительстве частного дома, многие семьи стремятся найти оптимальный баланс между комфортом, функциональностью и стоимостью. Одноэтажный дом размером 15 на 12 метров, с полезной площадью 193 м², является именно таким решением. Этот формат идеально подходит для тех, кто хочет получить просторное, удобное жилье без сложностей с лестницами и дополнительным этажным пространством.
Планировка и размеры дома — ключевые факторы, которые значительно влияют на удобство проживания и организацию внутреннего пространства. Дом с длиной 15 м и шириной 12 м дает возможность грамотно спроектировать все необходимые помещения, оставив при этом достаточно свободного пространства для комфортного передвижения и отдыха. Одноэтажная конструкция упрощает процесс строительства, снижает затраты на инженерные коммуникации и минимизирует расходы по обслуживанию дома.
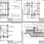
Общая характеристика: размеры и планировка
Габариты дома и их значение
Дом с параметрами 15x12 м — это довольно большой и просторный одноэтажный коттедж, который занимает площадь в 180 м² по внешним размерам. Однако, полезная площадь, которая фактически используется для жилья, составляет внушительные 193 м². Это говорит о том, что архитектурное решение оптимизировано для максимально эффективного использования пространства, возможно с использованием эркеров или дополнительных ниш.
Размеры дома позволяют расположить все необходимые зоны для комфортной жизни семьи из нескольких человек, включая общие зоны, личные спальни и санузлы. Такой дом впишется в участок с достаточной площадью, обеспечив при этом уют и комфорт для всех жителей.
Одноэтажное решение: преимущества и особенности
Одноэтажные дома пользуются возрастающей популярностью благодаря своей удобности и простоте эксплуатации. Они идеально подходят людям всех возрастов — от молодых семей до пожилых владельцев, так как в них отсутствуют лестницы, что снижает риск травматизма и делает циркуляцию по дому максимально удобной.
Кроме того, одноэтажное строительство зачастую обходится дешевле в плане фундамента и несущих конструкций, а также в вопросах отопления и вентиляции. Все коммуникации проще прокладывать и обслуживать, что позволяет избежать больших затрат в процессе эксплуатации.
Комфорт и функциональность: планировка помещений
Спальные комнаты: пространство для отдыха
В данном проекте предусмотрено две спальни, что является рациональным решением для семьи с одним или двумя детьми, либо для семейной пары, которая не планирует расширение в ближайшем будущем. Две комнаты позволяют выделить личную зону для каждого члена семьи, а также организовать гостевую или рабочее пространство, если возникнет такая необходимость.
Расположение спален в одноэтажном доме 15x12 м учитывает приватность и тихую зону отдыха, изолированную от гостиной и кухни. Это способствует лучшему отдыху и сну, а также поддержанию порядка в доме.
Два санузла — удобство и практичность
Наличие двух санузлов — еще один важный аспект комфорта данного дома. Это особенно актуально для семей с детьми или несколькими взрослыми, когда утром и вечером все стремятся одновременно воспользоваться ванной комнатой или туалетом.
Два санузла могут быть организованы таким образом: один в зоне спален, второй — близко к гостиной или кухне. Такая планировка позволит избежать неудобств и предотвратить очереди, а также поддерживать чистоту и гигиену на высоком уровне.
Особенности строительства и стоимость
Стоимость дома — 9 902 779 рублей: что входит в бюджет
Стоимость в размере 9 902 779 руб. за одноэтажный дом площадью 193 м² является вполне конкурентоспособной на современном рынке частного жилья. В эту сумму входят основные строительные работы, материалы, оформление документации и проектирование.
В зависимости от региона и условий строительства, эта цена может варьироваться, но в целом, подготовленный проект и грамотная организация процесса позволяют сохранить расходы в пределах заявленной суммы. Стоит учитывать, что такая цена не включает дополнительных опций, таких как отделка «под ключ», ландшафтный дизайн или монтаж инженерных систем повышенной категории.
Оптимизация затрат благодаря одноэтажной конструкции
Одноэтажные дома имеют ряд преимуществ в экономии бюджета. Во-первых, отсутствует необходимость строительства лестниц и множества межэтажных перекрытий, что снижает затраты на материалы и работу. Во-вторых, упрощается организация инженерных сетей, что также удешевляет процесс. В-третьих, при отклонениях от проекта или сверхнормативных изменениях, одноэтажный дом требует меньше дополнительных затрат на усиление конструкции.
Преимущества одноэтажного дома 15x12 м в повседневной жизни
Удобство для всех возрастов
Одноэтажный дом — это идеальное пространство для проживания людей разных возрастных категорий. Для детей отсутствие лестниц – это безопасность, для взрослых — комфорт, а для пожилых — возможность сохранить мобильность и независимость на долгие годы. Простые и логичные маршруты внутри дома способствуют его удобному использованию и исключают барьеры для передвижения.
Больше свободы для творчества и интерьера
Площадь в 193 м² предоставляет широкое поле для реализации различных дизайнерских идей. Благодаря продуманной планировке можно выделить зоны для отдыха, работы и гостиной, создавая единое и гармоничное пространство, которое соответствует вашему стилю и образу жизни.
Большая площадь позволяет использовать разнообразные отделочные материалы, расставлять мебель по желанию и даже предусмотреть отдельные помещения для хобби или домашнего спортзала. Одноэтажная конструкция способствует созданию открытых планировок с зональным разделением — примером могут служить объединённые гостиная и кухня или просторные холлы.
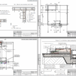
Технические и архитектурные нюансы проекта
Особенности фундамента и стен
Для дома площадью 193 м² с размерами 15 на 12 метров преимущественно используется ленточный или плитный фундамент, обеспечивающий необходимую устойчивость и равномерное распределение нагрузок. Такая база подходит для большинства типов почв и климатических условий.
Стены одноэтажного дома могут быть выполнены из различных материалов — кирпича, газоблока или Holz. Выбор зависит от личных предпочтений, бюджета и требований по теплоизоляции. Все они хорошо подходят для поддержания оптимального микроклиматa внутри помещения.
Крыша в одноэтажном доме — минимализм и надежность
Хотя информация о типе крыши и угле наклона отсутствует в параметрах, в современном строительстве для одноэтажных домов часто выбирают двускатные или четырехскатные конструкции. Они отличаются простотой монтажа, надежностью и хорошим водоотведением. Кроме того, кровельный материал может варьироваться от металлочерепицы до мягкой кровли, в зависимости от бюджета и дизайнерских решений.
Таблица основных параметров дома 15x12 м (193 м²)
| Параметр | Значение |
|---|---|
| Размеры дома | 15 x 12 м |
| Полезная площадь | 193 м² |
| Этажность | 1 этаж |
| Количество спален | 2 |
| Количество санузлов | 2 |
| Стоимость проекта | 9 902 779 руб. |
| Наличие гаража | Отсутствует |
| Наличие террас и балконов | Отсутствует |
Почему именно одноэтажный дом — выбор современного владельца
Современный рынок жилья предлагает широкий выбор домов с разнообразной этажностью и параметрами, однако именно одноэтажное жилье становится все более популярным. Это связано не только с удобством и экономичностью, но и с общей тенденцией к созданию экологичных и удобных для жизни пространств. Дом 15x12 метров с полезной площадью 193 м² — это пример такого жилья, где каждый метр используется с максимальной пользой.
Если вы цените удобство, безопасность, продуманную планировку и разумный бюджет, то этот вариант соберет в себе все нужные элементы для того, чтобы стать вашим идеальным домом. Возможность построить такой дом единовременно на ровном участке с инженерной инфраструктурой также ускорит вселение и позволит создать комфортную семейную атмосферу с первых дней.
Советы по выбору участка для дома 15 на 12 метров
Для строительства дома с габаритами 15x12 метров важен правильный выбор участка. Минимальные размеры земляного участка должны позволять разместить дом с небольшим запасом для обустройства дворовой зоны, подезда техники и организации хозяйственных построек, если это необходимо. Рекомендуется, чтобы ширина и длина участка были как минимум на 3-4 метра больше соответствующих размеров дома по каждой стороне.
При выборе места под строительство также нужно учитывать рельеф участка, качество почвы, доступ к инженерным коммуникациям, солнечное освещение и направление доминирующих ветров. Правильно выбранный участок сэкономит средства и время, а также обеспечит гармоничную интеграцию дома в окружающую среду.
Как грамотно подойти к проектированию одноэтажного дома
Проектирование дома — это не только выбор внешней архитектуры, но и продуманный процесс внутри, направленный на создание удобного и функционального пространства. Рекомендуется обратиться к опытным архитекторам, которые помогут учесть особенности вашего образа жизни, количество членов семьи и их предпочтения.
Особое внимание уделяется расположению комнат: спальни и санузлы лучше размещать в более уединенной части дома, а кухни и гостиные — в общественной. Это влияет на энергозатраты, комфорт и уровень шума внутри дома. В идеальном проекте также предусмотрены запасы пространства для хранения — отдельные кладовые или хозяйственные помещения.
Выводы: уникальность проекта дома 15x12 м площадью 193 м²
В итоге, одноэтажный дом размером 15 на 12 метров и площадью 193 м² — это современное и сбалансированное решение для тех, кто ищет просторный и комфортный коттедж без лишних затрат. Его функциональная планировка с двумя спальнями и двумя санузлами обеспечит удобство, а цена в пределах 10 млн рублей делает проект доступным для многих.
Такой дом прекрасно подходит для постоянного проживания, позволяя в полной мере реализовать идеи качественного загородного комфорта. Он гармонично вписывается в современные тенденции и предлагает множество возможностей для персонализации и адаптации под любые задачи семьи.

















