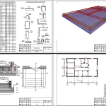
Одноэтажный дом 18х10 – оптимальное решение для комфортной жизни
Проект дома с размерами 18 на 10 метров и общей полезной площадью 146 квадратных метров — это воплощение комфорта, функциональности и современного стиля. Одноэтажный дом площадью 146 м² позволяет объединить все необходимые комнаты и зоны в одном уровне, обеспечивая легкость коммуникаций и удобство передвижения по пространству. Для семьи с детьми или пожилыми членами семьи такое решение особенно актуально, ведь отсутствие лестниц снижает риски травм и делает дом комфортным для всех.
Кроме того, площадь в 146 м² – это достаточно пространства, чтобы грамотно спланировать три спальни и два санузла, что идеально подходит для среднего или даже расширенного состава семьи. Казалось бы, что одноэтажность ограничивает возможности дизайна, но на практике грамотное архитектурное решение в сочетании с продуманной функциональностью позволяет создать уютное и современное жилье.
Размеры и планировка: важные особенности дома 18х10 метров
Габариты дома 18х10 метров создают прямоугольный формат, который является одним из самых распространенных во всем мире. Такая форма оптимальна для размещения комнат — она удобна как с инженерной, так и с эстетической точки зрения. Категория домов, имеющих площадь около 146 м², считается достаточно просторной для семьи из четырёх-пяти человек.
Трёхспальная конфигурация в одном этаже позволяет комфортно организовать личное пространство каждого члена семьи, не жертвуя при этом объемом общих зон, таких как гостиная, кухня и столовая. Наличие двух санузлов одновременно обеспечивает удобство в утренние часы и уменьшает очереди на душ и туалет.
Преимущества одноэтажной планировки
Одноэтажный дом – это всегда максимум удобства: отсутствуют лестницы, что актуально для семей с маленькими детьми, пожилыми людьми или теми, кто ценит свободу передвижения и безопасность. Насыщенная открытая планировка позволяет создать светлые и просторные жилые комнаты, максимально используя площадь.
Кроме того, отсутствие второго этажа значительно упрощает строительные работы, сокращает сроки и снижает бюджет на фундамент и перекрытия. В целом проект 18х10 с 146 м² служит примером рационального использования площади и современных тенденций в строительстве частных домов.
Стоимость строительства: анализ цены в 7 853 226 рублей
Стоимость строительства дома площадью 146 м² в размере 7 853 226 рублей — это вполне адекватный показатель для качественного загородного жилья с современными инженерными системами и отделкой. Разумеется, конечная сумма зависит от множества факторов: от выбора материалов и сложности проекта до региона строительства и стоимости рабочей силы.
На сегодняшний день при планировании строительства дома важно учитывать полный цикл затрат, включающий не только возведение конструкции, но и коммуникации, отделочные работы и оформление документации. Дом с основой 18x10 м — достаточно крупное и серьезное вложение, однако при грамотном планировании и выборе подрядчиков подобная сумма позволяет получить устойчивое, энергоэффективное и комфортное жилье.
Что входит в стоимость строительства?
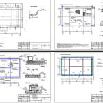
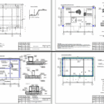
| Статья затрат | Описание |
|---|---|
| Фундамент | Монолитный ленточный или плитный фундамент в зависимости от особенностей грунта |
| Стены | Материалы и работы по возведению наружных и внутренних стен |
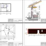
| Кровля | Конструкция крыши, её утепление и покрытие |
| Окна и двери | Установка качественных пластиковых или деревянных конструкций |
| Внутренние инженерные системы | Электрика, отопление, водоснабжение, канализация |
| Отделочные работы | Внутренняя отделка стен, полов, потолков, сантехника |
| Прочие расходы | Проектная документация, подключение к коммуникациям и прочее |
Стоимость каждой статьи можно оптимизировать в зависимости от выбора подрядчиков и материалов, однако общая сумма в районе 7,8 миллионов рублей вполне соответствует качественному жилью без излишних компромиссов.
Трёхспальная планировка с двумя санузлами: удобство и комфорт
В доме площадью 146 квадратных метров с одной спальней на каждого члена семьи и дополнительной гостевой комнатой можно с легкостью разместить родителей и детей, обеспечивая каждому собственное комфортное личное пространство. Это немаловажно, когда речь идет о полноценном отдыхе и приватности.
Наличие двух санузлов — редкий, но очень полезный бонус. В утренние часы, а также во время приема гостей, когда площадь дома больше, чем у типовых квартир, возможность одновременно пользоваться санузлами снижает стресс и повышает удобство. Обычно один санузел делается совмещенным, а второй — гостевым или детским, что значительно упрощает быт.
Типичное распределение функций в доме 18х10:
- Спальня родителей с отдельной гардеробной.
- Две детских или гостевых спальни стандартных размеров.
- Гостиная объединенная с кухней и столовой зоной, для максимального использования пространства.
- Два санузла: один – общий с ванной, второй – гостевой с душевой зоной.
- Прихожая с встроенным шкафом для верхней одежды.
- Техническое помещение или котельная.
Архитектурные особенности и возможности дизайна
При проектировании одноэтажного дома площадью 146 м² важно уделять большое внимание естественному освещению, вентиляции и зонированию пространства. В таком доме комнаты расположены логично, переход между жилыми и вспомогательными зонами незаметен, что делает домашнюю атмосферу максимально уютной.
Расположение комнат по периметру дома с большими окнами позволяет красиво вписать строение в ландшафт и получать максимум дневного света. Просторная гостиная словно соединяет внутреннее пространство с окружающей природой. Это особенно важно при загородном строительстве, где люди стремятся к единению с природой и отдыху от городской суеты.
Возможности оформления фасада и интерьера
Фасад дома 18x10 метров можно выполнить в различных стилях — от классического до скандинавского или современного минимализма. Использование натуральных материалов, таких как дерево и камень, придаст дому теплый, «домашний» вид, а сочетание с контрастными элементами и простыми формами подчеркнет его стиль и характер.
В интерьере можно применить современные решения с открытыми планировками, где кухня вместе с гостиной создают единое пространство для отдыха и общения семьи. Экономия места вдоль коридоров достигается за счет размещения встроенных шкафов и функциональных ниш, а также использования раздвижных перегородок.
Экономика и рациональность вложений в одноэтажный дом 18х10
Для клиента, планирующего строительство дома с размерами 18 на 10 метров, важно понимать не только общую смету, но и то, как правильно распределить бюджет для достижения оптимального результата. Одноэтажные дома имеют очевидные преимущества перед многоэтажными конструкциями, в том числе и в плане стоимости инженерных систем — разводка коммуникаций здесь проще и дешевле.
Кроме того, в условиях современного рынка строительных материалов и технологий такая площадь и количество помещений (3 спальни, 2 санузла) позволяют использовать стандартизированные решения без потери качества и удобства. Это позволяет контролировать затраты и в то же время получить долговечное и комфортное жилье.
Ключевые преимущества экономии в проекте 18x10 м
- Одноэтажность снижает потребность в сложных конструкциях и снижает объемы материалов.
- Простая форма дома — сокращает теплопотери и облегчает утепление.
- Рациональная светопрозрачная система снижает затраты на освещение в дневное время.
- Оптимальная площадь позволяет разумно использовать площадь участка и минимизировать расходы на благоустройство.
Выводы для планирующих строительство дома 18х10 площадью 146 м²
Построить одноэтажный дом размером 18 на 10 метров с тремя спальнями и двумя санузлами — очень разумный выбор для тех, кто ценит комфорт, функциональность и безопасность. Такое жилье идеально подходит для семей разного состава, а площадь 146 м² — это идеальный баланс между жилой площадью и бюджетом.
Обладая современными инженерными системами, продуманной планировкой и качественными строительными материалами, дом такого формата предоставит надежную основу для счастливой и полноценной жизни. При бюджете около 7 853 226 рублей можно рассчитывать на построенный под ключ проект, который удовлетворит требования даже самой требовательной семьи.















