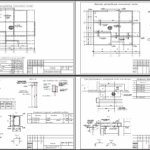
Общая характеристика двухэтажного дома 19x13 м площадью 223 м²
Строительство частного дома – это серьезное и комплексное дело, требующее комплексного подхода как на этапе проектирования, так и при дальнейшем воплощении замысла в реальность. Рассмотрим подробный пример двухэтажного дома размером 19 на 13 метров с общей полезной площадью 223 квадратных метра. Такой дом предназначен для семьи, которая ценит комфорт, простор и продуманность планировки. Два этажа с массой функциональных помещений позволяют организовать удобное и комфортное пространство для проживания и отдыха всех членов семьи.
Площадь в 223 м² – это вполне достаточный размер для комфортного размещения нескольких спален, рабочих кабинетов, просторной гостиной и кухонной зоны, а также необходимых хозяйственных и технических помещений. При габаритах 19х13 метров дом занимает значительный участок территории, что дает возможность разнообразить ландшафтное оформление и уделить внимание созданию уютного двора или сада.
Размеры и планировка: как правильно использовать площадь дома 19x13 метров
Основным параметром этого проекта являются габариты дома – 19 метров в длину и 13 метров в ширину. Такие размеры позволяют грамотно распределить помещения на двух этажах, создавая функциональные зоны, при этом не уходя в излишнюю громоздкость здания. Благодаря этим размерам можно реализовать достаточно светлые и просторные комнаты, что благоприятно сказывается на микроклимате внутри дома и уровне комфорта проживания.
Двухэтажный формат повышает полезную площадь без увеличения площади застройки на участке, что особенно важно при ограниченных размерах земельного надела. Это возможность получить двойной объем жилого пространства, сохраняя при этом привлекательный внешний вид здания и минимизируя затраты на фундамент и кровлю по сравнению с одноэтажным домом аналогичной площади.
Особенности планировки двух этажей
Первый этаж, как правило, предназначается для общественных и технических зон: просторная гостиная с зоной отдыха, кухня-столовая, санузел, возможно, кабинет или гостевая комната. На втором этаже размещаются спальни и остальные личные помещения, обеспечивающие уединение и комфорт жильцов.
В данном доме предусмотрено четыре спальни – это оптимальное количество для семьи из 3-5 человек, позволяющее каждому иметь собственное личное пространство. Три санузла обеспечивают удобство, позволяя избежать очередей в утренние часы и создавать отдельные зоны для отдыха и гигиены для разных членов семьи.
Функциональное зонирование и удобство проживания
Как показывает практика, грамотная организация жилого пространства является залогом комфорта. Четыре спальни дадут возможность выделить комнаты для родителей, детей, а также гостевую или кабинет для работы дома. Три санузла, которые включают минимум один основной и дополнительные гостевой и детский, сделают дом максимально удобным для большой семьи.
Важно отметить, что распределение санузлов по этажам уменьшает нагрузку на утренние часы, а отдельный гостевой санузел придаст дому современный уровень комфорта и удобства. Таким образом, жильцы смогут одновременно использовать бытовые удобства, не создавая конфликтных ситуаций и ожиданий.
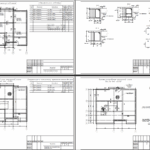
Пример распределения помещений по этажам
| Этаж | Назначение помещений | Количество комнат |
|---|---|---|
| Первый этаж | Гостиная, кухня-столовая, кабинет, санузел | 3-4 (включая санузел) |
| Второй этаж | Спальни, санузлы | 4 спальни, 2 санузла |
Стоимость строительства: сколько стоит дом 223 м²?
Одним из ключевых вопросов при планировании стройки является бюджет проекта. Дом размером 19х13 метров с двумя этажами и общей площадью 223 квадратных метра обойдется примерно в 9 758 852 рублей. Эта сумма включает основные виды работ и материалы, необходимые для возведения надежного и комфортного жилого пространства.
Цена, безусловно, зависит от множества факторов, таких как выбор строительных материалов, качество отделки, инженерные коммуникации, сложность архитектурного решения и дополнительные опции. В рамках указанной стоимости предполагается оптимальный баланс между качеством и затратами, что делает данный проект привлекательным для большинства частных застройщиков.
Составные части бюджета строительства
- Фундамент и несущие конструкции: заливка ленточного или плитного основания, монтаж стен и перекрытий.
- Кровля и наружная отделка: устройство кровли, наружная отделка фасадов, утепление.
- Внутренняя отделка: штукатурка, покраска, укладка напольных покрытий, монтаж потолков.
- Инженерные системы: электрика, сантехника, отопление, вентиляция.
- Окна и двери: монтаж оконных систем и дверей.
Из перечисленного становится ясно, что планирование бюджета должно быть гибким и учитывать возможные изменения, например, выбор более дорогих материалов или дополнительные работы, которые могут значительно увеличить финальные затраты.
Преимущества двухэтажного дома 19x13
Выбор проекта с двумя этажами и размерами 19 на 13 метров – это великолепное решение для тех, кто ценит простор и практичность. Такая конструкция оптимально подходит для участков с ограниченной площадью, позволяя максимально использовать площадь застройки, не теряя полезное пространство.
Кроме этого, двухэтажные дома имеют несколько неоспоримых преимуществ:
- Экономия на участке: За счет многоэтажности можно построить большой жилой дом, занимая меньшую площадь территории.
- Планировочная гибкость: Больше возможностей для отделения приватных и общественных зон, что улучшает качество жизни.
- Улучшенный микроклимат: Второй этаж зачастую теплее, так как тепло поднимается вверх, а первый этаж – универсален для дневных и хозяйственных целей.
- Возможность красивого наружного облика: Архитектурные возможности двух этажей позволяют создать привлекательный дизайн фасадов.
Почему стоит выбирать именно этот проект
Можно выделить несколько весомых причин остановить выбор на этом типовом доме. Это и оптимальный баланс площади и функционала, и соответствующая стоимость, и возможность адаптации планировки под индивидуальные требования. Каждый элемент дома продуман для создания комфорта и удобства, что важно для семейного проживания.
Материалы и технологии строительcтва для дома 223 м²
В ходе возведения такого крупного частного дома особое внимание следует уделять материалам и технологиям строительства, поскольку они напрямую влияют на качество, долговечность и стоимость здания. Отдельно стоит выделить, что выбор материалов зависит от климатических условий региона, бюджета и пожеланий заказчика.
Чаще всего для дома площадью более 200 м² применяются следующие материалы:
| Элемент дома | Рекомендуемые материалы | Основные преимущества |
|---|---|---|
| Фундамент | Монолитный бетон, ленточный фундамент с армированием | Прочность, стойкость к нагрузкам, долговечность |
| Стены | Кирпич, газобетонные блоки, утепленные панели | Теплоизоляция, звукоизоляция, устойчивость к погодным условиям |
| Перекрытия | Железобетонные плиты, деревянные балки | Надежность, экологичность (дерево), несущая способность |
| Кровля | Металлочерепица, битумная черепица, фальцевая кровля | Долговечность, защита от осадков, эстетика |
Также обязательным условием является качественное утепление дома с обязательным учетом теплоизоляционных характеристик материалов, что обеспечивает экономию на отоплении и комфорт проживания даже в самые суровые зимы.
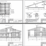
Архитектурные решения для двухэтажного дома 19х13
Проект дома с размерами 19 на 13 метров на двух этажах открывает широкие возможности для реализации современных архитектурных решений. Такие габариты позволяют создавать дома как в классическом стиле, так и в современном минималистичном направлении, с большим количеством окон, светлых и воздушных помещений.
Архитектурные тенденции последних лет подчёркивают важность естественного освещения, переходов между зонами и использования натуральных материалов в отделке фасадов. Возможна установка панорамных окон, двусветных пространств, что визуально увеличит объемы и придаст дому уникальность.
Варианты оформления фасада
- Классический стиль: Аккуратные формы, традиционные материалы (кирпич, штукатурка), симметрия в расположении окон и дверей.
- Современный стиль: Чистые линии, сочетание стекла и металла, плоская или малая крутизна кровли.
- Скандинавский стиль: Светлые фасады, простота форм, функциональность.
Все эти варианты легко воплотить в рамках дома 19x13, создавая при этом индивидуальный облик, который подчеркнет вкус и статус владельцев.
Подводные камни и нюансы при строительстве
При возведении большого двухэтажного дома есть ряд важных факторов и нюансов, которым стоит уделить внимание, чтобы избежать дорогостоящих ошибок и простоев. К ним относятся технологические аспекты, особенности климатических условий, качество выбранных материалов и уровень организации строительного процесса.
Одним из ключевых моментов является правильный выбор фундамента, учитывая нагрузку и особенности грунтов. Помимо этого, необходимо тщательное утепление дома, чтобы избежать теплопотерь, особенно в холодных регионах. Так как площадь дома достаточно велика, стоит заранее продумать систему отопления и вентиляции, чтобы создать комфорт во всех помещениях.
Советы от специалистов
- Подробно проработайте проект с архитектором и инженерами в соответствии с вашими требованиями и условиями участка.
- Заранее определите комплекс систем коммуникаций и отопления для минимизации затрат на переделки.
- Выбирайте материалы с учетом климата региона и их эксплуатационных характеристик.
- Обратите внимание на качество подрядчиков и стройматериалов для предотвращения дефектов в будущем.
Заключение: почему дом 19x13 на два этажа – выгодное и комфортное вложение
Проект двухэтажного дома размером 19 на 13 метров с полезной площадью 223 м² является отличным выбором для семей, которые хотят комфортное, просторное и функциональное жилье. Такой дом объединяет в себе актуальные архитектурные решения, грамотное зонирование и преимущества двух этажей, а также разумную цену в около 9,7 миллионов рублей.
Данный проект подойдет и для постоянного проживания, и для отдыха, обеспечивая простор для развлечений, работы и уединения. При правильном подходе к строительству и качественном исполнении он станет надежным и уютным домом, который может радовать своих владельцев многие годы.


























