Особенности одноэтажного дома 12x11 метров с площадью 111 м²
Одноэтажный дом размером 12 на 11 метров с полезной площадью 111 квадратных метров — это оптимальное решение для тех, кто мечтает о комфортном загородном жилье, совмещающем практичность и уют. Такой дом прекрасно вписывается в самые разные участки и предоставляет владельцам достаточно пространства для комфортной жизни семьи из нескольких человек.
Главным преимуществом одноэтажной конструкции является удобство и доступность всех помещений, что особенно важно для семей с маленькими детьми, пожилыми людьми или людьми с ограниченной мобильностью. Отсутствие межэтажных лестниц облегчает поддержание чистоты и обеспечивает безопасность в доме.
Размеры дома 12 на 11 метров позволяют рационально планировать внутреннее пространство, создавая комфортные зоны для отдыха, работы и приема гостей. Благодаря продуманной планировке вы сможете разместить все необходимое, не чувствуя при этом излишней тесноты.
Планировка и распределение пространства
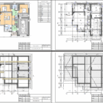
Ключевым фактором, который определяет функциональность и удобство дома, является планировка. В данном проекте предусмотрено две спальни и два санузла, что позволит членам семьи иметь личное пространство, а гостям — комфортные условия для проживания.
Спальни: комфорт и приватность
Две спальни — это отличный выбор для семей с детьми или для тех, кто регулярно принимает гостей. Несмотря на умеренный размер, спальни спроектированы таким образом, чтобы обеспечить максимум светового пространства и удобство при расстановке мебели.
Одна из спален может быть детской или гостевой, вторая — основной, родительской, где можно создать зону для отдыха с кроватью большого размера и личным гардеробом. Такая организация позволяет не только сберечь пространство общего пользования, но и обеспечить каждому члену семьи уединение и тишину.
Санузлы: удобство для всех
Наличие двух санузлов — это уникальное преимущество. Один из них может быть оборудован ванной, а второй — душевой кабиной, что позволит распределить нагрузку в часы пик и сделать быт максимально удобным. Особенно это важно, когда в доме живет несколько человек.
Размещение санузлов около спален уменьшает количество переходов по дому и создает комфортную среду, где все заботы связаны с гигиеной не доставляют неудобств.
Экономика строительства: стоимость и бюджет
Цена дома размером 12x11 метров с площадью 111 м² составляет 6 247 186 рублей. Такая сумма включает все основные этапы строительства с качественными материалами и выверенной технологией возведения, что гарантирует долговечность и надежность здания.
Что входит в стоимость?
| Статья расходов | Описание |
|---|---|
| Фундамент | Монолитная плита или ленточный фундамент, обеспечивающий надежную основу |
| Стены | Использование эффективных теплоизоляционных материалов и долговечных стеновых конструкций |
| Кровля | Современное покрытие, обеспечивающее защиту от атмосферных осадков и долгий срок службы |
| Внутренняя отделка | Первичный ремонт, подготовка к последующему декорированию под индивидуальный вкус заказчика |
| Инженерные системы | Водоснабжение, отопление, электрика — все, что необходимо для комфортного проживания |
При планировании бюджета стоит учитывать не только первоначальные затраты, но и возможности для экономии в процессе эксплуатации дома за счет энергоэффективных технологий.
Возможности для оптимизации затрат
- Выбор надежных, но доступных отделочных материалов
- Использование современных энергосберегающих плит и утеплителей
- Продуманное расположение окон для естественного освещения и вентиляции
Сбалансированный подход к распределению бюджета поможет получить идеальный дом при разумных затратах, что делает проект чрезвычайно привлекательным для многих семей.
Архитектурные особенности и удобство эксплуатации одноэтажного дома
Одноэтажное строение с размерами 12 на 11 метров и площадью 111 кв. метров хорошо сочетается с разными архитектурными стилями. Такой дом может быть как классическим, так и современным за счет грамотного проектирования фасадов и выбором отделочных материалов.
Универсальность и адаптивность
Один этаж снижает общий уровень затрат на строительство и последующее обслуживание. Отсутствие лестниц делает дом удобным для всех возрастных групп, а также идеально подходит для будущих владельцев, которые планируют жить здесь всю жизнь.
Кроме того, одноэтажный дом максимально функционален в плане планировки, позволяя организовать все зоны максимально компактно и одновременно эргономично. Не требуется дополнительное пространство для лестничных проемов и площадок, что экономит драгоценные квадраты.
Варианты фасада
- Классический стиль — с использованием натурального камня и деревянных элементов
- Современный минимализм — с контрастными цветами и гладкими поверхностями
- Скандинавский стиль — с акцентом на светлые оттенки и функциональность
Выбор фасада напрямую влияет на восприятие дома и его интеграцию в ландшафт, а также определяет особенности ухода и долговечность внешних покрытий.
Практические советы по выбору участка и размещению дома
Размеры дома 12 х 11 м требуют определенных параметров земельного участка. Для комфортного размещения здания, а также обустройства прилегающей территории, рекомендуется учитывать как минимальные размеры участка, так и его ориентацию по сторонам света.
Минимальные размеры участка
| Параметр | Рекомендуемое значение |
|---|---|
| Минимальная ширина | От 18 до 20 метров |
| Минимальная длина | От 25 метров и более |
Такие размеры позволяют не только построить сам дом, но и обустроить дополнительные зоны: зеленую лужайку, площадку для отдыха, зону барбекю или детскую площадку. Кроме того, пространство вокруг дома обеспечивает хорошую освещенность и вентиляцию.
Ориентация дома на участке
Правильное расположение дома по сторонам света позволяет оптимально использовать естественное освещение и защитить помещения от излишнего перегрева летом. Идеальным вариантом считается размещение главных жилых комнат (спален и гостиной) с восточной и южной стороны, а вспомогательных помещений — с северной.
Также следует продумать расположение окон и двери, чтобы максимизировать комфорт и минимизировать энергозатраты на отопление и освещение.
Итог: почему стоит выбрать одноэтажный дом 12x11 площадью 111 м²
Одноэтажный дом размером 12 на 11 метров с полезной площадью 111 м² — это находка для тех, кто ищет сочетание функциональности, комфорта и разумных затрат. Две спальни и два санузла обеспечат всем жильцам личное пространство и удобство быта без излишеств.
Стоимость строительства в размере около 6,25 миллионов рублей делает этот проект доступным выбором на современном рынке частного жилья, особенно учитывая качественные материалы и инженерные решения, предусмотренные в проекте.
Кроме того, архитектурная гибкость и адаптивность к разным участкам позволяют вписать такой дом в любой ландшафт и сделать его настоящим семейным гнездом на долгие годы.









