Одноэтажный дом 27х15 – простор и функциональность на 341 м2
Проект одноэтажного дома с размерами 27 на 15 метров и полезной площадью 341 м2 представляет собой идеальное решение для тех, кто ценит комфорт и простор без лишних этажей. Одноэтажное строительство обеспечивает максимальное удобство для всех членов семьи, исключая необходимость подниматься по лестницам с тяжелыми грузами и создавая безопасную среду, особенно если в доме есть дети или пожилые обитатели.
Просторная площадь порядка 341 квадратного метра позволяет разместить не только необходимые жилые помещения, но и дополнительные функциональные зоны для отдыха, работы и гостевых визитов. В таком доме легко реализовать индивидуальные идеи по дизайну интерьера, создавая гармоничное пространство для жизни.
Размеры дома 27×15 метров: оптимальное использование пространства
Габариты здания 27 на 15 метров представляют собой достаточно крупный одноэтажный дом, который идеально подходит для просторных участков и позволяет реализовать разнообразные архитектурные решения. Длина в 27 метров дает возможность расположить помещения последовательным рядом, разделив функциональные зоны на дневные и ночные с максимальным удобством.
Ширина 15 метров также оптимальна для создания уютных комнат, просторных гостиных и удобных кухонь. Благодаря этим параметрам, на одной плоскости можно разместить пять и более спален, что является большим преимуществом для многодетных семей или тех, кто часто принимает гостей.
Преимущества одноэтажного дома
Одним из главных достоинств дома в один этаж является удобство эксплуатации. Все помещения находятся на одном уровне, что сокращает количество лестниц и делает передвижение по дому максимально удобным. Это особенно важно для семей с детьми, пожилыми родственниками или людьми с ограниченной мобильностью.
Еще одним важным плюсом является возможность легкого зонирования дома. В нашем проекте можно четко разграничить жилые и хозяйственные зоны, создать отдельные спальни с санузлами, кабинет для работы или комнату развлечений. Все это достигается без чрезмерной загруженности пространства и ощущения тесноты.
Количество спален и санузлов: комфорт для большой семьи
В нашем проекте предусмотрено пять и более спален – это значительное преимущество для крупной семьи или для тех, кто хочет иметь возможность принимать гостей с максимальным комфортом. Каждая спальня может выполнять разные функции: от главных комнат для взрослых и детей до гостевых с отдельными зонами хранения и уютной обстановкой.
Кроме того, в доме запроектировано четыре санузла, что также повышает уровень комфорта. Особенность расположения нескольких санузлов в равной степени удобно как для жильцов, так и для гостей, особенно в часы пик, когда пользование ванной или туалетом становится частым.
Стоимость строительства и финансовая оценка проекта
Стоимость возведения данного одноэтажного дома площадью 341 м2 составляет 16 649 283 рублей. Цена учитывает качественные строительные материалы, современную технологию возведения и ответственность подрядчиков. Важно понимать, что цена включает полный цикл строительных работ и может немного варьироваться в зависимости от региона и дополнительных опций заказчика.
Инвестиции в строительство большого и продуманного в плане планировки одноэтажного дома оправдаются длительной эксплуатацией и комфортом, который получит семья. При этом разумное соотношение площади и стоимости является дополнительным стимулом выбирать именно проекты с оптимизированной планировкой и продуманным функционалом.
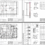
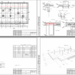
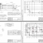
Планировка и функциональное зонирование дома 27x15
Продуманная планировка дома – залог комфорта и рационального использования пространства. Проект такого объема прекрасно подходит для функционального зонирования, при котором дневные и ночные зоны четко разделяются, а удобство передвижения и доступ ко всем помещениям находится на высоком уровне.
Примерное зонирование может выглядеть следующим образом:
- Гостиная с просторной зоной отдыха и выходами к основным комнатам.
- Отдельная кухня-столовая с удобным расположением оборудования и доступом к зонам хранения.
- Пять спален, расположенных в спокойной части дома, вдали от шумных зон.
- Четыре санузла, равномерно распределенные по дому для удобства всех жильцов.
- Дополнительные помещения: кабинет, кладовая, постирочная или техническое помещение.
Преимущества многофункциональной планировки
Такое зонирование облегчает жизнь всех проживающих, поскольку снижает пересечения и вероятность создавать лишние шумы в ночное или рабочее время. К тому же, при большом количестве спален и санузлов каждый член семьи имеет свой уголок личного пространства и уединения.
Планировка этого дома ориентирована также на возможность трансформации помещений в будущем. Если нужно добавить гостевую комнату, кабинет или оборудовать игровую зону для детей, площадь позволяет сделать это без значительных затрат на перепланировку.
Особенности строительства одноэтажного дома с большой площадью
Строительство одноэтажного дома площадью более 300 м2 обладает своими нюансами и требует тщательного планирования. Большая площадь накладывает определенные требования на фундамент, покрытие и системы коммуникаций. Главное – обеспечить прочность и долговечность конструкции при одновременном сохранении уюта и экономии.
При проектировании особое внимание уделяется наружным стенам и кровле, поскольку они играют ключевую роль в теплоизоляции и защите от внешних факторов. Кроме того, грамотный выбор материалов позволяет снизить затраты на отопление и кондиционирование.
Технические аспекты и важные рекомендации
- Выбор типа фундамента с учетом грунтов и предполагаемых нагрузок.
- Современные теплоизоляционные материалы для стен и крыши.
- Интеграция систем «умного дома» для экономии энергоресурсов.
- Проектирование рациональной системы вентиляции для поддержания комфортного климата в доме.
- Размещение инженерных сетей с минимальными потерями и удобством обслуживания.
Следование этим рекомендациям обеспечивает построение долговечного и комфортного жилища, которое прослужит не одно десятилетие.
Идеальный выбор для семьи: комфорт и простор без этажей
Одноэтажный дом 27х15 метров с площадью 341 м2 – это преимущественно выбор семей, которые хотят совместить удобство, безопасность и простор в одном здании. Такой дом предлагает идеальные условия для жизни благодаря наличию большого количества спален и санузлов, позволяем создавать индивидуальные пространства, а также легко встречать гостей.
Возможность избежать использования лестниц, при этом имея обилие комнат и зон, делает такой проект особенно привлекательным для семей с разными потребностями и возрастами. Кроме того, одноэтажное строительство упрощает обслуживание и предотвращает многие бытовые риски.
Таблица: Основные характеристики одноэтажного дома 27х15 м
| Параметр | Значение |
|---|---|
| Полезная площадь | 341 м² |
| Размеры дома | 27 x 15 м |
| Этажность | 1 этаж |
| Количество спален | 5+ |
| Количество санузлов | 4 |
| Стоимость строительства | 16 649 283 руб. |
Кому подойдет проект такого дома?
Основным покупателем и заказчиком подобного одноэтажного дома является семья с тремя и более детьми, особенно если ведется активный образ жизни или необходима собственная рабочая зона для удаленной работы или творчества. Кроме того, многие пожилые люди с удовольствием выбирают одноэтажное жилье, чтобы избежать проблем с лестницами и иметь все удобства под рукой.
Использование проекта возможно как для постоянного проживания, так и в качестве загородного дома, где семья собирается на выходные или праздники. Просторные комнаты и рациональная планировка обеспечивают комфортный отдых и возможность принимать гостей с удобством и шиком.
Перспективы и варианты индивидуализации проекта
Проект одноэтажного дома размером 27 х 15 метров можно адаптировать под личные пожелания заказчика. Дополнительные комнаты, модификация размеров санузлов и спальней, установка современных систем отопления и вентиляции – все это можно учесть еще на стадии проектирования.
При желании возможно улучшить эргономику и внешний вид дома, добавив декоративные элементы фасада, интегрированные системы безопасности, террасу или небольшой внутренний дворик, что сделает дом еще более уникальным и уютным.
Сводные преимущества проекта одноэтажного дома 27х15
- Просторная площадь 341 м2 позволяет реализовать разнообразные функциональные зоны.
- Одноэтажное расположение обеспечивает безопасность и удобство всем жильцам.
- Пять и более спален и четыре санузла делают дом комфортным для большой семьи.
- Современные строительные технологии уравновешивают качество и стоимость.
- Гибкость в планировке и адаптации к нуждам заказчика.
Напоследок
Если вы ищете проект, который объединяет простор, комфорт, безопасность и современный стиль жизни, одноэтажный дом 27х15 на 341 м2 за 16 649 283 рублей станет идеальным выбором. Рациональное использование площади, удобное расположение помещений и высокая функциональность позволят вам наслаждаться каждым днем в вашем новом доме. Такая недвижимость – инвестиция в комфорт и уют на многие десятилетия вперед.


























