Дом ВС-126: Обзор одноэтажного дома площадью 190 м²
Строительство частного дома – всегда интересный и ответственный процесс, который требует продуманного подхода к выбору архитектурного проекта. Дом ВС-126 представляет собой оптимальное решение для тех, кто ищет комфортабельное, современное жилище с большим функциональным пространством на одном этаже. Общая полезная площадь дома составляет внушительные 190 квадратных метров, что позволяет вместить все необходимые жилые зоны и зоны отдыха.
Одноэтажная планировка дома обеспечивает удобство перемещения, что особенно важно для семей с маленькими детьми, пожилыми людьми или тех, кто предпочитает удобство всего на одном уровне без необходимости подниматься по лестнице. В данном проекте реализована огромная жилплощадь и несколько спален, а также продуманный дизайн и оптимальная планировка, что выделяет Дом ВС-126 среди аналогичных проектов.
Одноэтажность и преимущества такой планировки
Одноэтажные дома пользуются стабильной популярностью в частном строительстве благодаря своей функциональности и удобству. Дом ВС-126 идеально вписывается в эту категорию, предлагая своим владельцам комфорт на большей площади без необходимости использования лестниц и дополнительных коммуникаций на этажах.
Главные преимущества одноэтажного дома заключаются в лёгкости эксплуатации и обслуживании всех систем, равномерном распределении освещения и вентиляции, а также в более качественном взаимодействии всех помещений между собой. Это особенно актуально для больших семей, поскольку в проекте предусмотрено не менее пяти спален, что позволяет организовать личное пространство для каждого члена семьи.
Практичность использования
Одно этаж избавляет владельцев от сложностей с безопасностью при эксплуатации лестничных маршей и облегчает эвакуационные мероприятия в случае непредвиденных ситуаций. Кроме того, эта планировка упрощает последующие ремонтные работы и адаптацию под нужды жильцов с ограниченными возможностями.
Экономия на строительстве
Несмотря на большую полезную площадь, строение с одним этажом зачастую обходится дешевле в плане фундамента и кровли, так как отсутствуют межэтажные перекрытия и лестничные конструкции. Тем не менее, проект дома ВС-126 обеспечивает максимальное просторное жилое пространство и удобство при разумном бюджетном подходе, что является весомым аргументом в пользу выбора именно такого дома.
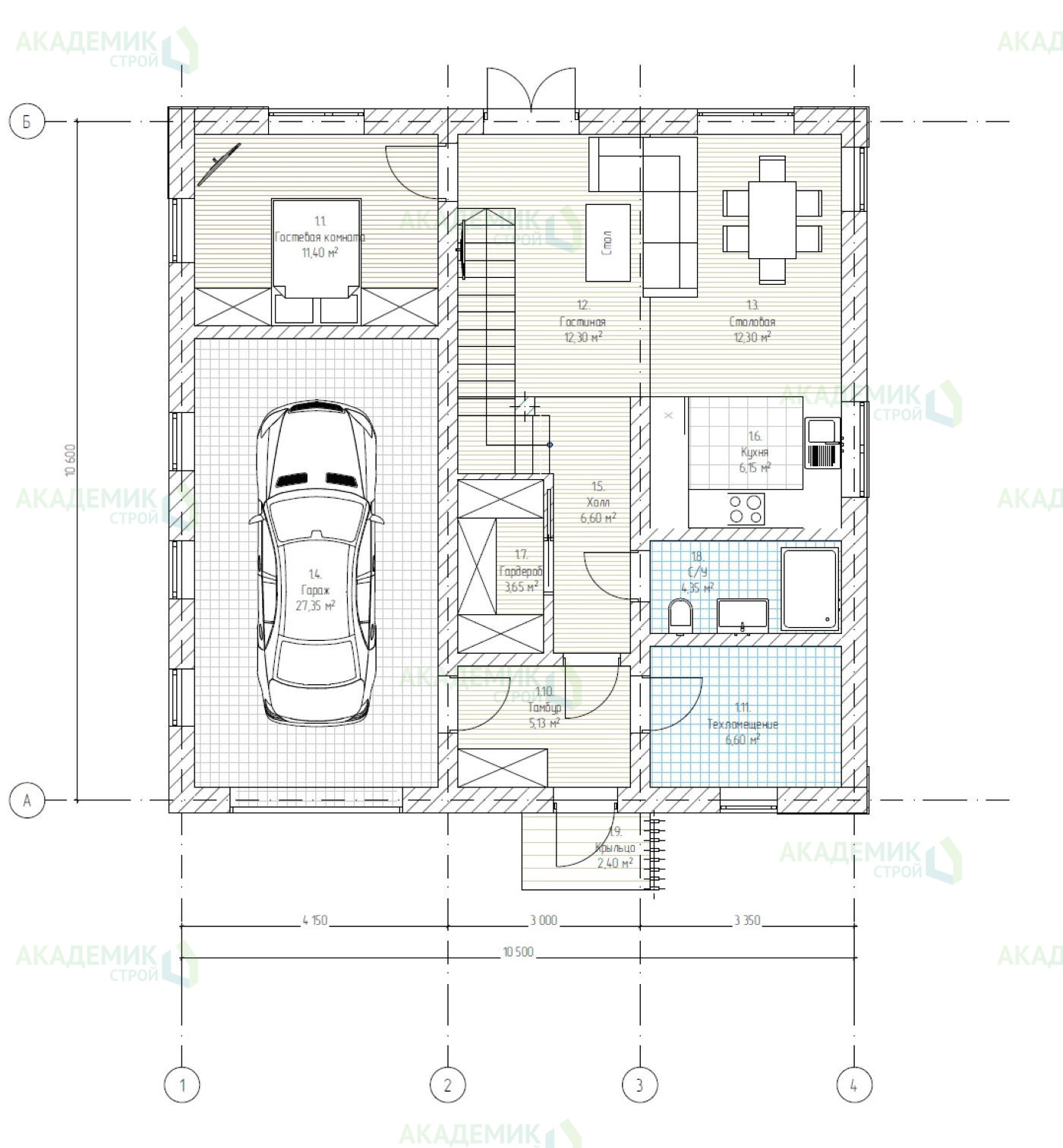
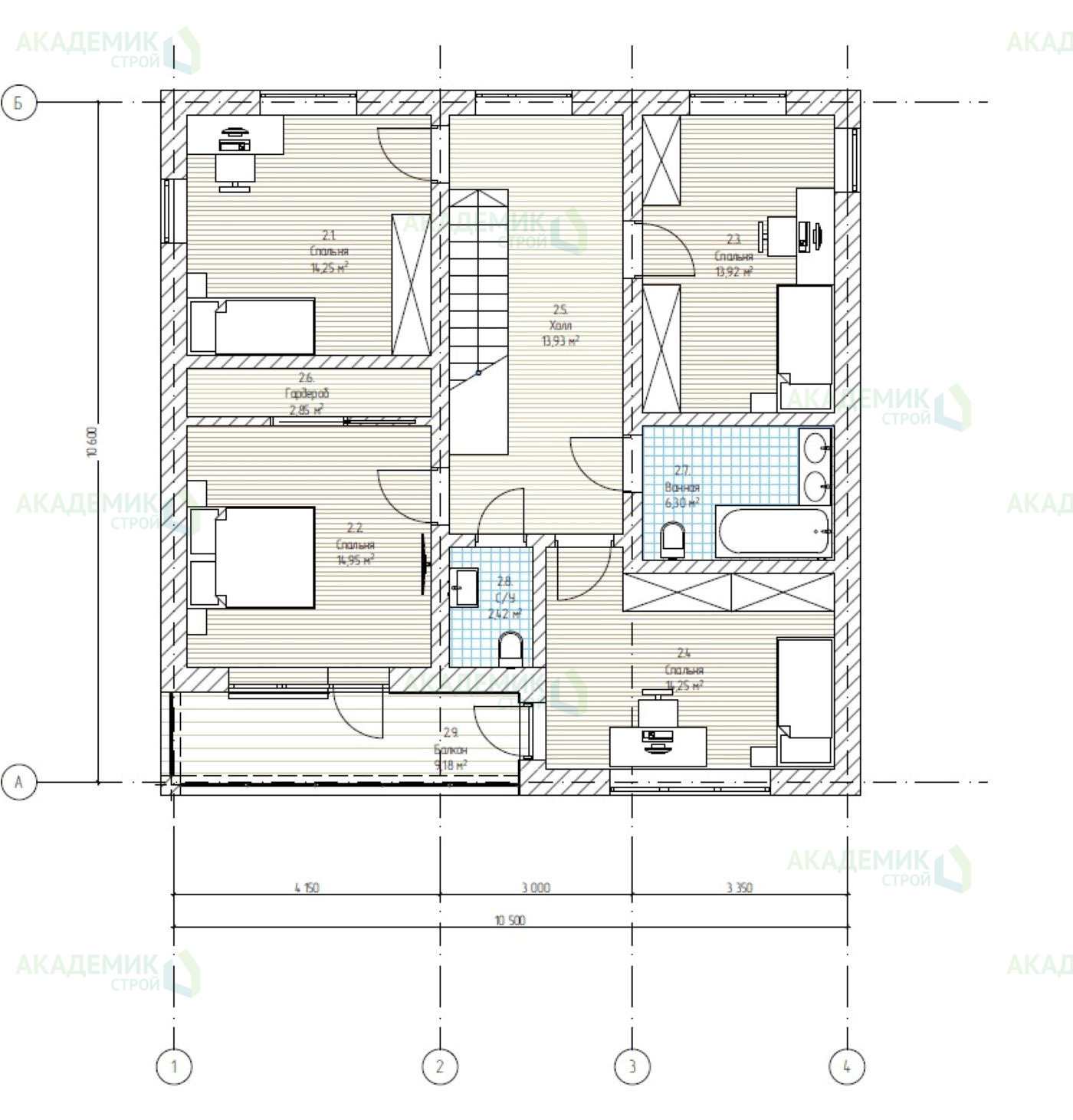
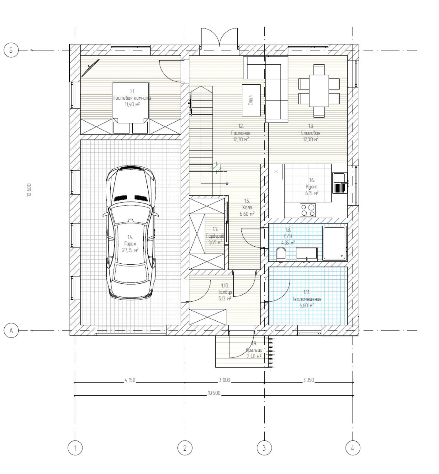
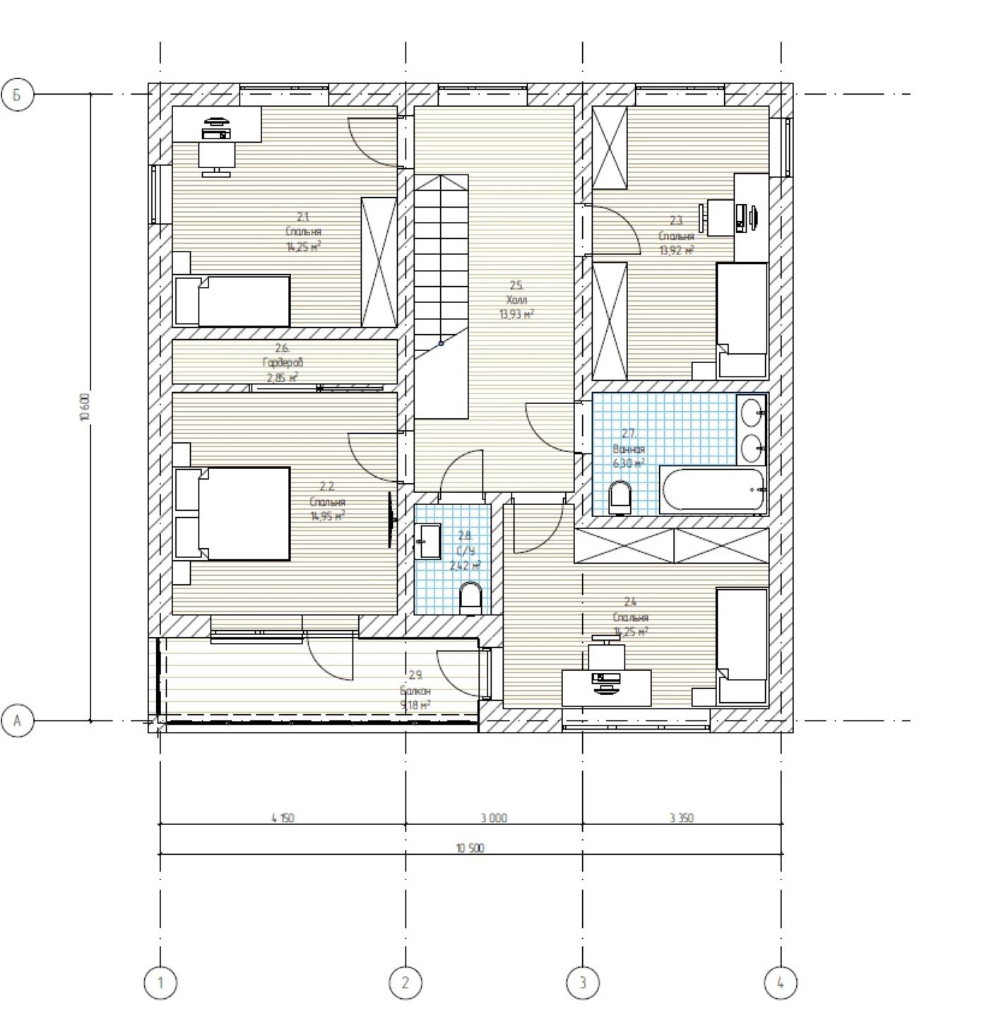
Планировка и жилые зоны: 5+ спален и 3 санузла
Одной из ключевых особенностей дома ВС-126 является наличие более пяти спален и трёх санузлов. Это указывает на ориентир семей с большим количеством членов или тех, кто ценит личное пространство каждого проживающего, а также приёмы гостей с комфортом.
Комфортное размещение семьи
Пять и более спален дают возможность спроектировать не только спальни для взрослых и детей, но и гостевые комнаты, кабинет или даже мастерскую. Такая вариативность позволяет гибко использовать жилое пространство в зависимости от потребностей семьи и даже планировать перепланировки без значительных затрат.
Санузлы – отдельная забота о комфорте
Три санузла – это идеальный показатель для просторного дома. Владельцы смогут избежать очередей по утрам и вечерам, а также организовать дополнительные ванные комнаты для гостей. Это особенно важно в больших семьях или при проведении мероприятий с приходом большого количества посетителей.
Распределение санузлов
- Основной санузел рядом со спальней родителей
- Санузел, доступный из зоны детских спален
- Гостевой санузел в общественной зоне дома
Общая концепция и использование пространства
С учётом большой площади (190 м²), Дом ВС-126 предлагает не только спальни и санузлы, но и просторные зоны гостиной, столовой и кухни, объединённые или разнесённые по смыслу и функционалу. Такая схема позволяет создавать уютную атмосферу и поддерживает комфорт внутри дома круглый год.
Общественные зоны
Гостиная и кухня, вероятнее всего, выполнены в формате открытой планировки, что является современным трендом в частном строительстве. Это оптимизирует использование площади, а также облегчает коммуникацию членов семьи и восприятие пространства.
Дополнительные помещения
Большая площадь позволяет разместить дополнительные полезные помещения – гардеробные, котельную, кладовые или даже тренажёрный зал. Это значительное преимущество, увеличивающее удобство и функциональность дома.
Экономика строительства: стоимость дома ВС-126 – 6 998 157 рублей
Цена строительства дома площадью 190 м², рассчитанная в 6 998 157 рублей, является разумной и конкурентоспособной для частного сектора. Этот показатель отражает использование качественных материалов, оптимальных технологий и выгодное планировочное решение.
Что входит в стоимость?
Как правило, в стоимость включены фундаменты, стены, кровля, внутренняя и внешняя отделка, основные инженерные коммуникации и монтаж оборудования. Такая прозрачность бюджета помогает владельцам контролировать расходы и планировать дальнейшие вложения, например, в оформление интерьеров или благоустройство участка.
Экономия и вложение в качество
Стоимость в пределах 7 миллионов рублей – хорошее сочетание между экономичностью и использованием современных строительных решений. Оптимизация расходов достигается благодаря одноэтажной конструкции, что снижает затраты на материалы и работы по сравнению с многоэтажными домами аналогичной площади.
Важные технические особенности
Хотя в параметрах отсутствуют данные о размерах, площади застройки или углах наклона крыши, можно предположить, что дом ВС-126 построен с учётом актуальных строительных стандартов и инженерных норм. Эти характеристики напрямую влияют на долговечность конструкции, комфорт проживания и эстетический облик.
Материалы и технологии строительства
Для домов подобного класса интенсивно используются современные энергоэффективные материалы – газобетон, пеноблоки или кирпич высокого качества, а также утеплители последнего поколения. Это позволяет добиться оптимального микроклимата внутри помещений и снизить затраты на отопление.
Кровля и защита дома
Хотя данные о типе и угле наклона крыши отсутствуют, традиционно для одноэтажных домов применяются кровельные системы с удобной приёмкой осадков и высокой долговечностью. Использование современных кровельных материалов, таких как металлопрофиль, композитная черепица или гибкая черепица, способствует защите конструкции и обеспечивает привлекательный внешний вид.
Таблица характеристик дома ВС-126
| Параметр | Характеристика |
|---|---|
| Полезная площадь | 190 м² |
| Этажность | 1 этаж |
| Количество спален | 5+ |
| Количество санузлов | 3 |
| Стоимость строительства | 6 998 157 рублей |
Советы по выбору участка и ландшафтному дизайну
Для оптимального размещения дома ВС-126 важно подобрать участок соответствующей площади и конфигурации, который позволит реализовать все плюсы этой просторной одноэтажной постройки. Идеальный участок должен иметь достаточные размеры для размещения дома, а также пространство для организации зоны отдыха, сада или хозяйственных построек.
На территории участка воплощается и ландшафтный дизайн, который сможет подчеркнуть архитектурный стиль дома и добавить комфорт жильцам. Рекомендуется продумать удобные подъездные пути, зоны для барбекю, детскую площадку и зеленые насаждения, создающие уют и благоприятную экологию.
Рекомендации по планированию участка
- Выбирать участок с минимальным уклоном для упрощения строительства и минимизации затрат на подготовительные работы
- Располагать главный вход и окна так, чтобы обеспечить максимальное естественное освещение и оптимальную ориентацию по сторонам света
- Обустраивать отдушины и систему вентиляции для сохранения комфорта внутри дома даже в жаркую погоду
Инженерные коммуникации в одноэтажном доме ВС-126
Надёжность дома напрямую зависит от правильно спроектированных и выполненных инженерных систем. В доме ВС-126 стоит обратить внимание на качественные решения в области отопления, водоснабжения, электроснабжения и вентиляции.
Одноэтажная конструкция упрощает прокладку коммуникаций, а современные технологии позволяют существенно повысить энергоэффективность здания и снизить эксплуатационные расходы. Продуманная система освещения и использование «умных» решений дают владельцам решающее преимущество в удобстве жизненного пространства.
Отопление и энергосбережение
Рекомендуется использование комбинированных систем отопления, например, газового котла в сочетании с тёплыми полами и радиаторами для равномерного прогрева всего дома. Это обеспечит высокую эффективность и комфорт при минимальных затратах.
Безопасность и удобство
Система безопасности может включать видеонаблюдение, сигнализацию и автоматические системы контроля доступа. Кроме того, расположение санузлов и помещений ориентировано на максимум удобства и практичности для жильцов.
Почему Дом ВС-126 – Лучший выбор для большой семьи?
Если вы ищете просторное и современное жильё, которое сможет вместить семью из 5 и более человек, дом ВС-126 станет отличным решением. Его планировка и большое число спален одновременно с тремя санузлами позволяют создать комфортные условия для каждого члена семьи, не ущемляя личного пространства.
Одноэтажность не только повышает удобство передвижения внутри дома, но и снижает затраты на строительство и эксплуатацию. Данный проект гарантирует качественное исполнение всех строительных задач и соответствует современным стандартам жилья.
Ключевые преимущества для большой семьи
- Максимальное количество спален для комфортного проживания
- Наличие трёх полных санузлов исключает бытовой дискомфорт
- Просторные общественные зоны способствуют семейному общению и отдыху
- Одноэтажная планировка облегчает доступ для всех поколений
- Оптимальная стоимость строительства за большой объем полезной площади









 — без лого_Страница_1/798949072.jpg)
 — без лого_Страница_2/2702309683.jpg)
 — без лого_Страница_3/1841035693.jpg)
 — без лого_Страница_4/1736372404.jpg)
 — без лого_Страница_5/2882859050.jpg)
 — без лого_Страница_6/626784201.jpg)
 — без лого_Страница_7/3924948823.jpg)