Введение в проект дома ВС-125
Строительство частного дома — это всегда значимое событие в жизни семьи. Важно выбрать такой проект, который максимально соответствует вашим потребностям, стилю жизни и бюджету. Сегодня мы рассмотрим одноэтажный дом ВС-125 общей полезной площадью 197 м² по цене 7 302 320 рублей. Этот проект прекрасно подходит для тех, кто мечтает о просторном, комфортном и функциональном жилье без излишних затрат.
Одноэтажные дома пользуются стабильной популярностью благодаря своей удобной планировке, простоте строительства и меньшим операционным расходам. Дом ВС-125 — именно такой вариант, который позволяет совместить комфорт и рациональное использование пространства. В данной статье мы подробно разберём все аспекты этого проекта, чтобы вы смогли принять взвешенное решение.
Общая характеристика дома ВС-125
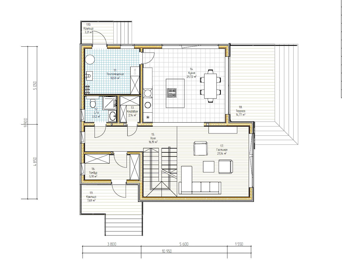
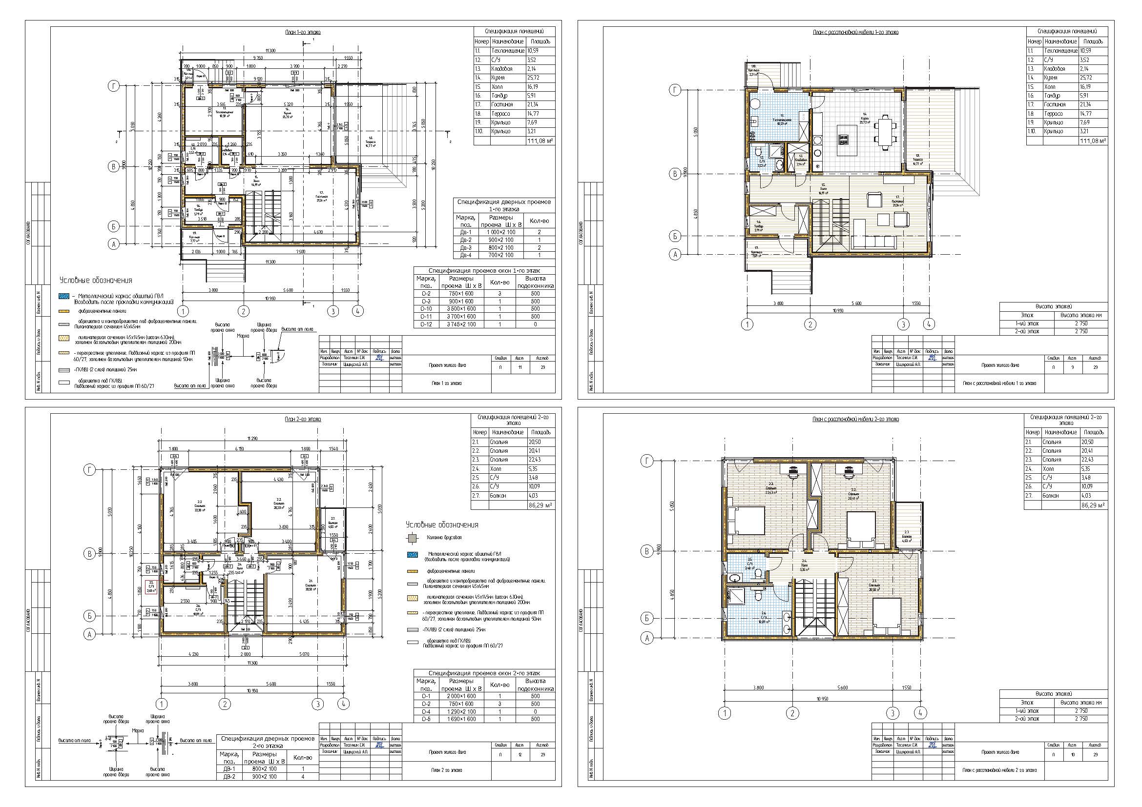
Проект дома ВС-125 предлагает полезную площадь в 197 квадратных метров. Это весьма внушительный показатель для одноэтажного дома, позволяющий разместить все необходимые функциональные зоны без ущерба комфорту и простору.
Наличие одного этажа подразумевает, что все комнаты и хозяйственные помещения расположены на одном уровне. Это удобно для семей с детьми и пожилыми людьми, а также облегчает уход и обслуживание дома в будущем.
Размеры и габариты
Хотя точные размеры дома не указаны, одноэтажный формат и полезная площадь в 197 м² предполагают вполне просторное, но при этом компактное и удобное жилое пространство, не перегруженное лишними элементами и идеально вписывающееся в участок средней площади. Важно учитывать, что такой дом требует соответствующего участка, чтобы обеспечить комфортное окружение и возможные зоны отдыха на открытом воздухе.
Ценовой аспект
Стоимость строительства дома ВС-125 составляет 7 302 320 рублей. Эта цифра отражает соотношение качества материалов, работ и современного проекта. В сравнении с другими одноэтажными домами данной площади, цена вполне конкурентоспособна и укладывается в средний сегмент рынка загородного жилья, что делает ВС-125 привлекательным вариантом для тех, кто хочет получить максимум за свои деньги.
Планировка дома: оптимальное распределение пространства
Одной из главных особенностей проекта дома ВС-125 является продуманное зонирование жилого пространства. Площадь позволяет проявить максимальный комфорт и уединение для каждого члена семьи.
Количество спален
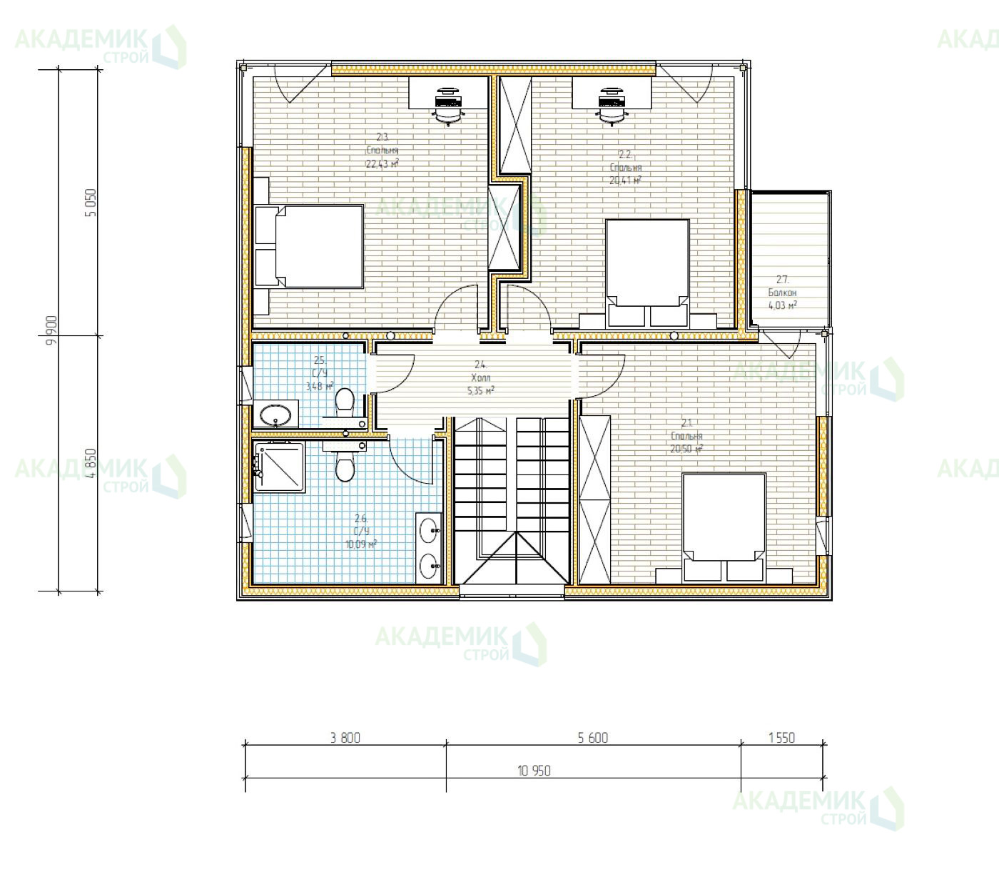
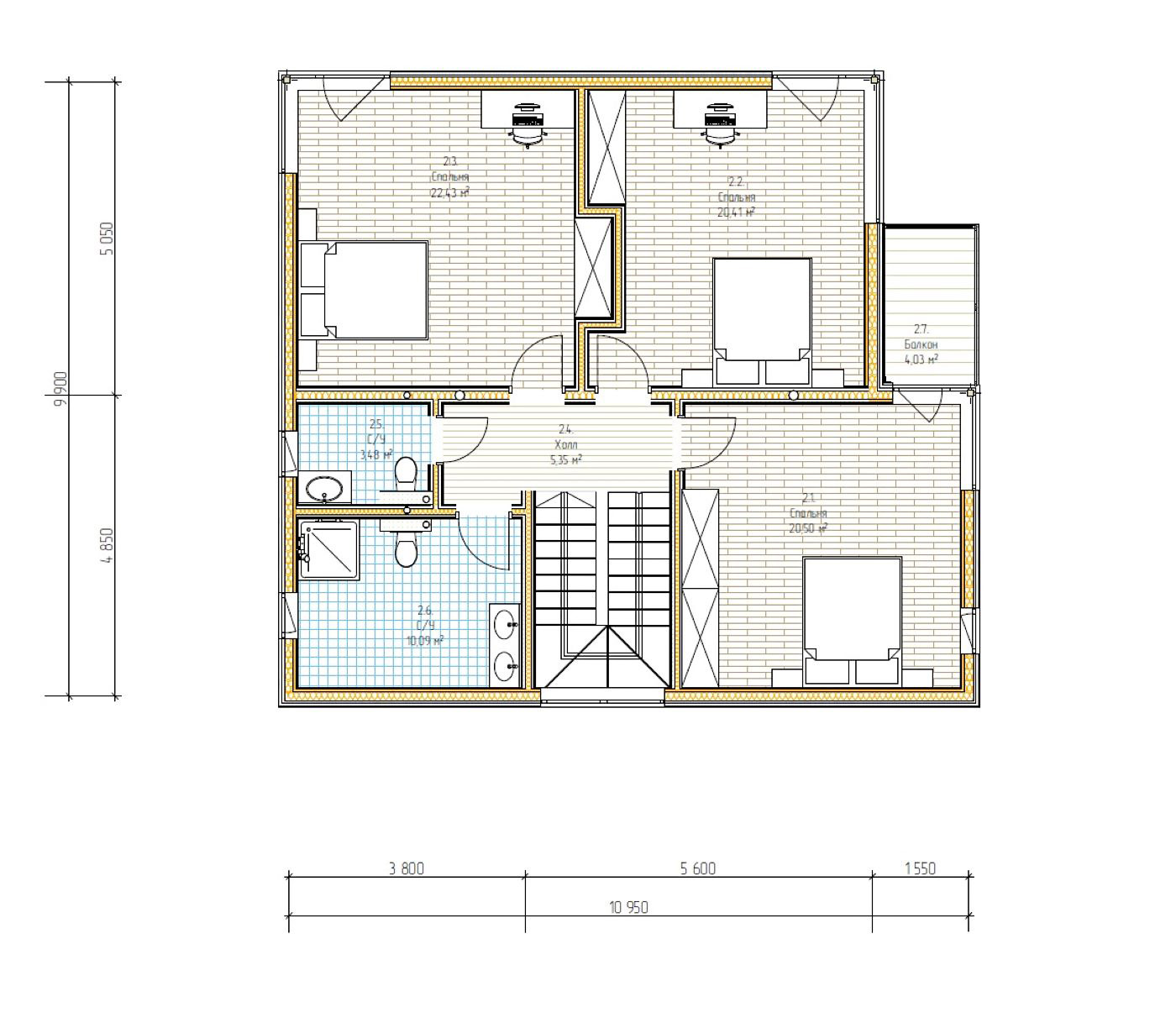
В доме предусмотрено 3 спальни. Это оптимальное количество для типичной семьи из 3-5 человек, позволяет каждому иметь собственное пространство для отдыха и личных вещей. Размещение спален может быть гибким — как личные комнаты для детей, так и родители могут выделить для себя отдельную зону.
Санузлы и удобства
Наличие трёх санузлов — это ещё один весомый плюс проекта. В больших семьях или при визитах гостей это значительно повышает уровень комфорта, устраняет очередь в утреннее время и облегчает бытовые моменты. Высокая функциональность санузлов будет оценена по достоинству.
Основные преимущества трёх санузлов
- Комфорт и приватность для всех членов семьи.
- Отсутствие необходимости в согласовании времени для пользования ванной или туалетом.
- Возможность выделить отдельный гостевой санузел.
- Повышение общей стоимости дома при продаже или аренде.
Функциональность и комфорт: что предлагает дом ВС-125?
Строя дом, каждый хочет получить максимально удобное и функциональное жильё. Проект ВС-125 именно с этим и связан — оптимальное соотношение жилых и хозяйственных зон способствует созданию дома, который отвечает современным требованиям.
Выбор одноэтажного варианта
Одноэтажные домаhistorически считаются более простыми в эксплуатации. Отсутствие лестниц — это комфорт для всех возрастов, сокращение затрат на строительство и обслуживание коммуникаций, а также повышение безопасности для детей и пожилых. Кроме того, одноуровневая структура даёт возможность реализовать открытую планировку, объединяющую гостиную, кухню и столовую.
Возможности для зонирования
197 квадратных метров позволяют четко разделить дневную и ночную зоны. Обычно спальни располагаются в укромной части дома, вдали от шумных зон. Гостиная с кухней может быть объединена в одно большое пространство, что создаёт ощущение простора и комфортного общения для всей семьи.
Архитектурные особенности и стиль
Несмотря на то, что точные данные о внешнем облике дома ВС-125 отсутствуют, можно предположить, что он выполнен в современном стиле, сочетающем лаконичность форм и функциональность. Одноэтажные дома часто имеют приглушённую цветовую гамму, большие окна для естественного освещения и удобные входные группы.
Грамотное проектирование обеспечивает гармоничное сочетание внутреннего и внешнего пространства, что создаёт атмосферу уюта и тепла. Особенно востребованы сегодня решения, где особое внимание уделяется энергоэффективности и экологичности материалов.
Преимущества одноэтажной архитектуры
- Удобство эксплуатации и уборки.
- Возможность осуществлять все ремонтные работы без подъемов по лестнице.
- Проще реализовать проекты с открытыми террасами или летними верандами.
- Безопасность для детей и пожилых жителей.
Материалы и качество строительства
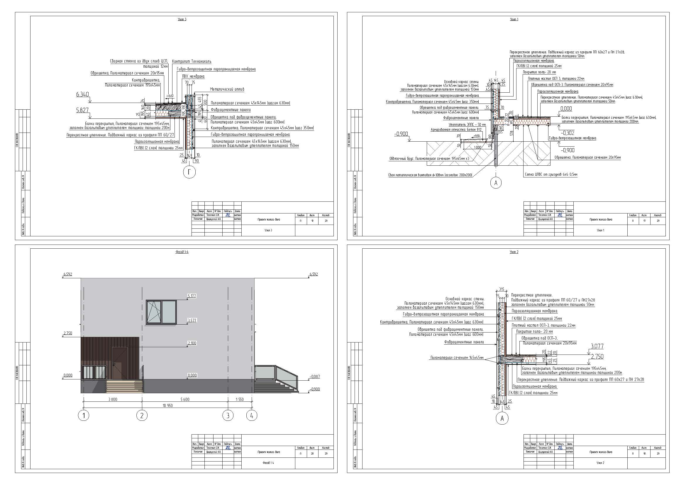
Проект ВС-125 подразумевает современные строительные технологии и использование качественных материалов, что обеспечивает долговечность, теплоизоляцию и комфорт в доме. При выборе материалов уделяют внимание не только прочности, но и экологической безопасности, что важно для здоровья всей семьи.
Высокий уровень отделки и инженерных систем способствует минимизации затрат на дальнейшее обслуживание и сокращает время эксплуатации дома.
Энергоэффективность и экологичность
Современные материалы и технологии позволяют сделать строение максимально теплоэффективным, что снижает расходы на отопление и кондиционирование. Это особенно важно в условиях климата с выраженными сезонными перепадами температуры.
Стоимость строительства и экономическая целесообразность
Стоимость строительства дома ВС-125 составляет 7 302 320 рублей. Этот бюджет охватывает весь комплекс работ — от подготовки участка и проектирования до отделки и подключения коммуникаций. Сочетание площади, наличия трёх санузлов и трёх спален, а также одноэтажного формата, делает этот проект конкурентным по цене в своем сегменте.
Что входит в стоимость?
| Позиция | Описание |
|---|---|
| Фундамент | Закладка и усиление основания с учетом грунтовых условий |
| Коробка дома | Возведение стен, перекрытий и кровли |
| Крыша | Монтаж кровельного покрытия и гидроизоляция |
| Инженерные системы | Подключение электрики, водоснабжения и канализации |
| Отделка | Внутренняя и внешняя отделка стен, полов и потолков |
| Окна и двери | Установка энергосберегающих окон и входных дверей |
Финансовые преимущества
- Снижение затрат за счёт оптимальной площади дома.
- Экономия на отоплении и охлаждении благодаря современным материалам.
- Отсутствие гаража и дополнительных построек как возможность экономии.
- Использование современных технологий, которые сокращают сроки строительства.
Кому подойдёт дом ВС-125: целевая аудитория
Данный проект идеально подходит для семей, которые ищут просторный, но удобный одноуровневый дом с тремя спальнями и несколькими санузлами. Такие параметры позволяют комфортно разместить всех членов семьи, обеспечив каждому достаточный уровень приватности и удобств.
Этот дом также отлично подойдёт людям, ценящим простоту эксплуатации без необходимости подниматься по лестницам, включая пожилых людей и семьи с маленькими детьми. Стоимость проекта делает его привлекательным вариантом для тех, кто хочет получить современное комфортное жильё с хорошим соотношением цена/качество.
Практические советы для покупателей и застройщиков
Перед тем как приступать к строительству любого дома, включая проект ВС-125, важно тщательно проанализировать особенности участка, грамотно подобрать материалы и составить детальный план работ. Особое внимание стоит уделить инженерным сетям — качественная разводка коммуникаций исключит множество проблем в будущем.
Рекомендуется сотрудничать с профессиональными архитекторами и строителями для адаптации проекта под конкретные условия участка и пожелания заказчиков.
Основные рекомендации
- Обследовать участок на предмет грунтов и коммуникаций.
- Проконсультироваться с инженером по отоплению и вентиляции.
- Подумать об оптимальном варианте отделочных материалов с точки зрения долговечности и энергоэффективности.
- Планировать внутреннюю отделку с учётом ваших личных предпочтений и стиля жизни.
- Включить в проект дополнительные удобства по мере необходимости.
Заключительные мысли о доме ВС-125
Дом ВС-125 — это современный, просторный и комфортный одноэтажный дом площадью 197 м², идеально подходящий для большой семьи или тех, кто хочет максимально использовать пространство одного уровня. Три спальни и три санузла гарантируют высокий уровень удобства и приватности, а стоимость в 7 302 320 рублей делает этот проект доступным и выгодным вложением.
Одноэтажная конструкция минимизирует эксплуатационные расходы и повышает безопасность, что делает дом универсальным решением для различных категорий жильцов. Если вы планируете строительство комфортного и функционального частного дома, проект ВС-125 обязательно стоит рассмотреть как один из лучших вариантов на рынке.










 — без лого_Страница_1/1142117648.jpg)
 — без лого_Страница_2/3399242483.jpg)
 — без лого_Страница_3/104223341.jpg)
 — без лого_Страница_4/217275252.jpg)
 — без лого_Страница_5/3227081706.jpg)
 — без лого_Страница_6/1322671113.jpg)
 — без лого_Страница_7/2189188247.jpg)
 — без лого_Страница_8/1532775995.jpg)