Обзор дома ВС-123: современный одноэтажный дом с продуманной планировкой
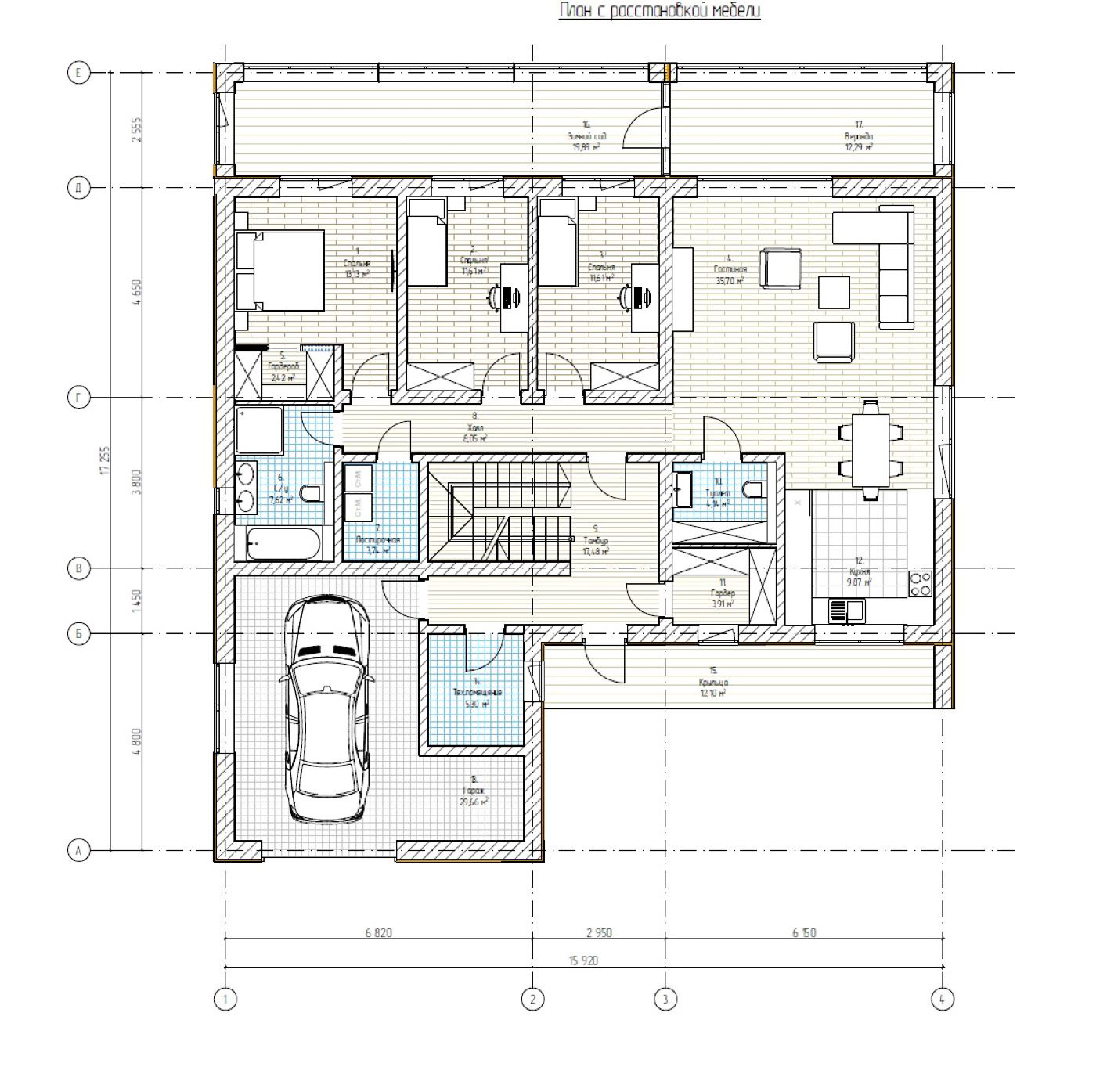
Дом ВС-123 — это пример удачного сочетания комфорта, функциональности и эстетики в одном проекте. Представляя собой одноэтажное строение с площадью 208 м2, этот дом идеально подходит для семей, ценящих простор и удобство в каждом квадратном метре жилого пространства. Такой формат домов становится всё более востребованным, поскольку позволяет эффективно организовать зоны отдыха, работы и общения, исключая осложнения, связанные с лестницами и дополнительными этажами.
При проектировании дома ВС-123 особое внимание уделялось удобству эксплуатации и эргономике. Каждый метр используется с максимальной отдачей: от вместительных комнат до продуманных технических помещений и оптимального размещения санузлов. Это делает дом привлекательным как для постоянного проживания, так и для загородного отдыха.
Архитектурные особенности и планировка одноэтажного дома
Общая полезная площадь дома составляет внушительные 208 квадратных метров, что позволяет разместить внутри достаточно просторных и светлых комнат. Одноэтажный формат обеспечивает удобство перемещения внутри дома, что особенно актуально для семей с пожилыми людьми или маленькими детьми.
Количество и расположение спален
Три полноценных спальни — ключевая особенность проекта ВС-123. Каждая из них обладает достаточной площадью для комфортабельного отдыха и личного пространства. Такая конфигурация позволяет создать отдельные зоны для взрослых и детей или выделить гостевую комнату.
Сделанное в проекте внимание к спальным помещениям отражается не только в их размерах, но и в расположении относительно остальных зон дома. Обычно спальни располагаются в тихой части дома, что снижает уровень шума и обеспечивает спокойствие ночью.
Санузлы и их роль в комфорте дома
В доме предусмотрено два санузла, что значительно повышает удобство проживания большой семьи или группы жильцов. Наличие двух санузлов минимизирует очереди в утренние часы и снижает стресс, связанный с ограничением ресурсов. Кроме того, отдельный гостевой санузел – это дополнительный плюс для приема гостей и организации мероприятий.
Преимущества одноэтажной архитектуры
Одноэтажный дом имеет ряд неоспоримых преимуществ, особенно в сравнении с многоэтажными аналогами. Отсутствие лестниц делает дом максимально удобным и безопасным для всех членов семьи. Аллергикам, людям с ограниченной подвижностью и пожилым жильцам значительно проще и комфортнее перемещаться внутри помещения.
Кроме того, строительство одного этажа обычно обходится дешевле в части инженерных коммуникаций: нет необходимости в дорогих лестничных конструкциях, системах безопасности, дополнительных линиях отопления и вентиляции для верхних этажей.
Энергетическая эффективность
Одноэтажные дома традиционно проще и эффективнее в плане отопления и кондиционирования. Дом ВС-123 — не исключение. Умелое расположение комнат и продуманная система утепления позволяют оптимизировать энергозатраты, что немаловажно в современных условиях роста цен на коммунальные услуги.
Функциональные зоны внутри дома ВС-123
В доме выделяются ключевые функциональные зоны, которые создают комфорт для всех членов семьи и их гостей. Прежде всего, это гостевая зона — просторная и светлая, объединяющая гостиную с обеденной зоной и кухней. Такое решение способствует семейному общению и удобству проведения больших обедов или праздничных мероприятий.
Спальные комнаты расположены в отдельной части здания, что обеспечивает тишину и приватность. Кроме того, проект включает дополнительные технические и подсобные помещения, которые делают жизнь удобнее и упрощают повседневные задачи.
Санузлы и дополнительные помещения
Наличие двух санузлов является удачным ходом с точки зрения функционала. Один из них обычно размещается ближе к зоне спальни, предназначен для постоянного пользования жильцами, второй — гостевой, что удобно при приеме посетителей. Дополнительное пространство может быть использовано под гардеробные, кладовки или хозяйственные нужды, что позволяет поддерживать дом в порядке.
Экономическая составляющая строительства дома ВС-123
Стоимость дома ВС-123 составляет 10 671 138 рублей, что в контексте площади 208 м2 является весьма конкурентной ценой на рынке загородного жилья такого уровня. Эта сумма включает базовую комплектацию и стандартные работы по строительству, что делает данный проект привлекательным для инвестирования.
Что входит в стоимость дома?
Данная цена, как правило, охватывает всю основную работу по возведению стен, кровли, устройство фундамента и базовых инженерных систем. Кроме того, стоит учитывать, что одноэтажное строение требует меньше сложных конструкций, что дополнительно снижает затраты.
| Элемент строительства | Описание | Примерная стоимость (руб.) |
|---|---|---|
| Фундамент | Монолитная плита или ленточный фундамент | 1 500 000 |
| Стены и перекрытия | Газобетон или кирпич, утепление | 3 200 000 |
| Кровля | Металлочерепица или иной материал | 900 000 |
| Инженерные системы | Отопление, электричество, водоснабжение | 2 300 000 |
| Внутренняя отделка | Штукатурка, покраска, плитка | 2 500 000 |
| Прочее | Окна, двери, коммуникации | 271 138 |
Возможности по оптимизации бюджета
Несмотря на установленную цену, строительство дома ВС-123 предусматривает возможность корректировки сметы в зависимости от выбора материалов и степени отделки. Например, можно выбрать более экономичные варианты отделки или утепления, что снизит затраты без потери комфорта.
Современные технологии и материалы позволяют оптимизировать расходы, не жертвуя качеством и долговечностью дома. Помимо этого, грамотное планирование и привлечение профессиональных подрядчиков поможет избежать дополнительных затрат и ошибок.
Преимущества проекта дома ВС-123 для семьи
Рассматривая дом ВС-123, можно выделить ряд неоспоримых преимуществ, делающих его оптимальным выбором для семейного проживания. Просторная площадь в 208 м2 позволяет комфортно разместить всех членов семьи, включая зоны для работы и отдыха. Проект предусматривает три спальни, что помогает создать индивидуальные пространства для каждого.
Кроме того, наличие двух санузлов решает бытовые вопросы и обеспечивает дополнительный комфорт в повседневной жизни. Удобная одноэтажная планировка выгодно отличает дом тем, что все помещения находятся на одном уровне, что облегчает доступ к ним и повышает безопасность.
Безопасность и комфорт
Одноэтажный дом удобен также с точки зрения пожарной безопасности и экстренной эвакуации. Отсутствие лестниц упрощает передвижение детей и пожилых членов семьи, снижая риски травматизма. Кроме того, благодаря большой площади и продуманной планировке, каждый член семьи может найти себе уголок для отдыха или работы.
Возможности для организации жизни
- Просторные общие зоны для семейных мероприятий и отдыха.
- Три спальни позволяют выполнять функции гостевых и детских комнат.
- Два санузла обеспечивают удобство в повседневной жизни.
- Возможность обустроить гардеробные и места для хранения.
Рекомендации по выбору участка и расположению дома
Хотя в параметрах проекта не указаны конкретные требования к минимальной ширине и длине участка, устройство одноэтажного дома с площадью 208 м2 требует значительной площади земельного участка для комфортного расположения здания, зон отдыха на открытом воздухе и необходимого отступа от границ соседних участков.
При выборе участка для строительства дома ВС-123 важно учитывать не только площадь, но и рельеф, уровень грунтовых вод, а также наличие коммуникаций. Идеальный участок позволит реализовать все преимущества проекта и создать гармоничное пространство для жизни.
Расположение дома на участке
Одноэтажный дом с большой площадью нуждается в правильном ориентировании по сторонам света для максимального естественного освещения. Важно учесть также доступ к подъездным путям, соседним строениям и коммуникативной инфраструктуре.
Варианты отделки и материалы для дома ВС-123
Качество и вид отделки существенно влияют на внешний вид дома, долговечность и уют внутри помещений. В проекте предусмотрено использование современных, экологически чистых материалов, которые обеспечивают теплоизоляцию, прочность и красивый внешний вид.
Материалы стен и фасада
Для возведения стен дома ВС-123 применяются высококачественные газоблоки или кирпич, которые характеризуются хорошими теплоизоляционными свойствами. Фасад можно облицевать декоративной штукатуркой, натуральным деревом или фасадными панелями для придания дому индивидуального стиля.
Кровельные материалы
Выбор кровли — важный элемент в строительстве. Металлочерепица, гибкая битумная черепица или фальцевая кровля позволяют обеспечить надежную защиту от осадков и ветра, а также обеспечить привлекательный внешний вид дома. Правильное устройство кровли также способствует увеличению срока службы дома и снижению затрат на ремонт.
Внутренняя отделка
Для внутренней отделки рекомендуются материалы, отвечающие требованиям экологии и комфорта. В местах с повышенной влажностью — керамическая плитка и влагостойкие материалы, в жилых комнатах — натуральное дерево и экологически безопасные краски. Благодаря этому создается здоровая и уютная атмосфера в доме.
Дом ВС-123: идеальный выбор для комфортной жизни
Дом ВС-123 является отличным решением для тех, кто ищет просторный, функциональный и эргономичный одноэтажный дом. С учетом современных требований к строительству, комфорту и экономии расходов, этот проект способен удовлетворить запросы семьи любого размера и образа жизни.
Продуманная планировка с тремя спальнями, двумя санузлами и общей площадью в 208 м2 делает жилье комфортным и безопасным. При оптимальном бюджете в чуть более 10 миллионов рублей вы получаете качественный и долговечный дом с потенциалом для создания собственного уюта и счастливых семейных традиций.










 — без лого_Страница_1/1845259513.jpg)
 — без лого_Страница_2/3815992090.jpg)
 — без лого_Страница_3/802777988.jpg)
 — без лого_Страница_4/622617245.jpg)
 — без лого_Страница_5/3921043971.jpg)
 — без лого_Страница_6/1731814880.jpg)
 — без лого_Страница_7/2878563710.jpg)
 — без лого_Страница_8/1924364242.jpg)