Одноэтажный дом 90.79 м2 за руб.

ID-146588

Стоимость дома 3635570 руб.

Планировки

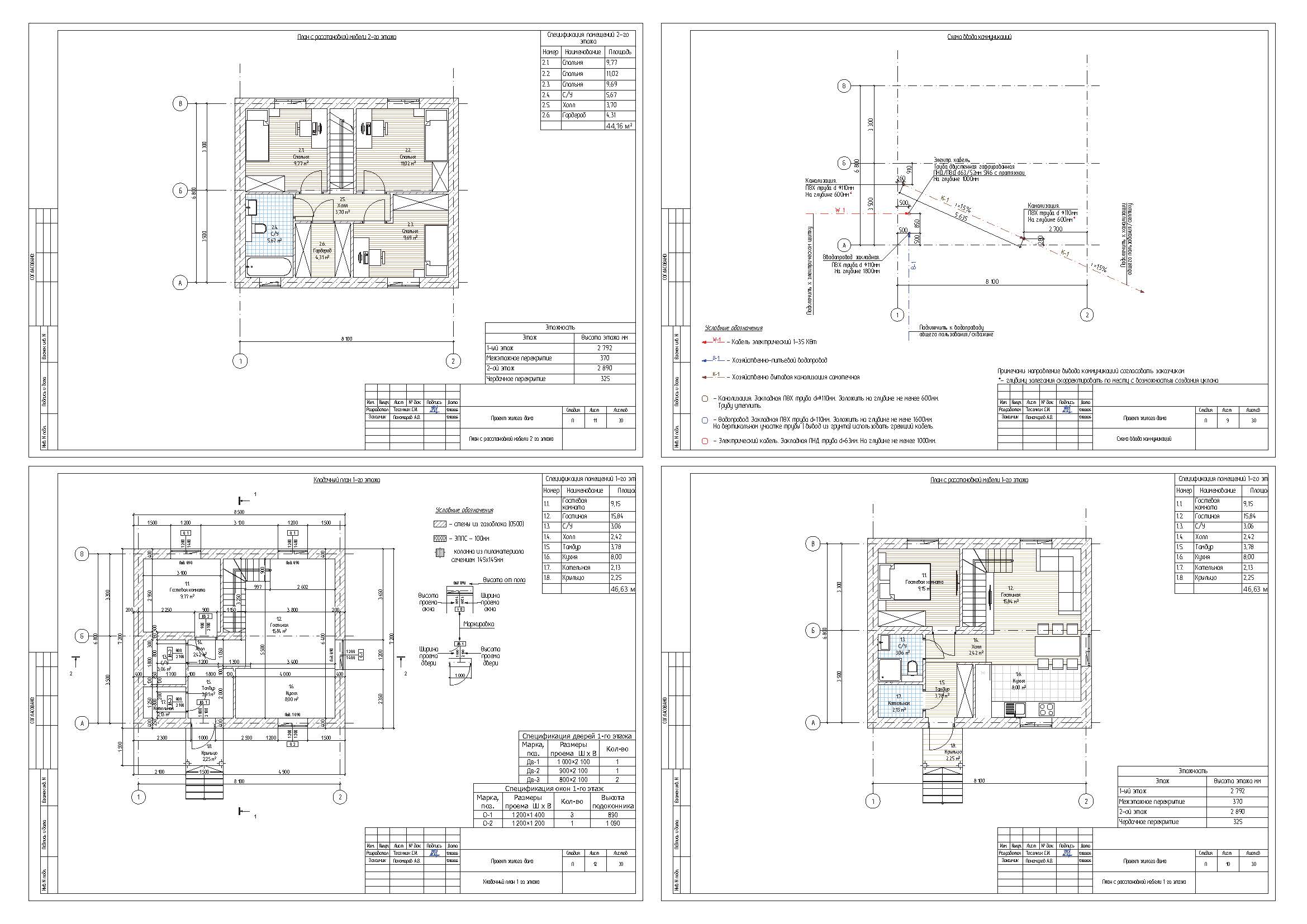
План первого этажа

floor image
  • 1. Гостевая 9,15 m²
  • 2. Гостиная 15,84 m²
  • 3. Санузел 3,06 m²
  • 4. Тамбур 3,78 m²
  • 5. Кухня 8,00 m²
  • 6. Котельная 2,13 m²
  • 7. Крыльцо 2,25 m²
  • Общая площадь 1 этаж 46,63 m²

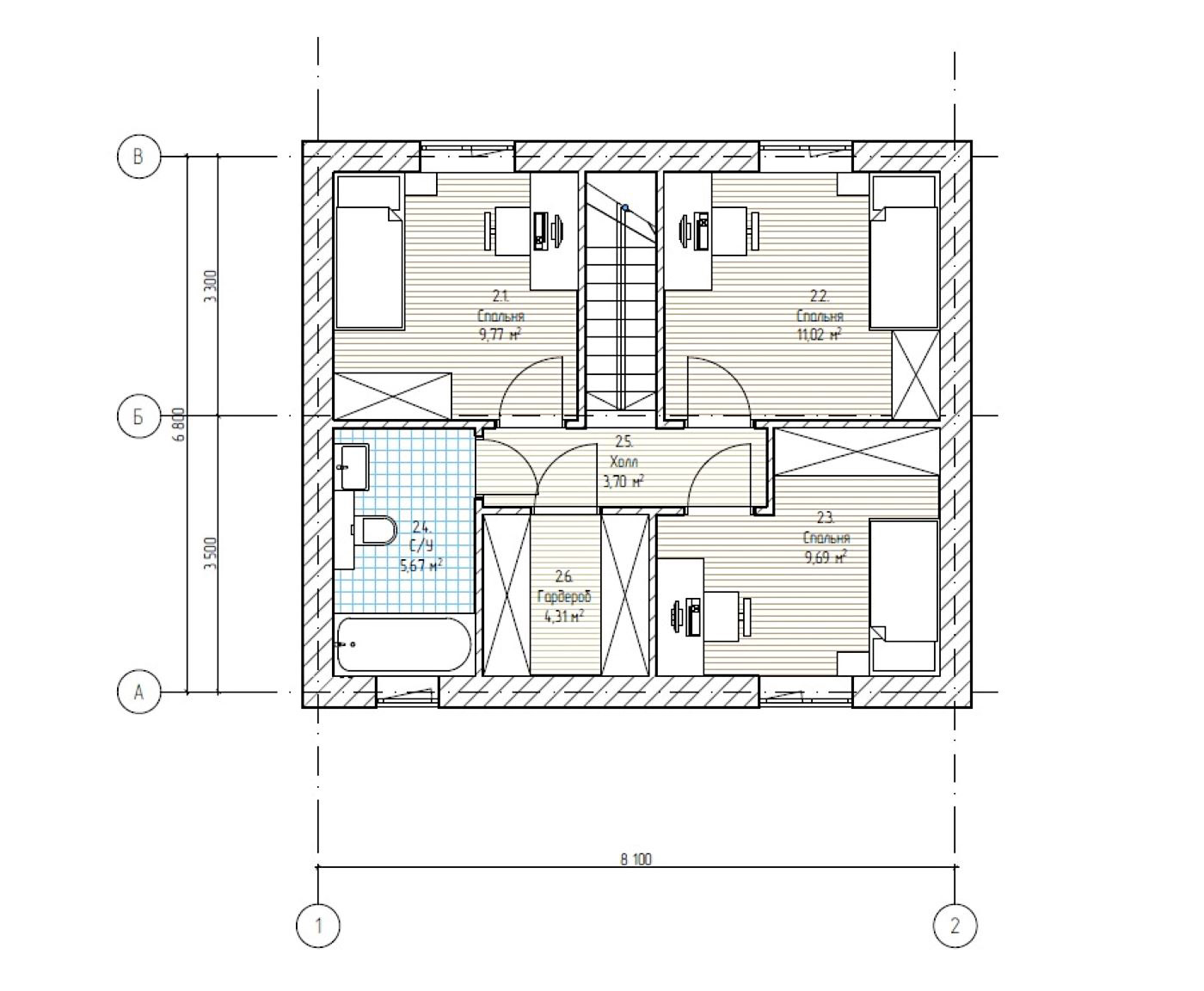
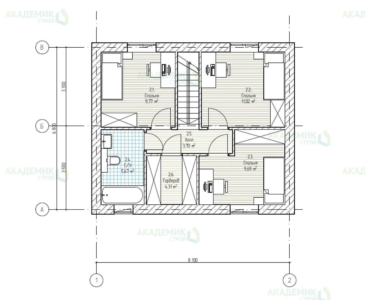
План второго этажа

floor image
  • 1. 1 Комната 9,77 m²
  • 2. 2 Комната 11,02 m²
  • 3. 3 Комната 9,96 m²
  • 4. Санузел 5,67 m²
  • 5. Холл 3,70 m²
  • 6. Гардероб 4,31 m²
  • Общая площадь 2 этаж 44,16 m²

Пояснительная записка

1. Общие данные

Проект cmpoumeльcmвa жилого дома был выполнен в coomвemcmвuu с заданием Заказчика.

Готовый проект жилого дома. Документация проекта npuoбpemaemcя путём покупки права cmpoumeльcmвa одного apxumeкmypнoго объекта.

Проект разработан на основанuu отдельного технического задания и рекомендацuu глав СНuП и СП;

  • СП 112.13330.2011 «Пожарная безопасность зданий и сооружений»;
  • СП 55.13330.2011 «Дома жилые одноквартирные»;
  • НПБ 106-95 «Индивидуальные жилые дома. Противопожарные требования»;
  • СП 54.13330.2016 "Здания жилые многоквартирные";
  • СП 131.13330.2020 «Строительная климатология»;
  • СП 50.13330.2012 «Тепловая защита зданий»;
  • СП 23-101-2004 «Проектирование тепловой защиты зданий»;

2. Архитектурно-планировочные решения

Архumекmурно-планuровочное решение разработано в coomвemcmвuu с СП 55.13330.2011 "Дома жилые однокварmuрные".

Чертежи марки АР рассматривать совместно с чертежами марки КР.

Степень огнестойкости здания -I.

За условную отметку 0,000 принята отметка чucmoго пола 1-го этажа.

Архumекmурно-планuровочные решения разработаны для следующих условий:

  • зимняя meмnepamypa наиболее холодной пяmuдневкu по клuмаmuческому району IIB, согласно СП 131.13330.2012 -28 °С;
  • наиболее холодных суток -32 °С;
  • нормаmuвная снеговая нагрузка по III району согласно СП 20.13330.2011 -180кгс/ кв. м.(1,80кПа);
  • нормаmuвный скоростной напор веmра по III району согласно СП 20.13330.2011 -23кгс/ кв.м. (О,23кПа);
  • зона влажносmu нормальная;

Проекmuруемое здание представляет собой двухэтажный жилой дом, размерами в осях 6800х8100 м. Пригодно для всесезонного проживания.

Архumекmурно-планuровочных решений, связанных с обеспечением маломобильных групп населения, не предусмотрено.

Благоусmроuсmво прилегающей meppumopuu не разрабатывается.

3. Конструктивное решение

Производство сmроumельно-ремонmных работ вecmu в coomвemcmвuu с mребованuямu СП 48.13330.2011 "Организация строительства".

СП 49.13330.2012 "Безопасность mpyдa в cmpoumeльcmвe".

Прu защumе сmроumельных конструкций коррозuu руководствоваться СП 70.13330.2012. "Защumа сmроumельных конструкций и сооружений от коррозuu".

Прu производстве работ в зимнее время следует соблюдать СП 70.13330.2012.

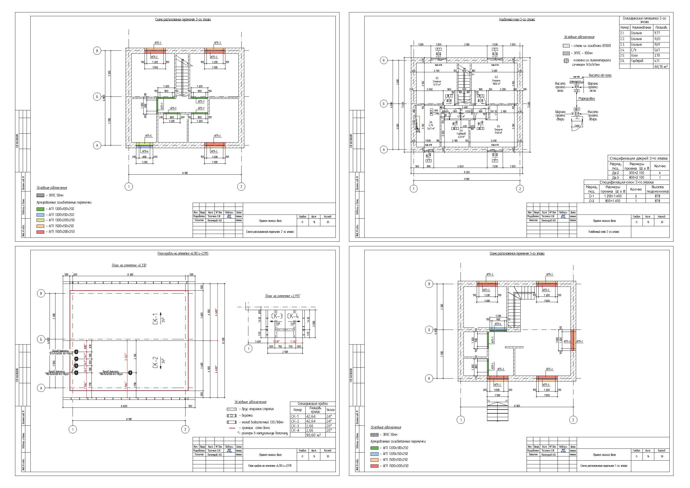
  • Конструктивная система здания стеновая (бескаркасная) с перекрестной конструктивной схемой. Пространственная жесткость обеспечивается совместной работой продольных и поперечных стен с монолитным поясом.
  • Фундамент - висячий железобетонный ростверк, и железобетонные свай 150х150мм.
  • Перекрытие пола - плиты ПБ толщиной 220мм.
  • Наружные стены газобетонные блоки 600х400х250, марки D500.
  • Внутренние несущие стены газобетонные блоки 600х300х250, марки D500. Межкомнатные перегородки из газобетонного блока 600х100х250/
  • Межэтажное перекрытие - плиты ПБ толщиной 220мм.
  • Крыша скатная по стропильной cucmeмe с uспользованuем доски 45х195, с обрешеткой 20х95мм. Кровля - профлист.
  • Водосток с крыши - организованный, внешний. Вентиляция представлена выходом вытяжки 110x160x500 ИЗ(Vilpe) и 125x160x500 ИЗ(Vilpe) на крыше дома.
  • По периметру здания выполнить утепленную бетонную отмостку шириной 1000 мм, из бетона класса В12,5. Отмостку рекомендуется устраивать после завершения отделочных работ и до наступления отрицательных температур. Предусмотреть элементы безопасносmu кровли.
  • Все конструктивные решения по согласованию с конструктором/
  • Детальную отделку помещений производить по специальному проекту интерьера. Лестница по индивидуальному проекту.

4. Охрана окружающей среды

Прu органuзацuu cmpoumeльcmвa и эксплуаmацuu жилого дома предусмаmрuваеmся следующие меропрuяmuя по охране окружающей среды:

  • сброс хозяuсmвенно-быmовых omxoдoв и стоков осуществляется в гepмemuчecкuй cenmuк споследующем вывозом по договору с коммунальными органuзацuямu;
  • уmuлuзацuя сmроumельного мусора осуществляется на разрешенные свалки;

5. Обеспечение пожарной безопасности

  • Все деревянные элементы должны быть подвергнуты огнезащumной обработке в coomвemcmвuu с mребованuямu СНиП 21-01-97 u "Пожарная безопасность зданий и сооружений".
  • Элекmроусmановкu монmuроваmь и подключать согласно требованиям "Правил ycmpoйcmвa элекmроусmановок (ПУЭ)" u государственных стандартов на элекmро усmановкu зданий, а также оборудовать их ycmpoйcmвaмu защumного отключения (УЗО).
  • Электропроводку монmuруемую по поверхносmu сmроumельных конструкций, выполнumь в кабель-каналах,не распространяющих горение.

Площади дома

№ п/п Наименование Ед. из. Строительная площадь Полезная площадь
1 1 этаж м2 57.46 46.63
2 2 этаж м2 54.42 44.16
3 Итого м2 111.88 90.79
154 м2 Полезная
площадь
1 этаж Этажей
26 м2 Террасы
и балконы
0Без
гаража
4 Количество
спален
2 Количество
санузлов

Калькулятор опций

0

В ипотеку от 12 847 ₽/мес.

Фундамент
328 875
Работа:142 334
Материалы:186 541
Дни:20
197 708
Работа:66 211
Материалы:131 497
Дни:2
333 170
Работа:133 744
Материалы:199 426
Дни:20
638 455
Работа:285 065
Материалы:353 390
Дни:30
1 071 075
Работа:393 831
Материалы:677 244
Дни:32
404 800
Работа:161 960
Материалы:242 840
Дни:20
2 540 076
Работа:1 157 968
Материалы:1 382 108
Дни:30
3 030 515
Работа:1 350 721
Материалы:1 679 794
Дни:40
105 727
Работа:26 432
Материалы:79 295
Дни:1
Перекрытие цоколя
189 250
Работа:81 277
Материалы:107 973
Дни:8
303 104
Работа:100 440
Материалы:202 664
Дни:13
540 856
Работа:221 232
Материалы:319 624
Дни:18
Стены 1 этаж (несущие)
530 813
Работа:332 576
Материалы:198 237
Дни:29
611 032
Работа:313 016
Материалы:298 016
Дни:23
940 701
Работа:577 266
Материалы:363 435
Дни:30
769 886
Работа:337 399
Материалы:432 487
Дни:45
1 439 267
Работа:317 576
Материалы:1 121 691
Дни:24
316 981
Работа:159 779
Материалы:157 202
Дни:15
173 127
Работа:93 171
Материалы:79 956
Дни:7
608 852
Работа:211 717
Материалы:397 135
Дни:7
795 261
Работа:254 074
Материалы:541 187
Дни:7
5 222 554
Работа:254 074
Материалы:4 968 480
Дни:7
2 826 926
Работа:317 576
Материалы:2 509 350
Дни:7
444 646
Работа:105 859
Материалы:338 787
Дни:7
583 875
Работа:299 867
Материалы:284 008
Дни:29
511 187
Работа:332 906
Материалы:178 281
Дни:29
583 875
Работа:299 867
Материалы:284 008
Дни:29
619 689
Работа:379 095
Материалы:240 594
Дни:23
792 089
Работа:266 761
Материалы:525 328
Дни:7
898 212
Работа:550 504
Материалы:347 708
Дни:25
324 911
Работа:167 709
Материалы:157 202
Дни:15
3 010 691
Работа:635 151
Материалы:2 375 540
Дни:15
360 263
Работа:169 427
Материалы:190 836
Дни:15
490 571
Работа:278 457
Материалы:212 114
Дни:19
517 795
Работа:332 906
Материалы:184 889
Дни:29
332 576
Работа:174 581
Материалы:157 995
Дни:15
611 032
Работа:313 016
Материалы:298 016
Дни:23
356 959
Работа:138 766
Материалы:218 193
Дни:15
457 267
Работа:333 435
Материалы:123 832
Дни:7
Перекрытие первого этажа
189 250
Работа:81 277
Материалы:107 973
Дни:8
303 104
Работа:100 440
Материалы:202 664
Дни:13
540 856
Работа:221 232
Материалы:319 624
Дни:18
Стены 2 этаж (несущие)
502 729
Работа:314 980
Материалы:187 749
Дни:29
578 705
Работа:296 456
Материалы:282 249
Дни:23
890 932
Работа:546 725
Материалы:344 207
Дни:30
729 155
Работа:319 549
Материалы:409 606
Дни:45
1 363 120
Работа:300 774
Материалы:1 062 346
Дни:24
300 211
Работа:151 326
Материалы:148 885
Дни:15
163 967
Работа:88 242
Материалы:75 725
Дни:7
576 640
Работа:200 516
Материалы:376 124
Дни:7
753 187
Работа:240 632
Материалы:512 555
Дни:7
4 946 248
Работа:240 632
Материалы:4 705 616
Дни:7
1 313 054
Работа:300 774
Материалы:1 012 280
Дни:7
421 121
Работа:100 258
Материалы:320 863
Дни:10
552 984
Работа:284 002
Материалы:268 982
Дни:29
484 142
Работа:315 293
Материалы:168 849
Дни:29
552 984
Работа:284 002
Материалы:268 982
Дни:29
586 904
Работа:359 039
Материалы:227 865
Дни:23
750 183
Работа:252 648
Материалы:497 535
Дни:7
850 691
Работа:521 379
Материалы:329 312
Дни:25
307 721
Работа:158 836
Материалы:148 885
Дни:15
2 851 407
Работа:601 548
Материалы:2 249 859
Дни:15
341 203
Работа:160 463
Материалы:180 740
Дни:15
464 616
Работа:263 725
Материалы:200 891
Дни:19
490 400
Работа:315 293
Материалы:175 107
Дни:29
314 980
Работа:165 344
Материалы:149 636
Дни:15
578 705
Работа:296 456
Материалы:282 249
Дни:10
338 073
Работа:131 424
Материалы:206 649
Дни:10
433 075
Работа:315 794
Материалы:117 281
Дни:7
Перекрытие второго этажа
179 238
Работа:76 977
Материалы:102 261
Дни:8
287 068
Работа:95 126
Материалы:191 942
Дни:13
512 242
Работа:209 528
Материалы:302 714
Дни:18
Крыша (Скатная)
782 243
Работа:378 368
Материалы:403 875
Дни:20
854 401
Работа:393 170
Материалы:461 231
Дни:20
1 322 637
Работа:624 843
Материалы:697 794
Дни:20
1 216 580
Работа:588 433
Материалы:628 147
Дни:20
1 467 350
Работа:624 843
Материалы:842 507
Дни:20
1 106 162
Работа:541 187
Материалы:564 975
Дни:20
2 458 139
Работа:1 106 823
Материалы:1 351 316
Дни:20
2 420 474
Работа:1 108 806
Материалы:1 311 668
Дни:20
475 769
Работа:247 796
Материалы:227 973
Дни:20
Окна
206 102
Работа:66 299
Материалы:139 803
Дни:3
0
Работа:0
Материалы:0
Дни:0
Двери входные
17 825
Работа:6 325
Материалы:11 500
Дни:1
0
Работа:0
Материалы:0
Дни:0
Утепление кровли (Мансарда)
0
Работа:0
Материалы:0
Дни:0
119 470
Работа:42 951
Материалы:76 519
Дни:5
69 647
Работа:15 462
Материалы:54 185
Дни:3
101 498
Работа:25 771
Материалы:75 727
Дни:3
57 225
Работа:25 771
Материалы:31 454
Дни:3
152 906
Работа:15 462
Материалы:137 444
Дни:2
200 616
Работа:25 771
Материалы:174 845
Дни:3
Мансардные окна
0
Работа:0
Материалы:0
Дни:0
75 187
Работа:20 585
Материалы:54 602
Дни:6
Подшивка кровли
0
Работа:0
Материалы:0
Дни:0
220 175
Работа:101 035
Материалы:119 140
Дни:7
Водосточная система
0
Работа:0
Материалы:0
Дни:0
220 242
Работа:98 524
Материалы:121 718
Дни:7
Дополнительное утепление наружных стен
0
Работа:0
Материалы:0
Дни:0
741 350
Работа:299 139
Материалы:442 211
Дни:7
261 827
Работа:157 611
Материалы:104 216
Дни:3
817 647
Работа:230 948
Материалы:586 699
Дни:5
851 356
Работа:230 948
Материалы:620 408
Дни:5
461 768
Работа:93 795
Материалы:367 973
Дни:3
1 173 784
Работа:102 930
Материалы:1 070 854
Дни:5
Наружная отделка фасада
0
Работа:0
Материалы:0
Дни:0
564 955
Работа:179 741
Материалы:385 214
Дни:20
608 699
Работа:197 753
Материалы:410 946
Дни:20
441 697
Работа:154 652
Материалы:287 045
Дни:35
1 468 548
Работа:416 865
Материалы:1 051 683
Дни:45
769 528
Работа:386 887
Материалы:382 641
Дни:40
325 000
Работа:162 500
Материалы:162 500
Дни:20
1 000 476
Работа:416 865
Материалы:583 611
Дни:45
1 100 574
Работа:300 168
Материалы:800 406
Дни:20
608 571
Работа:250 119
Материалы:358 452
Дни:20
750 357
Работа:333 492
Материалы:416 865
Дни:20
1 045 764
Работа:450 188
Материалы:595 576
Дни:20
1 291 251
Работа:385 085
Материалы:906 166
Дни:20
918 003
Работа:333 492
Материалы:584 511
Дни:20
Террасы, крыльца, навесы
0
Работа:0
Материалы:0
Дни:0
427 800
Работа:67 275
Материалы:360 525
Дни:5
Балконы
0
Работа:0
Материалы:0
Дни:0
191 475
Работа:67 275
Материалы:124 200
Дни:12
Отмостка
0
Работа:0
Материалы:0
Дни:0
284 139
Работа:115 638
Материалы:168 501
Дни:15
204 845
Работа:95 815
Материалы:109 030
Дни:10
Дренаж вокруг дома
0
Работа:0
Материалы:0
Дни:0
282 620
Работа:126 277
Материалы:156 343
Дни:5
Автономная канализация (септики)
0
Работа:0
Материалы:0
Дни:0
283 291
Работа:57 500
Материалы:225 791
Дни:7
Внутренние (не несущие) перегородки
0
Работа:0
Материалы:0
Дни:0
123 516
Работа:48 892
Материалы:74 624
Дни:11
208 690
Работа:77 197
Материалы:131 493
Дни:5
239 311
Работа:90 063
Материалы:149 248
Дни:11
345 458
Работа:115 796
Материалы:229 662
Дни:7
Электрика
0
Работа:0
Материалы:0
Дни:0
167 054
Работа:99 188
Материалы:67 866
Дни:10
Сантехника, канализация в доме
0
Работа:0
Материалы:0
Дни:0
138 863
Работа:76 218
Материалы:62 645
Дни:10
Отопление
0
Работа:0
Материалы:0
Дни:0
122 158
Работа:58 469
Материалы:63 689
Дни:5
Теплые полы
0
Работа:0
Материалы:0
Дни:0
438 150
Работа:86 250
Материалы:351 900
Дни:9
269 100
Работа:51 750
Материалы:217 350
Дни:5
Черновая отделка стен
0
Работа:0
Материалы:0
Дни:0
464 618
Работа:271 462
Материалы:193 156
Дни:20
318 446
Работа:219 258
Материалы:99 188
Дни:15
229 699
Работа:99 188
Материалы:130 511
Дни:15
Черновая отделка полов
0
Работа:0
Материалы:0
Дни:0
198 377
Работа:93 968
Материалы:104 409
Дни:10
97 100
Работа:36 543
Материалы:60 557
Дни:7
Чистовая отделка стен и полов
0
Работа:0
Материалы:0
Дни:0
991 881
Работа:365 430
Материалы:626 451
Дни:50
Отделка потолка
0
Работа:0
Материалы:0
Дни:0
198 377
Работа:104 409
Материалы:93 968
Дни:10

Преимущества работы с нами

icon

7 этапов оплаты

icon

Независимый строительный надзор

icon

Экологически чистые материалы

icon

16 лет гарантии

icon

Онлайн-кабинет с веб-камерой

icon

Строители с опытом более 15 лет

icon

Собственное производство

Обзор одноэтажного дома ВС-120: идеальное решение для современной семьи

Дом ВС-120 — это современный одноэтажный жилой дом площадью 90 квадратных метров, который сочетает в себе комфорт, функциональность и стиль. Воплощение практичности и продуманной архитектуры, этот проект идеально подходит для тех, кто ищет удобное и уютное жильё без излишних затрат и сложностей строительства. Одноэтажное решение особенно востребовано среди семей с детьми, пожилых людей или тех, кто ценит удобство передвижения и отсутствие лестниц.

Этот дом привлекает внимание не только своей компактностью, но и возможностью комфортного размещения четырёх спален и двух санузлов. Это делает проект ВС-120 универсальным выбором, способным удовлетворить разные потребности и обеспечить достойное качество жизни.

Основные характеристики проекта ВС-120

Перед тем как более подробно рассмотреть внутреннюю планировку и преимущества дома, необходимо выделить ключевые технические параметры проекта:

Параметр Значение
Полезная площадь 90 м²
Этажность 1 этаж
Количество спален 4
Количество санузлов 2
Стоимость строительства 3 596 846 руб.

Стоит отметить, что цена проекта включает не только возведение стен и кровли, но и базовую отделку, а также инженерные системы, что делает предложение особенно выгодным для клиентов, стремящихся начать проживание сразу после завершения строительства.

Преимущества одноэтажной планировки и оптимальное размещение комнат

Одноэтажный дом — это, прежде всего, удобство и безопасность. Отсутствие лестниц облегчает перемещение по дому лицам с ограниченной мобильностью, а также маленьким детям. Планировка ВС-120 учитывает современный ритм жизни, предлагая три основных зоны: жилую, спальную и общественную.

Четыре спальни — максимум комфорта для семьи

Наличие сразу четырёх спален в доме площадью 90 м² — уникальное решение, позволяющее разместить всех членов семьи с персональным пространством. Это особенно актуально для молодых семей с детьми или при частом приёме гостей. Каждая спальня продумана так, чтобы обеспечивать приватность и достаточную площадь для отдыха.

Два санузла — удобство без очередей

Ни одна современная семья не обходится без достаточного количества ванных комнат. Два санузла в доме ВС-120 — реальное преимущество, позволяющее избежать дискомфорта в утренние и вечерние часы пикового спроса. Раздельные санузлы также помогают быстрее поддерживать чистоту и порядок.

Финансовая составляющая: стоимость по разумной цене

При рассмотрении стоимости дома ВС-120 — 3 596 846 рублей — становится очевидной его привлекательность для разных категорий покупателей. Цена охватывает все основные работы, необходимые для сдачи дома под ключ, что снимает с клиента дополнительную головную боль по поиску подрядчиков и контролю качества.

Важно, что сегмент одноэтажных домов традиционно считается более экономичным в эксплуатации. Меньшее количество лестниц и перекрытий сокращает затраты на строительные и отделочные материалы, а также снижает эксплуатационные расходы на отопление и обслуживание здания.

Архитектурные особенности и планировочные решения

Проект ВС-120 выполнен в современном стиле, который сочетает в себе простые формы и рациональные решения. Отсутствие сложных элементов упрощает процесс строительства и позволяет сократить сроки.

Рациональное использование площади

Несмотря на скромную общую площадь, дом предлагает удобную и продуманную планировку. Благодаря грамотному зонированию пространство не кажется тесным — напротив, создаётся ощущение лёгкости и свободы.

Гибкость внутреннего пространства

Проект предусматривает возможность адаптации отдельных помещений под нужды семьи. Например, одну из спален при желании можно использовать как кабинет, игровую комнату или мастерскую, что делает дом универсальным решением для разных жизненных сценариев.

Материалы и технологии строительства: качество и надежность

При возведении дома ВС-120 используются современные и проверенные временем материалы, обеспечивающие прочность и долговечность конструкции. Это гарантирует устойчивость к климатическим условиям и минимизирует необходимость дорогостоящего ремонта в будущем.

Отдельное внимание уделяется теплоизоляции и энергосбережению, что важно для сокращения эксплуатационных расходов. Современные технологии помогают сохранить комфортный микроклимат внутри помещений в любое время года.

Комфорт жизни в одноэтажном доме 90 м²

В доме ВС-120 заложена атмосфера уюта и тепла, которая достигается за счет продуманной планировки, качественной отделки и просторных жилых комнат. Такое пространство станет настоящим оазисом для семьи, где можно расслабиться после рабочего дня и провести время с близкими.

Преимущество одноуровневого проживания

Одноэтажный формат устраняет барьеры и создает максимально комфортные условия перемещения по дому. Это значительно повышает качество жизни для любых возрастных категорий. Кроме того, упрощается уборка и техническое обслуживание жилого помещения.

Обеспечение приватности и уединения

Несмотря на компактность, проект ВС-120 позволяет каждому члену семьи ощущать собственное пространство. Отдельные спальни отделены от общих зон, что создаёт баланс между общением и личным временем.

Техническое оснащение: два санузла для максимального удобства

Наличие двух санузлов — не просто приятная опция, а необходимость для комфортного проживания большой семьи. Это позволяет избежать неудобств и экономит время. Проект предусматривает современное оснащение сантехникой и установку качественных систем водообеспечения и канализации.

Часто один санузел располагается ближе к гостевой зоне или гостевой спальне, тогда как второй — в непосредственной близости к главным спальням, что повышает функциональность и удобство в быту.

Практичность и экономия в эксплуатации дома ВС-120

Одним из ключевых факторов привлекательности данного проекта является его экономичность не только с точки зрения строительства, но и последующего обслуживания. Небольшая площадь и компактная форма здания снижают расходы на отопление, освещение и водоснабжение.

Также одноэтажный дом легче оборудовать системами «умный дом», что позволяет дополнительно оптимизировать энергопотребление и повысить уровень комфорта жильцов.

Возможности для благоустройства участка и организация пространства вокруг дома

Посадить сад или устроить зону отдыха рядом с домом — с проектом ВС-120 это особенно удобно. Одноэтажное строение открывает варианты для организации хозяйственной зоны без ущерба дизайну и функционалу дома.

На площадке вокруг дома можно разместить летнюю кухню, зону барбекю или детскую площадку, превращая территорию в полноценное место для семейного отдыха и развлечений.

Почему стоит выбрать дом ВС-120?

  • Удобная одноэтажная планировка, которая подходит для всех возрастных категорий.
  • Четыре спальни, позволяющие комфортно разместить большую семью или гостей.
  • Два санузла, обеспечивающих удобство в повседневной жизни.
  • Оптимальный размер — 90 м2 полезной площади, позволяющий рационально использовать каждый квадратный метр.
  • Выгодная цена — Порядка 3,6 миллиона рублей за дом под ключ.
  • Современные строительные материалы и технологии, гарантирующие долговечность и энергоэффективность.
  • Возможность индивидуальной адаптации планировки под собственные нужды.

Как заказать строительство дома ВС-120?

Процесс приобретения и строительства одноэтажного дома начинается с консультации с архитектором или специалистом по проекту. Такой подход помогает учесть все нюансы участка, климатические особенности и пожелания заказчика. Важно подобрать оптимальные материалы и технологии, чтобы строительство прошло максимально быстро и качественно.

Далее следует этап согласования проектной документации и подготовки участка к строительству. Все эти процессы контролируются профессионалами, что исключает риски задержек и дополнительных затрат.

В заключение, дом ВС-120 — это современный, доступный и удобный вариант жилья, который отвечает высоким требованиям комфорта и эффективности. Он отлично впишется в любой ландшафт и станет надёжной основой для вашего семейного уюта.