Обзор одноэтажного дома ВС-114 площадью 206 м²
Проект дома ВС-114 — это воплощение современного подхода к созданию комфортного и функционального жилья. Одноэтажный дом площадью 206 квадратных метров идеально подходит для большой семьи или тех, кто ценит простор и удобство в одном уровне. Благодаря продуманному проекту этот дом сочетает в себе эргономику, стиль и качество строительства, предлагая оптимальное решение для частного загородного строительства.
Одноэтажный формат дома значительно повышает уровень комфорта, особенно для семей с детьми и пожилыми людьми, поскольку тут отсутствует необходимость подниматься по лестницам. Просторные жилые помещения организованы так, чтобы создать максимальное удобство проживания и зонирование функциональных зон, при этом не ощущается тесноты, что особенно актуально в современных условиях малоэтажного строительства.
Полезная площадь 206 м² – что это значит для владельцев дома?
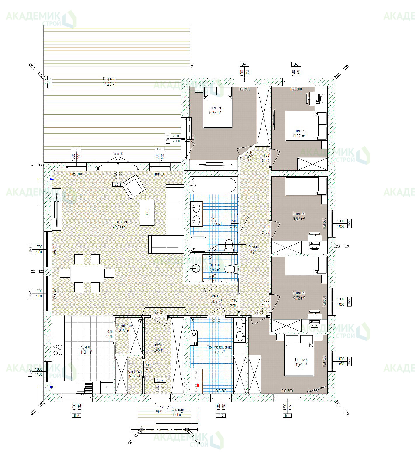
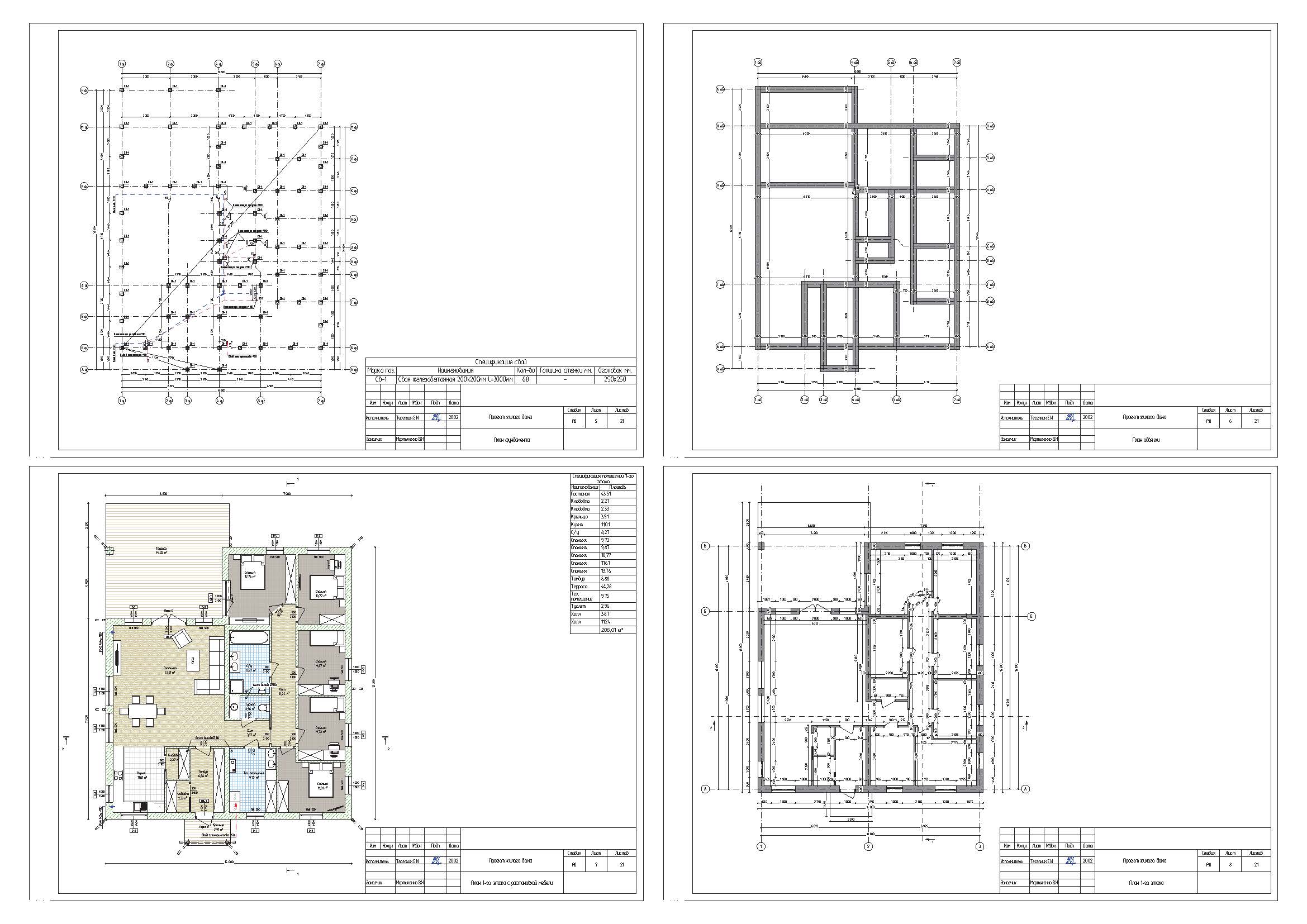
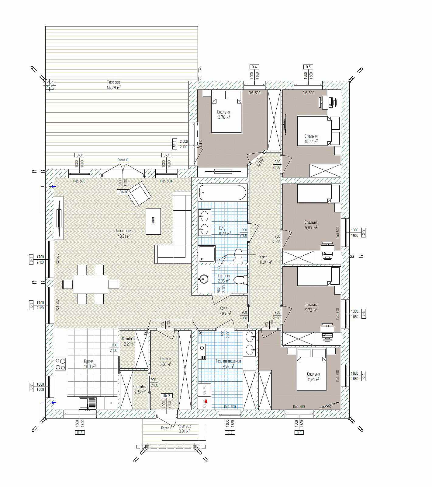
Полезная площадь дома составляет 206 м² — это не общая площадь застройки, а именно та площадь, которая может быть эффективно использована для проживания, работы и отдыха. Такой объем пространства позволяет разместить пять и более спален, что обеспечивает максимально комфортные условия для большой семьи или для тех, кто часто принимает гостей.
Обеспечение такой площади в рамках одноэтажного дома требует тщательной архитектурной проработки. Важно продумать рациональное распределение пространства между спальными, санитарными и общественными зонами, чтобы гости и хозяева могли наслаждаться как личным комфортом, так и общением в общих комнатах.
Преимущества большого полезного пространства
- Возможность создания большого количества спален и дополнительных комнат.
- Разделение отдыха и работы в пространстве.
- Увеличение возможностей для индивидуального дизайна.
- Комфортное хранение вещей и организация технических помещений без ущерба для жилых зон.
Таким образом, 206 квадратных метров — это инвестиция в комфорт на долгие годы. Дом ВС-114 отлично подходит для тех, кто не хочет экономить на качестве жизни и стремится к максимальной функциональности собственного жилья.
Одноэтажная планировка: преимущества и особенности
ВС-114 — это классический одноэтажный дом, что сразу накладывает особенности на планировку и эргономику пространства. Главным преимуществом данного решения является удобство передвижения по дому без необходимости использования лестниц. Это критически важно для семей с маленькими детьми, пожилыми людьми или просто для тех, кто ценит удобство.
Одноэтажная архитектура позволяет делать жилые помещения максимально открытыми и связанными друг с другом, обеспечивая естественную коммуникацию и добавляя ощущение единства пространства. Также снижаются расходы на установку и обслуживание инженерных систем, что положительно сказывается на бюджете эксплуатации жилья.
Ключевые достоинства одноэтажного дома ВС-114
- Отсутствие лестниц — комфорт и безопасность для всех членов семьи.
- Более простой и дешевый монтаж инженерных коммуникаций.
- Возможность размещения просторных и светлых комнат.
- Легкий доступ ко всем помещениям, что важно для пожилых людей и инвалидов.
Проект дома ВС-114 создан с учётом современных стандартов качества и безопасности, что делает его комфортным и удобным выбором для любой семьи. Одноэтажное строительство имеет не только эстетические и эргономичные преимущества, но и экономически целесообразно в долгосрочной перспективе.
Пять и более спален: идеальное пространство для большой семьи
Одной из главных особенностей проекта ВС-114 является наличие пяти и более спален. Такой показатель говорит о том, что в доме смогут с комфортом разместиться как большая семья, так и гости. Проект предлагает разные варианты организации спальных помещений, позволяя гибко адаптировать пространство для своих нужд.
Каждая спальня в доме отличается хорошей площадью и продуманным расположением, что обеспечивает необходимую приватность и уют всем жильцам. Кроме того, наличие множества спален позволяет организовать дополнительные комнаты под детские, кабинеты или гостевые помещения.
Как организовать пространство при наличии пяти и более спален
- Расположение спален в отдельных зонах для обеспечения уединения.
- Использование шумоизоляционных материалов для комфортного отдыха.
- Организация общего пространства для общения семьи.
- Возможность выделения зоны для гостей с отдельным входом.
Большое количество спален — серьезное преимущество с точки зрения жизненного комфорта, особенно если в доме проживает много людей. Проект ВС-114 учёл потребности современного образа жизни, позволяя расширять функциональные возможности жилого пространства.
Один санузел: достоинства и нюансы организации
В доме ВС-114 предусмотрен один санузел, что может показаться непривычным для такого большого дома. Тем не менее, грамотное расположение и продуманный дизайн ванной комнаты способны компенсировать этот момент и сделать процесс использования санузла максимально удобным для семьи.
Организация одного санузла требует дополнительных усилий по рациональному использованию пространства, особенно с точки зрения планировки и эргономики. Важно, чтобы санузел был максимально функциональным, с продуманным размещением сантехники и зоны для хранения.
Рекомендации по обустройству санузла в доме с одной ванной комнатой
- Использование раздвижных дверей или нестандартных решений для экономии места.
- Планирование зоны для стиральной машины и хранения гигиенических принадлежностей.
- Внедрение современных технологий для вентиляции и освещения.
- Рациональное разделение зон душа, унитаза и умывальника.
Проект учитывает возможные варианты индивидуализации, поэтому при необходимости санузел можно дополнить дополнительными опциями. В любом случае, наличие одного санузла не снижает общего комфорта проживания, благодаря тщательной архитектурной проработке проекта ВС-114.
Стоимость дома ВС-114: анализ и обоснование цены в 10 568 505 рублей
Цена дома ВС-114 – 10 568 505 рублей — это инвестиция в качественное и современное жилье площадью 206 м². Важно понять, за что именно выставлена такая цена и что она включает в себя с точки зрения материала, технологии и уровня комфорта. Строительство дома такого класса требует использования надежных, экологически чистых и долговечных материалов, а также продуманного инженерного оборудования.
Цена включает не только возведение стен, перекрытий и крыши, но и комплекс отделочных и строительных работ, что обеспечивает готовность здания к использованию или дальнейшему индивидуальному дизайну. Кроме того, цена отражает уровень технологической оснащенности объекта, включая коммуникации, утепление, гидроизоляцию и другие важные элементы.
Основные факторы формирования стоимости дома ВС-114
| Фактор | Описание | Влияние на стоимость |
|---|---|---|
| Площадь дома | 206 м² — большая площадь для одноэтажного дома | Увеличение затрат на материалы и работы |
| Количество спален | 5+ спален требуют дополнительной планировки и отделки | Увеличение стоимости внутренней отделки и инженерных сетей |
| Инженерные коммуникации | Монтаж систем отопления, водоснабжения и электрики | Средняя часть бюджета |
| Качество материалов | Использование современных, экологичных и долговечных материалов | Значительный рост стоимости |
| Выполнение работ | Профессиональный подход к монтажу и отделке | Обеспечение высокого качества и долговечности дома |
Таким образом, цена в более 10 миллионов рублей вполне оправдана высоким качеством материалов и работ, продуманной архитектурой и общей надежностью дома. За такую стоимость владелец получает современное жилье с продуманным функционалом, ориентированное на длительную эксплуатацию в любых климатических условиях.
Особенности проекта и преимущества дома ВС-114
Проект дома ВС-114 был создан с учётом целого ряда современных тенденций в строительстве, включая энергоэффективность, практичность и комфорт. Одноэтажное здание без гаража, вместительная жилая площадь с пятью и более спальнями и одним санузлом — это свидетельство того, что проект ориентирован на реальные потребности больших семей, предпочитающих простор и качество.
Кроме того, в проекте заложены принципы современного дизайна и инженерии, что позволяет обеспечить не только красоту здания, но и его практичность, надежность и долговечность. ВС-114 идеально подходит для тех, кто хочет жить в удобном доме, не тратя лишних усилий на обслуживание.
К плюсам дома ВС-114 можно отнести:
- Продуманную функциональную планировку с большим количеством спален.
- Удобство одноэтажного проживания.
- Высокое качество строительных материалов и отделочных решений.
- Ощутимая экономия на лестницах и сложных архитектурных элементах.
- Гибкость адаптации под индивидуальный стиль и нужды владельцев.
За сегодняшний день это один из наиболее сбалансированных проектов, сочетающих в себе удобство, надежность и современную эстетику. Поэтому дом ВС-114 станет надежным и приятным местом для жизни всей семьи на долгие годы.










 — БЕЗ ЛОГО_Страница_1/3347223121.jpg)
 — БЕЗ ЛОГО_Страница_2/1225627058.jpg)
 — БЕЗ ЛОГО_Страница_3/2242352428.jpg)
 — БЕЗ ЛОГО_Страница_4/2405604405.jpg)
 — БЕЗ ЛОГО_Страница_5/1137220779.jpg)
 — БЕЗ ЛОГО_Страница_6/3444022088.jpg)