Одноэтажный дом 220.03 м2 за руб.

ID-146666

Стоимость дома 7676834 руб.

Планировки

План первого этажа

floor image
  • 1.

План второго этажа

floor image
  • 1.

Пояснительная записка

1. Общие данные

Проект cmpoumeльcmвa жилого дома был выполнен в coomвemcmвuu с заданием Заказчика.

Готовый проект жилого дома. Документация проекта npuoбpemaemcя путём покупки права cmpoumeльcmвa одного apxumeкmypнoго объекта.

Проект разработан на основанuu отдельного технического задания и рекомендацuu глав СНuП и СП;

  • СП 112.13330.2011 «Пожарная безопасность зданий и сооружений»;
  • СП 55.13330.2011 «Дома жилые одноквартирные»;
  • НПБ 106-95 «Индивидуальные жилые дома. Противопожарные требования»;
  • СП 54.13330.2016 "Здания жилые многоквартирные";
  • СП 131.13330.2020 «Строительная климатология»;
  • СП 50.13330.2012 «Тепловая защита зданий»;
  • СП 23-101-2004 «Проектирование тепловой защиты зданий»;

2. Архитектурно-планировочные решения

Архumекmурно-планuровочное решение разработано в coomвemcmвuu с СП 55.13330.2011 "Дома жилые однокварmuрные".

Чертежи марки АР рассматривать совместно с чертежами марки КР.

Степень огнестойкости здания -III.

За условную отметку 0,000 принята отметка чucmoго пола 1-го этажа.

Архumекmурно-планuровочные решения разработаны для следующих условий:

  • зимняя meмnepamypa наиболее холодной пяmuдневкu по клuмаmuческому району IIB, согласно СП 131.13330.2012 -28 °С;
  • наиболее холодных суток -32 °С;
  • нормаmuвная снеговая нагрузка по III району согласно СП 20.13330.2011 -180кгс/ кв. м.(1,80кПа);
  • нормаmuвный скоростной напор веmра по III району согласно СП 20.13330.2011 -23кгс/ кв.м. (О,23кПа);
  • зона влажносmu нормальная;

Проекmuруемое здание представляет собой двухэтажный жилой дом, размерами в осях 7540х16700 м. Пригодно для всесезонного проживания.

Архumекmурно-планuровочных решений, связанных с обеспечением маломобильных групп населения, не предусмотрено.

Благоусmроuсmво прилегающей meppumopuu не разрабатывается.

3. Конструктивное решение

Производство сmроumельно-ремонmных работ вecmu в coomвemcmвuu с mребованuямu СП 48.13330.2011 "Организация строительства".

СП 49.13330.2012 "Безопасность mpyдa в cmpoumeльcmвe".

При защите строительных конструкций от коррозии руководствоваться СП 28.13330.2017. "Защumа сmроumельных конструкций и сооружений от коррозuu".

Прu производстве работ в зимнее время следует соблюдать СП 70.13330.2012.

  • Конструктивная система здания стеновая (бескаркасная) с перекрестной конструктивной схемой.Пространственная жесткость обеспечивается совместной работой продольных и поперечных стен с монолитным поясом.
  • Фундамент - монолитная плита ребрами вверх - толщиной 200мм, бетон класса В25.
  • Наружные стены газобетонные блоки 600х300х250, марки D500.
  • Внутренние несущие стены: газобетонные блоки 600х300х250, марки D500. Межкомнатные перегородки из газобетонного блока 600х100х250.
  • Межэтажное перекрытие монолитная ж/б плита 200мм.
  • Кровля скатная по стропильной системе с uспользованuем доски 50х200, с обрешеткой 25х100мм настилом с металлочерепицы.
  • Водосток с крыши - организованный, внешний. Вентиляция представлена "грибками" на крыше дома.
  • По периметру здания выполнить утепленную бетонную отмостку шириной 1000 мм, из бетона класса В15. Отмостку рекомендуется устраивать после завершения отделочных работ и до наступления отрицательных температур. Предусмотреть элементы безопасносmu кровли.
  • Терраса выполняется из монолитного перекрытия и закрывается общей крышей.
  • Все конструктивные решения по согласованию с конструктором.
  • Детальную отделку помещений производить по специальному проекту интерьера.
  • Лестница по индивидуальному проекту.

4. Охрана окружающей среды

Прu органuзацuu cmpoumeльcmвa и эксплуаmацuu жилого дома предусмаmрuваеmся следующие меропрuяmuя по охране окружающей среды:

  • сброс хозяuсmвенно-быmовых omxoдoв и стоков осуществляется в гepмemuчecкuй cenmuк споследующем вывозом по договору с коммунальными органuзацuямu;
  • уmuлuзацuя сmроumельного мусора осуществляется на разрешенные свалки;

5. Обеспечение пожарной безопасности

  • Все деревянные элементы должны быть подвергнуты огнезащumной обработке в coomвemcmвuu с mребованuямu СНиП 21-01-97 u "Пожарная безопасность зданий и сооружений".
  • Элекmроусmановкu монmuроваmь и подключать согласно требованиям "Правил ycmpoйcmвa элекmроусmановок (ПУЭ)" u государственных стандартов на элекmро усmановкu зданий, а также оборудовать их ycmpoйcmвaмu защumного отключения (УЗО).
  • Электропроводку монmuруемую по поверхносmu сmроumельных конструкций, выполнumь в кабель-каналах,не распространяющих горение.

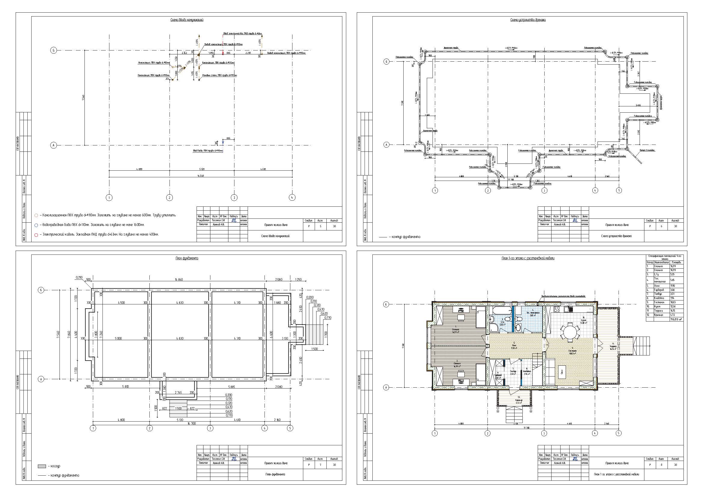
Площади дома

№ п/п Наименование Ед. из. Строительная площадь Полезная площадь
1 1 этаж м2 144.04 116.89
2 2 этаж м2 127.1 103.14
3 Итого м2 271.14 220.03
154 м2 Полезная
площадь
1 этаж Этажей
26 м2 Террасы
и балконы
0Без
гаража
5+ Количество
спален
3 Количество
санузлов

Калькулятор опций

0

В ипотеку от 24 783 ₽/мес.

Фундамент
752 731
Работа:325 775
Материалы:426 956
Дни:20
452 516
Работа:151 544
Материалы:300 972
Дни:2
762 562
Работа:306 114
Материалы:456 448
Дни:20
1 461 300
Работа:652 458
Материалы:808 842
Дни:30
2 451 481
Работа:901 402
Материалы:1 550 079
Дни:32
926 508
Работа:370 694
Материалы:555 814
Дни:20
5 813 743
Работа:2 650 365
Материалы:3 163 378
Дни:30
6 936 261
Работа:3 091 538
Материалы:3 844 723
Дни:40
241 987
Работа:60 497
Материалы:181 490
Дни:1
Перекрытие цоколя
433 157
Работа:186 028
Материалы:247 129
Дни:8
693 747
Работа:229 888
Материалы:463 859
Дни:13
1 237 916
Работа:506 358
Материалы:731 558
Дни:18
Стены 1 этаж (несущие)
1 214 927
Работа:761 201
Материалы:453 726
Дни:29
1 398 534
Работа:716 433
Материалы:682 101
Дни:23
2 153 081
Работа:1 321 250
Материалы:831 831
Дни:30
1 762 121
Работа:772 242
Материалы:989 879
Дни:45
3 294 202
Работа:726 869
Материалы:2 567 333
Дни:24
725 508
Работа:365 703
Материалы:359 805
Дни:15
396 254
Работа:213 251
Материалы:183 003
Дни:7
1 393 543
Работа:484 579
Материалы:908 964
Дни:7
1 820 197
Работа:581 525
Материалы:1 238 672
Дни:7
11 953 411
Работа:581 525
Материалы:11 371 886
Дни:7
6 470 284
Работа:726 869
Материалы:5 743 415
Дни:7
1 017 708
Работа:242 290
Материалы:775 418
Дни:7
1 336 374
Работа:686 336
Материалы:650 038
Дни:29
1 170 008
Работа:761 957
Материалы:408 051
Дни:29
1 336 374
Работа:686 336
Материалы:650 038
Дни:29
1 418 347
Работа:867 675
Материалы:550 672
Дни:23
1 812 938
Работа:610 564
Материалы:1 202 374
Дни:7
2 055 832
Работа:1 259 997
Материалы:795 835
Дни:25
743 657
Работа:383 852
Материалы:359 805
Дни:15
6 890 888
Работа:1 453 738
Материалы:5 437 150
Дни:15
824 571
Работа:387 784
Материалы:436 787
Дни:15
1 122 821
Работа:637 334
Материалы:485 487
Дни:19
1 185 132
Работа:761 957
Материалы:423 175
Дни:29
761 201
Работа:399 581
Материалы:361 620
Дни:15
1 398 534
Работа:716 433
Материалы:682 101
Дни:23
817 009
Работа:317 608
Материалы:499 401
Дни:15
1 046 595
Работа:763 167
Материалы:283 428
Дни:7
Перекрытие первого этажа
433 157
Работа:186 028
Материалы:247 129
Дни:8
693 747
Работа:229 888
Материалы:463 859
Дни:13
1 237 916
Работа:506 358
Материалы:731 558
Дни:18
Стены 2 этаж (несущие)
1 072 044
Работа:671 679
Материалы:400 365
Дни:29
1 234 058
Работа:632 176
Материалы:601 882
Дни:23
1 899 866
Работа:1 165 863
Материалы:734 003
Дни:30
1 554 884
Работа:681 421
Материалы:873 463
Дни:45
2 906 784
Работа:641 385
Материалы:2 265 399
Дни:24
640 183
Работа:322 694
Материалы:317 489
Дни:15
349 653
Работа:188 172
Материалы:161 481
Дни:7
1 229 655
Работа:427 590
Материалы:802 065
Дни:7
1 606 130
Работа:513 134
Материалы:1 092 996
Дни:7
10 547 615
Работа:513 134
Материалы:10 034 481
Дни:7
2 800 020
Работа:641 385
Материалы:2 158 635
Дни:7
898 019
Работа:213 795
Материалы:684 224
Дни:10
1 179 209
Работа:605 619
Материалы:573 590
Дни:29
1 032 408
Работа:672 346
Материалы:360 062
Дни:29
1 179 209
Работа:605 619
Материалы:573 590
Дни:29
1 251 541
Работа:765 631
Материалы:485 910
Дни:23
1 599 725
Работа:538 758
Материалы:1 060 967
Дни:7
1 814 054
Работа:1 111 814
Материалы:702 240
Дни:25
656 198
Работа:338 709
Материалы:317 489
Дни:15
6 080 476
Работа:1 282 769
Материалы:4 797 707
Дни:15
727 597
Работа:342 179
Материалы:385 418
Дни:15
990 770
Работа:562 379
Материалы:428 391
Дни:19
1 045 753
Работа:672 346
Материалы:373 407
Дни:29
671 679
Работа:352 588
Материалы:319 091
Дни:15
1 234 058
Работа:632 176
Материалы:601 882
Дни:10
720 924
Работа:280 256
Материалы:440 668
Дни:10
923 509
Работа:673 414
Материалы:250 095
Дни:7
Крыша (Скатная)
1 790 403
Работа:866 012
Материалы:924 391
Дни:20
1 955 559
Работа:899 890
Материалы:1 055 669
Дни:20
3 027 260
Работа:1 430 144
Материалы:1 597 116
Дни:20
2 784 516
Работа:1 346 810
Материалы:1 437 706
Дни:20
3 358 480
Работа:1 430 144
Материалы:1 928 336
Дни:20
2 531 791
Работа:1 238 672
Материалы:1 293 119
Дни:20
5 626 203
Работа:2 533 304
Материалы:3 092 899
Дни:20
5 539 995
Работа:2 537 841
Материалы:3 002 154
Дни:20
1 088 943
Работа:567 158
Материалы:521 785
Дни:20
Окна
456 056
Работа:146 705
Материалы:309 351
Дни:3
0
Работа:0
Материалы:0
Дни:0
Двери входные
16 275
Работа:5 775
Материалы:10 500
Дни:1
0
Работа:0
Материалы:0
Дни:0
Утепление кровли (Мансарда)
0
Работа:0
Материалы:0
Дни:0
273 445
Работа:98 307
Материалы:175 138
Дни:5
159 409
Работа:35 391
Материалы:124 018
Дни:3
232 307
Работа:58 984
Материалы:173 323
Дни:3
130 975
Работа:58 984
Материалы:71 991
Дни:3
349 974
Работа:35 391
Материалы:314 583
Дни:2
459 170
Работа:58 984
Материалы:400 186
Дни:3
Мансардные окна
0
Работа:0
Материалы:0
Дни:0
68 649
Работа:18 795
Материалы:49 854
Дни:6
Подшивка кровли
0
Работа:0
Материалы:0
Дни:0
503 938
Работа:231 249
Материалы:272 689
Дни:7
Водосточная система
0
Работа:0
Материалы:0
Дни:0
504 090
Работа:225 502
Материалы:278 588
Дни:7
Дополнительное утепление наружных стен
0
Работа:0
Материалы:0
Дни:0
1 640 425
Работа:661 921
Материалы:978 504
Дни:7
579 359
Работа:348 754
Материалы:230 605
Дни:3
1 809 249
Работа:511 031
Материалы:1 298 218
Дни:5
1 883 840
Работа:511 031
Материалы:1 372 809
Дни:5
1 021 777
Работа:207 544
Материалы:814 233
Дни:3
2 597 291
Работа:227 758
Материалы:2 369 533
Дни:5
Наружная отделка фасада
0
Работа:0
Материалы:0
Дни:0
1 250 105
Работа:397 722
Материалы:852 383
Дни:20
1 346 901
Работа:437 579
Материалы:909 322
Дни:20
977 365
Работа:342 206
Материалы:635 159
Дни:35
3 249 531
Работа:922 418
Материалы:2 327 113
Дни:45
1 702 773
Работа:856 084
Материалы:846 689
Дни:40
719 144
Работа:359 572
Материалы:359 572
Дни:20
2 213 804
Работа:922 418
Материалы:1 291 386
Дни:45
2 435 298
Работа:664 198
Материалы:1 771 100
Дни:20
1 346 617
Работа:553 451
Материалы:793 166
Дни:20
1 660 353
Работа:737 935
Материалы:922 418
Дни:20
2 314 017
Работа:996 155
Материалы:1 317 862
Дни:20
2 857 219
Работа:852 098
Материалы:2 005 121
Дни:20
2 031 313
Работа:737 935
Материалы:1 293 378
Дни:20
Террасы, крыльца, навесы
0
Работа:0
Материалы:0
Дни:0
390 600
Работа:61 425
Материалы:329 175
Дни:5
Балконы
0
Работа:0
Материалы:0
Дни:0
174 825
Работа:61 425
Материалы:113 400
Дни:12
Отмостка
0
Работа:0
Материалы:0
Дни:0
650 341
Работа:264 674
Материалы:385 667
Дни:15
468 850
Работа:219 301
Материалы:249 549
Дни:10
Дренаж вокруг дома
0
Работа:0
Материалы:0
Дни:0
646 862
Работа:289 023
Материалы:357 839
Дни:5
Автономная канализация (септики)
0
Работа:0
Материалы:0
Дни:0
258 657
Работа:52 500
Материалы:206 157
Дни:7
Внутренние (не несущие) перегородки
0
Работа:0
Материалы:0
Дни:0
273 309
Работа:108 185
Материалы:165 124
Дни:11
461 778
Работа:170 818
Материалы:290 960
Дни:5
529 537
Работа:199 288
Материалы:330 249
Дни:11
764 411
Работа:256 227
Материалы:508 184
Дни:7
Электрика
0
Работа:0
Материалы:0
Дни:0
369 650
Работа:219 480
Материалы:150 170
Дни:10
Сантехника, канализация в доме
0
Работа:0
Материалы:0
Дни:0
307 272
Работа:168 653
Материалы:138 619
Дни:10
Отопление
0
Работа:0
Материалы:0
Дни:0
270 307
Работа:129 378
Материалы:140 929
Дни:5
Теплые полы
0
Работа:0
Материалы:0
Дни:0
400 050
Работа:78 750
Материалы:321 300
Дни:9
245 700
Работа:47 250
Материалы:198 450
Дни:5
Черновая отделка стен
0
Работа:0
Материалы:0
Дни:0
1 028 090
Работа:600 682
Материалы:427 408
Дни:20
704 646
Работа:485 166
Материалы:219 480
Дни:15
508 269
Работа:219 480
Материалы:288 789
Дни:15
Черновая отделка полов
0
Работа:0
Материалы:0
Дни:0
438 960
Работа:207 928
Материалы:231 032
Дни:10
214 859
Работа:80 861
Материалы:133 998
Дни:7
Чистовая отделка стен и полов
0
Работа:0
Материалы:0
Дни:0
2 194 799
Работа:808 610
Материалы:1 386 189
Дни:50
Отделка потолка
0
Работа:0
Материалы:0
Дни:0
438 960
Работа:231 032
Материалы:207 928
Дни:10

Преимущества работы с нами

icon

7 этапов оплаты

icon

Независимый строительный надзор

icon

Экологически чистые материалы

icon

16 лет гарантии

icon

Онлайн-кабинет с веб-камерой

icon

Строители с опытом более 15 лет

icon

Собственное производство

Обзор дома ВС-113: идеальный одноэтажный проект для большой семьи

Дом ВС-113 — это современный одноэтажный коттедж площадью 219 м², предназначенный для комфортного проживания большой семьи. Благодаря своей продуманной планировке и количеству комнат, этот проект идеально подойдет тем, кто ценит простор и функциональность в жилом пространстве. В данной статье мы подробно рассмотрим все особенности этого дома, чтобы помочь вам понять его преимущества и возможности.

Одноэтажные дома давно заслуженно пользуются популярностью благодаря удобству и безопасности проживания. В отличие от многоэтажных зданий, они предлагают единственный уровень, где расположены все основные помещения, что особенно актуально для семей с маленькими детьми или пожилыми людьми. Дом ВС-113 полностью соответствует этим требованиям, предоставляя при этом внушительную площадь и разнообразие комнат.

Полезная площадь и планировка

Одной из ключевых характеристик дома ВС-113 является его полезная площадь — 219 квадратных метров. Это цифра, которая говорит о большом внутреннем пространстве, позволяющем реализовать любые идеи для комфортного проживания и организации жизненного пространства. Благодаря такой площади в доме можно разместить множество функциональных зон, создать уютные помещения для работы, отдыха и общения.

Очень важной особенностью является то, что дом представляет собой один этаж. Для многих клиентов такая компоновка становится решающим фактором при выборе: отсутствие лестниц упрощает передвижение по дому, а значит повышает безопасность и комфортабельность. Одноэтажный дом ВС-113 предлагает рациональную планировку, где все зоны находятся на одном уровне, что экономит время и улучшает качество жизни.

Количество спален — 5+

Одним из главных преимуществ проекта является достаточное количество спален — пять и более. Это великолепное решение для большой семьи или семьи с несколькими поколениями. Каждая спальня достаточно просторна, чтобы обеспечить своим обитателям уединение и комфорт. Дополнительное количество спален позволяет не только обеспечить всех членов семьи личным пространством, но и организовать гостевые комнаты, кабинеты или детские игровые зоны.

Большое количество спален также открывает дополнительные возможности для тех, кто планирует использовать дом не только для постоянного проживания, но и для приёма гостей или организации небольшого домашнего офиса. В современных условиях гибкость жилого пространства становится особенно актуальной, а дом ВС-113 отвечает этим требованиям с легкостью.

Три санузла — комфорт и удобство для всей семьи

Еще одним важным элементом комфорта в доме ВС-113 является наличие трех санузлов. Для большой семьи это значимое преимущество, поскольку позволяет избежать утренних и вечерних очередей, а также гарантирует личное пространство каждому члену семьи. Три санузла значительно повышают уровень комфорта и удобства, особенно в часы пик.

Современные тенденции в проектировании домов предусматривают, что санузлы выполняют функцию не только санитарного узла, но и могут быть оснащены дополнительными удобствами — душевыми кабинами, ванной, современными средствами вентиляции. Дом ВС-113 вписывается в эти стандарты, чтобы людям было приятно не просто жить, но и заботиться о своем здоровье и гигиене в соответствующих условиях.

Преимущества одноэтажного дома площадью 219 м²

Рассматривая дом площадью более 200 квадратных метров, многие сразу начинают думать о масштабных расходах на строительство и отопление, однако проект ВС-113 отличается высокой экономичностью и рациональностью. Одноэтажное строительство требует меньше затрат на несущие конструкции и коммуникации, что снижает общую стоимость строительства и последующего обслуживания.

Кроме того, прямая планировка в одном уровне облегчает монтаж инженерных систем — электричества, водопровода и отопления — а также оптимизирует теплообмен помещения. Это положительно сказывается на энергоэффективности здания.

Почему простор важен

Когда речь идет о доме площадью 219 м² и более, важно понимать, что комфорт — это не только количество квадратных метров, но и их грамотное использование. Большое пространство позволяет создавать зоны различного назначения, которые сделают жизнь максимально удобной. Например, в доме ВС-113 можно выделить:

  • Просторную гостиную для семейных и дружеских встреч.
  • Отдельную кухню с обеденной зоной.
  • Уютные спальни для каждого члена семьи.
  • Рабочие кабинеты или мастерские.
  • Зоны хранения для бытовых нужд.

Все эти возможности делают дом идеальным вариантом как для постоянного проживания, так и для работы из дома, праздников, приема гостей и организации досуга.

Особенности конструкции и материалы

Одноэтажный дом ВС-113 отличается прочной и надежной конструкцией, которая обеспечивает долговечность и устойчивость к любым погодным условиям. Несмотря на отсутствие конкретных данных о размерах и высоте, проект предполагает использование современных строительных технологий и материалов. Это гарантирует не только надежность, но и энергоэффективность дома.

Часто в таких проектах используются утепленные стены с многослойной структурой, современные окна с двойным или тройным остеклением и качественная кровля с хорошим гидроизоляционным покрытием. Все эти элементы важны для создания комфортного микроклимата внутри дома и значительной экономии на отоплении и охлаждении помещений.

Выбор кровли

Хотя проект не предусматривает подробностей о типе и угле наклона крыши, такие элементы традиционно подбираются с учетом климатических условий и архитектурных особенностей. В современном строительстве одноэтажных домов популярны скатные крыши с углом наклона от 20 до 40 градусов, обеспечивающие эффективный сток воды и снега.

Для кровельных покрытий обычно используются металлические или композитные материалы, обладающие высокой долговечностью и простотой монтажа, что делает эксплуатацию дома более удобной и долгосрочной.

Экономика строительства дома ВС-113

Дом площадью 219 м², оснащенный пятью спальнями и тремя санузлами, не является проектом для тех, кто ориентирован на минимальные бюджетные решения. Однако стоимость в размере 7 629 282 рублей делает его привлекательным выбором с учетом площади и планировки. Это подтверждает оптимальное соотношение цены и качества здания.

Стоимость строительства включает все основные этапы от возведения фундамента до окончательной отделки и коммуникаций. При этом важным фактором для снижения затрат является однородность этажей — отсутствие необходимости в дополнительном оборудовании для лестниц и подъёмных механизмов существенно сокращает общий бюджет.

Таблица: Сравнение стоимости строительства одноэтажных домов с аналогичной площадью

Проект Площадь, м² Количество этажей Стоимость, руб. Стоимость за 1 м², руб.
Дом ВС-113 219 1 7 629 282 34 838
Проект A 220 1 8 100 000 36 818
Проект B 215 1 7 300 000 33 953

Из приведенной таблицы видно, что дом ВС-113 находится в средней ценовой категории, предлагая отличные технические и планировочные решения за разумную стоимость.

Для кого подойдет дом ВС-113?

Проект ВС-113 создавался с учетом потребностей большой семьи, планирующей постоянное проживание с максимальным уровнем комфорта. Его большое количество спален и три санузла позволяют каждому члену семьи чувствовать себя максимально удобно. Такой дом идеально подойдет для следующих категорий владельцев:

  • Многочленные семьи с детьми разного возраста;
  • Семьи с пожилыми родственниками, которым важно проживание на одном уровне без лестниц;
  • Люди, работающие из дома и нуждающиеся в отдельных кабинетах или рабочих зонах;
  • Любители принимать гостей, располагающие возможности для размещения друзей и родственников.

Кроме того, дом, не имеющий встроенного гаража, оставляет владельцам свободу выбора, реализовать отдельные проекты гаражей или навесов по своему усмотрению, что позволяет подобрать оптимальное решение исходя из особенностей участка и личных предпочтений.

Преимущества одноэтажного дома с большим количеством санузлов и спален

Отдельно стоит подчеркнуть, что среди всех преимуществ одноэтажного дома можно выделить наиболее важные для комфорта семьи особенности. Пять и более спален предоставляют жильцам возможность создавать пространство для личных увлечений и отдыха, а отсутствие необходимости подниматься по лестницам снижает утомляемость и травмоопасность.

Наличие трех санузлов значительно уменьшает конфликты и очереди при совместном использовании жилья, особенно в утренние часы, когда сложно избежать стресса из-за дефицита удобств. Планировка позволяет расположить санузлы в непосредственной близости от спален, что также повышает удобство и эргономичность пространства.

Заключительные мысли о доме ВС-113

Дом ВС-113 — это идеальный выбор для тех, кто ценит простор, комфорт и функциональность в одном уровне. Его 219 квадратных метров полезной площади позволяют создавать комфортные условия для большой семьи, обеспечивая личное пространство каждому члену, а продуманная планировка и наличие трех санузлов делают проживание максимально удобным.

Стоимость строительства в 7 629 282 рублей отражает высокое качество материалов, современные технологии и продуманные до мелочей архитектурные решения. Одноэтажная конструкция повысит безопасность и упростит эксплуатацию дома в долгосрочной перспективе.

Если вы мечтаете о доме, где каждый уголок продуман для максимального удобства, а пространство не ощущается загроможденным, то проект ВС-113 — именно то, что стоит рассмотреть для воплощения своих жилых устремлений.