Обзор проекта дома ВС-107: оптимальное решение для комфортной жизни
При планировании строительства частного дома жизненно важно выбрать проект, который максимально соответствует вашим потребностям, сочетая функциональность, эстетичность и разумную стоимость. Дом ВС-107 — одноэтажное жилое строение, площадью 136 квадратных метров, является именно таким решением. Этот проект гарантирует удобство и уют всей семье, обеспечивая пространство для полноценного отдыха и работы. При бюджете в 4 823 254 рубля вы получаете современный, продуманный дом с продуманной планировкой и удобной инфраструктурой внутри.
В данной статье мы подробно рассмотрим ключевые параметры дома, уделим внимание особенностям планировки, техническим характеристикам и обсудим, почему этот проект заслуживает особого внимания среди множества аналогичных предложений на рынке.
Основные характеристики здания
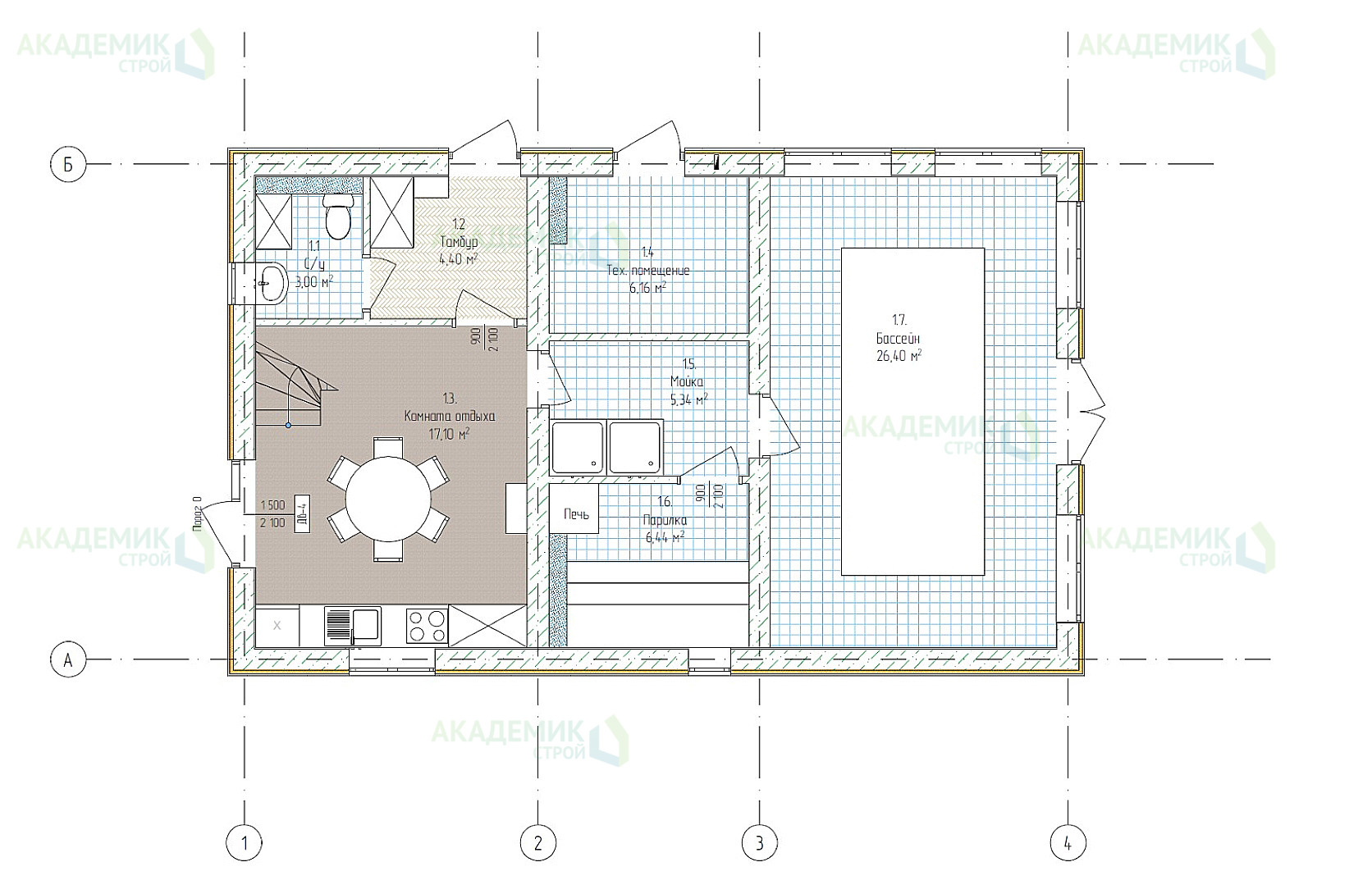
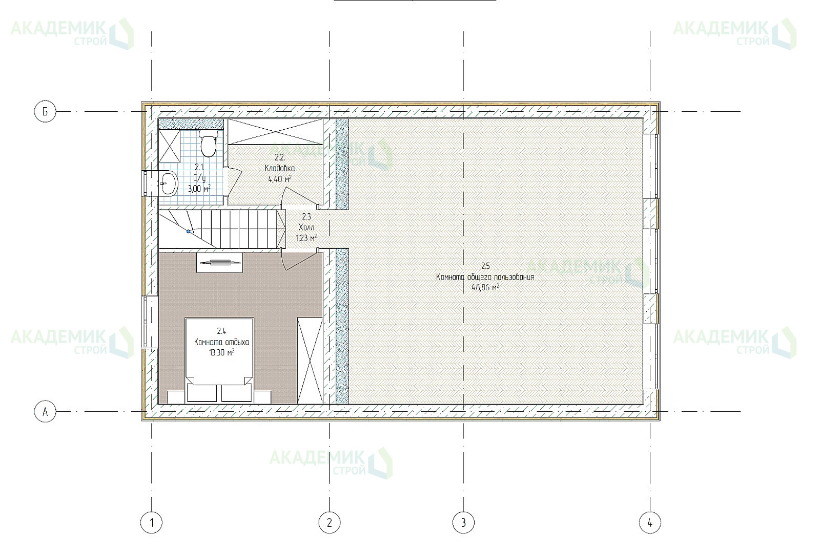
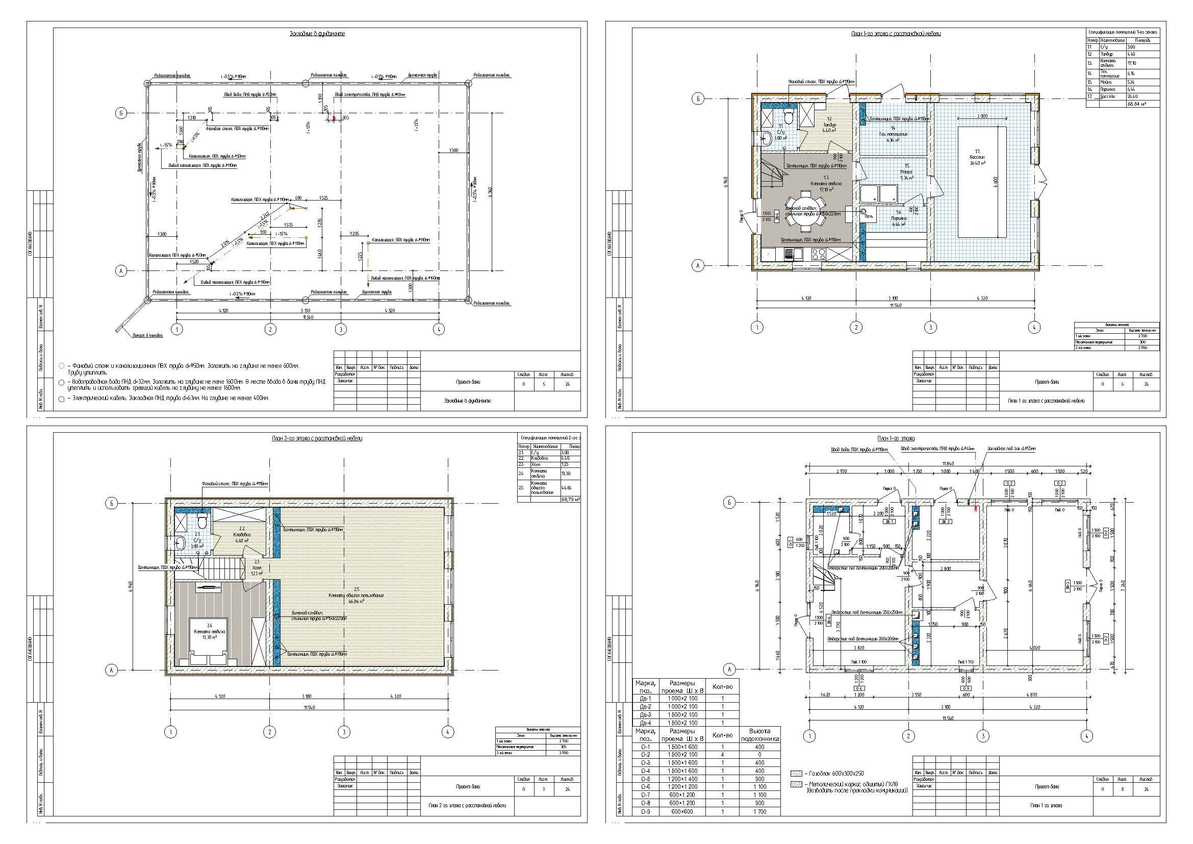
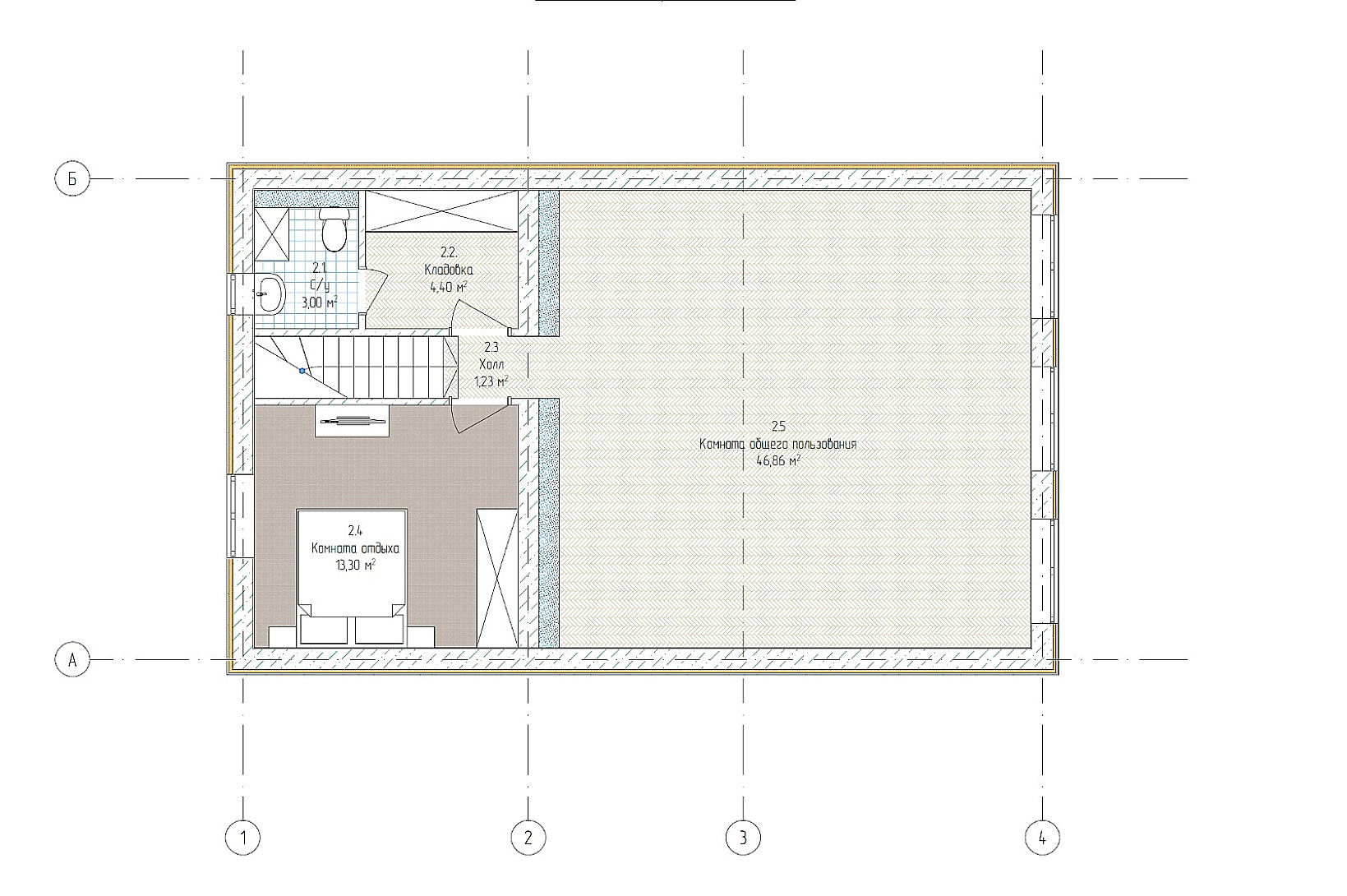
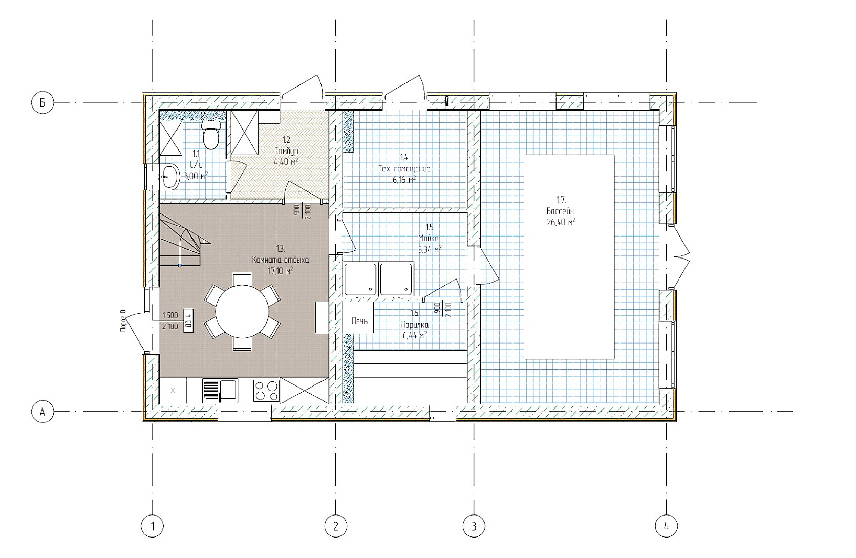
Дом ВС-107 представляет собой одноэтажное жилое здание с общей полезной площадью 136 квадратных метров. Этот показатель свидетельствует о наличии достаточного пространства, чтобы комфортно разместить всех членов семьи, даже при условии проживания четырех-пяти человек. Одноэтажная конструкция оптимальна для семей с маленькими детьми и пожилыми людьми, поскольку отсутствуют лестницы и связанные с ними риски травматизма.
Важной особенностью такого дома является простота планировки и удобство эксплуатации, что делает проект привлекательным для тех, кто хочет минимизировать затраты на внутренние коммуникации и обслуживание. Одноэтажное решение позволяет легко организовать все жилые и хозяйственные зоны, что способствует созданию гармоничного жилого пространства.
Количество и назначение комнат
Проект предусматривает две спальни, что прекрасно подходит для семьи с двумя детьми или парой без необходимости в дополнительных комнатах. Две спальни позволяют обеспечить каждому жильцу отдельное пространство для отдыха и личных дел, что значительно повышает качество жизни. Кроме того, наличие двух санузлов — это крайне удобное решение, особенно если в семье несколько членов, так как позволяет избежать утренних очередей и улучшает бытовой комфорт.
Предусмотрены также общие зоны, где семья может собираться вместе: гостиная, столовая и кухня. Современные тенденции проектирования акцентируют внимание на объединении этих зон, что способствует созданию более воздушного и светлого пространства внутри дома.
Планировка дома и функциональное зонирование
Проект дома ВС-107 предлагает продуманное функциональное зонирование, позволяющее максимально рационально использовать площадь 136 м². Основная идея — четкое разделение на приватные и общественные пространства. Приватная зона включает две спальни и санузлы, а общественная — просторную гостиную и кухню, что создает комфортные условия для отдыха и приема гостей.
Такая организация пространства позволяет жильцам чувствовать себя свободно, при этом обеспечивается нужный уровень уединения и личного пространства. В проекте учтены бытовые маршруты, что уменьшает пересечение зон и минимизирует шум в спальнях и рабочих местах.
Схема распределения комнат
| Помещение | Количество | Функциональное назначение |
|---|---|---|
| Спальни | 2 | Личные комнаты для отдыха и сна |
| Санузлы | 2 | Гигиенические зоны для семьи и гостей |
| Гостиная | 1 | Общая зона для отдыха и общения |
| Кухня-столовая | 1 | Место приготовления пищи и приема еды |
Преимущества такой планировки
- Рациональное использование каждого квадратного метра.
- Обеспечение приватности для всех членов семьи.
- Отсутствие лишних коридоров — увеличивается полезная площадь.
- Удобное расположение санузлов с доступом из разных частей дома.
- Функциональная кухонная зона с прямым выходом в гостиную.
Особенности одноэтажной конструкции
Одноэтажный дом ВС-107 – оптимальный выбор среди различных вариантов коллективного жилья. Главным преимуществом таких строений является удобство и простота эксплуатации. Все помещения расположены на одном уровне, что сокращает время перемещения между комнатами и исключает необходимость в лестницах.
Кроме того, одноэтажные дома отличаются более низкими затратами на строительство по сравнению с двух- и трехэтажными, поскольку не требуют возведения несущих конструкций для дополнительных этажей и специализированных лестничных систем. Это позитивно сказывается на общем бюджете строительства и в дальнейшем – на отоплении и обслуживании дома.
Преимущества одноэтажного дома ВС-107
- Эргономичность и функциональность.
- Повышенная безопасность, отсутствие риска падений по лестнице.
- Простота в организации коммуникаций и инженерных систем.
- Широкие возможности для адаптации и перепланировки.
- Эстетическое восприятие и связь с природой благодаря равнинному профилю.
Материалы и технология строительства
Для возведения дома ВС-107, как правило, применяются современные и проверенные временем строительные материалы, обеспечивающие надежность и долговечность здания. В зависимости от климатических условий и пожеланий заказчика могут использоваться различные технологии — от классического каркасного строительства до каменных блоков и кирпича.
Теплоизоляция и пароизоляция, качественные кровельные материалы и современные окна с двойным или тройным остеклением позволяют получить энергоэффективное жилище, комфортное в холодное время года и прохладное летом. Это является важным фактором и значительно снижает расходы на отопление и кондиционирование.
Основные материалы, используемые в проекте
| Материал | Назначение | Преимущества |
|---|---|---|
| Каменные блоки (газобетон, пенобетон) | Стены | Легкость, теплоизоляция, долговечность |
| Армированный бетон | Фундамент | Высокая прочность, устойчивость к деформациям |
| Дерево | Отделка | Экологичность, эстетика |
| Металлочерепица или сланцевая кровля | Крыша | Долговечность, устойчивость к осадкам и ветру |
| Современные стеклопакеты | Окна | Энергосбережение, повышение звукоизоляции |
Бюджет и стоимость строительства
При планировании строительства зачастую ключевым фактором является стоимость проекта. Дом ВС-107 предлагается по цене 4 823 254 рубля, что в современных реалиях является разумной инвестицией для дома площадью 136 м² с двумя спальнями и двумя санузлами. Такая цена включает возведение коробки, монтаж кровли, окна, двери и базовые инженерные системы.
Важно понимать, что итоговая стоимость может варьироваться в зависимости от выбранных материалов, уровня отделки, а также особенностей участка и других дополнительных факторов. Тем не менее, данный проект рассчитан на заказчиков, стремящихся к балансу между ценой и качеством.
Расходы в структуре бюджета строительства
| Статья расходов | Процент от общей стоимости | Комментарии |
|---|---|---|
| Фундамент и несущие конструкции | 30% | Основа прочности дома |
| Стены и кровля | 35% | Теплоизоляция и защита от осадков |
| Окна и двери | 10% | Энергосбережение и безопасность |
| Инженерия и коммуникации | 15% | Водоснабжение, электрика, отопление |
| Отделка и внутренние работы | 10% | Эстетика и комфорт |
Плюсы и минусы проекта дома ВС-107
Как и любой проект, дом ВС-107 имеет свои преимущества и некоторые ограничения. Важно ознакомиться с ними, чтобы принимать взвешенное решение и получить максимум удовлетворения от будущего жилья.
Преимущества
- Одноэтажная планировка улучшает комфорт и безопасность.
- Две спальни и два санузла обеспечивают удобство для семьи.
- В сравнении с двухэтажными аналогами — меньше затраты на отопление и обслуживание.
- Оптимальная площадь — ни много, ни мало для комфортного проживания.
- Современные строительные материалы обеспечивают энергоэффективность.
Ограничения
- Отсутствие гаража — необходимо предусмотреть отдельное место для автомобиля.
- Нет террас и балконов — любителям наружных зон для отдыха потребуется дополнительное проектирование этих элементов.
- Одна планировка не подойдет семьям с большим количеством членов или тем, кто нуждается в дополнительных рабочих кабинетах.
Кому подойдет дом ВС-107
Данный проект будет идеальным выбором для семейной пары с одним-двумя детьми, а также для тех, кто ищет уютное жилье с продуманной планировкой на одном уровне. Благодаря продуманной организации пространства, здесь будет комфортно и пожилым людям, и тем, кто предпочитает минимализм и функциональность.
Кроме того, дом подойдет тем заказчикам, кто стремится создать энергоэффективный дом с хорошими показателями теплоизоляции и минимальными затратами на эксплуатацию. При том, что строительство вписывается в разумный финансовый диапазон, заказчик получает дом с современным дизайном и всеми необходимыми удобствами.
Особенности эксплуатации и возможности для модернизации
После завершения стройки дом ВС-107 легко адаптируется под изменяющиеся нужды семьи. Несмотря на отсутствие собственного гаража, прилегающая территория позволяет организовать парковку. Планировка помещений предусматривает возможность установки дополнительной бытовой техники и мебели, а также модернизации инженерных систем.
Одноэтажный формат упрощает вопросы по техническому обслуживанию и нижнему ремонту коммуникаций. Легкая доступность к каждому помещению помогает быстро выявлять и решать возникающие проблемы, минимизируя временные и материальные затраты.
При желании в будущем можно добавить малые архитектурные формы, такие как навесы или легкие пристройки, расширяя функциональность и комфорт жилища.
Рекомендации по улучшению проекта
- Устройство террасы на заднем дворе для увеличения зоны отдыха.
- Добавление навеса или легкого каркасного гаража на участке.
- Использование современных систем «умного дома» для автоматизации освещения и отопления.
- Применение альтернативных источников энергии (солнечные панели) для снижения эксплуатационных расходов.
Заключение: разумный выбор для семьи
Дом ВС-107, с его одноэтажной архитектурой и продуманной планировкой, представляет собой оптимальное сочетание комфорта, функциональности и экономичности. Площадь 136 м² позволяет чувствовать себя свободно, включая двух спален и два санузла, что существенно повышает комфорт проживания. При этом стоимость ниже среднерыночной по подобным объектам, что делает проект доступным для широкой аудитории.
В современном мире, где ценится практичность и качество, подобный дом открывает возможности для воплощения жилищной мечты, который станет надежной и уютной семьей крепостью.










 — без лого_Страница_1/2300563917.jpg)
 — без лого_Страница_2/126932526.jpg)
 — без лого_Страница_3/3409630896.jpg)
 — без лого_Страница_4/3254771625.jpg)
 — без лого_Страница_5/223731511.jpg)
 — без лого_Страница_6/2212157652.jpg)