Введение в проект дома ВС-103
Проект дома ВС-103 представляет собой идеальное решение для тех, кто мечтает о просторном и стильном одноэтажном доме. С общей полезной площадью в 363 м2, этот дом сочетает в себе комфорт, функциональность и современный дизайн. Одноэтажное расположение делает его особенно удобным для семей с детьми или пожилыми людьми, а гармоничное зонирование пространства позволяет создавать уют и приватность в каждом уголке.
В данной статье мы подробно рассмотрим все ключевые особенности дома ВС-103, включая архитектурные решения, внутреннюю планировку, количество спален и санузлов, а также оценим стоимость строительства и преимущества выбора именно этого проекта. Этот материал будет полезен всем, кто планирует строительство частного дома и хочет получить максимально полное представление о возможностях данного проекта.
Общая характеристика дома ВС-103
Дом ВС-103 — это одноэтажный коттедж с впечатляющей полезной площадью в 363 м2. Одноэтажная конструкция облегчает передвижение по дому и приносит много удобств, связанных с отсутствием лестниц и дополнительной нагрузки на фундамент и конструкцию здания. Такой дом отлично подойдет для семей, ценящих комфорт, открытость пространства и функциональное разделение зон.
Несмотря на отсутствие гаража, планировка дома предусматривает множество жилых и вспомогательных помещений, которые удовлетворят потребности большой семьи. Четыре спальни обеспечивают достаточное пространство для проживания нескольких членов семьи, а наличие двух санузлов избавит от утренних очередей и создаст комфорт для всех обитателей.
Преимущества одноэтажного дома с большой площадью
Одноэтажный дом с площадью 363 м2 — это пространство, в котором можно реализовать самые амбициозные идеи для комфорта и удобства. Благодаря отсутствию второго этажа, дом легче и быстрее строится, а все коммуникации проходят проще, что удешевляет и ускоряет обслуживание здания.
Кроме того, такой формат дома идеально подходит для планирования открытых пространств, совмещая кухню с гостиной, создавая эффект единого большого пространства, столь популярного сегодня в архитектуре загородных домов. Это позволяет комфортно принимать гостей, проводить время всей семьей и организовывать праздники без лишних ограничений по площади.
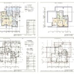
Архитектурные особенности и планировка
Проект дома ВС-103 уделяет большое внимание рациональному использованию полезной площади, благодаря чему удается разместить в доме все необходимые функции без потери комфорта. Четыре просторные спальни обеспечивают комфортный отдых для каждого члена семьи, а две ванные комнаты помогают избежать дискомфортных ситуаций.
Планировка предусматривает ясное разделение на дневную и ночную зоны, где дневная зона включает гостиную, кухню и столовую, а ночная — спальни и санузлы. Такое деление способствует созданию уюта и приватности, позволяя членам семьи отдыхать и сосредотачиваться на своих делах без взаимных помех.
Количество спален: 4 — для комфортной жизни семьи
Наличие четырех спален — значительное преимущество данного проекта. Каждая спальня может быть оборудована различными зонами: рабочим уголком, местом для хранения или детской игровой зоной. Это особенно ценно, если в семье есть дети разного возраста или планируется проживание вместе с пожилыми родственниками.
Просторные спальни создают атмосферу уюта и позволяют организовать интерьер согласно личным предпочтениям, от классического до современного стиля.
Два санузла – функциональность и удобство
Наличие двух санузлов в доме площадью 363 м2 обеспечивает дополнительный комфорт для всех членов семьи и гостей. Один из санузлов может быть оборудован ванной, а второй — душевой кабиной, что расширяет возможности использования и сокращает время ожидания в утренние часы.
Кроме того, расположение санузлов продумано с учетом функциональных зон дома, чтобы обеспечить легкий доступ к ним из всех жилых помещений, не нарушая приватности хозяев.
Стоимость строительства и экономическая выгода
Стоимость дома ВС-103 в размере 15 024 640 рублей впечатляет и на первый взгляд кажется значительной инвестицией. Однако, учитывая площадь в 363 м2 и планировку, этот проект представляет достойное соотношение цены и качества. Цена включает в себя использование качественных материалов, продуманный дизайн и оптимальное решение инженерных систем.
Рассматривая стоимость в разрезе цены за квадратный метр, можно увидеть, что она находится в оптимальном сегменте для домов подобного класса и размера. Стоит учитывать, что одноэтажные дома в этом ценовом диапазоне обладают множеством преимуществ, включая меньшие расходы на содержание и отопление, а также повышенную эргономичность.
Расчет стоимости на один квадратный метр
| Параметр | Значение |
|---|---|
| Полезная площадь | 363 м2 |
| Стоимость дома | 15 024 640 руб. |
| Стоимость за 1 м2 | ~41 400 руб. |
Этот показатель дает возможность сравнивать проект с другими вариантами на рынке и принимать обоснованное решение в пользу дома ВС-103.
Материалы и технологии строительства
Проект дома ВС-103 предусматривает использование современных строительных технологий и качественных материалов, что гарантирует долговечность и энергоэффективность здания. Вопросы теплоизоляции, звукоизоляции и прочности конструкций рассматриваются на этапе проектирования, что избавляет владельцев от необходимости дорогостоящего ремонта или доработок в будущем.
Правильный подбор материалов для фундамента, стен и кровли помогает оптимизировать расходы на эксплуатацию дома, снижая затраты на отопление и поддержание микроклимата в доме в любое время года.
Современные инженерные системы
- Энергоэффективное отопление и вентиляция;
- Современные коммуникации водоснабжения и канализации;
- Возможность интеграции умного дома;
- Электроснабжение с резервированием.
Эти решения обеспечивают комфортное проживание и удобство эксплуатации, а также способствуют устойчивости дома к внешним климатическим факторам.
Планировка и использование пространства
Дом ВС-103 легко адаптируется под нужды семьи благодаря продуманной планировке. Внутренние помещения организованы так, чтобы максимально раскрыть потенциал полезной площади, сохраняя при этом чувство пространства и легкости.
Наличие четырех спален позволяет выделить классические функции для родителей, детей и гостей. Два санузла сокращают временные затраты и увеличивают приватность. Гостиная и кухня объединены в единую зону, что усиливает атмосферу уюта и общения.
Типичная планировка дома ВС-103
| Комната | Функция | Особенности |
|---|---|---|
| Гостиная | Общение, отдых | Большие окна, выход на участок |
| Кухня | Приготовление пищи | Современная техника, островная зона |
| Столовая | Питание | Связка с кухней и гостиной |
| Спальни (4 шт.) | Отдых, личное пространство | Разные размеры, встроенные шкафы |
| Санузлы (2 шт.) | Гигиенические процедуры | Ванная, душевая кабина |
| Технические помещения | Хранение и коммуникации | Практичное расположение |
Архитектурный стиль и фасад
Дом ВС-103 отличается сдержанным и современным архитектурным стилем, который подчеркивает его внутреннюю функциональность и визуальную привлекательность. Одноэтажная конструкция выгодно выделяется благодаря лаконичным формам и грамотной работе с фасадными материалами.
Ведь фасад — это лицо дома, а проект ВС-103 предлагает гармоничное сочетание материалов и оттенков, которые впишутся практически в любой ландшафт. Применение больших окон и остекленных дверей обеспечивает светлую и уютную атмосферу внутри помещения.
Особенности дизайна фасада
- Использование натуральных отделочных материалов;
- Минималистичная цветовая гамма;
- Прямые линии и крупные формы;
- Экологическая направленность и гармония с природой.
Такой дизайн не только практичен, но и эстетически приятен, что делает дом ВС-103 привлекательным для многих покупателей и домовладельцев.
Подведение итогов выбора проекта ВС-103
Дом ВС-103 — это удачное сочетание больших габаритов, доступной цены и удобной одноэтажной планировки. Он предназначен для тех, кто ценит функциональность без потери стиля и стремится обеспечить максимальный комфорт для всей семьи.
Четыре спальни и два санузла делают этот дом оптимальным решением для большой семьи, а продуманный дизайн снижает издержки на эксплуатацию и обслуживание. Его строительство станет оправданной инвестицией в качество жизни и уют вашего дома на долгие годы.


















