Одноэтажный дом 5x10 м с площадью 168 м²: оптимальное решение для семьи
Современное строительство частных домов ориентировано на комфорт и функциональность в сочетании с привлекательной ценой. Дом 136 — это пример идеального баланса размеров, планировки и стоимости. Одноэтажный дом размерами 5 на 10 метров с полезной площадью 168 квадратных метров представляет собой удобное пространство для жизни семьи из 3-5 человек. Подобный формат практически исключает лишние метры, оставаясь при этом просторным и уютным.
Несмотря на компактные габариты, дом вместил в себя все необходимое: три спальни, две просторные ванные комнаты, кухню и гостиную, обеспечивая комфорт и приватность каждому члену семьи. Одноэтажный вариант станет особенно привлекательным для тех, кто ценит практичность и легкость в эксплуатации постройки, без необходимости использовать лестницы и дополнительные уровни.
Преимущества одноэтажного дома площадью 168 м²
Первое и самое очевидное преимущество — это удобство. Все помещения расположены на одном уровне, что упрощает передвижение, особенно для семей с детьми или пожилыми людьми. Отсутствие лестниц уменьшает расходы на строительство и последующую эксплуатацию, снижая теплопотери и обеспечивая более энергоэффективный дом.
Кроме того, одноэтажный дом с площадью 168 м² — это серьезное конкурирующее преимущество, если рассматривать градостроительные нормы и возможные ограничения по высоте в некоторых населенных пунктах. Вместе с тем, данный размер позволяет рационально использовать земельный участок, не занимая много места и оставляя возможность для организации сада или зоны отдыха.
Размеры дома 5x10 метров: как компактность переходит в комфорт
Несмотря на кажущуюся небольшую площадь лицевой стороны дома — 5 на 10 м — за счет продуманной планировки удалось обеспечить площадь, превышающую 160 м². Это стало возможным благодаря грамотному зонированию и рациональному использованию каждого квадратного метра.
Данный формат - узкий и удлиненный - часто вызывает вопросы относительно зонирования жилых и хозяйственных помещений. Однако, планировка дома 136 демонстрирует, что даже при таких габаритах можно организовать функциональное пространство с тремя спальнями и двумя санузлами.
Преимущества узких домов и особенности планировки
Одно из главных достоинств домов такого формата – экономия на фасаде и коммуникациях, так как вертикальные планировки позволяют размещать инженерные сети более компактно. К тому же, узкая форма позволяет обеспечить хорошее естественное освещение, так как большое количество окон можно разместить на обеих длинных стенах.
Для домов шириной 5 метров особенно важно тщательно продумывать наполнение комнат, чтобы не ощущать тесноты. В этом плане дом с 168 квадратными метрами — достаточно просторный, чтобы без ущерба для комфорта разместить три спальни и остальные помещения.
Количество спален и санузлов: комфорт и приватность для каждого
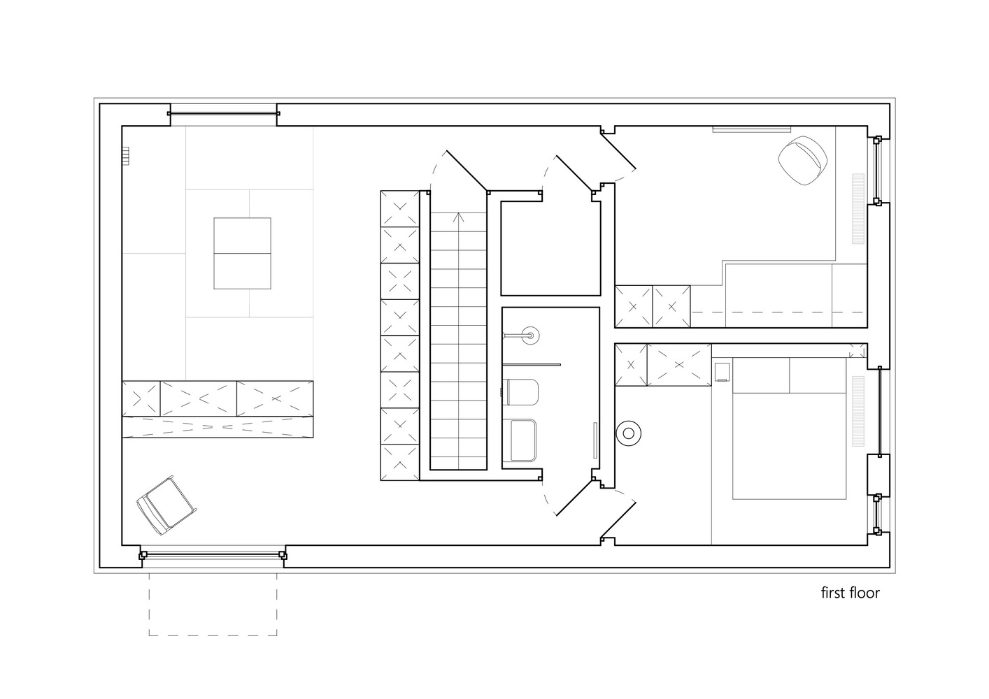
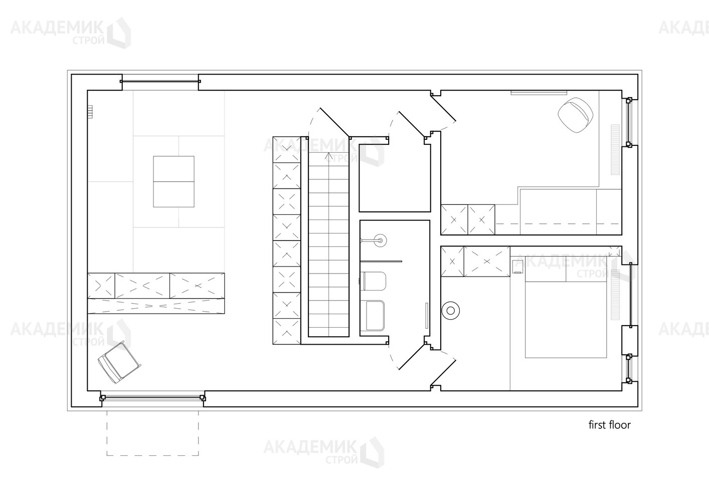
Ключевым параметром для семейного дома является количество спален и санузлов. Дом 136 предлагает три спальни – оптимальное количество для семьи из 3-5 человек, позволяющее выделить отдельные комнаты для родителей и детей. Такая конфигурация обеспечивает уединение, необходимое в повседневной жизни.
Две ванные комнаты также важны для удобства – одна может быть выделена для гостей и повседневного использования, вторая (например, в родительской спальне) служит местом уединения и личного комфорта.
Почему важно иметь две ванные комнаты в частном доме
Наличие двух санузлов значительно улучшает качество жизни в доме. В утренние часы, когда все собираются на работу и учебу, это упрощает рутину, позволяя избежать очередей и спешки. Кроме того, вторая ванная комната увеличивает гибкость использования пространства — например, она может служить гостевой или дополнительной зоной гигиены для детей.
Список преимуществ двух санузлов в доме
- Удобство для большой семьи
- Оптимизация времени утренних сборов
- Увеличение приватности
- Комфорт для гостей
- Дополнительные возможности дизайна интерьера
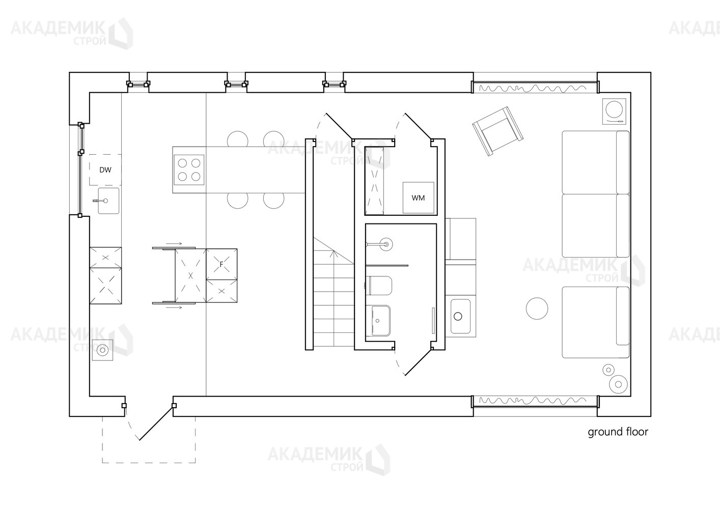
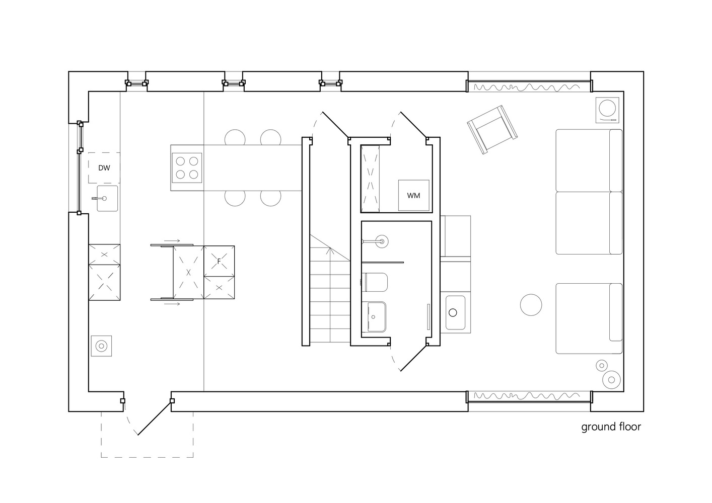
Планировка дома 136: ключевые особенности
При проектировании одноэтажного дома с размерами 5 на 10 м и площадью 168 м² особое внимание уделялось зонированию и удобству расположения помещений. В нем четко выделены общественные и приватные зоны, которые эффективно «разграничены», чтобы каждый член семьи мог чувствовать себя комфортно.
Обычно в таких домах гостиная совмещается с кухней, образуя единое большое пространство. Это позволяет визуально расширить комнату, сделать ее более светлой и воздушной. Также такая планировка способствует укреплению семейных связей, обеспечивая возможность проводить время вместе даже во время бытовых дел.
Типовой план размещения основных помещений
| Помещение | Описание | Примерная площадь (м²) |
|---|---|---|
| Гостиная + кухня | Объединенное просторное помещение для общения и приготовления пищи. | 45–50 |
| Спальня 1 (родительская) | Основная комната с возможностью размещения большой кровати и гардероба. | 18–20 |
| Спальня 2 | Комната для ребенка или гостевая спальня. | 15–18 |
| Спальня 3 | Дополнительное помещение для работы или хобби. | 14–17 |
| Санузлы (2 шт.) | Две ванные комнаты — одна с душевой, другая с ванной или унитазом. | 2 x 6–8 |
| Техническое помещение | Место для котельной, кладовой или хранения бытовой техники. | 5–7 |
Оптимизация пространства: советы для компактного дома
Для узких домов важно использовать компактную мебель, встроенные шкафы и рациональные зоны хранения. Применение раздвижных дверей и многофункциональных элементов поможет сэкономить полезное пространство. Удобно и эстетично организовать зоны помогает также грамотное освещение и сочетание светлых отделочных материалов.
Стоимость строительства дома 136: 5 682 331 руб. — что входит в цену?
Цена строительства частного дома является одним из ключевых факторов при планировании собственного жилища. Дом 136 с площадью 168 м² обходится ориентировочно в 5 682 331 рублей. Это конкурентоспособная стоимость, учитывая включение всех основных этапов от фундамента до отделки и инженерных коммуникаций.
В стоимость обычно входит закладка фундамента, возведение наружных и внутренних стен, кровельные работы, установка оконных и дверных блоков, проведение электрических и сантехнических коммуникаций. Также в комплектацию часто входят отделочные работы и настройка систем отопления и вентиляции.
Факторы, влияющие на стоимость строительства
- Качество материалов и их стоимость на региональном рынке
- Тип фундамента (ленточный, плитный, свайный и др.)
- Сложность архитектурного решения
- Используемые технологии и инженерные системы
- Уровень отделки и выбранные материалы
- Размер и геометрия дома
Экономия без ущерба качеству: на что обратить внимание
При строительстве дома важно найти оптимальный баланс между стоимостью и качеством материалов и услуг. Эффективным может стать выбор энергосберегающих систем, которые ускоряют окупаемость дома за счет снижения затрат на отопление и воду.
Также стоит обратить внимание на стандартные размеры и оптимизированную конструкцию, чтобы избежать лишних затрат на нестандартные решения. Дом 136 и его параметры рассчитаны именно с этой целью — сочетать компактность, функциональность и бюджетную доступность.
Практические рекомендации для будущих владельцев дома 136
Планируя строительство дома с параметрами 5x10 м и площадью 168 м² важно учитывать не только технические характеристики, но и грамотное оформление пространства вокруг участка. Стоит заранее продумать расположение входных групп, зон отдыха и хозяйственных построек.
Особое внимание уделяется ландшафтному дизайну: зеленые насаждения, дорожки и освещение дополняют общую атмосферу уюта и гармонии. Не стоит забывать и о качественной дренажной системе, которая защитит фундамент от подтопления и повысит долговечность всего строения.
Таблица: Рекомендации по эксплуатации и уходу
| Период | Необходимые работы | Цель |
|---|---|---|
| Ежемесячно | Проверка вентиляционных отверстий и систем | Обеспечение оптимального микроклимата |
| Ежегодно | Осмотр кровли и очистка желобов | Предотвращение протечек и повреждений |
| Каждые 3 года | Осмотр фундамента на трещины и усадку | Поддержание прочности здания |
| При необходимости | Покраска внешних и внутренних стен | Поддержание эстетики и защиты от износа |
Как выбрать участок для строительства дома 136?
Размеры дома 5 на 10 метров делают его пригодным для множества участков, в том числе для тех, где площадь площадки ограничена. При этом минимальная ширина и длина участка должны учитывать возможность комфортного расположения дома с учетом отступов и зон отдыха, а также подъездных путей и инженерных сетей.
Выгодно ориентировать дом так, чтобы длинные фасады были освещены солнцем в течение дня. Это поможет сэкономить на освещении и отоплении, сделает жилое пространство более светлым и уютным.
Список основных критериев при выборе участка для дома 136
- Равнинный или с небольшим уклоном рельеф для удобства строительства
- Наличие или возможность подключения инженерных коммуникаций
- Близость к основным объектам — дорогам, школам, магазинам
- Ориентация участка по сторонам света
- Безопасность и экологическая обстановка района
- Правила и ограничения местной застройки
Заключительные мысли о доме 136
Дом 136 — это одним из удачных решений для тех, кто ищет комфортное пространство, которое может вместить все нужды семьи, при этом оставаться разумным по бюджету и удобным в эксплуатации. Одноэтажный дом с размерами 5 на 10 м и площадью 168 м² предлагает продуманную планировку с тремя спальнями и двумя ванными комнатами, что позволит каждому почувствовать себя максимально комфортно.
Планируя строительство такого дома, следует уделять внимание не только выбору проекта, но и качеству материалов, грамотной организации строительства и участку для жизни. В итоге вы получите уютное, современное и энергоэффективное жилище, способное удовлетворить все потребности семьи сегодня и в будущем.






































