Обзор двухэтажного дома размером 11х12 метров
Проект двухэтажного дома размером 11 на 12 метров представляет собой оптимальное решение для семейного проживания на участке средней площади. Такой дом, обладая удобной планировкой и рациональным использованием площади, подходит для различных климатических зон и инфраструктурных условий. Благодаря двум этажам, строение предлагает максимально комфортное распределение жилых и технических помещений, что позволяет создать уютное и функциональное пространство для каждого члена семьи.
Размеры дома 11 на 12 метров – это баланс между компактностью и достаточной площадью для реализации различных дизайнерских идей. Такие габариты дают возможность разместить на участке постройки различного типа, сохраняя свободное пространство для огорода или зоны отдыха. Кроме того, дом двухэтажный, что позволяет экономить площадь земельного участка, не теряя в жилой площади.
Почему двухэтажный дом?
Выбор двухэтажного варианта обусловлен несколькими важными преимуществами. Во-первых, это эффективное зонирование пространств: на первом этаже традиционно располагаются общие зоны — кухня, гостиная, столовая, а второй этаж занимает приватная часть с спальнями и санузлами. Во-вторых, двухэтажный дом «экономит» площадь участка, позволяя увеличить полезную жилую площадь без увеличения площади застройки.
Также двухэтажный дом способствует более грамотному утеплению и энергоэффективности, так как вертикальное расположение комнат упрощает создание комфортного микроклимата в помещении. Не стоит забывать и про эстетическую составляющую: двухэтажные дома зачастую выглядят более внушительно и презентабельно.
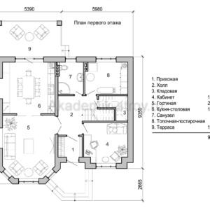
Планировка дома 11x12 м – рациональность и комфорт
Планировка является одним из ключевых аспектов при проектировании частного дома. В рассматриваемом проекте с размерами 11 на 12 метров удачно сочетаются функциональность и удобство каждого помещения. В доме предусмотрено три спальни и два санузла, что идеально подходит для семьи с несколькими детьми или для размещения гостей.
Жилые помещения
Три спальни – это оптимальное решение, позволяющее выделить отдельное пространство каждому члену семьи. Такая схема обеспечивает комфорт и приватность, а также дает возможность использовать одну из комнат в качестве кабинета или детской. Около двух санузлов расположены в разных зонах дома — один на первом этаже, другой на втором, что значительно повышает удобство использования.
Общие зоны и вспомогательные помещения
Зона гостиной и кухни объединены или связаны просторной проходной, что создаёт эффект открытого пространства. Такая планировка благоприятна для семейных вечеров, приема гостей и организации праздников. Вспомогательные помещения включают прихожую, возможно, кладовую или технические комнаты, которые помогают поддерживать порядок и функциональность дома.
Материалы и строительные технологии для дома 11x12 м
Выбор материалов для строительства дома напрямую влияет на стоимость, долговечность и комфорт проживания. В проектах домов размером 11 на 12 метров чаще всего применяются следующие материалы и технологии:
- Кирпич: классический и проверенный временем материал, обеспечивающий высокую прочность и отличную теплоизоляцию.
- Газобетонные блоки: современный и легкий материал, который сокращает нагрузку на фундамент и обеспечивает хорошие показатели теплоизоляции.
- Дерево: экологичный и эстетически привлекательный вариант, подходящий для тех, кто ценит натуральные материалы.
Также стоит учесть особенности фундамента и кровли, которые зависят от выбранного материала стен. К примеру, для кирпичных домов требуется более мощный фундамент, а деревянные конструкции можно возводить на облегченных вариантах.
Теплоизоляция и энергоэффективность
С текущими требованиями к энергоэффективности дома, проект 11x12 м предусматривает обязательную теплоизоляцию фасадов, кровли и пола. Применение современных утеплителей и качественного остекления позволяет сохранить тепло зимой и прохладу летом, что значительно снижает эксплуатационные расходы на отопление и кондиционирование.
Преимущества и недостатки размеров 11х12 метров
Размеры дома 11х12 метров относятся к категории средних, что делает их очень популярными для частного строительства. Рассмотрим основные преимущества и ограничения такого варианта.
Преимущества
- Оптимальное габаритное соотношение: дом не занимает слишком много места на участке, оставляя место для ландшафтного дизайна и дополнительных построек.
- Возможность создания комфортной инфраструктуры внутри: охватывает все необходимые помещения для современной семьи, включая спальни, санузлы, гостиную и кухню.
- Удобство эксплуатации: оптимальная площадь упрощает уборку и обслуживание.
- Гибкость планировки: дополнительные опции и возможности перепланировки.
Недостатки
- В случае большого участка, площадь дома может показаться недостаточной для реализации проектов с более роскошным пространством.
- За счет компактности помещения могут быть меньше по площади, что стоит учитывать при выборе дизайна.
Количество спален и санузлов – идеальное сочетание для семьи
В сегодняшних реалиях семья нуждается в жилье, которое соответствует не только количеству жильцов, но и их образу жизни. Три спальни в доме 11х12 метров — это классика, позволяющая подобрать разнообразные варианты использования комнат. Родительская спальня, детская и phòng для гостей или кабинет — это стандарт для современного комфорта.
Наличие двух санузлов особенно важно для семьи с детьми или при частом приеме визитеров. Это позволяет избежать утренних очередей и создает дополнительный комфорт. Продуманное расположение санузлов на разных этажах — еще одна важная деталь, которая делает дом максимально удобным для жизни.
Примерная планировка двухэтажного дома 11х12 метров
Для наглядности приведем примерную планировочную схему, которая может применяться в подобном проекте. Это поможет представить объемы и распределение пространства.
| Этаж | Помещение | Примерная площадь (м²) | Описание |
|---|---|---|---|
| Первый | Гостиная | 30-35 | Специальная зона для отдыха и общения семьи, часто объединяется с кухней. |
| Первый | Кухня-столовая | 15-20 | Практичное пространство для приготовления еды и семейных ужинов. |
| Первый | Прихожая | 8-10 | Входная зона для хранения верхней одежды и обуви. |
| Первый | Санузел | 4-6 | Общий туалет с моечной зоной, удобен для гостей. |
| Второй | Спальня 1 | 12-15 | Основная спальня для родителей или главной хозяйки дома. |
| Второй | Спальня 2 | 10-14 | Детская или гостевая комната. |
| Второй | Спальня 3 | 8-12 | Дополнительная спальня, кабинет или игровая. |
| Второй | Санузел | 5-7 | Полноценный санузел с ванной или душевой кабиной для семьи. |
Особенности строительства и ключевые этапы
Строительство дома размером 11 на 12 метров включает несколько основных этапов, каждый из которых важен для получения качественного и надежного результата.
1. Проектирование
На этом этапе создается подробный архитектурный и инженерный план. Учитываются особенности участка, климат, пожелания заказчика и нормы строительства. В проекте тщательно прописываются все размеры, конструкции и коммуникации.
2. Фундамент
Выбор типа фундамента зависит от грунтовых условий и массы здания. Для двухэтажного дома обычно выбирается ленточный или свайный фундамент, обеспечивающий надежную опору.
3. Возведение стен и перекрытий
В зависимости от выбранного материала стен ведется кладка или сборка конструкции. Монтаж перекрытий между этажами осуществляется с применением железобетонных плит или деревянных балок.
4. Кровельные работы
Укладка кровли, гидро- и теплоизоляция кровельного пирога – важные этапы, влияющие на долговечность дома и комфорт проживания.
5. Установка окон и дверей
Выбор стеклопакетов и дверных конструкций оказывает влияние на шумо- и теплоизоляцию помещений.
6. Внутренние и наружные отделочные работы
Завершающий этап включает отделку стен, полов, потолков, монтаж инженерных коммуникаций и оборудование помещений мебелью.
Советы по выбору участка для строительства двухэтажного дома 11x12 м
Перед началом строительства важно правильно подобрать участок, чтобы дом полностью соответствовал ожиданиям. Минимальные размеры участка для дома такой площади должны позволять разместить постройку с запасом для подсобных зон и коммуникаций.
- Расположение: участок должен быть благоустроен с удобным подъездом и доступом к городским коммуникациям (водопровод, электросеть, канализация).
- Размеры: с учетом размеров дома 11х12 м, минимальная площадь участка должна быть не менее 10 соток, чтобы обеспечить комфортное расстояние до границ соседних участков.
- Рельеф: ровная или с незначительным уклоном территория облегчает строительство и снижает затраты.
- Экология и инфраструктура: важно учитывать качество воздуха, близость лесопарков, наличие школ, магазинов и других инфраструктурных объектов.
Стоимость строительства и факторы, влияющие на цену
Стоимость возведения дома такого формата зависит от множества факторов. Основные из них включают тип материалов, уровень отделки, инженерные системы и выбранные технологии строительства.
Основные статьи расходов:
| Статья расходов | Влияние на стоимость | Примерный % от бюджета |
|---|---|---|
| Фундамент | В зависимости от типа и глубины | 15–20% |
| Стены и перекрытия | Материал и технология кладки | 30–40% |
| Кровля | Тип крыши и покрытие | 10–15% |
| Инженерные коммуникации | Отопление, водоснабжение, электрика | 15–25% |
| Отделочные работы | Выбор материалов и дизайн | 10–20% |
Планирование бюджета и контроль всех этапов строительства помогают избежать дополнительных затрат и сэкономить средства без потери качества.
Энергосбережение и экологичность – современный тренд в строительстве
Проект двухэтажного дома 11х12 м отвечает актуальным стандартам энергоэффективности и экологичности. Использование натуральных материалов, современных утеплителей и энергоэффективных окон позволяет снизить теплопотери, а также сократить выбросы вредных веществ в процессе эксплуатации.
Отдельное внимание уделено системам вентиляции и отопления с рекуперацией тепла, что обеспечивает комфортный микроклимат при минимальных энергозатратах. Такие технологии дают возможность существенно сократить расходы на содержание дома и повысить уровень экологичности.
Особенности фасадного оформления и стилевые решения
Фасад дома – это не просто оболочка, а лицо строения, отражающее вкусы и предпочтения владельцев. Проектируя дом 11х12 м, архитекторы предлагают сочетание практичности и эстетики. Современные фасады включают в себя комбинации различных материалов: декоративной штукатурки, облицовочной плитки, натурального или искусственного камня, деревянных элементов.
Стиль оформления может варьироваться от классики и современного минимализма до более эклектичных решений, позволяющих построить уникальный дом. Внимание к деталям, таким как цветовая гамма, форма окон и дверей, а также декоративные элементы фасада, формирует индивидуальный образ.
Резюме – идеальный семейный дом с разумными планировочными решениями
Двухэтажный дом размерами 11 на 12 метров является прекрасным выбором для многих семей, предлагая достаточную жилую площадь, оптимальное количество спален и санузлов для комфортного проживания. Такой дом легко адаптируется под различные бюджетные и конструктивные требования, совмещая удобство, эстетические качества и функциональность.
Рациональная планировка, современные материалы и технологии строительства, возможность реализации энергосберегающих систем делают этот проект привлекательным для тех, кто планирует построить комфортное жилье на своем участке.























