Введение в проект двухэтажного дома 9х11 м
Строительство частного дома — это всегда важный и ответственный шаг, который требует тщательного планирования и выбора оптимального проекта. Одним из наиболее востребованных вариантов является двухэтажный дом размером 9 на 11 метров с общей площадью 133.72 м2. Этот формат сочетает в себе комфорт, функциональность и экономичность, что делает его привлекательным для многих семей.
В этой статье мы подробно разберём особенности данного проекта, поговорим о его преимуществах, планировочных решениях, а также особенностях строительства. Если вы задумались о возведении собственного жилья, то данный материал поможет вам лучше понять, что представляет собой этот популярный тип дома и почему именно он может стать идеальным выбором для вас.
Размеры и этажность дома 9x11 м
Размеры дома — 9 на 11 метров — оптимально подходят для размещения всех необходимых жилых и хозяйственных зон, при этом сохраняя компактность и умеренную площадь застройки. Два этажа позволяют значительно расширить жилое пространство без увеличения площади участка, что особенно актуально для небольших или средних по размеру участков.
Двухэтажная конструкция даёт массу преимуществ, включая возможность чётко разделить зоны отдыха, работы и приёма гостей. Также такая этажность позволяет более рационально использовать инженерные коммуникации и создать архитектурно выразительный фасад.
Планировка дома и функциональные зоны
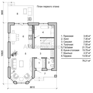
Ключевым элементом, определяющим комфорт в доме 9х11, является грамотная планировка. В проекте предусмотрено две спальни и два санузла, что обеспечивает комфорт для семьи из четырёх и более человек.
Спальные комнаты
Наличие двух спален подходит для проживания родителей и детей, а также позволяет выделить гостевую комнату или кабинет. Расположение спален на втором этаже обеспечивает приватность и тишину, позволяя отдохнуть от дневной суеты.
Санузлы
Два санузла — это удобство и практичность. Один санузел, расположенный на первом этаже, обычно предназначен для гостей и быстрого доступа в дневное время, второй же — ближе к спальням на втором этаже для комфорта проживающих. Такой подход сводит к минимуму очереди по утрам и повышает качество жизни.
Материалы и технологии строительства
Выбор материалов — один из самых важных аспектов при строительстве, так как от него зависит долговечность, энергоэффективность и внешний вид дома. Для дома размером 9 на 11 метров часто используют различные варианты: кирпич, газоблоки, дерево, каркасные технологии.
Каждый из этих материалов имеет свои достоинства и недостатки, которые необходимо учесть при планировании бюджета и сроков строительства. Например, кирпич обеспечивает высокую прочность и отличную теплоизоляцию, но требует больших затрат и времени на возведение. Газоблоки и пеноблоки более легкие и дешевые, они позволяют быстрее возводить стены и обеспечивают хорошие теплоизоляционные свойства. Современные каркасные дома отличаются быстротой монтажа и меньшими затратами на отопление, но требуют качественной защиты от влаги и ветра.
Изоляция и энергосбережение
В условиях российского климата крайне важно позаботиться о теплоизоляции стен, перекрытий и кровли, чтобы сохранить тепло в зимний период и прохладу в летний. Эффективная теплоизоляция не только повышает комфорт, но и снижает затраты на отопление и кондиционирование.
Ячеистые материалы и современные утеплители, такие как минеральная вата, пенополистирол или эковата, применяются для теплоизоляции. Особое внимание уделяется утеплению оконных и дверных проёмов, где обычно наблюдаются самые существенные теплопотери.
Варианты использования пространства в доме 9х11
Общая площадь 133.72 м² позволяет разместить в доме все необходимые помещения для комфортного проживания. Однако грамотное зонирование пространства играет не меньшую роль, чем его размер.
Зонирование первого этажа
Обычно на первом этаже располагается гостиная, кухня-столовая и вспомогательные помещения. Такая организация пространства позволяет создать зону для приёма гостей и совместного семейного отдыха, а также эффективно использовать пространство для решения бытовых задач.
Второй этаж — зона отдыха и уединения
Второй этаж чаще всего отводится под личные комнаты: спальни, кабинеты и иногда дополнительные санузлы. Это способствует разделению дневной активности и времени отдыха, что благотворно влияет на психологический комфорт семьи.
Преимущества двухэтажного дома 9х11 м
Двухэтажные дома такого размера обладают рядом несомненных преимуществ, делающих их востребованными среди застройщиков:
- Эффективное использование участка. Компактные размеры позволяют возводить дом даже на относительно небольшом участке, оставляя место для сада, зоны отдыха или хозяйственных построек.
- Разделение функциональных зон. Расположение комнат на двух этажах позволяет создать приватные и общественные пространства, что обеспечивает комфорт всем членам семьи.
- Оптимальная площадь. 133.72 м² — это площадь, способная удовлетворить потребности семьи из 3-5 человек без излишних затрат на отопление и содержание.
- Возможность индивидуализации. Проект легко адаптируется под различные стили и материалы, что позволяет создать дом, максимально соответствующий вкусовым предпочтениям и бюджету.
Особенности планирования инженерных систем
При возведении двухэтажного дома важно детально проработать все инженерные системы: отопление, водоснабжение, канализацию, электричество и вентиляцию. Правильное размещение труб, кабелей и оборудования влияет на удобство эксплуатации и экономию ресурсов.
Отопление и вентиляция
Двухэтажный дом требует продуманного подхода к отоплению, так как теплый воздух имеет тенденцию подниматься вверх. Обычно предусматривается установка радиаторов или систем тёплого пола на первом и втором этаже с отдельным регулированием температур. Хорошо спроектированная вентиляция обеспечивает свежий воздух и устраняет влажность, предупреждая появление плесени и сохраняя здоровье жильцов.
Санитарные коммуникации
Поскольку в доме расположены два санузла, рекомендуется сближать их по вертикали, чтобы облегчить прокладку стояков и упростить монтаж канализационной системы. Это снижает затраты на строительство и техническое обслуживание дома.
Основные параметры дома 9х11 в таблице
| Параметр | Значение |
|---|---|
| Размеры дома | 9 x 11 м |
| Количество этажей | 2 этажа |
| Общая площадь | 133.72 м² |
| Количество спален | 2 |
| Количество санузлов | 2 |
Советы по выбору проекта и этапы строительства
Выбирая проект двухэтажного дома 9х11, важно учитывать не только размеры и количество комнат, но и потребности семьи, особенности участка, климатические условия и финансовые возможности. Лучше всего обращаться к профессионалам, которые помогут адаптировать проект под ваши условия.
Основные этапы строительства включают в себя выбор участка, подготовку проектной документации, получение разрешений, геодезические и земельные работы, возведение фундамента, стен, кровли, монтаж инженерных систем и отделку. Каждый этап требует внимания к деталям и профессионального подхода.
Заключение
Двухэтажный дом размером 9 на 11 метров с площадью около 134 кв.м. — это гармоничное решение, идеально сочетающее удобство, компактность и функциональность. Подобные проекты отвечают самым актуальным запросам современных семей, предлагая комфортное пространство для жизни и отдыха при разумных затратах на строительство и эксплуатацию.
Если вы ищете дом, который можно быстро возвести, удобно обустроить и адаптировать под любые нужды, двухэтажный дом 9х11 м станет для вас отличным вариантом. Рациональное использование площади, продуманная планировка и соблюдение современных стандартов строительства помогут создать уютный и надёжный семейный очаг на долгие годы.






















