Дом 121: воплощение комфорта и современного стиля в одноэтажном формате
Построить дом своей мечты — это задача, к которой стоит подходить с особым вниманием. Сегодня мы рассмотрим один из самых впечатляющих проектов в области частного домостроения — одноэтажный Дом 121 размером 16 на 20 метров с общей полезной площадью впечатляющих 623 квадратных метра. Несмотря на то, что дом занимает довольно большую площадь, он выполнен в удобном одноэтажном формате, что обеспечивает легкость перемещения и гармоничное сочетание помещений.
Для многих семей, выбирающих современное частное жилье, важны просторные и функциональные планировки. Этот проект как нельзя лучше отвечает этим требованиям, предлагая большое количество спален и санузлов, что идеально подходит для большой семьи или для тех, кто ценит комфорт и личное пространство каждого члена семьи.
Габариты и планировка: идеальное сочетание практичности и эстетики
Размеры дома 16 на 20 метров создают просторное и комфортное внутреннее пространство, но при этом позволяют разместить его на участке средней площади, что важно в условиях современных коттеджных поселков и загородной жизни. Одноэтажный формат гарантирует удобство, особенно для семей с детьми или пожилыми членами семьи, исключая необходимость лестниц и обеспечивая максимальную безопасность.
Полезная площадь в 623 квадратных метра впечатляет: такой объем позволяет выдержать как масштабные общие зоны для семейных встреч и приема гостей, так и уютные личные пространства для каждого. Дом спроектирован таким образом, чтобы его функциональность перекликалась с современными требованиями к удобству и энергоэффективности.
Основные преимущества одноэтажного дома с большой площадью
- Удобство перемещения: отсутствие лестниц облегчает доступ ко всем помещениям.
- Безопасность: сводится к минимуму риск падения, что особенно важно для маленьких детей и пожилых людей.
- Рациональное использование пространства: грамотная планировка позволяет максимально эффективно использовать каждый квадратный метр.
- Энергоэффективность: одноэтажный дом проще отапливать и охлаждать, что снижает эксплуатационные расходы.
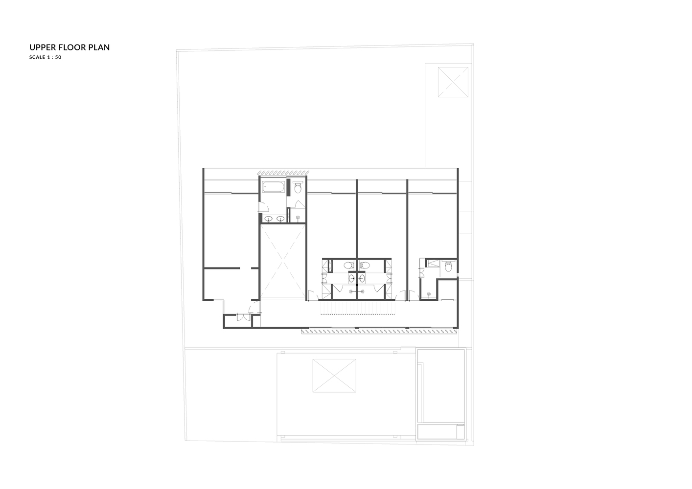
Комфорт и функциональность: четыре спальни и более пяти санузлов
Одним из ключевых факторов при выборе проекта дома является количество жилых комнат и санузлов. В данном случае Дом 121 обладает четырехспальной планировкой, что идеально подходит для семьи с детьми, а также позволяет выделить пространство для кабинета или гостевой комнаты.
Наличие более пяти санузлов (включая гостевой и возможно хозяйственные) — это редкость для частных домов и несомненное удобство для всех членов семьи и гостей. Это обеспечивает комфортное использование без очередей в моменты повышенной активности, например, утром или вечером, когда все готовятся к выходу или отдыху.
Преимущества большого количества санузлов в частном доме
- Повышенный уровень комфорта и личного пространства для каждого.
- Гигиеничность и удобство при совместном проживании нескольких поколений.
- Возможность оборудовать санузлы разного назначения: для детей, взрослых, гостей и хозяйственные.
- Увеличение стоимости недвижимости за счет продуманной и комфортной планировки.
Стоимость и инвестиции: 26 757 747 рублей за дом мечты
Стоимость строительства дома площадью 623 м2 в размере 26 757 747 рублей может показаться внушительной, однако следует понимать, что данный проект представляет собой высококачественное строительство с использованием современных материалов и технологий, ориентированное на долговечность и комфорт.
Инвестиции в недвижимость такого уровня — это не только покупка стен и крыши, это вложение в качество жизни, престиж и будущее вашей семьи. Подобный дом долгое время будет служить верой и правдой, учитывая грамотную эксплуатацию и своевременное обслуживание.
Сравнение стоимости с аналогичными проектами
| Проект | Площадь, м² | Этажность | Цена, руб. | Цена за м², руб. |
|---|---|---|---|---|
| Дом 121 (наша тема) | 623 | 1 | 26 757 747 | 42 934 |
| Проект "Современный комфорт" | 350 | 2 | 15 000 000 | 42 857 |
| Проект "Эксклюзив" | 500 | 1 | 22 000 000 | 44 000 |
Как видно из таблицы, стоимость за квадратный метр у Дома 121 находится на конкурентоспособном уровне, учитывая его параметры и удобства.
Планировка и внутреннее оформление: как организовать пространство максимально эффективно
Одноэтажный дом площадью более 600 метров — это не просто комфорт, но и вызов в планировании интерьера. Важно, чтобы каждый квадратный метр использовался рационально, не создавая ощущения пустоты, но не перегружая пространство.
Проект предусматривает не только спальни и санузлы, но и просторные общие зоны — кухню, столовую, гостиную, возможно кабинет и техпомещения. Такое зонирование позволяет каждому члену семьи найти свой уголок для отдыха и работы, а также соседствовать без ощутимой тесноты.
Рекомендации по эргономике внутреннего пространства
- Разграничение личной и общественной зон: спальни и санузлы отделены от гостиной и кухни.
- Максимально большое остекление в общественных зонах для наполнения помещений естественным светом.
- Использование многофункциональной мебели для оптимизации пространства.
- Расположение санузлов вблизи спален для удобства использования.
- Создание просторных коридоров и зон перехода для чувства свободы и простора.
Как правильно выбрать участок для дома размером 16x20 метров
При планировании строительства дома этого размера важно учитывать минимальные параметры участка, чтобы обеспечить комфортный доступ к дому, возможность создания сада или зоны отдыха, а также соблюдение нормативных отступов.
Хотя в техническом задании не указан минимальный размер участка, с логической точки зрения необходима ширина минимум около 25-30 метров и длина 30-35 метров для комфортного размещения дома с учетом придомовой территории.
Советы по выбору участка под строительство
- Географическое положение: выбирайте участок с удобным транспортным доступом и развитой инфраструктурой.
- Рельеф: предпочтителен ровный или слабоклоновый участок для облегчения строительства.
- Коммуникации: наличие или возможность подключения к водоснабжению, электросети и канализации.
- Ориентация по сторонам света: дом должен получать максимальное количество естественного света.
- Окружающая среда: отсутствие вредных производств и шумов.
Строительные материалы и технологии: гарантированное качество на долгие годы
Для дома с такими размерами и стоимостью особо важен выбор материалов, обеспечивающих долговечность, энергоэффективность и комфорт. Современный подход заключается в использовании комбинированных технологий, которые сочетают в себе теплоизоляционные, прочностные и экологичные характеристики.
Чаще всего для подобных проектов используют газобетонные блоки, кирпич, а также расширенные системы утепления и вентиляции. Кровля, несмотря на отсутствие точных данных, как правило, выполняется из долговечных материалов — металлочерепицы, композитной черепицы или гибкой черепицы, обладающих долговечностью и эстетической привлекательностью.
Преимущества современных строительных материалов
- Энергоэффективность: снижают потери тепла и обеспечивают комфортный микроклимат.
- Экологичность: безопасны для здоровья жильцов.
- Прочность и надежность: обеспечивают долговечность конструкции.
- Простота монтажа: сокращают сроки строительства.
Организация инженерных систем в доме площадью 623 м2
Современный одноэтажный дом с большой площадью требует продуманной системы коммуникаций: отопление, водоснабжение, электричество, канализация, вентиляция и кондиционирование. При проектировании важен комплексный подход, который обеспечит эффективное и надежное функционирование всех систем, при этом экономя ресурсы и снижая расходы на эксплуатацию.
Особое внимание уделяется разделению зон отопления — например, отдельное отопление гостиной, спален или технических помещений позволяет регулировать температурный режим в доме по потребности. Также важно предусмотреть систему рециркуляции воздуха и очистки, что особенно актуально для больших жилых помещений.
Основные инженерные решения для комфорта и безопасности
- Использование системы "умный дом" для автоматизации управления коммуникациями.
- Установка энергоэффективных котлов и систем отопления.
- Резервное электроснабжение для обеспечения бесперебойной работы.
- Современные системы фильтрации и очистки воды.
- Интеграция систем безопасности и пожаротушения.
Размышления о бюджетировании: финансирование строительства крупного одноэтажного дома
Сумма в 26,7 миллиона рублей требует тщательного бюджетирования и планирования этапов строительства. Важно равномерно распределить средства на закупку материалов, оплату труда строительной бригады, инженерные системы и отделочные работы, а также оставить резерв на непредвиденные расходы.
Для подобных проектов рекомендуется работать с опытными подрядчиками, которые помогут оптимизировать расходы без потери качества и предложат эффективные решения, соответствующие вашему бюджету и требованиям.
Этапы финансирования строительства
| Этап | Процент от общего бюджета | Комментарий |
|---|---|---|
| Закупка материалов | 40% | Основная статья расходов |
| Оплата работ | 35% | Строительство и отделочные работы |
| Инженерные системы | 15% | Монтаж отопления, водоснабжения и т.п. |
| Непредвиденные расходы | 10% | Резерв на форс-мажорные обстоятельства |
Дом 121 как инвестиция в качество жизни
Строительство дома с такими характеристиками — это не просто возведение здания, а создание пространства для счастливой и комфортной жизни. Большая площадь в сочетании с продуманной одноэтажной планировкой предоставляет уникальные возможности для семейного уюта, личного развития и приема гостей.
В конечном итоге, Дом 121 — образец баланса между масштабом, функциональностью и стоимостью, который позволяет получить жилье высокого класса, отвечающее всем современным требованиям и предпочтениям семейного образа жизни.






















