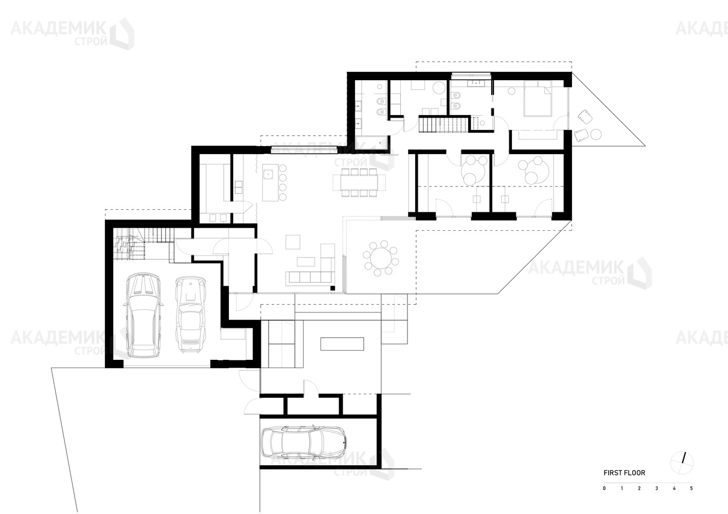
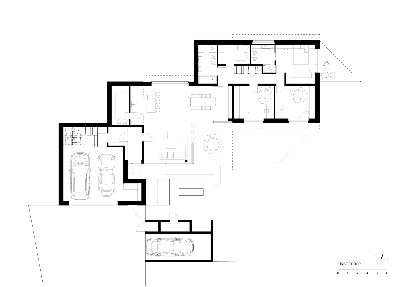
Обзор одноэтажного дома 99: пространство и комфорт на 674 м2
Когда речь заходит о строительстве частного дома, каждый владелец мечтает о просторном и комфортном жилище, которое объединит в себе практичность и стиль современного жилья. Дом 99 — это яркий пример такой мечты, воплощённый в реальность. Одноэтажный дом размером 23x27 метров с полезной площадью 674 квадратных метров предлагает уникальное пространство, способное удовлетворить потребности большой семьи и создать неповторимую атмосферу уюта и гармонии.
Пространство в 674 м2 — это далеко не просто цифра. Здесь можно говорить о широких возможностях для зонирования интерьера, организации нескольких функциональных зон и свободного перемещения без ощущения тесноты. В этом доме можно реализовать как классический, так и современный стиль интерьера, благодаря грамотно продуманной планировке и оптимальному мегапространству.
Размеры дома: что предлагает планировка 23 на 27 метров
Габариты дома 23 х 27 м задают оптимальные пропорции для одноэтажного строительства, позволяя создать гармоничную композицию помещений с удобным распределением функциональных зон. Такой формат позволяет сочетать просторные гостиные, обширные спальни и технические комнаты без компромиссов по площади.
В доме площадью около 674 м2 размеры фасада и глубины дома создают как внешне выразительный вид, так и просторное внутреннее пространство. Это дает возможность расположить комнаты так, чтобы получить максимум естественного света, а также организовать удобные проходы между комнатами.
Особенности одноэтажного дома: преимущества и практичность
Одноэтажные дома имеют множество неоспоримых преимуществ. Во-первых, отсутствие лестниц создаёт комфорт и безопасность для всех членов семьи, включая детей и пожилых людей. Во-вторых, одноуровневая планировка облегчает работы по уборке и обслуживанию дома.
Для дома 99 с четырьмя спальнями и тремя санузлами эта концепция особенно актуальна, ведь все помещения располагаются на одном уровне, что делает жильё максимально удобным. Такой подход особенно ценится в семьях с людьми разных возрастов.
Почему именно 1 этаж?
Одноэтажный дом — оптимальное решение в условиях больших площадей и разнообразных потребностей семьи. На просторной площади 674 м2 можно комфортно разместить зоны для отдыха, приёма гостей, работу и личное пространство каждого члена семьи. Кроме того, строительство одноэтажного дома зачастую обходится дешевле, чем многоэтажного с таким же полезным объемом, благодаря отсутствию лестничных маршей и меньшим нагрузкам на фундамент.
Внутреннее пространство и количество комнат
Четыре спальни — уют и личное пространство для каждого
Четыре спальни в доме 99 создают идеальные условия для семьи из нескольких человек или для тех, кто любит принимать гостей. Каждая спальня может быть оформлена в индивидуальном стиле и организована с учётом личных потребностей. Это позволяет создавать комнаты для отдыха, работы, хобби или детских игр.
При проектировке дома уделяется большое внимание не только площади спален, но и их расположению, чтобы обеспечить максимальную звукоизоляцию и приватность для каждого члена семьи. В то же время, грамотная планировка позволяет легко перемещаться между комнатами, что является немаловажным для комфортной жизни.
Три санузла — удобство и дополнительный комфорт
Наличие трёх санузлов — одна из важнейших характеристик дома с большой полезной площадью. Это значит, что проблема очередей в ванной исчезает, каждый член семьи может пользоваться ванной комнатой без ограничений, а гости при этом имеют отдельное пространство.
Три санузла дают возможность не только комфортно распределить их по дому, но и оборудовать разные помещения под различные функции: основная ванная комната, гостевой санузел и санузел рядом с хозяйской спальней, например. Это важно для удобства и эргономики жилья.
Стоимость дома 99 – 24 422 967 рублей: за что вы платите?
Общая стоимость дома в 24 422 967 рублей – это совокупность множества факторов, которые определяют уровень комфорта и качество строительства. В цену входит не только высокая полезная площадь и масштаб проекта, но и современная технология строительства, высококачественные материалы, инженерные системы и отделка.
Такой дом – это уже не просто жильё, а полноценный жилой комплекс, который обеспечивает высокую степень комфорта и безопасности, соответствующий стандартам энергоэффективности и экологичности. Каждый рубль вложенный в этот дом – это инвестиция в комфорт жизни на долгие годы.
Состав стоимости объекта
| Статья расхода | Описание | Влияние на стоимость |
|---|---|---|
| Материалы | Качество и тип строительных материалов, а также их количество для большого дома. | Значительное |
| Работы | Строительство фундамента, возведение стен, кровля, отделка и внутренние работы. | Высокое |
| Инженерия | Устройство систем отопления, водоснабжения, электрики и вентиляции. | Среднее |
| Дизайн и планировка | Разработка проекта с учётом эргономики и функциональности. | Незначительное |
| Дополнительные расходы | Возможно, подключение коммуникаций, разрешительная документация, налоги. | Среднее |
Преимущества одноуровневого большого дома для современной семьи
Для многих семей дом площадью 674 м2 кажется настоящей мечтой, ведь здесь легко можно воплотить все пожелания по части комфорта и функционала. Особенно одноэтажный формат подходит тем, кто планирует проживать в доме длительное время, учитывая удобства всех возрастных групп.
- Легкость доступа ко всем помещениям без необходимости перемещаться по лестницам.
- Большое пространство для организации рабочих зон, детских и игровых комнат.
- Возможность разместить хозяйственные и технические помещения, не влияя на жилую зону.
- Оптимальное направление естественного освещения благодаря большой площади стен и окон.
Как спланировать интерьер в доме 674 м2
Проектирование интерьера в доме такой площади требует тщательного подхода — важно сохранить баланс между просторными зонами общего пользования и уютными уединёнными уголками. Идеальными станут следующие решения:
- Зонирование пространства. Разделение дома на дневную и ночную зоны, а также выделение рабочих и гостевых помещений.
- Учет функционала. Гостиные с каминами, просторные кухни с обеденными зонами, а также комнаты для хобби и спорта.
- Эргономика. Комфортный доступ к санузлам, продуманная организация пространства для хранения и минимизация проходных зон.
Особенности конструкции и выбор материалов для дома 99
Современный подход к строительству частных домов предусматривает качественный выбор материалов и технологий, чтобы обеспечить долговечность, теплоизоляцию и комфорт. Дом 99 строится с применением проверенных решений, способных выдержать климатические условия и сохранить тепло зимой и прохладу летом.
В основном для таких проектов используются экологичные и энергоэффективные материалы, которые не только повышают качество воздуха в помещении, но и снижают эксплуатационные расходы.
Ключевые технические характеристики дома 99
| Параметр | Значение |
|---|---|
| Полезная площадь | 674 м² |
| Размеры дома | 23 x 27 м |
| Этажность | 1 этаж |
| Количество спален | 4 |
| Количество санузлов | 3 |
| Стоимость | 24 422 967 руб. |
Инфраструктура и удобства в доме 99
Площадь 674 квадратных метра — это уникальная возможность оборудовать дом всем необходимым для комфортной и современной жизни. Помимо традиционных комнат и санузлов, здесь возможно реализовать различные дополнительные пространства, поднимающие качество жизни семьи.
- Просторная кухня-столовая с выходом на террасу или внутренний двор.
- Уголок для работы с естественным освещением.
- Гардеробные и кладовые для удобного хранения вещей.
- Места для отдыха с панорамными окнами, открывающими вид на участок.
- Зоны для занятий спортом и хобби.
Всё это превращает дом 99 в настоящий семейный оазис, где воплощены самые современные тенденции и стандарты комфорта.
Без гаража — достаточно пространства для парковки
В проекте дома гараж не предусмотрен, однако благодаря большой площади участка и размерам дома можно организовать удобные места для парковки прямо на территории рядом с домом. Это часто выступает преимуществом, так как не увеличивает общую площадь застройки и позволяет сохранить больше зеленой зоны.
Дом 99: итоговая оценка и рекомендации
Рассматривая дом 99, невозможно не отметить гармоничный баланс между масштабом, удобством и ценой. Одноэтажное решение площадью 674 м2 в размере 23 на 27 метров с четырьмя спальнями и тремя санузлами станет идеальным домом для большой семьи, ценящей простор и комфорт.
24 миллиона рублей — это стоимость, которая соответствует высокому уровню качества материалов и продуманного архитектурного решения, обеспечивая не только надежность и безопасность, но и престиж проживания.
Этот дом — отличный выбор для тех, кто хочет соединить традиции частного строительства с современными ожиданиями комфорта и уникальным стилем жизни. Доступное пространство, удобства и большие возможности для индивидуализации делают Дом 99 выгодным и перспективным вложением.























