Введение в проект двухэтажного дома 9x10 м
Проектирование частного дома всегда начинается с выбора оптимальных параметров, позволяющих создать комфортное и функциональное жилище. Дом размером 9 на 10 метров — это классический вариант, который идеально подходит для семьи среднего размера. Его площадь в 126,89 м² достаточно просторна для реализации всех необходимых жилых зон, при этом он остается экономичным по вложениям и удобным в эксплуатации.
Такой двухэтажный дом является сбалансированным решением между компактностью и комфортом. В отличие от одноэтажных построек, второй этаж позволяет рационально использовать площадь участка и уменьшить площадь застройки, что особенно актуально при ограниченном пространстве.
В этой статье мы подробно рассмотрим ключевые особенности дома с размерами 9х10 метров и площадью 126,89 м², разберём структуру планировки, которые задают его высокую функциональность, а также уделим внимание техническим аспектам проекта.
Общие характеристики дома 9х10 м
Основные параметры дома 9 на 10 метров определяют его основные конструктивные особенности и удобство использования. Двухэтажное здание является классическим решением, позволяющим разместить все необходимые жилые помещения, предусмотреть несколько санузлов и наличие трех спален, что особенно важно для семей с детьми.
Размеры дома 9х10 метров делают его оптимальным с точки зрения строительства: такие габариты легко вписать практически на любом участке, а площадь в 126,89 м² — отличный баланс для проживания 3-4 человек. Это пространство позволит выделить гостиную, кухню, зоны отдыха и рабочие кабинеты, а также обеспечить личное пространство каждому члену семьи.
Преимущества двухэтажного дома размером 9 на 10 метров
Двухэтажный дом обладает рядом неоспоримых преимуществ по сравнению с одноэтажными аналогами. Во-первых, второй этаж позволяет существенно увеличить жилую площадь, не расширяя при этом footprint постройки — то есть не занимая большую площадь участка. Это особенно важно при ограничении по площади земельного участка или необходимости сохранить садовую зону.
Во-вторых, проект с тремя спальнями и двумя санузлами обеспечивает высокий уровень комфорта: каждый член семьи сможет иметь собственное пространство. Это важно для семей с разным возрастом, особенно когда детям необходимы отдельные комнаты для учебы и отдыха.
Планировка и функциональное зонирование
Планировка дома 9х10 м предусматривает продуманное зонирование пространства между двумя этажами с целью максимально эффективно использовать площадь в 126,89 м². На первом этаже, как правило, размещаются общие помещения — гостиная, кухня, столовая, а также гостевой санузел.
На втором этаже выделяется приватная зона — три спальни и второй санузел. Размещение спален на втором этаже гарантирует тишину и личное пространство, свободное от возможных шумов общего пространства.
Первый этаж: гостиная, кухня и санузел
На первом этаже гостиная обычно занимает центральное место, соединяясь с кухней и столовой зоной. Такое открытое пространство обеспечивает свободное общение всей семьи и удобство при проведении домашних мероприятий и приемах гостей.
Наличие санузла на первом этаже крайне важно — это удобно как для отдыхающих в гостиной, так и для возможных посетителей. Дополнительные подсобные помещения, например кладовая или гардеробная, также могут быть предусмотрены в проекте.
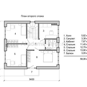
Второй этаж: приватная зона с тремя спальнями
Второй этаж выделен полностью под спальни и второй санитарный узел. Три спальни позволяют обеспечить каждому члену семьи комфорт и уединение. При этом ванная комната, ночное освещение и звукоизоляция должны быть организованы таким образом, чтобы пользование этажом было максимально удобным для всех домочадцев.
Также нередко проект предусматривает наличие небольших встроенных шкафов, которые способствуют поддержанию порядка и рациональному хранению вещей.
Технические особенности и конструктивные решения
Выбор размеров дома 9х10 метров делается также исходя из технических возможностей и требований к строительству. Двухэтажная постройка должна иметь надежный фундамент, прочные стены и качественную кровлю, чтобы обеспечить долговечность и безопасность.
Также важно предусмотреть грамотную организацию инженерных коммуникаций — системы отопления, водоснабжения и электричества, которые должны обслуживать оба этажа эффективно и без перебоев.
Фундамент и несущие конструкции
Для такой площади и конструкции обычно выбирают ленточный фундамент или монолитную плиту. Ленточный фундамент позволяет обеспечить устойчивость здания, распределяя нагрузки от несущих стен, что критично для двухэтажных построек. Монолитная плита хороша для самых разнообразных грунтов и повышает жесткость конструкции.
Для стен используются как традиционные материалы — кирпич, газобетон, так и современные каркасные технологии, что зависит от бюджета и климатических особенностей региона.
Крыша и кровельные материалы
Крыша двухэтажного дома 9х10 м должна быть достаточно надежной, чтобы защитить дом от атмосферных осадков и перепадов температур. Тип крыши выбирается исходя из эстетических и практических соображений. Чаще всего применяют двускатную крышу, которая обеспечивает хороший сток воды и простоту монтажа.
Для кровли используются качественные материалы: металлочерепица, битумная черепица или натуральная черепица. Выбор зависит от бюджета и желаемого дизайна дома.
Особенности внутреннего дизайна и отделки
Внутреннее оформление дома площадью около 127 м² с тремя спальнями требует грамотного подхода к дизайну интерьера, чтобы подчеркнуть простор и сделать проживание максимально комфортным. Применение современных отделочных материалов помогает оптимизировать микроклимат жилья и создавать уютную атмосферу.
Цветовая гамма, освещение и планировка мебели должны гармонично сочетаться с архитектурными решениями дома.
Выбор отделочных материалов для стен и пола
На первом этаже часто используется плитка или ламинат в кухне и гостиной, что обеспечивает простоту ухода и долговечность покрытия. Стены можно отделать декоративной штукатуркой, краской или обоями, в зависимости от стиля интерьера.
В спальнях предпочтительнее мягкие покрытия пола — паркет или ковролин, которые создают тепло и комфорт, необходимый для отдыха.
Организация освещения и вентиляции
Для естественного освещения дома используйте большие окна, особенно в гостиной и кухне. На втором этаже окна в спальнях обеспечивают достаточное количество дневного света, что положительно влияет на здоровье жильцов.
Вентиляция является обязательной частью проекта. Рекомендуется установка эффективных систем вентиляции с рекуперацией тепла, чтобы обеспечивать свежий воздух без потерь тепла зимой.
Преимущества и недостатки дома 9x10 126,89 м²
Рассмотрим основные плюсы и минусы дома с такими габаритами и площадью, чтобы понять, стоит ли его выбирать для строительства.
Преимущества
- Рациональное использование площади участка благодаря двухэтажной конструкции.
- Достаточное число спален (три), что подходит для семьи с двумя и более детьми.
- Наличие двух санузлов повышает комфорт проживания.
- Комфортные размеры помещений, позволяющие реализовать разнообразные варианты внутренней отделки и мебели.
- Оптимальная площадь для поддержания микроклимата и экономичное отопление.
Недостатки
- Отсутствие гаража в проекте может потребовать дополнительного строительства или обустройства навеса для автомобиля.
- Двухэтажная конструкция требует лестницы, что не всегда удобно для пожилых людей или маленьких детей.
- Необходимо тщательно планировать коммуникации для подключения систем отопления и водоснабжения второго этажа.
Организация участка под дом 9х10 метров
Размеры дома 9 на 10 метров позволяют разместить его практически на любом участке, при условии соблюдения минимальных требований к ширине и длине земельного участка. Планирование территории вокруг дома включает организацию подъездных путей, зоны отдыха на открытом воздухе и место для минимального озеленения.
При отсутствии гаража можно предусмотреть площадку для стоянки автомобилей, а также оборудовать террасу или крыльцо для комфортного входа в дом.
Минимальное пространство участка и комфорт
Для размещения дома размером 9х10 м с прилегающей зоной свободного пространства рекомендуется, чтобы ширина участка была не менее 15-18 метров, а длина — не менее 20 метров. Это позволит обеспечить достаточное отступление от границ соседних участков, соблюдение строительных норм и комфортное размещение хозяйственных зон.
Важно также предусмотреть место для озеленения, детской площадки или садовых дорожек, чтобы увеличить качество жизни на участке.
Таблица основных характеристик дома 9х10 – 126,89 м²
| Параметр | Значение |
|---|---|
| Размеры дома | 9 х 10 метров |
| Количество этажей | 2 |
| Общая площадь | 126,89 м² |
| Количество спален | 3 |
| Количество санузлов | 2 |
| Наличие гаража | Отсутствует |
Советы по оптимизации проекта дома 9x10
При планировании дома с размерами 9 на 10 метров и площадью около 127 м² есть ряд рекомендаций, которые помогут сделать проект еще более удобным, современным и энергоэффективным.
Использование современных технологий утепления
Для повышения энергоэффективности дома рекомендуется использовать качественные теплоизоляционные материалы для стен, пола и кровли. Это позволит значительно снизить расходы на отопление и создать комфортный микроклимат даже в холодное время года.
Рациональное зонирование помещений
Проектируя планировку, стоит обратить внимание на минимизацию коридоров, которые потребляют полезную площадь, и расширение жилых и общих комнат. Открытые пространства в гостиной и кухне сделают интерьер более просторным и светлым.
Освещение и вентиляция
Важно предусмотреть качественное естественное освещение и правильный обмен воздуха. Для этого можно использовать современные окна с высоким уровнем теплоизоляции и вентиляционные системы с рекуперацией.
Гибкость использования помещений
Проектирование должно учитывать возможность трансформации комнат под различные нужды, к примеру, спальню можно использовать как кабинет или игровую детскую комнату. Таким образом, дом будет адаптивным к меняющимся обстоятельствам жизни семьи.
Планы и проекты домов 9х10: где найти и как выбрать
Сегодня существует множество готовых проектов домов 9х10 м с площадью около 127 м², доступных в интернете и у архитектурных бюро. Выбор зависит от ваших пожеланий, климата, особенностей участка и бюджета.
Оптимально выбирать проекты с подробными чертежами, включающими конструктивные решения и спецификации материалов. Хорошо, если проект адаптируется под местные строительные нормы и предпочтения.
Критерии выбора проекта
- Соответствие размерам участка.
- Функциональность выбранной планировки.
- Наличие всех необходимых помещений.
- Качество документации и технических решений.
- Отзывы и рекомендации от других строителей и заказчиков.
Преимущества готовых проектов
Использование готовых решений экономит время и затраты на проектирование. Такие проекты проверены на практике, что снижает риски ошибок. Они также позволяют предложить стандартные оптимизации, такие как энергоэффективность и эргономика интерьера.
Заключение
Двухэтажный дом размером 9х10 метров с площадью порядка 126,89 м² – это удачное решение, сочетающее комфортное жилое пространство с экономичностью строительства. Три спальни и два санузла обеспечивают высокий уровень удобства для семьи среднего размера. При грамотном выборе материалов, внутренней планировки и технических решений такой дом будет служить надежным и уютным жилищем много лет.
Подводя итог, можно сказать, что проект дома 9x10 м — это универсальный вариант, адаптируемый под разносторонние потребности и бюджеты, который подтвердит свою эффективность и практичность в условиях современной загородной жизни.




































