Введение в проект одноэтажного дома 19x20 метров
Современные частные дома становятся всё более просторными и функциональными, отвечая разнообразным требованиям семьи и комфортной жизни. Одноэтажный дом размером 19 на 20 метров с общей полезной площадью 487 м² — именно такой проект становится идеальным решением для тех, кто ценит простор, удобство и продуманную архитектуру.
В данной статье мы подробно рассмотрим особенности проекта такого дома, его планировку, преимущества и стоимость. Почти 20 на 20 метров площади в одном этаже позволяют реализовать множество интересных архитектурных и инженерных идей, а пять и более спален обеспечивают пространство даже для большой семьи.
Размеры и габариты дома
Габариты 19x20 метров: оптимальное решение для просторного дома
Размеры дома в плане 19 на 20 метров — это практически квадратная форма, что значительно облегчает зонирование жилых и технических помещений. Такой план позволяет удобно организовать пространство, сделать его максимально эргономичным и функциональным.
Учитывая общую полезную площадь в 487 м², дом по своим размерам более чем соответствует представлению о комфорте и просторности. Большие габариты открывают варианты разбивки комнаты как на отдельные жилые зоны, так и на общие пространства для отдыха и общения.
Преимущества одноэтажной конфигурации
Дом в один этаж имеет ряд привлекательных особенностей. Во-первых, отсутствует необходимость в лестницах, что упрощает передвижение для всех членов семьи — от детей до пожилых людей. Во-вторых, такое решение экономит ресурсы на устройство лестничных маршей и обеспечивает более простой монтаж коммуникаций.
Один этаж существенно снижает затраты времени и сил на уборку и обслуживание дома. Также одноэтажный дом легче адаптировать под будущее расширение или изменение планировки. А благодаря просторной площади 487 м², вы получаете все преимущества большого дома без громоздкой этажности.
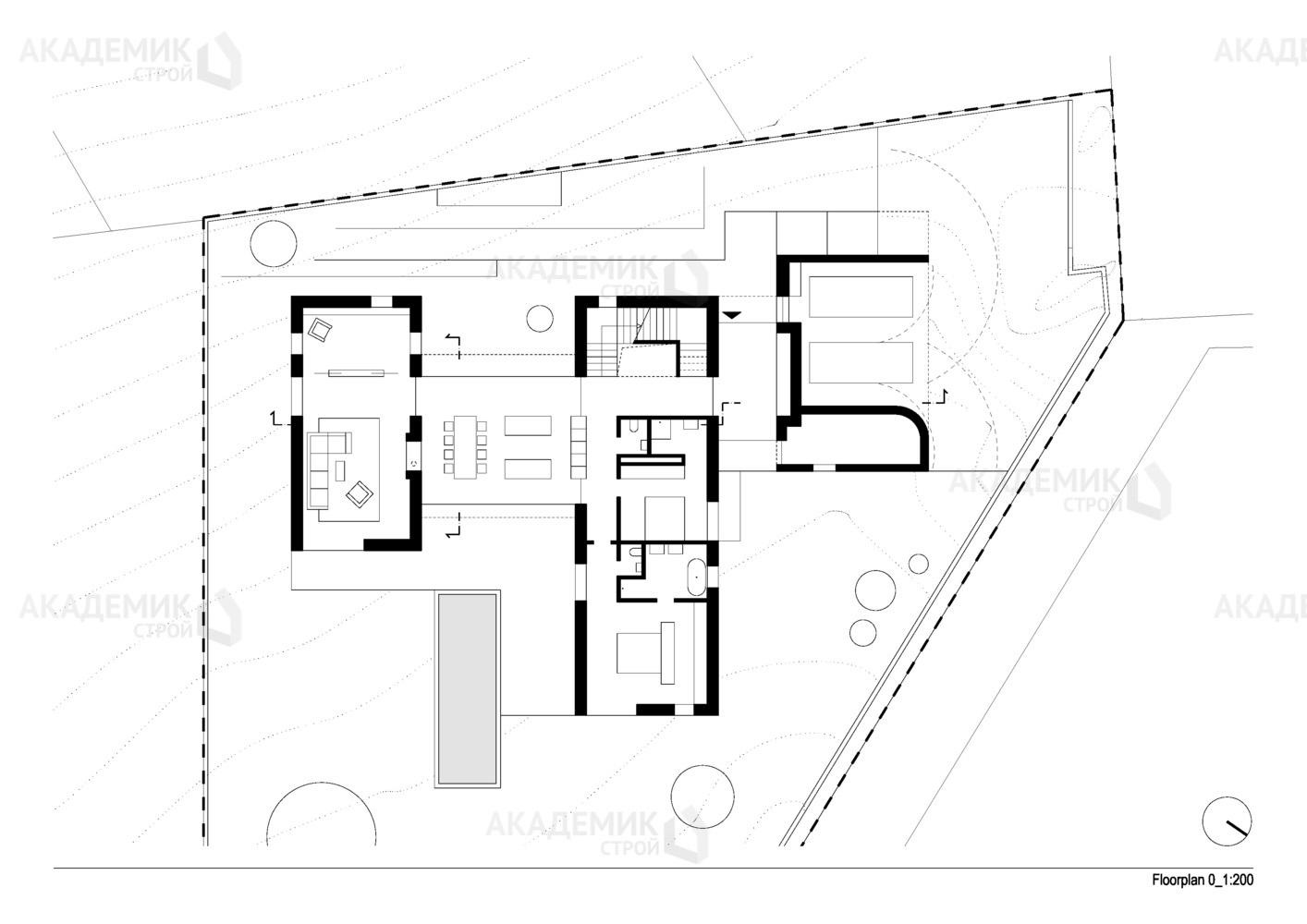
Планировка: пять и более спальни, три санузла
Размещение большого количества спален
Проект предусматривает пять и более спален — это отличный вариант для многодетной семьи или тех, кто часто принимает гостей. Каждая спальня может быть организована таким образом, чтобы обеспечить максимальную приватность и комфорт.
Размещение такого количества комнат в одном этаже требует грамотной архитектурной мысли. Обычно спальни группируются в отдельную жилую зону, часто отдалённую от общих помещений, что позволяет создать тишину и покой для отдыха.
Три санузла — комфорт и удобство для всей семьи
Наличие трех санузлов — одна из важных особенностей проекта. Такой запас санузлов позволяет избежать очередей по утрам и вечером, делает жизнь в доме комфортной даже при большом количестве жильцов. Кроме того, санузлы можно расположить с учётом удобства доступа из разных частей дома: например, один в хозяйской спальне, другой — рядом с гостевыми комнатами, и третий — в общественной зоне.
Функциональное зонирование пространства
Деление дома на жилые и общественные зоны
Для большого одноэтажного дома важна зонировка пространства, которая влияет на удобство проживания. В данном проекте можно выделить две основные зоны: приватную с пятью и более спальнями и общественную, куда входят гостиная, кухня и столовая.
Тщательное разделение позволяет создать уютную атмосферу в спальнях, в то время как общие помещения становятся центром семейных встреч и приема гостей. Такая планировка делает жизнь в доме комфортной независимо от количества его проживающих.
Преимущества открытой планировки общественной зоны
Для домов больших размеров современным трендом становится использование открытой планировки в зонах кухни, столовой и гостиной. Это повышает визуальный простор, улучшает освещение, а также способствует более тесному взаимодействию между членами семьи в процессе приготовления еды, отдыха и общения.
В проекте с площадью 487 м² достаточно места для организации такой открытой зоны, которая будет включать и дополнительные зоны отдыха — например, каминную или домашний кинотеатр.
Особенности инженерных коммуникаций и материалов
Современные инженерные решения
Дом таких размеров требует продуманной системы коммуникаций: водоснабжения, отопления, вентиляции и электроснабжения. В одноэтажном доме это обычно проще реализовать за счет меньших расстояний между системами и отсутствия лестничных переходов.
Очень важно предусмотреть несколько инженерных узлов, чтобы обеспечить бесперебойную работу всех систем, а также оставить возможность для будущей модернизации и увеличения энергоэффективности.
Выбор строительных материалов
При строительстве дома площадью 487 м² очень важно правильно подобрать материалы. Они должны отвечать всем стандартам прочности и долговечности, обеспечивать хорошую тепловую изоляцию и эстетику фасада.
Часто используются комбинированные технологии, например, каркасные конструкции с утеплителем, монолитные стены, газобетонные блоки. Облицовка может варьироваться от современного фасадного кирпича до натурального камня и декоративной штукатурки — в зависимости от желаемого стиля.
Стоимость строительства: подробный разбор затрат
Общая стоимость — 19 244 635 рублей
Стоимость строительства дома площадью 487 м² в один этаж при размерах 19x20 метров составляет 19 244 635 рублей. Эта сумма включает в себя все основные работы и материалы — от фундамента до крыши, а также внутренние инженерные системы и отделку.
Важно понимать, что цена адекватно отражает качество строительства, использование современных технологий и материалов, а также уровню комфорта, который предполагает этот проект. Это инвестиция в надежный и долговечный дом с продуманной архитектурой.
Расходы по основным статьям бюджета
| Статья затрат | Примерный % от общей суммы | Примерная стоимость, руб. |
|---|---|---|
| Фундамент и земляные работы | 15% | 2 886 695 |
| Стены и каркас | 25% | 4 811 159 |
| Крыша и кровельные работы | 12% | 2 309 356 |
| Инженерные системы | 18% | 3 463 635 |
| Отделочные работы | 20% | 3 848 927 |
| Дополнительные работы и непредвиденные расходы | 10% | 1 924 463 |
Архитектурные особенности и стилистика
Возможности дизайна фасада
Размеры и пропорции дома 19 на 20 метров позволяют воплотить самые разнообразные архитектурные стили. Это может быть как современный минимализм с большим количеством стекла и ровных линий, так и классическая стилистика с колоннами, декоративными элементами и натуральными материалами.
Один этаж облегчает создание гармоничного и монолитного образа здания, который будет отлично вписываться в любой ландшафт – от пригородной зоны до загородного коттеджного поселка.
Преимущества одноэтажного дома в плане экологии и удобства
Одноэтажный дом более экологичен и энергоэффективен благодаря большему упору на горизонтальное пространство, что облегчает утепление и вентиляцию. Кроме того, такой дом удобно эксплуатировать пожилым и маломобильным людям, так как отсутствуют лестницы и дополнительные уровни.
Планировка комнат и функциональных зон
- 5+ спален, обеспечивающих достаточную приватность для всех членов семьи.
- 3 санузла с современным оснащением.
- Просторная кухня-столовая с выходом на возможную террасу (хотя сама терраса не предусмотрена).
- Большая гостиная с местом для отдыха и развлечений.
- Хозяйственная зона с котельной, кладовыми и постирочной.
- Возможное выделение отдельного кабинета или рабочего пространства.
Детальное зонирование обеспечивает удобство и функциональность всех помещений, делая проживание максимально комфортным.
Советы по выбору участка для дома 19x20 метров
Площадь дома и его размеры в плане предъявляют требования к участку для строительства. Рекомендуется приобретать участок подходящего размера, чтобы обеспечить не только само здание, но и достаточную свободу для организации придомовой территории.
Большой дом выгодно смотрится на просторном участке, где можно организовать зоны отдыха, ландшафтный дизайн, детскую площадку или площадку для барбекю. При этом желательно оставить достаточное расстояние от границ участка до дома для удобства доступа и обеспечения безопасности.
Преимущества выбора проекта дома 80 с площадью 487 м²
Комфорт и простор
Большая площадь одноэтажного дома — 487 м² — это отличный показатель для тех, кто ценит уют и удобство. Достаточно места для организации комфортных спален, гостевых зон, рабочих кабинетов и игровых комнат.
Удобство планировки
Один этаж позволяет легко модифицировать планировку под индивидуальные потребности и возраст членов семьи, обеспечивая свободный доступ к каждой комнате. Это особенно важно для семей с маленькими детьми или пожилыми родственниками.
Рентабельность инвестиций
Несмотря на внушительную площадь и стоимость, инвестиции в такой дом оправданы долговечностью, комфортом и высокими эксплуатационными характеристиками. Дом станет не только надежным местом жительства, но и выгодным вложением капитала на долгосрочную перспективу.
Рекомендации по строительству и эксплуатации
- Выбирайте подрядчика с опытом строительства одноэтажных домов большого размера.
- Обязательно изучите проект и планировку для внесения индивидуальных правок.
- Особое внимание уделяйте качеству материалов и инженерии — это залог комфорта и безопасности.
- Регулярно обслуживайте инженерные системы дома для поддержания их работоспособности.
- Рассмотрите варианты энергоэффективных решений — утепление, современные окна, системы вентиляции с рекуперацией.
Эти рекомендации помогут сделать строительство и дальнейшую эксплуатацию дома максимально выгодными и комфортными.




























