Введение в проект дома 79: одноэтажный простор 25х30 метров
Современное строительство частных домов сочетает в себе комфорт, функциональность и эстетическую привлекательность. Одноэтажный дом с размерами 25 на 30 метров — это воплощение удобства и просторной жизни под одной крышей. Такой формат жилья идеально подходит для больших семей или тех, кто ценит простор и свободу передвижения без необходимости преодолевать лестницы.
Дом 79 как проект представляет собой грамотное решение для комфортного проживания. Благодаря внушительным размерам и продуманной планировке, он способен вместить 5 и более спален и не менее 5 санузлов, что редко встречается в одноэтажных постройках подобного типа. В данной статье мы подробно рассмотрим все нюансы этого дома, проанализируем особенности конструкции и приведем рекомендации по оптимальному использованию пространства.
Преимущества одноэтажного дома размером 25х30 м
Одноэтажные дома давно завоевали популярность за счет своей простоты и удобства. При площади 25 на 30 метров такой дом представляет собой достаточно крупное и комфортное жилище, одновременно максимально функциональное.
Во-первых, отсутствие лестниц делает его доступным для людей всех возрастов — от маленьких детей до пожилых родственников. Это особенно важно для семей, в которых проживают представители разных поколений. Во-вторых, под одной крышей можно организовать просторные комнаты и зоны отдыха, что обеспечивает высокий уровень комфорта.
В отличие от многоэтажных домов, одноэтажный проект избавляет от необходимости сложного инженерного обеспечения, связанного с коммуникациями и проектированием несущих конструкций. Поэтому расходы на строительство и эксплуатацию часто оказываются ниже. Кроме того, планировка дома 25х30 позволяет реализовать множество творческих идей, как в области внутреннего обустройства, так и в дизайне фасада.
Как размер влияет на планировку и функциональность
Размеры 25 на 30 метров дают около 750 квадратных метров общей площади, что достаточно для организации множества зон: от приватных спален до общественных гостиных и рабочих кабинетов. Размещать в таком доме можно не только спальные комнаты, но и отдельные санузлы — что отлично подходит для большой семьи или гостей.
Важной особенностью является возможность создания личных «мини-апартаментов» для каждого члена семьи, что повышает уровень комфорта и приватности. В проекте замысловато учтено наличие 5+ спален и 5+ санузлов — это оптимальное значение для большой семьи, многодетных родителей или тех, кто часто принимает гостей.
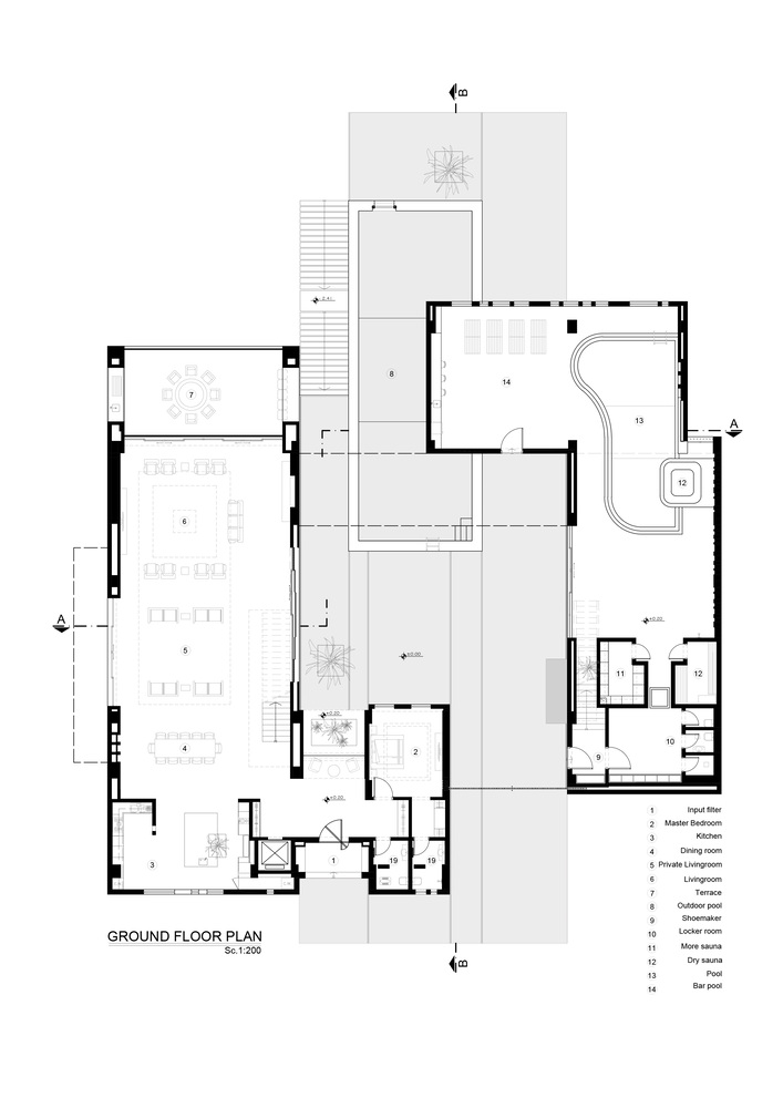
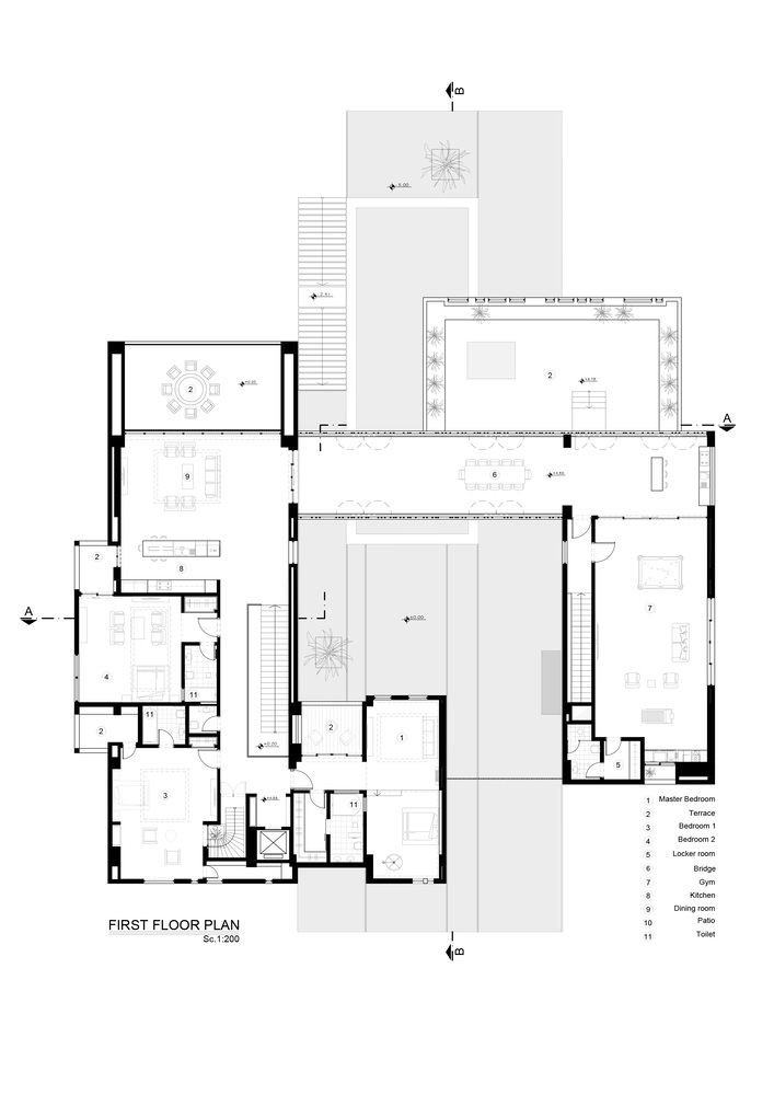
Планировка дома с 5 и более спальнями
Проект дома 79 ориентирован на большую семью или совместное проживание нескольких поколений. Пять и более спален позволяют выделить каждому домочадцу личное пространство с комфортом и уютом.
Каждая спальня в таком доме может быть оборудована собственным санузлом, что делает жизнь удобной и самостоятельной для каждого. Это особенно важно, когда в доме живут дети, взрослые и пожилые люди одновременно. Внушительное количество санузлов — 5 и более — гарантирует минимизацию очередей в утренние и вечерние часы, что решает часто встречающуюся бытовую проблему.
Распределение пространства между спальнями и зонами отдыха
Грамотно организованное пространство позволяет разделить комнаты на несколько функциональных групп. Например, спальные зоны можно расположить в одном крыле дома, отгораживая их от общественных помещений, таких как гостиная и кухня.
Важным элементом является создание буферных зон — коридоров и холлов, обеспечивающих приватность и хорошую звукоизоляцию. Кроме того, в планировке можно предусмотреть и детские игровые зоны, кабинеты для работы или учебы, а также гостевые комнаты для приезжающих родственников.
Примерная структура комнат в доме 25x30:
- Главная спальня с личным санузлом и гардеробной;
- Четыре спальни с отдельными санузлами;
- Гостиная зона с выходом на двор;
- Кухня-столовая с просторной рабочей зоной;
- Прихожая и коридоры, обеспечивающие удобную коммуникацию всех зон;
- Технические помещения (прачечная, котельная и др.).
Организация 5+ санузлов в одноэтажном доме
Количество санузлов в частном доме — важный показатель комфорта и удобства. Традиционно в небольших домах устанавливают один или два пространства для гигиены, но в данном проекте их количество превышает пять, что говорит о высоком уровне комфорта и продуманности.
Пять и более санузлов позволяют не только избежать необходимости компромиссов в утренние часы, но и предусмотрительно спланировать зоны для гостей и обслуживающего персонала. Можно выделить гостиные санузлы и отдельные уборные в каждой спальне, обеспечив тем самым максимальную приватность.
Типы санузлов и их расположение
Варианты планировки санузлов могут быть разнообразными: от полноценных ванных комнат с душевой или ванной, до компактных гостевых туалетов. Важным моментом является правильное размещение в доме с точки зрения удобства и коммуникаций — все сантехнические точки желательно располагать близко к инженерным сетям для снижения затрат на монтаж.
| Тип санузла | Расположение | Назначение | Особенности |
|---|---|---|---|
| Полная ванная комната | При спальнях | Для личного пользования | Ванна или душ, туалет, раковина |
| Гостевой санузел | В общественной зоне | Для гостей и общего пользования | Компактное оснащение, туалет и умывальник |
| Туалет при служебных помещениях | Рядом с переходными зонами | Для обслуживающего персонала | Минимальное оснащение |
Особенности строительства одноэтажного дома крупной площади
Строительство одноэтажного дома, особенно с большой площадью в 25х30 метров, требует особого подхода на всех этапах — от проектирования до исполнения. Такие здания отличаются особой нагрузкой на фундамент и каркас, что может влиять на выбор материалов и технологий.
Первое, на что стоит обратить внимание — это грамотно спроектированный фундамент. Площадь основания существенная, поэтому важно выбрать такой тип фундамента, который обеспечит достаточную несущую способность, а также равномерное распределение нагрузки.
Немаловажным фактором является выбор материала стен и перекрытий. Одноэтажная конструкция позволяет использовать различные варианты — от традиционной кирпичной кладки до современных каркасных технологий. Каждый из них имеет свои преимущества и особенности, влияющие на стоимость, теплоизоляцию и сроки строительства.
Технологии строительства, подходящие для дома 25x30
- Кирпич и блоки: Высокая прочность, долговечность, отличный уровень тепло- и звукоизоляции, но более длительное время возведения и высокая стоимость.
- Каркасные технологии: Быстрый монтаж, меньшая нагрузка на фундамент, возможность разнообразной облицовки, но требует тщательной тепло- и гидроизоляции.
- Панельные дома: Производственные сборные модули для ускорения строительства, хорошо подходят для больших площадей.
- Деревянные конструкции: Экологичность, уют, современные средства защиты и обработки делают древесину привлекательным выбором.
Выбор правильной технологии зависит от бюджета, климатических условий региона и предпочтений владельцев дома.
Использование пространства: рекомендации по дизайну и эргономике
Большой одноэтажный дом 25х30 метров — это отличная возможность создать пространство, отвечающее всем потребностям семьи, а также предложить гостям комфортное размещение.
Одним из ключевых принципов является зонирование. Визуальное и функциональное разделение на приватные и общественные зоны помогает избежать ощущения слишком большого и пустого помещения. Это особенно важно для одноэтажных домов, где все пространство находится на одном уровне.
Советы по зонированию для дома с 5+ спальнями
- Выделение спального крыла: Размещение спален в одном крыле дома или на одной стороне для увеличения спокойствия.
- Общественные зоны: Гостиная, кухня и столовая должны располагаться в центральной части, обеспечивая доступ к ним из разных частей дома.
- Технические помещения: Прачечная, котельная находятся в отдельной зоне, чтобы минимизировать шум и неудобства.
- Свободное перемещение: Продуманная система коридоров и проходов без тупиков для удобства всех жителей.
Такое распределение позволяет всем чувствовать себя комфортно и сохраняет порядок в доме.
Преимущества одноэтажного дома без гаража
В представленном проекте отсутствует гараж, что часто становится предметом обсуждения среди домовладельцев. Однако отсутствие гаража в одноэтажном доме такого размера имеет и свои плюсы.
Главное преимущество — это снижение стоимости строительства и возможность максимально эффективно использовать площадь на жилые и бытовые помещения. Вместо гаража можно запланировать дополнительные комнаты или расширить уже имеющиеся зоны, повысив комфорт проживания.
Кроме того, парковка может быть организована на открытом участке, что в ряде случаев предоставляет больше гибкости. Отсутствие гаража снижает нагрузку на общую инженерную систему здания и позволяет более свободно формировать архитектурный облик дома.
Минимальные требования к участку для дома 25х30 метров
Проект дома с габаритами 25 на 30 метров предъявляет определённые требования к размеру земельного участка. При планировании строительства важно заранее учитывать минимальные параметры, чтобы дом вписался гармонично и оставалось пространство для придомовой территории, зон отдыха и элементов ландшафтного дизайна.
Минимальная ширина и длина участка зависят от отступов от границ, требований местных строительных норм и желания владельцев иметь придомовую зону. Обычно, для дома такого размера рекомендуется участок длиной и шириной не менее 35–40 метров, чтобы дом располагался с комфортным отступом от границ.
Такой запас места обеспечит комфорт в плане вентиляции, освещения и организации дополнительной инфраструктуры (сад, бассейн, зона барбекю и т.д.).
Важные инженерные системы для одноэтажного дома с множеством санузлов
Проект дома с пятью и более санузлами требует особенного внимания к инженерным сетям, особенно к системам водоснабжения, канализации и электроснабжения.
Санитарные системы должны быть рассчитаны на большое количество пользователей, обеспечивать надежность и удобство в эксплуатации. Важным становится грамотное проектирование разводки труб, чтобы минимизировать теплопотери и предотвратить гидравлические удары.
Электроснабжение должно соответствовать нагрузкам, предусмотренным, в том числе для многозонного освещения, кухонной техники и бытовых приборов.
Таблица основных инженерных требований
| Инженерная система | Особенности проектирования | Рекомендуемые решения |
|---|---|---|
| Водоснабжение | Обеспечение высокого давления и качества воды для 5+ санузлов | Автоматические насосы, фильтры очистки, резервные системы |
| Канализация | Удаление большого объема стоков без засоров | Укладка труб с уклоном, септик/централизованная канализация |
| Отопление | Равномерное отопление больших площадей с разделением на зоны | Многозональные системы теплых полов, радиаторы с терморегуляторами |
| Электроснабжение | Безопасное распределение нагрузки | Автоматические выключатели, резервные источники питания |
Архитектурный стиль и фасадное оформление дома 79
Внешний вид одноэтажного дома размером 25 х 30 метров создаёт первое впечатление и задаёт тон всему интерьеру. Проект дома 79 можно выполнить в одном из популярных архитектурных стилей — от классики до модерна или скандинавского минимализма.
Большая площадь фасада позволяет играть с масштабом, использовать крупные окна для наполнения дома естественным светом и применять разнообразные облицовочные материалы. Это дает возможность сделать каждое жилище уникальным и отражающим индивидуальные вкусы владельцев.
Варианты облицовки и декоративных решений
- Камень и кирпич: традиционный и статусный вид, устойчивость к погодным условиям;
- Деревянная обшивка: экологичность и уют, идеальна для загородных домов;
- Фасадная штукатурка с элементами декора: универсальность и разнообразие цветовых решений;
- Комбинированные решения: сочетание материалов для создания динамического и современного фасада.
Особое внимание уделяется кровле — хотя в проекте не указаны технические параметры крыши, выбор подходящего стиля и материала играет важную роль в архитектурной гармонии.
Перспективы и возможности дальнейшего развития дома
Проект одноэтажного дома с большими размерами 25х30 метров и расширенной функциональностью — отличная база для создания жилья мечты. Его можно доработать и адаптировать под личные запросы семьи, включая расширение зон отдыха, организацию малых архитектурных форм на участке и технологическое оснащение.
В будущем возможно обустройство крыши с дополнительными архитектурными элементами или даже строительство вспомогательных построек на участке, таких как беседки или гостевые домики, что значительно расширяет жилую инфраструктуру и комфорт проживания.
Таким образом, одноэтажный дом 79 является многофункциональным, просторным и эргономичным решением для тех, кто ценит удобство и качество в каждой детали.
















