Одноэтажный дом 9x15 метров: оптимальное пространство для комфортной жизни
Современное частное строительство все чаще склоняется к оптимальным решениям, которые совмещают удобство, функциональность и экономическую выгоду. Дом 74 — яркий пример такого подхода. Его размеры 9 на 15 метров и полезная площадь в 164 квадратных метра делают этот проект одним из оптимальных вариантов для семьи, желающей получить просторное и практичное жилье, но при этом избежать излишней сложности и высоких затрат, присущих более крупным зданиям. Одноэтажный дом позволяет организовать все необходимые комнаты на одном уровне, что особенно удобно для всех поколений семьи, от маленьких детей до пожилых людей.
Общая площадь 164 квадратных метра – это действительно многофункциональное жилье, которое способно вместить разнообразные жилые и технические помещения, не создавая ощущения тесноты. Кроме того, такие размеры позволяют грамотно организовать внутреннее пространство с учетом личных предпочтений владельцев.
Преимущества одноэтажного формата
Одноэтажные дома славятся своей практичностью. Они не требуют установки лестниц, что снижает стоимость строительства и облегчает передвижение внутри дома, что особенно важно для семей с маленькими детьми и пожилыми людьми. Кроме того, распределение комнат на одном этаже упрощает планирование инженерных систем и уменьшает теплопотери.
Дом площадью 164 м² достаточно большой, чтобы комфортно разместить все необходимые зоны: гостиную, кухню, спальню, санузел и даже рабочий кабинет или хобби-зону. Это идеальный баланс между функциональностью и уютом.
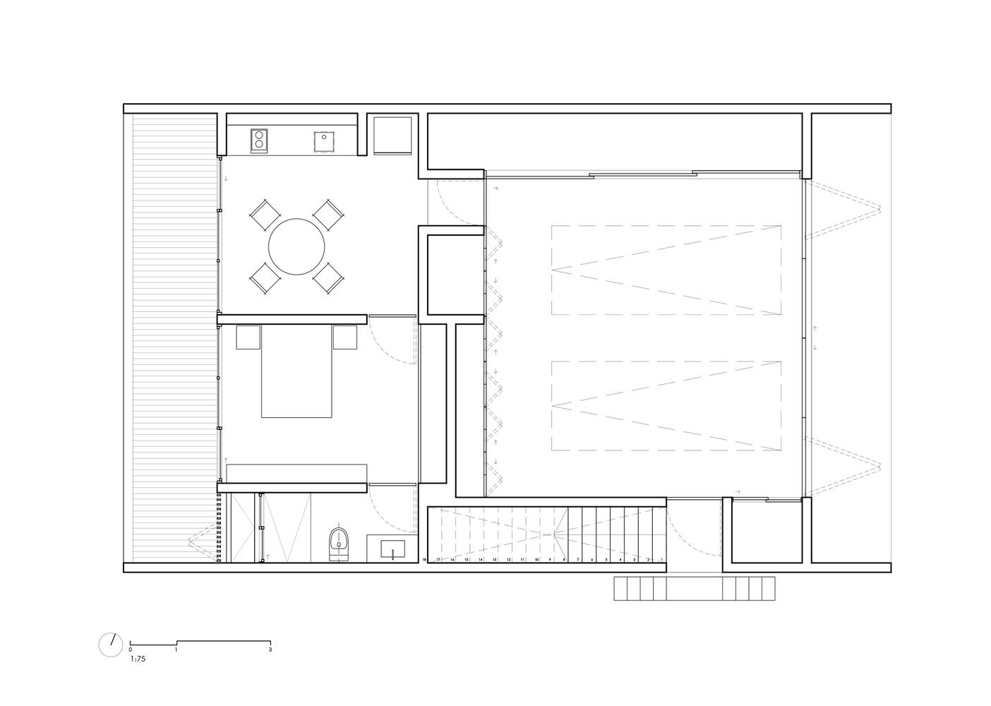
Проект дома 9x15: планировка и возможности для персонализации
Самый важный аспект любого жилого проекта — грамотная планировка. В доме 9 на 15 метров организована комфортная планировка, которая учитывает потребности традиционной семьи. Одним из ключевых параметров является наличие одной спальни и одного санузла. Такой вариант идеально подходит для молодых пар, пенсионеров или тех, кто ожидает гостей только изредка.
При площади в 164 квадратных метра спальня может быть достаточно просторной, с возможностью включить в зону отдыха не только кровать, но и гардероб, рабочее место и дополнительные системы хранения. Планировка предусматривает также одну ванную комнату, что при такой площади вполне оправдано с точки зрения рационального использования жилого пространства.
Гостиная и кухня: центральные пространства дома
Несмотря на то, что количество спален ограничено одной, общественные пространства в доме организованы очень продуманно. Гостиная и кухня зачастую объединены в единую зону открытой планировки, что обеспечивает свет и простор, а также создает комфортную атмосферу для общения и семейного досуга.
Благодаря общему размеру дома, кухня может быть полностью оборудована всем необходимым для удобного и экономичного приготовления пищи, включая полноценную рабочую поверхность, встроенную технику и зону для приёма пищи.
Функциональные зоны внутри дома
- Просторная гостиная с зонами отдыха и развлечений;
- Кухня с удобным размещением техники и рабочих поверхностей;
- Спальня, оптимальная для отдыха и сна;
- Один санузел с современной сантехникой;
- Прихожая с местом под гардероб;
- Возможность выделить дополнительное пространство под кабинет или кабинет для хобби.
Такой набор функциональных зон делает дом универсальным для разного рода жизни, от небольших семейных праздников до уединенной работы.
Технические характеристики и стоимость строительства
Стоимость возведения дома площадью 164 м² по проекту Дом 74 составляет 8 518 050 рублей. Это конкурентоспособная цена, учитывая площадь и одноэтажную конструкцию здания. При планировании бюджета важно учитывать, что цена включает в себя не только строительные работы, но и комплект необходимых материалов, некоторые инженерные системы и отделку.
Размеры 9 на 15 метров позволяют оптимизировать использование участка — такой дом занимает достаточно мало места, чтобы оставить пространство для зоны отдыха, сада или хозяйственных построек. Это удобно для земельных участков стандартного размера, особенно в условиях загородного строительства.
Экономическая эффективность и способы снижения затрат
Одноэтажный дом проще и быстрее строится, что уменьшает объемы работ по монтажу кровли, лестниц и инженерных коммуникаций между этажами. Это напрямую сказывается на стоимости строительства и дальнейшей эксплуатации. Кроме того, одноэтажный дом легче отапливать в зимний период, что позволяет сэкономить на коммунальных расходах в долгосрочной перспективе.
Рассмотрим основные параметры стоимости и площади в виде таблицы:
| Параметр | Значение |
|---|---|
| Размеры дома | 9 x 15 м |
| Полезная площадь | 164 м² |
| Этажность | 1 этаж |
| Количество спален | 1 |
| Количество санузлов | 1 |
| Стоимость строительства | 8 518 050 руб. |
Особенности эксплуатации одноэтажного дома площадью 164 м²
Эксплуатация одноэтажных домов имеет свои особенности, которые делают их очень привлекательными в повседневной жизни. Отсутствие лестниц положительно влияет на безопасность, особенно для пожилых людей и детей. Это снижает риск падений и травматизма.
Также горизонтальное расположение комнат облегчает перемещение по дому, повышая комфорт и эргономику пространства. Все важные зоны и коммуникации находятся в пределах легкой доступности.
Уход за домом и рациональное использование пространства
Большая площадь дома требует внимательного подхода к организации порядка и хранения предметов. В проекте можно заложить системы многофункциональных шкафов и встроенных полок, что способствует поддержанию чистоты и функционального порядка.
Важным аспектом является также удобство проведения сезонных уборок и технического обслуживания, которое облегчено благодаря компактному и удобному плану одноэтажного здания без сложных архитектурных элементов.
Возможность использования участка и окружающей территории
Размер дома 9 на 15 метров дает владельцам немало преимуществ с точки зрения использования прилегающего участка. Компактные габариты здания позволяют в полной мере организовать вокруг дома зону отдыха, сад, детскую площадку или место для барбекю. Это особенно актуально для загородного образа жизни, где каждая дополнительная свободная площадь важна для удобства всех членов семьи.
Отсутствие гаража освобождает часть пространства. За счет этого можно обустроить открытые паркинг-зоны или зоны для хозяйственных нужд.
Советы по ландшафтному дизайну вокруг одноэтажного дома
- Используйте зеленые зоны с яркими цветами для создания уютной атмосферы;
- Обустроите дорожки из тротуарной плитки для удобства передвижения;
- Разместите зону отдыха с мебелью для пикников и теплых вечеров;
- Посадите плодовые кусты или деревья для самостоятельного выращивания свежих продуктов;
- Популярным решением является установка невысоких ограждений, чтобы визуально выделить участок и придать ему завершенный вид.
Итоговые преимущества выбора проекта Дом 74
Выбирая проект одноэтажного дома размером 9 на 15 метров с полезной площадью 164 м², владельцы получают целый ряд важных преимуществ. Это и оптимальное соотношение площади и стоимости возведения, и существенная экономия на отоплении и обслуживании, и возможность максимально эффективно использовать участок.
Ключевым достоинством является универсальность проекта: дом успешно подойдет как молодой паре, так и семье с одним ребенком, предоставляя все необходимое для полноценной жизни. Простота и эргономичность планировки, умеренные размеры здания и продуманное функциональное зонирование обеспечивают комфорт и уют.
Цена строительства в 8 518 050 рублей вполне оправдана с учетом площади и проектных решений, что делает Дом 74 достойным выбором для тех, кто ищет надежный и современный одноэтажный загородный дом с удобной планировкой.
























