Одноэтажный дом 68 — идеальное решение для комфортной жизни
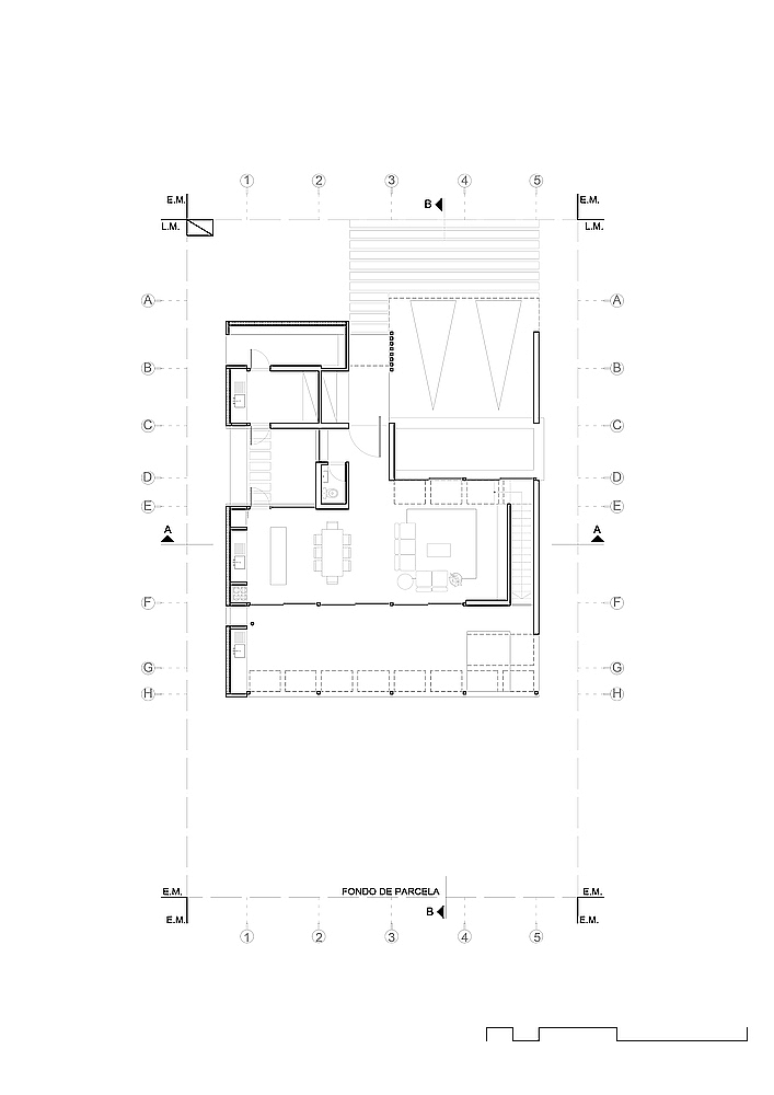
Проект дома 68 — это современный одноэтажный дом с размерами 11 на 15 метров, общей полезной площадью 250 квадратных метров. Такой просторный и функциональный жилой объект поражает своей продуманностью и практичностью, что делает его отличным вариантом для семей, желающих совместить уют и удобство в одном пространстве. Одноэтажная планировка открывает большие возможности для комфортной организации жизненного пространства — все комнаты находятся на одном уровне, что особенно важно для семей с детьми и пожилыми людьми.
При общей площади в 250 м² дом предоставляет достаточно места как для приватности каждого члена семьи, так и для совместного времяпрепровождения. В архитектуре дома сочетается рациональность с элегантностью — он не кажется громоздким, несмотря на внушительные размеры, а благодаря удачной компоновке комнат создается ощущение уюта и гармонии.
Размеры и планировка: почему 11х15 метров — оптимальный выбор
Размеры здания в 11 на 15 метров являются отличным балансом между удобством и рациональным использованием участка. Этот формат подходит для большинства стандартных дачных или загородных земельных участков. Площадь в 250 м² позволяет разместить комфортно все необходимые комнаты без излишних потерь полезного пространства.
Одноэтажная архитектура дома значительно упрощает коммуникации — все инженерные системы расположены на одном уровне, что зачастую снижает затраты на строительство и дальнейшее обслуживание. При этом размеры дома в плане дают возможность создать четко структурированное жилое пространство, где можно разумно зонировать приватные и общественные зоны.
Основные преимущества одноэтажной планировки 11х15 м:
- Удобство перемещения без лестниц — идеальный вариант для пожилых и детей.
- Возможность максимально использовать открытые пространства рядом с домом для отдыха и организации ландшафтного дизайна.
- Оптимальный размер для эффективного отопления и организации вентиляции.
- Легкость в ремонте и техническом обслуживании коммуникаций.
- Стильная и лаконичная архитектура, вписывающаяся в разнообразные ландшафты.
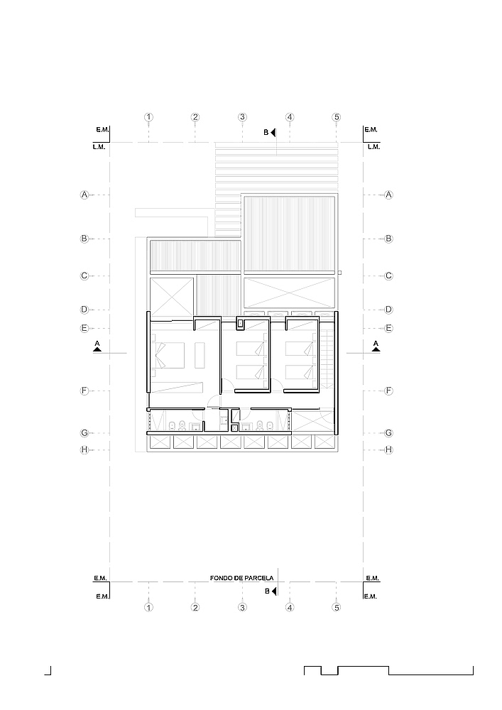
Просторные спальни — у каждого свой личный уголок
Особое внимание в проекте уделено спальным комнатам — их четыре, что является отличным показателем для дома с полезной площадью 250 м². Такой подход прекрасно подходит для большой семьи или тех, кто часто принимает гостей. Каждая спальня достаточно просторна, чтобы вместить не только основную мебель, но и дополнительные элементы интерьера, такие как шкафы, рабочие места или зоны отдыха.
Наличие четырех спален позволяет организовать различные сценарии использования: детские комнаты, гостевые спальни, кабинет или мастерская, объединяя функциональность и комфорт. Продуманное расположение комнат обеспечивает тишину и приватность, что особенно ценно в одноэтажном доме.
Преимущества наличия четырех спален в одноэтажном доме:
- Возможность комфортного проживания большой семьи.
- Гибкость использования пространства под индивидуальные нужды.
- Оптимальное зонирование дома на приватную и общественную части.
- Уменьшение конфликтов при совместном проживании большого количества людей.
- Комфортное размещение гостей без ущемления личного пространства хозяев.
Три санузла — удобство и комфорт для всех жителей
Три санузла в доме — это преимущество, которое повышает качество жизни и добавляет комфорта в повседневность. В условиях большого количества спален важно иметь достаточное количество санитарно-технических комнат, чтобы избежать очередей и утренних спешек. Наличие дополнительных ванн значительно упрощает быт и способствует созданию атмосферы уюта и расслабленности.
Такое решение актуально и для семей с детьми, и для тех, кто часто принимает гостей. В проекте предусмотрено эффективное расположение санузлов, что облегчает доступ из разных частей дома и способствует рациональному использованию пространства.
Почему наличие трех санузлов — важный аспект в доме площадью 250 м²
- Улучшение комфорта и приватности для всех членов семьи.
- Сокращение времени на утренние сборы и подготовку к дню.
- Удобство при размещении гостей или проведении вечеринок.
- Возможность выделить один из санузлов под гостевой или хозяйственный.
- Повышение общей стоимости недвижимости за счет развитой инфраструктуры дома.
Стоимость строительства — разумное вложение в качество и комфорт
Цена дома 68 с площадью 250 м² составляет 9 388 617 рублей. С учетом современных строительных стандартов, применяемых материалов и технологий, эта сумма вполне оправдана. Данный бюджет предусматривает высокое качество исполнения, долговечность конструкции и комфортное проживание на долгие годы.
Важно понимать, что строительство дома — это инвестиция, которая со временем обязательно окупится благодаря снижению расходов на аренду, улучшению качества жизни и возможности передачи недвижимости потомкам. Архитектурный проект дома 68 разрабатывался с учетом оптимизации затрат и рационального использования материальных ресурсов, что позволяет получить максимальную выгоду при разумных вложениях.
Экономические преимущества данного проекта
| Параметр | Описание | Преимущества |
|---|---|---|
| Общая площадь | 250 м² | Рациональное распределение пространства без излишков |
| Количество этажей | 1 этаж | Снижение стоимости строительства и обслуживания |
| Количество санузлов | 3 | Комфорт и удобство для большой семьи |
| Стоимость | 9 388 617 руб | Сбалансированная цена за качество и площадь |
Архитектурные особенности и стиль дома
Дом 68 выполнен в современном стиле, где сочетается минимализм и функциональность. Простые геометрические формы, продуманная планировка и лаконичный фасад — все это позволяет дому гармонично вписаться в разнообразные ландшафтные условия и соответствовать современным тенденциям архитектуры.
Одноэтажный формат делает дом визуально более приземистым и уютным, что дает ощущение стабильности и надежности. Благодаря этому проекту жилая среда становится местом, где приятно отдыхать, работать и проводить время с семьей.
Особенности планировочного решения дома 11x15 м
- Четкое зонирование на дневную и ночную зоны.
- Размещение спален в тихой части дома для максимального комфорта.
- Большие окна для естественного освещения и визуального расширения пространства.
- Удобный вход в основные помещения без лишних переходов.
- Рациональное размещение санузлов и технических помещений.
Удобство и функциональность жилища для современной семьи
Большая площадь и продуманная планировка создают условия для комфортного проживания как небольшой, так и большой семьи. В доме легко организовать зоны для работы, отдыха, игр детей и приема гостей. При этом каждая спальня становится личным пространством, где можно уединиться и насладиться тишиной.
Три санузла существенно упрощают утренние и вечерние процедуры, избавляя жильцов от необходимости ждать своей очереди. Это особенно актуально в семьях с разным режимом дня и возрастом членов семьи.
Как использовать пространство дома 68 — идеи и рекомендации
| Комната | Рекомендуемое использование | Полезные советы |
|---|---|---|
| Спальни | Основные спальни, гостевые, кабинет | Разделить помещения зонированием и мебелью для приватности |
| Кухня-столовая | Совместное приготовление и прием пищи | Использовать остров или барную стойку для дополнительного пространства |
| Гостиная | Прием гостей, отдых всей семьи | Максимально открытая и светлая зона с панорамными окнами |
| Санузлы | Основной, гостевой, детский | Разместить в стратегических местах для удобства всех жильцов |
Почему стоит выбрать проект дома 68?
Этот дом сочетает в себе множество значимых преимуществ — удобную одноэтажную планировку, просторные помещения, высокое качество строительства и привлекательную стоимость. Он подойдет как для тех, кто планирует постоянное проживание с большой семьей, так и для тех, кто хочет создать уютное загородное гнездышко с возможностью принимать гостей и организовывать комфортный отдых.
Одноэтажный дом 68 является идеальным примером совмещения эргономики, стиля и практичности. Такой проект становится возможностью не просто построить дом, а создать настоящую семейную крепость, обеспечивающую безопасность и комфорт на долгие годы.
Ключевые особенности, которые выделяют дом 68 среди аналогов
- Оптимальная площадь в 250 м², позволяющая реализовать любые дизайнерские и функциональные идеи.
- Максимально удобное расположение всех ключевых помещений.
- Три санузла обеспечивают высокий стандарт жизни для всех жильцов.
- Высокая экономичность при строительстве и эксплуатации дома.
- Современные архитектурные решения, отвечающие актуальным трендам.























