Обзор одноэтажного дома 59 размером 14x23 метров
Современное строительство загородных домов стремительно развивается, предлагая все более продуманные и комфортабельные решения для тех, кто мечтает о собственном уютном уголке. Одним из таких решений является проект дома 59, представляющий собой одноэтажное строение с габаритами 14 на 23 метра. При этом полезная площадь, равная значительным 760 квадратным метрам, позволяет максимально эффективно использовать внутреннее пространство и организовать комфортное проживание для большой семьи или для тех, кто любит просторы и натуральное ощущение пространства.
Данный проект рассчитан на одного этажа, что выгодно подчеркивает удобство в эксплуатации и позволяет нивелировать сложности, связанные с лестничными подъемами. Это особенно важно для семей с маленькими детьми, пожилыми членами семьи или людей с ограниченной мобильностью. Высокий уровень планировочного решения, грамотное зонирование и изумительные масштабы делают этот дом настоящей крепостью комфорта и уюта.
Основные размеры и простор внутреннего пространства
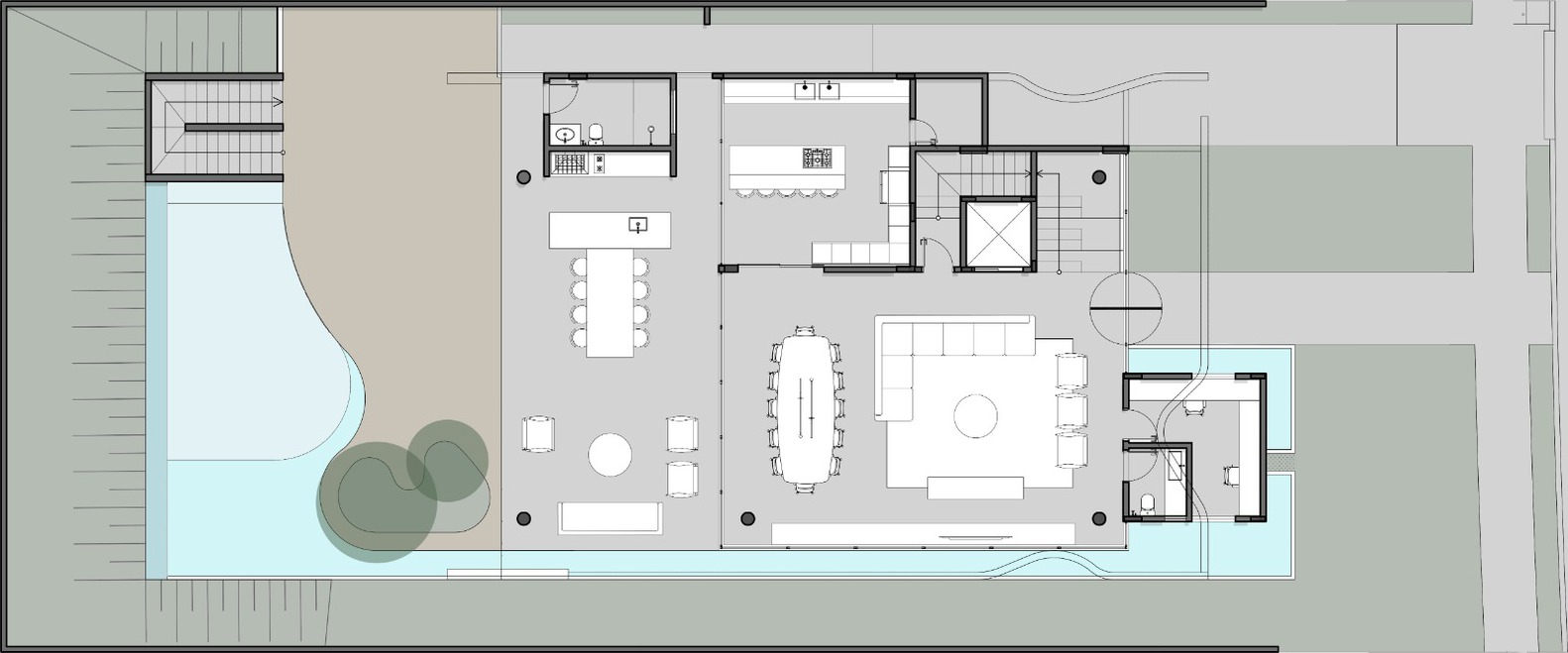
Габариты дома достаточно внушительны – 14 метров в ширину и 23 метра в длину. Такая площадь позволяет спроектировать внутреннюю планировку с четким разделением зон: жилых, гостевых, служебных и развлекательных.
При 760 квадратных метрах полезной площади пространство можно распределить как угодно, не жертвуя ни комфортом, ни функциональностью. Будет возможность обустроить просторную гостиную, несколько отдельных спален и, что необычно приятно, большое количество санузлов – более пяти. Это несомненный плюс, если в доме планируется проживание большой семьи и прием гостей.
Архитектурные особенности одноэтажного дома
Одноэтажные дома всегда обладали особым шармом и удобством. Дом 59 не исключение. С точки зрения архитектуры, он выполнен так, что каждая зона наполнена светом, свежим воздухом и удобством. Открытые пространства, большие окна и лаконичные линии фасада создают современный облик дома.
Одноэтажность дома значительно упрощает коммуникации и позволяет избежать потерь теплоресурсов через лестничные пролеты, делая дом максимально энергоэффективным и комфортным в эксплуатации.
Преимущества одноэтажной планировки
- Удобство перемещения. Все комнаты расположены на одном уровне, что делает дом удобным для людей всех возрастов.
- Безопасность. Нет необходимости использовать лестницы, что снижает риск травм.
- Планировочная гибкость. Большую площадь можно эффективно разделить под разные потребности – зоны отдыха, работы, развлечений.
- Уход и обслуживание. Одноэтажный дом проще поддерживать, обслуживать и реконструировать при необходимости.
Комфорт и функциональность: 4 спальни и более 5 санузлов
Одним из главных достоинств проекта дома 59 является наличие четырех просторных спален. Это оптимальное количество для организации удобного проживания большой семьи, гостей или даже для создания рабочих кабинетов или зон для хобби.
Планировка с четырьмя спальнями позволяет не только обеспечить личное пространство каждому члену семьи, но и эффективно использовать жилую площадь дома, организовав дополнительных зон под гардеробные, рабочие уголки или игровые пространства.
Наличие более пяти санузлов – это редкость даже для домов внушительных габаритов. Такая особенность позволяет полностью исключить очереди по утрам и вечерам, делает проживание более комфортным и добавляет уровень приватности для каждого обитателя дома.
Преимущества большого количества санузлов
- Удобство для семьи. Несколько санузлов исключают необходимость ждать своей очереди и снимают бытовые конфликты.
- Гостевое обслуживание. Отдельный санузел для гостей гарантирует комфорт для хозяев и посетителей.
- Гигиеничность. Разделение на женские, мужские или детские санузлы упрощает уход и повышает комфорт.
- Дополнительные возможности. Можно выделить санузлы, предназначенные для разных функций – душевая, ванная, гостевой туалет.
Стоимость и экономическое обоснование проекта
Стоимость дома 59 составляет 29 066 782 рублей, что при площади в 760 квадратных метров можно считать вполне адекватной инвестицией в комфорт и качество жизни. В среднем стоимость за квадратный метр достигает порядка 38 247 рублей, что является приемлемым показателем для дома такого масштаба, с высоким уровнем комфорта и продуманной планировкой.
Важно понимать, что при проектировании дома такого класса главной задачей является не только создание комфортабельного жилья, но и обеспечение долговечности конструкции, высокого качества отделки и инженерных систем, которые обеспечат надежность и низкие эксплуатационные затраты в будущем.
Ценовые аспекты строительства дома 59
| Параметр | Значение | Комментарий |
|---|---|---|
| Полезная площадь | 760 м² | Большая площадь для комфортного проживания |
| Размеры дома | 14 x 23 м | Оптимальные для одноэтажного дома |
| Количество этажей | 1 | Удобство и безопасность |
| Количество спален | 4 | Комфорт для семьи |
| Количество санузлов | 5+ | Высокий уровень комфорта |
| Стоимость | 29 066 782 руб. | Цена за полнофункциональный дом премиум уровня |
Особенности внутренней планировки и зонирования пространства
Грамотное зонирование в проекте дома 59 – одна из ключевых особенностей. Пространство условно делится на несколько функциональных областей: приватную жилую зону с четырьмя спальнями, общественную зону с гостиной и кухней, а также хозяйственные помещения, включая несколько санузлов и кладовых.
При таком распределении каждая зона выполняет свою роль, не мешая соседним. Например, спальни находятся в более уединенной части дома, что обеспечивает тишину и спокойствие, в то время как зоны гостиной и кухни предназначены для активности и общения. Такой принцип разбивки повышает качество жизни и делает проживание максимально комфортным.
Типичная планировка и её особенности
- Гостиная. Просторная, светлая комната для встреч с гостями и семейных вечеров.
- Кухня-столовая. Большая и функциональная, предоставляющая комфорт для приготовления и приема пищи.
- Спальни. Четыре индивидуальных помещения с возможностью организации гардеробных и рабочих зон.
- Санузлы. Распределены так, чтобы каждая зона имела удобный доступ к собственному санузлу.
- Хозяйственные комнаты. Для хранения, прачечной и технического оборудования.
Энергоэффективность и технологии строительства
Проект дома 59 разработан с учетом современных требований к энергоэффективности. За счет одноэтажной конструкции снижаются теплопотери, а качественное утепление стен и перекрытий позволяет добиться высокой теплоизоляции. Это обеспечивает не только комфорт в любую погоду, но и сокращает затраты на отопление и кондиционирование.
Для строительства используются современные материалы и технологии, что гарантирует долговечность и надежность дома, а также позволяет снизить вероятность возникновения таких проблем, как сырость, плесень или сквозняки.
Основные технологические решения
- Наружное утепление. Использование многослойной теплоизоляции.
- Энергоэффективные окна. Высококачественные стеклопакеты с защитой от потерь тепла.
- Система вентиляции. Механическая и естественная вентиляция с фильтрацией воздуха.
- Современные инженерные сети. Автоматизация систем отопления и кондиционирования.
Преимущества одноэтажного большого дома в современном мире
Жизнь в большом одноэтажном доме, таком как дом 59, сегодня становится все более востребованным решением для многих семей. Пространство и комфорт сочетаются с удобством эксплуатации и минимальными хлопотами в обслуживании.
Одноэтажность устраняет многие неудобства многоэтажных домов, связанных с перемещениями и безопасностью, при этом позволяет использовать площадку максимально эффективно — все важные зоны находятся под рукой и взаимодействуют между собой наиболее гармонично.
Дом 59 — это не просто жилище, а пространство для жизни, отдыха, работы и семейного общения, где каждый найдет свою зону уюта и вдохновения.


































